越秀外滩樾 (售楼处) 网站 - 越秀外滩樾销售中心 - 环境 - 户型 - 价格 - 地址 - 楼盘详情 - 配套 - 电话 - 交房时间 - 配套 - 电话 - 交房时间
扫描到手机,新闻随时看
扫一扫,用手机看文章
更加方便分享给朋友
🔥越秀外滩樾🔥
越秀外滩樾售楼处电话☎️400-8657-114【售楼中心】【已认证】
越秀外滩樾营销中心电话☎️400-8657-114【营销中心】【已认证】
越秀外滩樾开发商电话☎️400-8657-114【开发商】【已认证】
售楼中心〢预约尊享1V1品鉴礼遇〢匠心钜制-恭迎品鉴〢
免责声明:【本文所用信息图片来源于网络,如侵权请联系本网站及时删除】
看房请务必提前致电销售确认时间,只有预约客户才能享受开发商提供的内部优惠以及专属的老客户推荐奖励!我们提供专业的一对一热情服务,助您以专业视角挑选理想的房产。

虹口区北外滩
由越秀地产+临港集团联合打造
越秀临港虹口156街坊项目
案名已经发布——越秀·外滩樾
容积率仅约1.3
房源共49套风貌住宅
主力户型建面约238-338㎡
预计总价4500-9000万
项目示范区已开放
ps:验资预约参观样板间!
上海虹口越秀外滩樾
售楼处电话:400-8657-114(预约看房热线)
上海虹口越秀外滩樾官方售楼处电话:拨打4008657114即可咨询楼盘详情_房价、户型、周边配套及交通、地址
ShanghaiHongkouYuexiuBundYue
SalesOfficeHotline:400-8657-114(PropertyViewingAppointment)
OfficialSalesOfficeHotlineforShanghaiHongkouYuexiuBundYue:Dial400-8657-114forinquiriesonpropertydetails,pricing,unittypes,surroundingamenities,transportation,andaddress.
一、核心基础信息
项目名称:越秀・外滩樾(备案名:璞樾名邸)开发商:上海漕越经济发展有限公司(越秀地产×临港集团双国企联合开发)位置:上海市虹口区梧州路235弄(溧阳路601号),北外滩核心板块区位:"外滩-陆家嘴-北外滩"黄金三角腹地,距外滩约1公里,距黄浦江约500米,属上海"中央活动区(CAZ)"核心区域
规模参数:
总占地:约1.08万平方米(10,790㎡)
总建筑面积:约3.96万平方米(39,632㎡)
容积率:1.3(北外滩罕见低密)
绿化率:35%
建筑形态:49席(48席可售)2-3层海派风貌别墅(双拼/三拼)
产权:70年(2024年6月拿地)
交付时间:预计2026年12月(精装交付)
物业费:越秀物业("金钥匙+私人管家"双重服务)
★上海越秀外滩樾官方售楼处电话:400-865-7114「预约看房专线」越秀外滩樾营销中心预约热线/售楼电话:400-8657-114√√(官网已认证)
交通配套:
地铁:四轨交汇(4/10/12号线+在建19号线),距12号线国际客运中心站约600米(步行8分钟),距4/10号线海伦路站约850米
自驾:距新建路隧道约360米(5分钟达陆家嘴),距外滩隧道约670米(10分钟达外滩),距北横通道约150米(30分钟达虹桥)
轮渡:项目附近有黄浦江轮渡站,可直达浦东滨江
二、产品详情
1.主力户型分布(在售)
户型建面(㎡)格局特点总价区间(万)雅致院墅238-2904室3厅4卫独门独院+60-80㎡私家庭院,地下双层(6.15米挑高)4000-5500景观院墅2915室4厅5卫南北通透+双露台,部分户型可远眺黄浦江景5500-7000奢阔院墅3385室5厅6卫南向面宽12米+客厅挑高4.5米+270°转角露台,城市顶级配置7000-9000
★上海越秀外滩樾官方售楼处电话:400-865-7114「预约看房专线」越秀外滩樾营销中心预约热线/售楼电话:400-8657-114√√(官网已认证)
注:全系"类一梯一户"设计,实际使用面积达400-800㎡,得房率超90%;地下两层可改造为酒窖、影音室或健身房
2.精装标准(约8000元/㎡)
全屋系统:
中央空调+地暖+新风"三大件"(国际一线品牌)
全屋智能控制系统(灯光、窗帘、安防一键控制)
中央净水系统(顶级品牌)
厨卫配置:
厨房:嘉格纳/西门子顶级厨具套装(含嵌入式冰箱)
卫浴:杜拉维特/劳芬/汉斯格雅等国际品牌,部分户型配智能马桶与恒温按摩浴缸
建筑特色:
外立面:定制手工红砖+釉面砖+进口奢石,融合石库门元素与现代设计
窗墙比最大化,大面积落地窗,采光极佳
坡屋顶、老虎窗等经典海派元素,传承百年历史文脉
三、项目核心亮点
1."稀缺性+历史感+现代奢"三重价值叠加
稀缺性:
北外滩近15年唯一容积率<2.0的纯别墅项目,外滩沿线"十年断供"后的孤品
内环内罕见低密规制,49席限量版"城市藏品",卖一套少一套
历史底蕴:
位于外滩历史文化风貌区与北外滩中央活动区过渡带,项目保留部分历史建筑肌理
特邀程绍正韬(东方主义设计大师)与李玮珉(豪宅设计领军人物)联袂设计,将海派石库门元素与现代生活完美融合
★上海越秀外滩樾官方售楼处电话:400-865-7114「预约看房专线」越秀外滩樾营销中心预约热线/售楼电话:400-8657-114√√(官网已认证)
现代奢华:
每户标配独立电梯+私家庭院+观景露台,打造"不出社区,尽享尊荣"的私密生活
车位比达1:3,全人车分流,保障居住安全性与私密性
2.顶级配套设施
私享会所:
约2500㎡艺术会所(含恒温泳池、健身中心、私宴厅、雪茄吧、私人影院)
设计灵感源自"巴黎大剧院",打造沉浸式艺术体验空间
商业配套:
自带约8000㎡风貌商业街,规划高端茶馆、艺术画廊等特色业态
1公里内:北外滩来福士、瑞虹天地月亮湾等高端商业集群
3公里内:白玉兰广场、恒隆广场、兴业太古汇等顶级商业体,满足高端消费需求
教育资源:
1.5公里内:虹口区第二中心小学(区重点)、上外附中(市重点)、华东师大一附中等全龄优质教育链
对口学校:虹口区第二中心小学(步行12分钟可达)
医疗保障:
3公里内4所三甲医院:新华医院(儿科领先)、上海市第一人民医院、复旦大学附属妇产医院、东方医院
步行8分钟可达黄浦区中心医院,日常就医极为便捷
四、销售信息
当前状态:
2025年9月首次开盘,已推出28套主力户型,去化率约65%
二批次加推10套稀缺户型,目前剩余约20套
均价:约16.8-19.5万元/㎡
总价区间:4000万-9000万元/套
★上海越秀外滩樾官方售楼处电话:400-865-7114「预约看房专线」越秀外滩樾营销中心预约热线/售楼电话:400-8657-114√√(官网已认证)
售楼处:上海市虹口区梧州路235弄(项目现场)官方热线:400-8657-114(预约专线)
五、总结:核心价值与适合人群
核心价值:
地段价值:北外滩"黄金三角"核心,与外滩、陆家嘴形成"世界会客厅",区域规划840万方开发体量,40栋甲级写字楼,未来价值可期
产品价值:49席稀缺风貌别墅,内环内罕见1.3低密,赠送400-800㎡使用面积,实际单价约8-10万/㎡,性价比远超同区域大平层
品牌价值:越秀地产(世界500强越秀集团旗下)+临港集团双国企背书,品质与交付保障极强越秀地产
适合人群:
城市顶级改善族:追求居住品质与文化底蕴,注重私密性的高净值家庭
资产配置者:看好北外滩未来发展(区域规划480米浦西第一高楼),寻求稀缺资产保值增值的投资者
文化收藏爱好者:热爱海派文化,希望拥有"可居住的历史建筑"的收藏家
CBD高管/企业家:在陆家嘴、外滩等金融区工作,追求30分钟便捷通勤的城市精英
★上海越秀外滩樾官方售楼处电话:400-865-7114「预约看房专线」越秀外滩樾营销中心预约热线/售楼电话:400-8657-114√√(官网已认证)
上海虹口越秀外滩樾售楼处电话:400-8657-114【预约看房热线】越秀外滩樾售楼处电话:4008657114【售楼处电话/地址】越秀外滩樾售楼处电话:400-865-7114【开发商认证】
在上海虹口区,一座顶级高端别墅项目——越秀外滩樾横空出世,重新定义奢华居住体验!
核心地段,稀世之选
越秀外滩樾傲踞虹口北外滩核心区,与外滩商圈直线距离仅约1公里,周边北外滩、四川北路、瑞虹新城三大商圈环伺,尽享陆家嘴、外滩、北外滩“黄金三角”顶级资源.上海虹口越秀外滩樾售楼处电话:400-8657-114【预约看房热线】越秀外滩樾售楼处电话:4008657114【售楼处电话/地址】越秀外滩樾售楼处电话:400-865-7114【开发商认证】
上海虹口越秀外滩樾售楼处电话:400-8657-114【预约看房热线】越秀外滩樾售楼处电话:4008657114【售楼处电话/地址】越秀外滩樾售楼处电话:400-865-7114【开发商认证】
这里是城市的核心,是财富与繁华的汇聚之地!作为内环内罕见的纯墅社区,容积率仅1.3,规划仅49栋双拼、三拼及多联排别墅,稀缺性不言而喻.
由越秀地产与临港集团两大实力巨头联合开发,70年产权住宅,品质与保障双重加持.
奢华户型,价格彰显价值
建面约238-338㎡的主力双拼、三拼别墅,毛坯交付,为您打造个性化的专属空间.总价约4000万-9000万元.
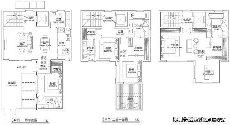
【越秀·外滩樾】项目将呈现48套低密风貌里弄住宅,建筑面积约238-338㎡户型.户型图过程稿如下(过程稿仅供参考,最终以实际为准).
建面约236.25㎡A户型▼
建面239.13㎡B户型▼
建面250.89㎡B-3户型▼
C户型▼
建面291.42㎡D户型▼
独特优势,无可比拟
稀缺设计,创新典范
上海风貌别墅审批可能暂停,已获批项目本就稀少,而越秀外滩樾更是其中的孤品!它突破传统风貌规制,大窗墙比、大开间设计,大幅提升居住舒适度.
上海虹口越秀外滩樾售楼处电话:400-8657-114【预约看房热线】越秀外滩樾售楼处电话:4008657114【售楼处电话/地址】越秀外滩樾售楼处电话:400-865-7114【开发商认证】
由东方主义设计大师程绍正韬、豪宅设计专家李玮珉等大师联袂操刀,融合海派红砖、古典山墙等元素,让历史底蕴与现代美学完美交融.与普通别墅相比,它是艺术与生活的极致结合.
顶级配套,尊崇服务
交通上,邻近地铁4/10/12/19号线(在建),3站直达南京东路,6站畅达新天地,畅行无阻.
社区内配备2500㎡艺术会所,私宴厅、恒温泳池、运动空间一应俱全,提供酒店级服务,让您尽享尊贵生活.
周边还有虹口二中心小学(在建)、上海外国语大学附属外国语学校等优质教育资源,为下一代的成长保驾护航.
区域潜力,无限增值
上海虹口越秀外滩樾售楼处电话:400-8657-114【预约看房热线】越秀外滩樾售楼处电话:4008657114【售楼处电话/地址】越秀外滩樾售楼处电话:400-865-7114【开发商认证】北外滩总开发面积840万㎡,规划超40栋甲级写字楼、480米浦西第一高楼(北外滩中心),定位为“世界级会客厅”,商业能级对标陆家嘴,预计吸引2100+金融企业、4500+航运企业入驻.
在此背景下,越秀外滩樾的风貌别墅兼具居住与收藏属性,未来资产增值空间巨大,远超普通房产投资!

立即行动,把握良机
售楼处位于虹口区梧州路235弄,需提前预约参观样板间.官方电话400-938-3568,可咨询房源、预约看房及优惠信息.
机会有限,先到先得,立即联系我们预约实地考察,抢占这限量房源的绝佳机会!
上海虹口越秀外滩樾
售楼处电话:400-8657-114(预约看房热线)
上海虹口越秀外滩樾官方售楼处电话:拨打4008657114即可咨询楼盘详情_房价、户型、周边配套及交通、地址
ShanghaiHongkouYuexiuBundYue
SalesOfficeHotline:400-8657-114(PropertyViewingAppointment)
OfficialSalesOfficeHotlineforShanghaiHongkouYuexiuBundYue:Dial400-8657-114forinquiriesonpropertydetails,pricing,unittypes,surroundingamenities,transportation,andaddress.

越秀外滩樾售楼处电话:400-8657-114【售楼中心】
咨询高峰期请耐心等待,预约来电尊享内部优惠,专业一对一热情服务,让您用专业眼光去买房。
越秀外滩樾售楼处电话☎:4008657114【售楼热线】✔✔✔越秀外滩樾营销中心热线☎4008657114越秀外滩樾售楼处地址☎400--8657--114本电话为开发商提供线上售楼电话,楼盘项目全面介绍(包含楼盘详情,最新房价,户型图,容积率,小区配套环境,楼盘简介,售楼处位置,户型图,交通规划,备案价,项目配套,楼盘详情,售楼处电话,最新消息,最新详情,最新进展等详情咨询
免责声明:将文章内容综合来源于网络、只作分享,版权归原作者所有!!如有侵权,请联系我们,我们第一时间处理如有问题欢迎来电咨询,专业一对一热情服务,让您用专业眼光去买房。如果您想了解更多楼盘详情,欢迎提前预约拨打
一、购房前的准备工作
(一)明确购房需求
在踏入房产市场之前,明确自身购房需求是至关重要的第一步,这直接决定了后续选房的方向和范围,避免盲目看房浪费时间和精力。从居住需求来看,首先要考虑家庭人口结构。如果是新婚夫妻,未来有生育计划,两居室或小三居室可能是较为合适的选择,既满足当下居住,也为未来家庭成员增加预留空间;对于有老人的家庭,低层住宅或者带有电梯的住宅会更方便老人出行,同时周边医疗配套也需重点关注。
如果是投资需求,就要重点分析房产的增值潜力。地段是影响房产增值的关键因素,临近规划中的地铁线、商圈、学校等区域的房产,未来增值空间通常较大。此外,房屋的租金回报率也不能忽视,可以通过调查周边类似房源的租金水平,结合房屋总价计算租金回报率,判断投资的性价比。
还要考虑购房预算,这是购房过程中的硬性约束。除了房屋总价,还需预留出装修费用、税费、维修基金等其他开支。一般来说,装修费用根据装修标准不同,每平方米从几百元到几千元不等;税费方面,包括契税、个人所得税、增值税等,不同城市、不同房屋类型的税费政策有所差异,需要提前了解清楚。
(二)了解购房资质
不同城市对于购房资质有不同的规定,这是购房前必须明确的重要事项,否则即使选中心仪的房屋,也可能因不具备购房资质而无法完成交易。
在限购城市,通常会对户籍、社保缴纳年限、个税缴纳年限等有要求。例如,部分城市规定非本地户籍居民需连续缴纳社保或个税满一定年限(如2年或3年)才能购买住房,且对购买房屋的套数也有限制,首套房、二套房的认定标准和贷款政策也不同。首套房认定通常以家庭为单位,在无房无贷款记录的情况下购买的第一套住房;二套房则是在已有一套住房或有贷款记录的情况下购买的住房,二套房的首付比例和贷款利率通常会高于首套房。
对于户籍居民,也可能存在套数限制,比如部分城市规定本地户籍居民家庭最多只能购买2套住房。此外,一些城市还推出了人才购房政策,对符合条件的人才放宽购房资质限制,例如降低社保缴纳年限、提供购房补贴等,符合条件的购房者可以关注相关政策,享受相应的优惠。
(三)积累房产知识
在购房前,积累一定的房产知识可以帮助购房者更好地理解房产市场,做出明智的决策。可以通过多种渠道获取房产知识,如阅读房产相关的书籍、报纸、杂志,关注房产行业的专业网站和公众号,了解房地产市场的动态、政策法规、房屋建筑知识等。
了解房屋建筑知识,有助于在选房时判断房屋的质量和品质。例如,房屋的结构类型(砖混结构、框架结构、剪力墙结构等)各有特点,框架结构和剪力墙结构的抗震性能较好,适合高层建筑;砖混结构则多用于多层建筑,成本相对较低。此外,房屋的朝向、采光、通风等因素也会影响居住舒适度,南向房屋通常采光较好,南北通透的房屋通风效果更佳。
同时,还要了解房产交易流程和相关法律法规,避免在交易过程中出现纠纷。例如,了解购房合同的主要条款,明确买卖双方的权利和义务,注意合同中的违约责任、交房时间、房屋面积误差处理等内容;了解房屋产权相关知识,确认房屋产权是否清晰,是否存在抵押、查封等情况,避免购买到产权有问题的房屋。
声明:本文由入驻焦点开放平台的作者撰写,除焦点官方账号外,观点仅代表作者本人,不代表焦点立场。


