保利外滩启(营销中心)首页网站-保利外滩启销售中心(售楼处)-保利外滩启欢迎您-电话地址-价格-户型-小区环境-楼盘详情
扫描到手机,新闻随时看
扫一扫,用手机看文章
更加方便分享给朋友
保利外滩启𝑷𝑨𝑹𝑲𝟕𝟕售楼处电话:400-998-7894【售楼处位置】
保利外滩启𝑷𝑨𝑹𝑲𝟕𝟕售楼处电话:400-998-7894【营销中心】
楼盘详情400-998-7894(房价,价格,地址,户型图,交通,周边配套,备案价,楼盘详情,售楼处电话,售楼处地址,最新房源,最新价格,最新动态,最新进展等详情)
售楼处已经开启接待保利外滩启𝑷𝑨𝑹𝑲𝟕𝟕售楼处电话:400-998-7894【售楼处位置】
保利外滩启𝑷𝑨𝑹𝑲𝟕𝟕售楼处电话:400-998-7894【营销中心】
保利外滩启𝑷𝑨𝑹𝑲𝟕𝟕售楼处电话:400-998-7894【售楼处位置】
保利外滩启𝑷𝑨𝑹𝑲𝟕𝟕售楼处电话:400-998-7894【营销中心】
项目信息
2024年11月,保利发展以总价152252万元竞得杨浦区C090202单元O2-07地块,折合楼面价86037元/㎡,溢价率16.27%。
正因为手握江浦公园、三件套等“城市资源王牌”,项目内部设计拒绝孤立存在,而是主动与外部资源形成精准呼应:
借鉴高端精奢酒店,将“静谧奢享”贯穿始终——高颜值美学立面以玻璃幕墙最大化引景入室,酒店式景观园林与江浦公园绿意形成无界衔接,环幕设计+270°无界景舱让三件套天际线尽收眼底...保利发展为年轻精英量身定制了一处繁华与静奢交织的社区。
凭借这份前瞻性的独特定位,保利外滩启PARK77不仅将是今年内环新盘中年轻新贵追捧的品质之选,更将以生活方式的迭代升级,定义区域人居新高度。保利外滩启𝑷𝑨𝑹𝑲𝟕𝟕售楼处电话:400-998-7894【售楼处位置】
保利外滩启𝑷𝑨𝑹𝑲𝟕𝟕售楼处电话:400-998-7894【营销中心】
保利外滩启𝑷𝑨𝑹𝑲𝟕𝟕售楼处电话:400-998-7894【售楼处位置】
保利外滩启𝑷𝑨𝑹𝑲𝟕𝟕售楼处电话:400-998-7894【营销中心】
我很喜欢一句话:“预测未来的最好方法,就是创造未来。”
创造是一个偏主动的词语,一方面杨浦新房长期以来风格千篇一律,科创金融人才需要与之生活匹配的”静奢“住宅,保利发展敏锐洞察到这一需求,主动创造。
另一方面,外部城市景观太优越,保利发展主动进行社区与城市资源融合,打造精奢酒店式的度假社区。
这种主动创造,让保利外滩启PARK77不仅是对“外滩序” 的升级,更成为引领区域人居升级的标杆。
虽当前项目透露的信息有限,但已能窥见其独特魅力:
1、国际艺术立面,杨浦新的美学天际线保利外滩启𝑷𝑨𝑹𝑲𝟕𝟕售楼处电话:400-998-7894【售楼处位置】
保利外滩启𝑷𝑨𝑹𝑲𝟕𝟕售楼处电话:400-998-7894【营销中心】
大面积铝板与玻璃幕墙的精密拼接、米白色铝板勾勒出的几何线条,以及金色、米白色铝板为材质搭建的穹顶,在阳光下折射出温润光泽,实现历史文脉与现代美学的完美对话。
保利外滩启𝑷𝑨𝑹𝑲𝟕𝟕售楼处电话:400-998-7894【售楼处位置】
保利外滩启𝑷𝑨𝑹𝑲𝟕𝟕售楼处电话:400-998-7894【营销中心】
社区内定制六大度假花园,以精奢酒店景观为蓝本,将四季风光酿成日常,让居者时刻与自然相拥。
更精心打造五重景观空间,涟漪阅境、茶会林庭、玻璃水庭、谧境花庭、浮屿光庭,每一处都是酒店级的造景艺术。
临水而筑的架空层泛会所,以通透布局引自然光与园景入室,度假般的松弛感扑面而来。
3、约270°全玻璃幕墙无界视角(部分户型)
建筑立面转角处匠心设计约270度转角飘窗,打破传统方正格局,拓宽视野边界,将窗外美景尽收眼底。
保利外滩启𝑷𝑨𝑹𝑲𝟕𝟕售楼处电话:400-998-7894【售楼处位置】
保利外滩启𝑷𝑨𝑹𝑲𝟕𝟕售楼处电话:400-998-7894【营销中心】
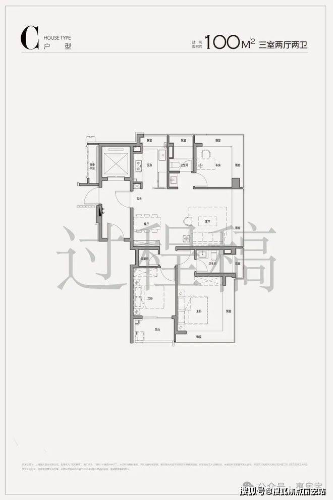
1、建面约99-103㎡3房:内环稀缺“极致利用率”宝藏户型!
该户型三开间朝南,全屋六飘窗,把使用率拉到极致。
独立玄关在同级户型中颇为少见,既提升了出入的仪式感,又悄然扩容了收纳空间。
餐厅区域是实用率的点睛之笔——巧妙借过道空间拓宽用餐区,竟能从容放下岛台,让小户型也能拥有大 house 的生活场景。
更难得的是,目前市面上入门级三房普遍108㎡起,比项目多近5-10㎡建面,意味购房成本增加70-130万。如此稀缺的99-103㎡3房,堪称内环新盘中的“宝藏户型”,且买且珍惜!

保利外滩启𝑷𝑨𝑹𝑲𝟕𝟕售楼处电话:400-998-7894【售楼处位置】
保利外滩启𝑷𝑨𝑹𝑲𝟕𝟕售楼处电话:400-998-7894【营销中心】
建面约135-137㎡4房,同样面积下,总价更可控——同级4房普遍需做到145㎡+,而这款户型以更精巧的设计,满足三代同堂或二胎家庭需求。
户型标配入户玄关;客餐厅、厨房、阳台一线贯通,通透感十足。
全屋满飘窗的设计足够震撼,尤其主卧270°飘窗,将景观视野拉升到极致,窗外的公园绿意与城市天际线尽收眼底;就连主卫也配备270°观景视野。
其它户型:保利外滩启𝑷𝑨𝑹𝑲𝟕𝟕售楼处电话:400-998-7894【售楼处位置】
保利外滩启𝑷𝑨𝑹𝑲𝟕𝟕售楼处电话:400-998-7894【营销中心】
保利外滩启𝑷𝑨𝑹𝑲𝟕𝟕售楼处电话:400-998-7894【售楼处位置】
保利外滩启𝑷𝑨𝑹𝑲𝟕𝟕售楼处电话:400-998-7894【营销中心】
板块信息
当下正值虹口杨浦房价大涨前夜:华润、金茂等项目持续推进,虹口房价16-18万/㎡板上钉钉;绿城落子北外滩,更让区域价格再创新高。
而保利外滩启PARK77与北外滩地王直线距离仅约2.2公里,未来将与北外滩共享界面更新、配套升级、生活方式迭代,更将同步承接价值的全面焕新。
关键的是,在地王引爆区域价格的当下,项目是一次“用面粉价买面包”的罕见窗口,买在杨浦虹口大涨前!一旦错失,将来买地王!保利外滩启𝑷𝑨𝑹𝑲𝟕𝟕售楼处电话:400-998-7894【售楼处位置】
保利外滩启𝑷𝑨𝑹𝑲𝟕𝟕售楼处电话:400-998-7894【营销中心】
保利外滩启𝑷𝑨𝑹𝑲𝟕𝟕售楼处电话:400-998-7894【售楼处位置】
保利外滩启𝑷𝑨𝑹𝑲𝟕𝟕售楼处电话:400-998-7894【营销中心】
①、双轨上盖,多桥隧+北横通道,执掌城芯效率!
轨交王炸:12/18号线双轨上盖,2站北外滩,无缝衔接南京西路(7站)、衡复风貌区(8站)、徐汇滨江等核心板块;通过换乘,5站南京东路,6站陆家嘴,通勤效率拉满。
声明:本文由入驻焦点开放平台的作者撰写,除焦点官方账号外,观点仅代表作者本人,不代表焦点立场。


