特发·香阅里(售楼处)首页网站-特发·香阅里销售中心(营销中心)-特发·香阅里楼盘欢迎您-小区环境-户型-价格-地址-楼盘详情-周边配套-售楼处电话
扫描到手机,新闻随时看
扫一扫,用手机看文章
更加方便分享给朋友
特发香阅里售楼处电话☎:400-865-7114(预约看房热线√√)
特发香阅里售楼处电话/地址☎:4008657114【售楼中心已认证√√】
售楼处电话☎:400-8657-114【售楼处预约热线】(一对一热情服务)
看房请务必提前致电销售确认时间,只有预约客户才能享受开发商提供的内部优惠以及专属的老客户推荐奖励!我们提供专业的一对一热情服务,助您以专业视角挑选理想的房产。

【项目简介】
项目位置:上海·临港105·环湖北三路与川朴路交汇处
总建筑面积:约13.9万㎡
产品业态:规划12栋14-16F小高层,临街商业
主力户型:建面约109-170㎡三房/四房
临港值此双园(规划中)首排纯粹大宅,定鼎人居标杆
特发香阅里售楼处电话:400-8657-114【预约看房热线】特发香阅里官方售楼处电话:4008657114【售楼处电话/地址】特发香阅里售楼处电话:400_8657_114【开发商认证】

【核芯站位】
105中轴·据守繁华心脏
世界临港:定位为具有国际竞争力的特殊经济功能区;5年以19.8%增速擎动新质生产力,四海智汇,跨境创新潮涌东海之滨。
到2035年将逐步建成具有较强国际市场影响力和竞争力的特殊经济功能区核心承载区,“开放创新、智慧生态、产城融合、宜居宜业”的链接全球、辐射长三角的独立综合性节点滨海城市,令人向往的“东海明珠”。
(信息来源:新片区总规划、南汇新城“十四五”规划建设行动方案)
中轴CAZ:特发·香阅里立踞临港现代服务业开放区(105片区),自贸试验区+中央活动区的双重定位激活临港中轴动脉,未来开放区枢纽将打造成集新型国际贸易、交通枢纽、金融财富、时尚生活趋势、免税消费中心、国际交往目的地于一体的繁华会客厅,链接浦东机场T3航站楼(建设中)、上海东站(建设中)、虹桥机场的关键节点,以城市之心的跳动,对话世界繁华。
(信息来源:新片区总规划、临港开放区站城一体项目规划方案)
特发香阅里售楼处电话:400-8657-114【预约看房热线】特发香阅里官方售楼处电话:4008657114【售楼处电话/地址】特发香阅里售楼处电话:400_8657_114【开发商认证】
交通聚合:双轨交汇,与南汇线(建设中)、南枫线(建设中)所在的滴水湖北站直线相距约650米,4站直达东方枢纽(建设中),执掌城市动脉;与16号线滴水湖站直线相距约2公里,另有多种出行方式,快速通达全城,27号线(规划中)、临港市区线(规划中)等众多路网编织立体交通网,启幕全球视野。
(信息来源:南汇新城规划图,数据来源:百度地图)
全维鼎配:拥揽一众地标资源
【书香为邻】冰厂田滴水湖幼儿园(星瀚部)、上海财经大学附属浦东临港小学、上海临港耀中外籍人员子女学校(建设中)、十二年一贯制滴水湖学校在侧,临港新办多所优质学校,书香浸润,成长无忧。
(信息来源:“南汇新城镇发布”公众号)
【商业林立】临港105片区开放区枢纽段将打造成兼具自贸区与城市核心功能的CAZ,同步世界潮流,坐享城市门户。临港新片区商业多点布局,星空之境综合体-星海汇(建设中)、港城新天地、蓝鲸世界(建设中)、临港印象城MEGA(建设中)、城市书香商业街等众多繁华商业驾车可达。
(信息来源:南汇新城规划图、“上规SPC"公众号,数据来源:百度地图)
【医疗护航】上海市第六人民医院东院(三甲医院)已投入使用,同时六院二期建设中,届时将满足更多高端人才就医需求,打造高水平多层次医疗和健康体检运营模式。另有多所规划中的医院,如曙光医院滴水湖中医国际诊疗中心(规划中)星罗棋布,为健康保驾。
(信息来源:南汇新城规划图、“浦东发布”公众号)
【文旅地标】上海天文馆、耀雪冰雪世界、上海海昌海洋公园、中国航海博物馆等一众娱乐目的地环伺周边,生活精彩纷呈。
特发香阅里售楼处电话:400-8657-114【预约看房热线】特发香阅里官方售楼处电话:4008657114【售楼处电话/地址】特发香阅里售楼处电话:400_8657_114【开发商认证】
🏞【极幕视野】
双园首排|IMAX视野
西南向约54万㎡星空之境海绵公园与二环公园带(规划中),交织都荟诗意,约550米无遮拦的公园(规划中)视野南抵荣耀之环(建设中),东揽城市公园(规划中)。置身于此,仿佛被无垠的自然温柔环抱。
(信息来源:上海市规划和自然资源局,数据来源:百度地图)
公园首排、公园视角
【封面藏品】
国企特发|精工品质
特发地产承袭特发集团(深圳国企)先试先行,敢为人先的基因,以深耕深圳、多点布局的城市更新经验,结合鲁班奖工艺(特发·和平里)基底,匠心浇筑绿建三星超低能耗建筑为健康护航,致敬巴黎拉德芳斯拱门艺术,成就临港封面改善作品。
特发香阅里售楼处电话:400-8657-114【预约看房热线】特发香阅里官方售楼处电话:4008657114【售楼处电话/地址】特发香阅里售楼处电话:400_8657_114【开发商认证】
双轴六园|森境诗章
匠造「一环两轴六园」的森居谧境,约650米氧气跑道串联水景庭院与花园。多个主题空间涵盖亲子、萌宠、社交,让欢乐与自然共生长,满足全天候欢愉。

主题架空层|延伸全龄志趣
架空层打造全龄聚场,涵盖社区会客厅、健身、阅读、儿童乐园四大主题,构建惬意美好的邻里社交空间,无惧晴雨,拓展生活乐趣,感受真“质”的居住改善。

星幕车库|双大堂尊崇礼遇
遵循豪宅的归家礼序,环岛大门落客,穿越顶部嵌入星空穹顶的地下车库汽车坡道,用一场银河光影秀恭迎归家。
地上/地下双奢装大堂,岩板点缀,温度适宜,归家一刻便卸下疲惫,品味与舒适双重奢享。
特发香阅里售楼处电话:400-8657-114【预约看房热线】特发香阅里官方售楼处电话:4008657114【售楼处电话/地址】特发香阅里售楼处电话:400_8657_114【开发商认证】

精工细节|奢居范本
中央空调、新风系统、地暖三大件配备齐全,24小时焕新室内空气,温度宜人,隔绝尘霾,为家人的健康悉心守候。
电视背景墙岩板交付,增配品牌洗碗机、主卫智能马桶等,众多高标准精装细节,重塑板块品质标杆,让好房子回归居住本真。

📍【纯粹大宅】
阔境奢宅丨大宅逻辑的时代破局
以纯粹改善之名,礼献高阶生活范本。
匠造建面约109-170㎡三至四房,其中建面约118㎡及以上户型均为两梯两户,以私密格局重构空间秩序。
南向多开间设计让阳光与风景从容入画,建面约150㎡及以上户型奢配三卫、双套房设计承载多元生活场景。以全系百平之上的纯粹改善大宅对话层峯圈层,于城市中轴,珍藏匹配身份的人生主场。
特发香阅里售楼处电话:400-8657-114【预约看房热线】特发香阅里官方售楼处电话:4008657114【售楼处电话/地址】特发香阅里售楼处电话:400_8657_114【开发商认证】

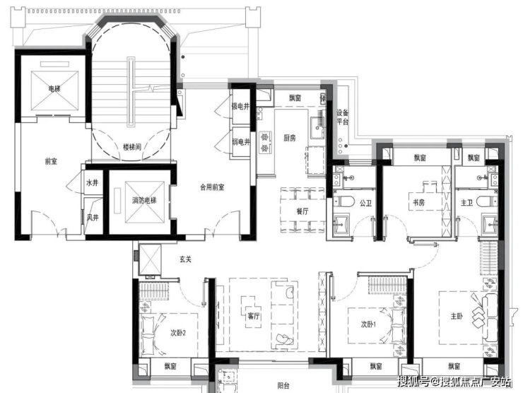
【阅·雅建面约109㎡三房两厅两卫】
南向三开间|LDK一体化布局|「去走廊化」布局,空间利用率高|U型厨房

【阅·逸建面约118㎡四房两厅两卫】
两梯两户|南向四开间|南北多飘窗,空间灵动|LDK一体化设计|次卧可联动客厅

【阅·澜建面约142㎡三房两厅两卫】
两梯两户|奢享约13.7米面宽|约7米大气大横厅,LDK一体化|主卧套房
特发香阅里售楼处电话:400-8657-114【预约看房热线】特发香阅里官方售楼处电话:4008657114【售楼处电话/地址】特发香阅里售楼处电话:400_8657_114【开发商认证】

【阅·峯建面约150㎡四房两厅三卫】
两梯两户|东面直面城市绿意|三卧室朝南|双套房设计|入户独立衣帽间

【阅·慕建面约170㎡四房两厅三卫】
公园首排环幕视野|两梯两户|约15.6米面宽、南向四开间|入户储物空间|南向双套房设计

星空穹顶:归家仪式,致敬塔尖生活
踏入特发·香阅里的瞬间,地库坡道星光穹顶如银河倾泻,万千光点交织成流动的星幕。归家之路,化作一场穿越星际的仪式——光晕流转于金属格栅,步履间仿若踏月而行,以无声的璀璨,礼赞每一位时代人物的归来。
奢装迭代:精工3.0,定义高阶舒适
•恒温空气管家:中央空调+地暖+24小时置换新风系统,三重复合科技筑就“会呼吸的房子”。冬日赤足踏暖,夏日清风徐来,湿度恒守40%-60%黄金区间,梅雨季不潮,寒冬不燥,四季如春。
•细节镌刻奢华:电视背景墙以岩板铺陈,天然纹理如泼墨山水;厨房嵌入品牌洗碗机,油污喧嚣一键涤净;主卧智能马桶无声启合,生活自此从容不迫。
架空层泛会所:无界空间,激活全龄诗意
特发香阅里售楼处电话:400-8657-114【预约看房热线】特发香阅里官方售楼处电话:4008657114【售楼处电话/地址】特发香阅里售楼处电话:400_8657_114【开发商认证】
•四重意境空间:书吧墨香萦绕,成为思想沙龙据点;健身区器械临窗对景,汗水挥洒间满目葱茏;儿童乐园滑梯蜿蜒如藤蔓生长;社区会客厅茶盏轻碰,邻里温情于此生根。
•光影与自然的协奏:落地玻璃消弭室内外界限,架空层成为园林的延伸。晨起瑜伽伴鸟鸣,午后品茗观树影,生活与艺术在此共生。
六园艺境:双园环抱,收藏自然艺术
约54万㎡星空之境海绵公园在窗前舒展,规划中的百万方二环公园带如绿绸环绕。项目以“一环两轴六园”为脉络,雕琢自然艺术花园:
•水轴蜿蜒:镜面水景倒映天光云影,旱溪砾石摹写山涧意趣;
•林谷森呼吸:乔木错落成荫,香樟林滤净尘埃,林下座椅静候阅读时光。
头排推窗即见滴水湖与荣耀之环地标,自然与繁华在此达成黄金平衡,IMAX级视野成为日常的奢华标配。
未来已至:以深圳基因,重启临港想象
特区开荒者特发集团,携鲁班奖精工血脉南下。从建筑立面的铝板线条,到车库星空顶坡道的穹光幻境;从118起大户型两梯两户类一梯一户的私密尊崇,到全屋多飘窗的偷景艺术——每一处皆是对“真改善”的颠覆诠释。
于此,星空不眠,奢装不语,艺境不争。
特发·香阅里,以公园为卷轴,以产品为笔锋,在滴水湖畔挥毫未来人居的东方诗篇——让生活成为艺术,让归家即是抵达远方。
FASHIONTIME


特发香阅里售楼处电话:400-8657-114【售楼中心】
咨询高峰期请耐心等待,预约来电尊享内部优惠,专业一对一热情服务,让您用专业眼光去买房。
特发香阅里售楼处电话☎:4008657114【售楼热线】✔✔✔特发香阅里营销中心热线☎4008657114特发香阅里售楼处地址☎400--8657--114本电话为开发商提供线上售楼电话,楼盘项目全面介绍(包含楼盘详情,最新房价,户型图,容积率,小区配套环境,楼盘简介,售楼处位置,户型图,交通规划,备案价,项目配套,楼盘详情,售楼处电话,最新消息,最新详情,最新进展等详情咨询
免责声明:将文章内容综合来源于网络、只作分享,版权归原作者所有!!如有侵权,请联系我们,我们第一时间处理如有问题欢迎来电咨询,专业一对一热情服务,让您用专业眼光去买房。如果您想了解更多楼盘详情,欢迎提前预约拨打
买房是大多数人一生中最重要的消费决策之一,涉及金额大、流程复杂,且关联政策、法律、市场等多方面因素。不少人因缺乏专业知识,在购房过程中踩坑,轻则多花冤枉钱,重则面临产权纠纷、房屋质量问题等风险。本文将从购房全流程出发,梳理关键知识要点,帮助大家理性买房、避开陷阱。
一、买房前:明确需求与做好预算,避免盲目跟风
1.精准定位购房需求:自住与投资差异显著
买房前首先要明确核心需求——是自住还是投资,二者的选择逻辑截然不同。
自住需求:以“适配生活”为核心
需结合家庭结构、通勤半径、生活配套等实际需求决策。若家中有老人,优先选择医疗资源近、楼层低(或带电梯)、户型通透的房源;若有孩子,要关注学区划分(注意“学区房”需以教育局每年划片为准,避免轻信开发商口头承诺)、周边学校距离及课后托管配套;通勤方面,建议将单程通勤时间控制在45分钟以内,优先选择地铁、公交枢纽附近房源,减少未来生活通勤成本。
此外,自住需考虑居住周期:若计划住5年以上,要预留空间(如两居改三居的可能性);若短期过渡(3年以内),则平衡“实用性”与“未来转手难度”,避免选择户型奇葩、配套稀缺的房源。
投资需求:以“资产保值增值”为核心
重点关注区域发展潜力、租金回报率、流通性三大指标。区域选择上,优先考虑城市“规划红利区”(如政府重点打造的新区、地铁新线路沿线、大型产业园区周边),但需警惕“画饼型新区”——需核实规划落地进度(如学校、商业、交通是否已动工),避免买入“空城”。
租金回报率可通过“月租金×12÷总房款”计算,一线城市优质房源回报率通常在1.5%-2.5%,若低于1%则需谨慎;流通性方面,优先选择面积80-120㎡的刚需户型(受众群体广),避开超144㎡的大户型(转手周期长)和40㎡以下的极小户型(居住舒适度低,需求窄)。
声明:本文由入驻焦点开放平台的作者撰写,除焦点官方账号外,观点仅代表作者本人,不代表焦点立场。


