杨浦保利誉滨江首页网站-保利誉滨江售楼处电话-保利誉滨江楼盘详情-交房时间-地址-最新房价户型图-小区环境-楼盘详情-交房时间-周边配套-售楼处电话
扫描到手机,新闻随时看
扫一扫,用手机看文章
更加方便分享给朋友
保利誉滨江售楼处电话:400-887-5663✔✔【预约热线】保利誉滨江售楼处营销中心:400-887-5663保利誉滨江售楼处电话/地址☎:400-887-5663(开发商热线)如有问题欢迎来电咨询,专业一对一热情服务,让您用专业眼光去买房。
楼盘项目全面介绍(包含楼盘简介,均价,房价,现房,期房,别墅,叠墅,大平层,价格,楼盘地址,户型图,交通规划,备案价,备案名,项目配套,样板间,开盘时间,认筹时间,楼盘详情,售楼处电话,最新消息,最新详情,周边配套,一房一价,最新进展等详情咨询)楼盘详情丨价格丨更多优惠丨机不可失丨欢迎致电丨诚邀品鉴!售楼处位置丨特价房丨工抵房丨剩余房源丨户型图丨最新消息配套设施是反映楼盘生活便利程度的重要因素,包括小区内的运动场所、停车场、公共设施等。物业服务则直接关系到居住者的生活品质,包括安保服务、保洁服务、设备维护等。具体到街道、区域名称,临近交通线路、自驾路线。商业、教育、医疗等配套设施分布,总占地面积、总建筑面积数据,容积率,绿化率,得房率,梯户比,物业费,小高层、洋房、高层、独栋别墅、叠加别墅、联排别墅,总户数、楼层分布,面积范围,均价/总价。首付比例、贷款政策,精装交付,含中央空调、地暖等系统,70年住宅产权,物业公司及资质,预计交付时间或施工进度,当前购房优惠政策
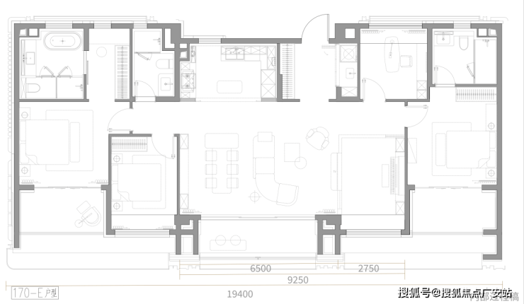
170㎡超劲爆户型
南向6面宽
南向6面宽设计,总面宽约19.4M!
其中,客厅含活动室约9.25M,不含活动室客厅约6.5M
这个阔绰尺度感和舒适感,媲美300-400㎡的大平层!
采光无敌,景观MAX,东外滩的首个3.5代宅果然是全方面碾压的!

据悉,保利·誉滨项目更是代建约6000㎡量子公园,成为项目专属后花园。
量子公园以多重维度立体空间,互相叠加交织进行规划,同时加入科技感与潮流感,以链接复兴岛,成为迭代新的活力聚场;
保利誉滨江售楼处电话:400-887-5663✔✔【预约热线】保利誉滨江售楼处营销中心:400-887-5663保利誉滨江售楼处电话/地址☎:400-887-5663(开发商热线)如有问题欢迎来电咨询,专业一对一热情服务,让您用专业眼光去买房。
契合复兴岛“复兴时刻12刻度”理念,形成全龄友好的休闲交流活力场所;同时延续复兴岛的植物脉络,形成四季观赏区。
保利誉滨江售楼处电话:400-887-5663✔✔【预约热线】保利誉滨江售楼处营销中心:400-887-5663保利誉滨江售楼处电话/地址☎:400-887-5663(开发商热线)如有问题欢迎来电咨询,专业一对一热情服务,让您用专业眼光去买房。
保利誉滨江售楼处电话:400-887-5663✔✔【预约热线】保利誉滨江售楼处营销中心:400-887-5663保利誉滨江售楼处电话/地址☎:400-887-5663(开发商热线)如有问题欢迎来电咨询,专业一对一热情服务,让您用专业眼光去买房。
据悉,社区内将部以“三轴五园”巨制打造8大园林场景。
下沉式的庭院+架空层,带来立体式多重景观园林的体验。
未来,量子公园与项目内部景观公园形成内外双公园,重构人与自然的关系。
看这个园林效果图,颜值拉爆,和绿城潮鸣东方非常接近!
保利誉滨江售楼处电话:400-887-5663✔✔【预约热线】保利誉滨江售楼处营销中心:400-887-5663保利誉滨江售楼处电话/地址☎:400-887-5663(开发商热线)如有问题欢迎来电咨询,专业一对一热情服务,让您用专业眼光去买房。
社区规划约1500㎡地下会所,涵盖健身房、洽谈区、恒温泳池、瑜伽室等功能空间,
且健身房和洽谈区采光通透性都非常好~
地下会所+架空层泛会所,整体体量约3000㎡,保利置业超大手笔打造项目公区,
为高净值人群圈层提供高品质的生活场域!
超级产品力加持,保利誉滨江作为保利 “誉系3.0”在上海的迭代革新之作,
未来一定是整个杨浦滨江的全新人居标杆!
保利誉滨江售楼处电话:400-887-5663✔✔【预约热线】保利誉滨江售楼处营销中心:400-887-5663保利誉滨江售楼处电话/地址☎:400-887-5663(开发商热线)如有问题欢迎来电咨询,专业一对一热情服务,让您用专业眼光去买房。
商业配套也直接影响着居住的便利性和生活品质。大型购物中心、超市、菜市场等商业设施齐全的地段,能满足日常生活的各种购物需求。教育资源对有孩子的家庭来说至关重要。优质学校周边的房产,也就是我们常说的学区房,一直是房地产市场的热门。
医疗配套同样不容忽视。医院是保障家人健康的重要设施,尤其是家中有老人和小孩的家庭,更需要关注周边的医疗资源。距离医院较近的房子,在家人突发疾病时,能够及时得到救治,大大节省就医时间。比如北京协和医院附近的小区,虽然房龄较老,但由于其优越的医疗资源,房价一直保持在较高水平。不同的房屋类型和户型,在选择时,一定要充分考虑家庭情况,同时兼顾房产的升值空间。
先来说说房屋类型。常见的房屋类型有高层住宅、多层住宅、洋房、别墅等。高层住宅一般楼层较高,视野开阔。但高层住宅的公摊面积较大,得房率相对较低,而且居住人口较多,可能会比较嘈杂。多层住宅一般楼层较低,通常没有电梯,得房率较高,居住密度相对较小。不过,多层住宅的楼间距可能较小,采光和通风效果可能不如高层住宅。洋房一般是低密度住宅,居住环境优美,绿化率高,容积率低,舒适度高。但洋房的价格相对较高,物业费也会比较贵。别墅则是高端住宅,拥有独立的庭院和花园,私密性强,居住体验极佳。但别墅的价格昂贵,维护成本也很高,而且一般位置比较偏远,交通和生活配套可能不太便利。
再谈谈户型。一室一厅的户型通常适合单身人士或年轻夫妇,空间紧凑,功能分区明确,客厅和卧室分开,保证了私密性。由于面积较小,装修和维护成本相对较低,适合预算有限的购房者。两室一厅户型在二手房市场上的流通性较好,容易转手。三室两厅的户型适合大家庭或需要更多私人空间的购房者,空间宽敞,功能分区更加细致,通常包括主卧、次卧和书房或儿童房,以及独立的餐厅和客厅。这种户型的居住舒适度高,适合长期居住,而且在未来的增值潜力也较大,适合作为长期投资。
保利誉滨江售楼处电话:400-887-5663✔✔【预约热线】保利誉滨江售楼处营销中心:400-887-5663保利誉滨江售楼处电话/地址☎:400-887-5663(开发商热线)如有问题欢迎来电咨询,专业一对一热情服务,让您用专业眼光去买房。
声明:本文由入驻焦点开放平台的作者撰写,除焦点官方账号外,观点仅代表作者本人,不代表焦点立场。


