首页:上海黄浦(上海壹号院)售楼处(上海壹号院)售楼处地址(上海壹号院)-房价_房型图_户型图_交通地铁_楼盘地址
扫描到手机,新闻随时看
扫一扫,用手机看文章
更加方便分享给朋友
黄埔上海壹号院.锦华里售楼处热线;4009665004(开发商统一电话)黄埔上海壹号院.锦华里售楼处电话;4009665004(预约看房热线)黄埔上海壹号院.锦华里咨询热线:4009665004(享限时高额返现)黄埔上海壹号院.锦华里【400-9665-004√√√24小时预约热线】黄埔上海壹号院.锦华里售楼处电话:400-9665004一对一黄埔上海壹号院.锦华里热情服务热线:400966-5004(了解最新优惠)黄埔上海壹号院.锦华里开盘时间优惠力度交付时间300万-500万新房怎么选?黄埔上海壹号院.锦华里更多优惠楼盘详情?黄埔上海壹号院.锦华里4009665004最新现状.户型图.属于什么档次?黄埔上海壹号院.锦华里4009665004为什么便宜?4009665004营销处
温馨提示:看房务必致电与销售确认时间,可获取新房特价房/工抵房,以及售楼部最新折扣优惠!
【壹号院·锦华里】
新天地之上
黄浦核心老城厢
全新烫金豪宅
250-900㎡海派庭院别墅
主力户型300-600㎡
2套样板间即将开放400㎡&590㎡
预计总价6000万+
首开38套
品质生活家庭的置业优选
重新定义主城芯的理想栖居标准
主城芯黄金地段,执掌繁华与静谧
上海壹号院·锦华里地处大新天地核心节点,既传承700年海派历史文化沉淀,同时链接历史与未来的黄金占位,见证百年繁华传奇永续。
上海壹号院位于中华路和复兴东路交汇处,属于老西门板块,西至木桥街、北孔家弄、吉祥弄,南至复兴东路、东至松雪街,北至方浜中路。

距离新天地直线距离约400米,作为蓝绿丝带规划上的关键节点,随着大新天地东进南拓战略逐步实施,通过水景、绿地和公共空间,串联新天地、豫园、外滩三大世界级商业版图。
未来,整个片区的商业规模将突破约28万方,商办总体量达到约150万方,商业配套、产业资源、生态规划的能级与量级得到新突破。预计未来围绕本地块约1.1平方公里内将吸引约7000个亿级家庭的聚集,成就上海乃至中国亿级家庭浓度最高的区域。
本案地处上海核心风貌区板块第二象限,约1km范围内有豫园、文庙、新天地等城市坐标,融汇东西文化,是上海最早集商贸、金融、文化于一体的政治、经济、文化中心。
作为上海中心城区12个历史文化风貌区之一,水系脉络润泽、华商名流与世家望族云集,街、巷、里、弄之间,蕴藏上海恒贵的人文记忆,其所代表的海派文化具有不可替代的独特性。
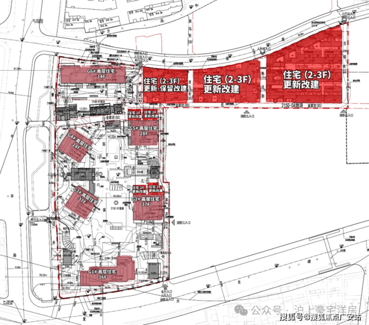
上海壹号院整体分为一期、二期开发,总占地面积约9.6万㎡,总建筑面积约43万㎡,住宅总可售面积约为22.8万㎡。由6栋14-37高层、151席联排及合院以及蓝绿丝带独栋商业组成。

项目产品类型包括海派高层/风貌联排合院/风貌商业:海派高层533套(建面约200-1000㎡,主力户型约300-400㎡);风貌联排合院151套(建面约250-1200㎡,主力户型约300-500㎡);风貌商业17套。

打造海派建筑百科全书
上海壹号院集萃中科院院士郑时龄、华东建筑设计研究院宿新宝等风貌专家团队以及gad蒋愈、CCD、无间等全球设计大师资源,历时10余年精耕细作。2023年未曾面世即受邀参加威尼斯双年展,以上海风貌保护的至高成就,代表中国向世界展示伟大城市风貌更新的成功典范。
坐落于荟萃海派先进建筑样式的“历史豪宅区”:这里毗邻中西文化的枢纽之地,建筑呈现中西文化融合、多元荟萃的风格,涵盖公馆、里弄的形态特征,糅合传统江南园邸、近代公馆等多元风格,呈现海纳百川的特点。
秉承以“最大化保留风貌肌理”为原则,在历史底纹之上打造新天地和风貌区里的当代上海故里。 通过保护修缮、保留改造、更新改建三大更新手法,萃取打造「江南园邸」「近代中西合璧」「近代装饰艺术」「现代主义」四大建筑风格,深度挖掘建筑基因,以专属建筑立面及设计语言,量身定制呈现 “一户一策” 的合院式居住体验。
萃取提纯地块原有海派建筑的符号,融合如山墙、卷草、拱门、窗花、雕花、门楣等百余个历史构件元素等,通过保留、转译等形式,实现海派符号的经典溯源,演绎每一栋建筑的风格和历史底色。
区别于市场上多数的行列式产品(统一制式排布),上海壹号院作为少有的大合院体系下的风貌庭院别墅区,原真保留了丰富的街巷生活肌理、多元化生活场景,以极具特色的建筑规划、景观庭院打造原汁原味的海派庭院生活。
契合中国传统院落居住哲学理念,以“外紧内松”空间设计手法,对风貌别墅空间尺度进行当代拓新,让空间服务于生活。外紧-通过外部百年巷道肌理活化、建筑错落排布景筑交融,打造美而精的体验;内松-宅院内以多重庭院、立体花园、大落地窗等实现室内尺度拓新,给家人更多停留空间、打造建筑会呼吸的松弛感。
呼应刻在国人骨子里的庭院情节,户型设计中创造性的加入多重、立体花园概念(多重开放空间如庭院/露台/阳台/采光井等),庭院层层为退、与露台相呼应,在平面和空间上创造出多层次亲近自然的可能。
在空间打造上,通过多重庭院及露台、地下室、阳台等多维空间,极大地拓展住宅的使用功能与体验。通过庭院、地下(采光井)、宅间(大面积玻璃窗、阳台、露台)等有机结合实现多重采光系统,最大化保障空间通透性、确保采光与通风,打造会呼吸的风貌墅。
在新天地这片土地之上,以极具稀缺的“独立门牌号”为建筑和宅院赋予独特的身份铭牌。以独立多重入户方式,注重归家仪式感打造和宅院私密性。多数合院除主入口外,次入口搭配庭院,出入口连接庭院,在丰富建筑空间层次的同时打造从“公共(街道)→ 半私密(庭院)→ 完全私密(室内)”的归家入户仪式感。
贯彻“中意西景、中正西融”景观理念,以中式花园隐居哲学核心,传承中式里弄记忆、融合西式花园情调。提取场地四种建筑和场域风格特征,营造中西风貌交叠的别墅花园景观,演绎当代海派风情里弄人居。
从城市界面到节点空间,由大到小打造“四重空间感受”,营造中西和鸣的感官体验。从华而美的城市道路、糅而谐的景观轴线,美而精的归家巷弄、雅而巧的节点空间,每一处场景皆实现私密与艺术的交融,感受城市繁华与归家宁静的交叠。
在内部景观的营造上,精心雕琢「藏幽望舒」、「暗香疏影」、「繁花浮动」 等多种绿化主题,实现了空间上的自然过渡,并通过多维度提取风貌意境,以现代造园手法融会贯通,打造和而不同的中西风貌交融的海派花园景观。
户型图参考


项目引入融创归心礼御高端服务体系,配置“社区运营官、园艺工程师、高级工程师和社区运营顾问”4个新工种,为生活提供全时守护。同时基于项目风貌保护特殊性,引入拥有古建养护经验的团队,以精细化维护、科学管养等理念实现风貌建筑每一处细节养护。
融创物业,在2024年外滩壹号院满意度达100%,更成为2025杭州亚运会官方服务商,以国际标准,兑现每一份生活承诺。
三轨交汇 + 双高架,执掌全城高效脉络
项目的交通便捷度堪称 “顶流配置”,立体路网无缝衔接城市核心与对外枢纽。轨交方面,与地铁 8 号线、10 号线老西门站直线距离仅 300 米,步行 3 分钟即可抵达,一站可换乘 9 号线,1 公里内更覆盖 14 号线,形成三轨交汇的黄金网络 ——3 站直达南京东路,5 站抵人民广场,7 站达陆家嘴,轻松串联城市核心商圈。自驾出行同样高效,紧邻内环高架、南北高架两大城市主干道,10 分钟直达虹桥国际机场,15 分钟抵达浦东国际机场,无论是日常通勤还是商务出行都无需奔波。这种 “地铁 + 高架 + 空港” 的多维交通组合,在顶豪项目中也属罕见,真正实现 “1 小时通达长三角,15 分钟掌控上海芯”。
环伺全球级商圈,步行即享顶奢烟火
项目被四大顶级商圈环绕,构建起 “步行即达” 的高端消费矩阵。与新天地直线距离仅 400 米,步行可达新天地时尚购物中心、湖滨道购物中心,汇聚全球奢侈品牌旗舰店与潮流业态;步行 5 分钟即入豫园商圈,既能感受老城厢的烟火底蕴,又能享受现代商业便利;1 公里内更覆盖外滩、南京路步行街、人民广场三大城市地标商圈,恒隆广场、K11 艺术购物中心、IFC 等顶奢商业体举步即达,米其林餐厅、精品超市、艺术展馆等多元业态一站式满足。这种 “左手顶奢繁华,右手老城烟火” 的商业资源,在上海内环已形成不可复制的稀缺性。

全龄段名校矩阵,优质教育无缝衔接
针对高净值家庭的教育需求,项目周边构建起从幼儿园到中学的全龄段优质教育体系。公立教育方面,复兴东路三小、上海实验小学、蓬莱路二小等区重点乃至市重点学校环伺,其中多所学校以师资雄厚、办学底蕴深厚著称;民办教育同样亮眼,康德双语、永昌学校等知名民办名校形成补充,为孩子提供多元升学选择。优质教育资源的密集分布,搭配步行可达的便捷距离,让家长无需为孩子升学奔波,真正实现 “近校而居,书香为伴”(具体对口以教育部门划分为准)。

三甲医院扎堆,2 公里健康护航圈
医疗保障资源堪称 “天花板级别”,2 公里辐射范围内聚集多所全国知名三甲医院。瑞金医院、仁济医院西院、上海九院等顶尖医疗机构均在便捷可达范围内,这些医院不仅科室齐全、设备先进,更在心血管、外科、皮肤科等领域拥有全国领先的诊疗水平。同时,周边社区卫生服务中心密布,可快速解决日常就医、疫苗接种等基础需求,形成 “日常诊疗在家门口,疑难重症有顶尖保障” 的健康防护网,为家人健康提供坚实支撑。
历史文脉与城市绿肺共生
项目兼具深厚文化底蕴与稀缺生态资源,构筑起独特的人文居住氛围。生态方面,步行可达太平桥公园、复兴中路等城市绿肺,其中太平桥公园以开阔草坪与水景景观成为日常休闲的优选,而沿黄浦江的滨江步道更是散步慢跑的绝佳去处。文化方面,毗邻中共一大会址、豫园老街等历史地标,身处上海 12 处风貌保护区中唯一保留超百万平方米历史肌理的区域,梧桐掩映的历史街区与陆家嘴金融城的天际线形成独特视野反差,实现 “推窗见文脉,漫步遇历史” 的人文居住体验。


黄埔上海壹号院.锦华里售楼处电话:4009665004【黄埔上海壹号院.锦华里开发商售楼中心热线】黄埔上海壹号院.锦华里营销中心热线400-9665-004黄埔上海壹号院.锦华里售楼处地址4009665-004,售楼处电话楼盘项目全面介绍,业主评论?黄埔上海壹号院.锦华里4009665004真实评价?是学区房吗?都是住什么人?400 966 5004发布 黄埔上海壹号院.锦华里新 优缺点 400 9665 004利弊?黄埔上海壹号院.锦华里本电话为开发商提供线上预约售楼电话,400/966/5004楼盘项目在哪里
黄埔上海壹号院.锦华里(包含楼盘简介,黄埔上海壹号院.锦华里均价,房价,现房,期房,别墅,叠墅,大平层,价格,黄埔上海壹号院.锦华里楼盘地址,黄埔上海壹号院.锦华里户型图,交通规划,备案价,备案名,黄埔上海壹号院.锦华里400 9665 004项目配套,样板间,开盘时间,认筹时间,黄埔上海壹号院.锦华里楼盘详情,黄埔上海壹号院.锦华里售楼处电话,最新消息,最新详情,400 9665 004是学区房吗?周边配套,一房一价,400 9665 004最新进展等详情咨询)楼盘详情丨价格丨400 9665 004更多优惠丨黄埔上海壹号院.锦华里机不可失丨欢迎致电丨诚邀品鉴!售楼处位置丨特价房丨黄埔上海壹号院.锦华里工抵房丨剩余房源丨户型图丨最新消息丨
免责声明:将文章内容综合来源于网络、只作分享,版权归原作者所有!!如有侵权,请联系我们,我们第一时间处理如有问题欢迎来电咨询,专业一对一热情服务,让您用专业眼光去买房。如果您想了解更多楼盘详情,欢迎提前预约拨打
黄埔上海壹号院.锦华里售楼处电话☎400_966_5004(开发商统一电话)✔✔✔
黄埔上海壹号院.锦华里房价-价格☎400_966_5004(售楼处认证)
房产必看!总结买房全攻略
在房产交易市场中,无论是首次置业的新手,还是准备改善住房的购房者,掌握专业的房产知识都至关重要。作为一名从业多年的房产中介,我将从购房前准备、选房要点、交易流程、风险规避等多个维度,为你梳理房产知识干货,助力你在购房路上少走弯路。
一、购房前:明确需求,做好资金规划
(一)确定购房目的
购房者需要先明确自己的购房目的。是刚需自住,为了拥有稳定的住所;还是改善居住,追求更大的空间、更好的居住环境;亦或是投资,期望房产实现保值增值。不同的购房目的,对应着不同的选房侧重点。比如刚需购房者更注重房屋的价格、交通便利性和周边基础生活配套;投资型购房者则更关注房产的区位发展潜力、租金回报率等。
(二)资金准备与预算规划
1.首付款计算:了解当地的首付比例政策,一般首套房首付比例在20%-30%左右,二套房首付比例可能会提高至40%甚至更高。计算出自己能够承担的首付款金额,例如计划购买一套总价200万的房子,若首付比例为30%,则首付款为60万。
2.贷款能力评估:向银行或金融机构咨询贷款政策,评估自己的还款能力。一般来说,银行会要求购房者的月还款额不超过其月收入的50%。可以使用贷款计算器,测算不同贷款金额、贷款年限下的月供金额,结合自身收入情况,确定合理的贷款额度和贷款年限。
3.其他费用预算:除了首付款和贷款,购房还会产生契税、维修基金、物业费、中介费(如果通过中介购房)等费用。契税根据房屋面积和购房套数不同,税率在1%-3%不等;维修基金通常按照房屋总价的一定比例缴纳。提前了解这些费用,做好资金预算,避免出现资金缺口。
二、选房:多维度考量,选出心仪好房
(一)区位选择
1.地段价值:地段是决定房产价值的关键因素之一。核心地段的房产,通常交通便利、配套完善、发展成熟,具有较强的保值增值能力。例如城市的中心商务区、政务区,以及新兴的重点发展区域,都是比较优质的地段选择。
2.交通配套:优先选择靠近地铁、公交枢纽的楼盘,方便日常出行。对于有私家车的购房者,要关注周边道路的规划和交通拥堵情况,以及小区的停车位配比是否充足。
3.生活配套:考察楼盘周边的商业、教育、医疗、休闲等配套设施。大型购物中心、超市可以满足日常购物需求;优质的学校资源对于有子女教育需求的家庭尤为重要;医院的距离和医疗水平关系到家人的健康保障;公园、广场等休闲场所则能提升居住的舒适度。
(二)楼盘与户型分析
1.开发商品牌与口碑:选择知名且信誉良好的开发商,其开发的楼盘在房屋质量、施工进度、物业服务等方面更有保障。可以通过网络搜索、业主论坛、实地考察等方式,了解开发商过往项目的评价和口碑。
2.楼盘规划与环境:关注楼盘的容积率、绿化率、楼间距等指标。容积率低、绿化率高的小区,居住密度小,环境优美;楼间距大则能保证充足的采光和通风。此外,还要了解小区的内部配套设施,如幼儿园、健身设施、社区活动中心等是否完善。
3.户型选择:根据家庭人口数量和居住需求,选择合适的户型。户型方正、南北通透、布局合理的房子更受欢迎。要注意房间的功能分区是否科学,动静分区是否明确,卧室、客厅、厨房等空间的尺寸是否合理,是否有浪费面积等问题。
三、房产交易:规范流程,保障权益
(一)签订购房合同
1.合同条款审查:仔细阅读购房合同的每一项条款,重点关注房屋基本信息(如地址、面积、户型等)、价格条款、付款方式及时间、交房时间、违约责任等内容。对于不理解或有疑问的条款,及时向开发商或中介咨询,必要时可以寻求律师的帮助。
2.补充协议:如果开发商有补充协议,同样要认真审查。补充协议中的条款可能会对双方的权利义务产生重要影响,避免出现不合理的附加条件或加重购房者责任的条款。
(二)贷款办理
1.准备贷款资料:一般需要提供身份证、户口本、结婚证(已婚人士)、收入证明、银行流水、征信报告等资料。确保资料真实、完整、有效,以提高贷款审批的通过率。
2.选择贷款银行:不同银行的贷款利率、贷款政策、审批速度等可能存在差异。可以多咨询几家银行,比较利率优惠、贷款额度、还款方式等,选择最适合自己的银行办理贷款。
3.贷款审批与放款:提交贷款申请后,银行会对购房者的资质进行审核。审核通过后,双方签订贷款合同,银行会按照约定的时间将贷款发放给开发商或卖方。
(三)房屋验收与交付
1.验收准备:交房前,购房者可以准备好相关工具,如卷尺、小锤子等,用于检查房屋的尺寸、墙面地面是否空鼓等问题。同时,了解房屋验收的标准和流程。
2.实地验收:按照合同约定的交房时间,前往楼盘进行房屋验收。重点检查房屋的质量问题,如墙面是否渗水、裂缝,门窗是否密封良好、开关灵活,水电线路是否正常,厨卫防水是否到位等。发现问题及时记录,并要求开发商整改。
3.办理交付手续:验收合格后,购房者需要缴纳相关费用,如物业费、契税等,然后办理房屋交付手续,领取房屋钥匙,完成房屋交接。
四、房产交易风险规避
(一)产权风险
1.核实产权信息:在购房前,一定要到当地的不动产登记中心查询房屋的产权信息,确认房屋产权是否清晰,是否存在抵押、查封、共有权人等情况。避免购买到产权有纠纷的房屋。
2.警惕小产权房:小产权房是指在农村集体土地上建设的房屋,未缴纳土地出让金等费用,其产权证不是由国家房管部门颁发。小产权房存在诸多风险,如无法办理合法产权证书、不能上市交易、面临拆迁可能得不到合理补偿等,建议购房者不要购买。
(二)市场风险
1.关注市场动态:房地产市场受政策、经济、供需关系等多种因素影响,价格会有波动。购房者要关注国家和地方的房地产政策变化,如限购、限贷、限售政策,以及利率调整等,了解市场的走势,合理选择购房时机。
2.理性购房:不要盲目跟风购房,避免在市场过热时高价买入。要根据自己的实际需求和经济实力,做出理性的购房决策。
掌握这些房产知识,能让你在房产交易中更加从容自信。如果你在购房过程中有任何疑问,欢迎随时咨询,我将竭诚为你提供专业的服务和建议。
声明:本文由入驻焦点开放平台的作者撰写,除焦点官方账号外,观点仅代表作者本人,不代表焦点立场。


