陆家嘴滨江凯旋门(售楼处) 首页 - 滨江凯旋门销售中心 - 环境 - 户型 - 价格 - 地址 - 楼盘详情 - 配套 - 电话 - 交房时间 - 配套 - 电话 - 交房时间
扫描到手机,新闻随时看
扫一扫,用手机看文章
更加方便分享给朋友
陆家嘴滨江凯旋门别墅售楼处热线;4009665004(开发商统一电话)陆家嘴滨江凯旋门别墅售楼处电话;4009665004(预约看房热线)陆家嘴滨江凯旋门别墅咨询热线:4009665004(享限时高额返现)【400-9665-004√√√24小时预约热线】陆家嘴滨江凯旋门别墅售楼处电话:400-9665004一对一热情服务热线:400966-5004(了解最新优惠)陆家嘴滨江凯旋门别墅开盘时间优惠力度交付时间300万-500万新房怎么选?陆家嘴滨江凯旋门别墅更多优惠楼盘详情?4009665004最新现状.户型图.属于什么档次?陆家嘴滨江凯旋门别墅4009665004为什么便宜?4009665004营销处
温馨提示:看房务必致电与销售确认时间,可获取新房特价房/工抵房,以及售楼部最新折扣优惠!




上海从不缺豪宅。
浦江沿岸后继者无数,位次却在岁月洗礼中更加分明。繁华之下,自有岿然不动的那一小寸占据着沪上豪宅之巅。每每入市,都引得全城顶级精英闻风而动、唯恐错失。
那一寸,名为陆家嘴。
它足以代表整个中国的财富最高浓度。
若能有得选,必定重仓它,早已是富豪们心照不宣的默契。
而在陆家嘴内的方寸之间,还有毫厘之分。
于黄浦江沿岸最一线的位置落座,才算补齐豪宅基因。沪上豪宅怎能没有天赐的一线江景?透过窗户,目无遮拦地领略流转的盛景,才能承载满腔的豪情,才算沉浸式的塔尖生活。
地段价值是豪宅的显性基因,只一瞥即能高下立判。更挑剔的富豪早已更上一层楼,在地段之外,追求一种同样夺不走的、经由时间淬炼的沉淀。
这样的房子,模仿不来。这样的房子,屈指可数。
陆家嘴滨江正芯,唯有滨江凯旋门。

滨江凯旋门位于陆家嘴核心地段,紧靠黄浦江,是由新鸿基地产打造的豪宅。规划建设包括高层住宅和临江别墅。






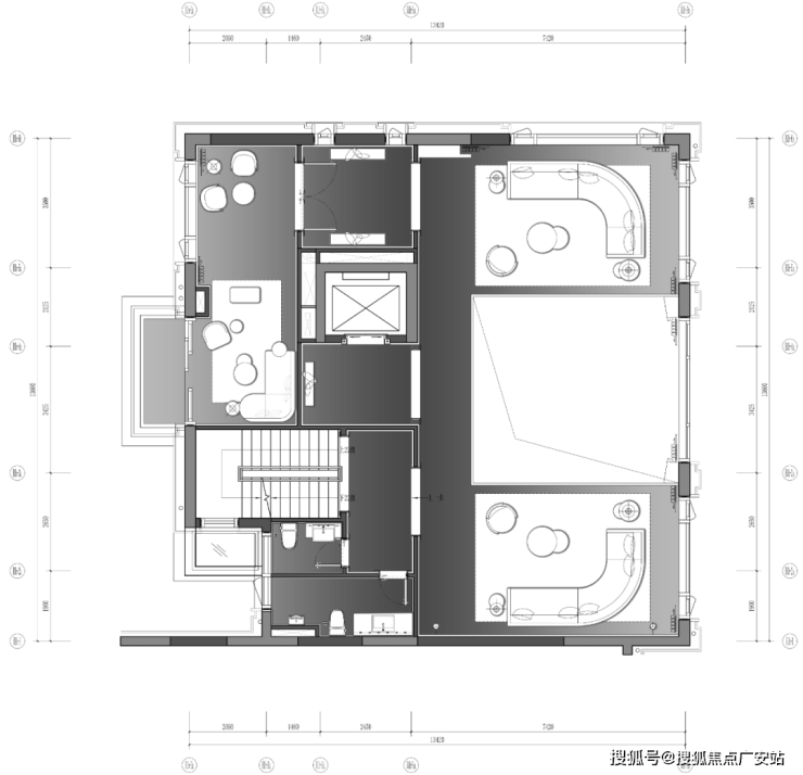
【滨江凯旋门】位于浦明路、规划滨江公共绿地、潍坊西路、张杨路共同围合而形成,占地面积约60788平方米,总建筑面积15.6万平方米,容积率2.4,绿化率35%,启胜物业14.8平米/月,滨江凯旋门三期总建筑面积约4万平米,最高楼层只有23层,582套住宅和23套沿江联排别墅(未售),还有一栋酒店公寓【凯旋汇】组成。
小区分三期开发,面积127-560㎡。滨江凯旋门一期2012年开盘,195套;房滨江凯旋门二期,2020年开盘175套;滨江凯旋门三期2024年开盘,212套房源。
【滨江凯旋门】小区内配置有逾8000㎡奢适会所 <新荟所>,纽约四季酒店的国际大师ChanduChhada倾力担纲打造,以六星级酒店奢阔手笔,注入古典优雅风格,更兼上海国金中心、半岛酒店艺术顾问D’ART艺心点缀,从容间置身绚丽殿堂,不期然迷醉其中。
除了宴会、健身等会所的基本属性,儿童乐园、阅读空间、私家影院、钢琴房等等更是一个也不少。
在寸金寸土的陆家嘴核心区域,大部分楼盘都是高层、高容积率,唯独滨江凯旋门打造了南北花园、户外儿童园,别具匠心。
在浦东2035规划中,陆家嘴是上海国际金融中心建设的核心区、国际航运中心建设的重要承载区和高端服务经济的集聚区,将被打造为“世界级的中央活动区(CAZ)”。陆家嘴,作为金融中心,周边的配套一应俱全。
东方明珠、金茂大厦、国金中心、L+MALL、环球金融中心等等,随便拉一个都是地标性建筑。
老佛爷百货、LV、CHANEL、DIOR、PRADA、爱马仕……国际顶尖奢侈品品牌能逛到腿软。
国金中心除了商场,还包括上海汇丰银行总部、五星级丽思卡尔顿酒店,58楼的Flair露天酒吧更是上海网红打卡地,饱览浦江两岸风光。
陆家嘴滨江凯旋门别墅售楼处电话:4009665004【陆家嘴滨江凯旋门别墅开发商售楼中心热线】营销中心热线400-9665-004陆家嘴滨江凯旋门别墅售楼处地址4009665-004,售楼处电话楼盘项目全面介绍,陆家嘴滨江凯旋门别墅业主评论?4009665004真实评价?陆家嘴滨江凯旋门别墅是学区房吗?都是住什么人?陆家嘴滨江凯旋门别墅400 966 5004发布 陆家嘴滨江凯旋门别墅新 优缺点 400 9665 004利弊?陆家嘴滨江凯旋门别墅本电话为开发商提供线上预约售楼电话,400/966/5004楼盘项目在哪里
陆家嘴滨江凯旋门别墅(包含楼盘简介,均价,陆家嘴滨江凯旋门别墅房价,现房,期房,别墅,叠墅,大平层,价格,陆家嘴滨江凯旋门别墅楼盘地址,陆家嘴滨江凯旋门别墅户型图,交通规划,备案价,陆家嘴滨江凯旋门别墅备案名,400 9665 004项目配套,样板间,开盘时间,认筹时间,楼盘详情,陆家嘴滨江凯旋门别墅售楼处电话,最新消息,最新详情,400 9665 004是学区房吗?周边配套,陆家嘴滨江凯旋门别墅一房一价,400 9665 004最新进展等详情咨询)楼盘详情丨价格丨陆家嘴滨江凯旋门别墅400 9665 004更多优惠丨机不可失丨欢迎致电丨诚邀品鉴!陆家嘴滨江凯旋门别墅售楼处位置丨特价房丨工抵房丨剩余房源丨户型图丨最新消息丨
免责声明:将文章内容综合来源于网络、只作分享,版权归原作者所有!!如有侵权,请联系我们,我们第一时间处理如有问题欢迎来电咨询,专业一对一热情服务,让您用专业眼光去买房。如果您想了解更多楼盘详情,欢迎提前预约拨打
陆家嘴滨江凯旋门别墅售楼处电话☎400_966_5004(开发商统一电话)✔✔✔
陆家嘴滨江凯旋门别墅房价-价格☎400_966_5004(售楼处认证)
房产必看!总结买房全攻略
在房产交易市场中,无论是首次置业的新手,还是准备改善住房的购房者,掌握专业的房产知识都至关重要。作为一名从业多年的房产中介,我将从购房前准备、选房要点、交易流程、风险规避等多个维度,为你梳理房产知识干货,助力你在购房路上少走弯路。
一、购房前:明确需求,做好资金规划
(一)确定购房目的
购房者需要先明确自己的购房目的。是刚需自住,为了拥有稳定的住所;还是改善居住,追求更大的空间、更好的居住环境;亦或是投资,期望房产实现保值增值。不同的购房目的,对应着不同的选房侧重点。比如刚需购房者更注重房屋的价格、交通便利性和周边基础生活配套;投资型购房者则更关注房产的区位发展潜力、租金回报率等。
(二)资金准备与预算规划
1.首付款计算:了解当地的首付比例政策,一般首套房首付比例在20%-30%左右,二套房首付比例可能会提高至40%甚至更高。计算出自己能够承担的首付款金额,例如计划购买一套总价200万的房子,若首付比例为30%,则首付款为60万。
2.贷款能力评估:向银行或金融机构咨询贷款政策,评估自己的还款能力。一般来说,银行会要求购房者的月还款额不超过其月收入的50%。可以使用贷款计算器,测算不同贷款金额、贷款年限下的月供金额,结合自身收入情况,确定合理的贷款额度和贷款年限。
3.其他费用预算:除了首付款和贷款,购房还会产生契税、维修基金、物业费、中介费(如果通过中介购房)等费用。契税根据房屋面积和购房套数不同,税率在1%-3%不等;维修基金通常按照房屋总价的一定比例缴纳。提前了解这些费用,做好资金预算,避免出现资金缺口。
二、选房:多维度考量,选出心仪好房
(一)区位选择
1.地段价值:地段是决定房产价值的关键因素之一。核心地段的房产,通常交通便利、配套完善、发展成熟,具有较强的保值增值能力。例如城市的中心商务区、政务区,以及新兴的重点发展区域,都是比较优质的地段选择。
2.交通配套:优先选择靠近地铁、公交枢纽的楼盘,方便日常出行。对于有私家车的购房者,要关注周边道路的规划和交通拥堵情况,以及小区的停车位配比是否充足。
3.生活配套:考察楼盘周边的商业、教育、医疗、休闲等配套设施。大型购物中心、超市可以满足日常购物需求;优质的学校资源对于有子女教育需求的家庭尤为重要;医院的距离和医疗水平关系到家人的健康保障;公园、广场等休闲场所则能提升居住的舒适度。
(二)楼盘与户型分析
1.开发商品牌与口碑:选择知名且信誉良好的开发商,其开发的楼盘在房屋质量、施工进度、物业服务等方面更有保障。可以通过网络搜索、业主论坛、实地考察等方式,了解开发商过往项目的评价和口碑。
2.楼盘规划与环境:关注楼盘的容积率、绿化率、楼间距等指标。容积率低、绿化率高的小区,居住密度小,环境优美;楼间距大则能保证充足的采光和通风。此外,还要了解小区的内部配套设施,如幼儿园、健身设施、社区活动中心等是否完善。
3.户型选择:根据家庭人口数量和居住需求,选择合适的户型。户型方正、南北通透、布局合理的房子更受欢迎。要注意房间的功能分区是否科学,动静分区是否明确,卧室、客厅、厨房等空间的尺寸是否合理,是否有浪费面积等问题。
三、房产交易:规范流程,保障权益
(一)签订购房合同
1.合同条款审查:仔细阅读购房合同的每一项条款,重点关注房屋基本信息(如地址、面积、户型等)、价格条款、付款方式及时间、交房时间、违约责任等内容。对于不理解或有疑问的条款,及时向开发商或中介咨询,必要时可以寻求律师的帮助。
2.补充协议:如果开发商有补充协议,同样要认真审查。补充协议中的条款可能会对双方的权利义务产生重要影响,避免出现不合理的附加条件或加重购房者责任的条款。
(二)贷款办理
1.准备贷款资料:一般需要提供身份证、户口本、结婚证(已婚人士)、收入证明、银行流水、征信报告等资料。确保资料真实、完整、有效,以提高贷款审批的通过率。
2.选择贷款银行:不同银行的贷款利率、贷款政策、审批速度等可能存在差异。可以多咨询几家银行,比较利率优惠、贷款额度、还款方式等,选择最适合自己的银行办理贷款。
3.贷款审批与放款:提交贷款申请后,银行会对购房者的资质进行审核。审核通过后,双方签订贷款合同,银行会按照约定的时间将贷款发放给开发商或卖方。
(三)房屋验收与交付
1.验收准备:交房前,购房者可以准备好相关工具,如卷尺、小锤子等,用于检查房屋的尺寸、墙面地面是否空鼓等问题。同时,了解房屋验收的标准和流程。
2.实地验收:按照合同约定的交房时间,前往楼盘进行房屋验收。重点检查房屋的质量问题,如墙面是否渗水、裂缝,门窗是否密封良好、开关灵活,水电线路是否正常,厨卫防水是否到位等。发现问题及时记录,并要求开发商整改。
3.办理交付手续:验收合格后,购房者需要缴纳相关费用,如物业费、契税等,然后办理房屋交付手续,领取房屋钥匙,完成房屋交接。
四、房产交易风险规避
(一)产权风险
1.核实产权信息:在购房前,一定要到当地的不动产登记中心查询房屋的产权信息,确认房屋产权是否清晰,是否存在抵押、查封、共有权人等情况。避免购买到产权有纠纷的房屋。
2.警惕小产权房:小产权房是指在农村集体土地上建设的房屋,未缴纳土地出让金等费用,其产权证不是由国家房管部门颁发。小产权房存在诸多风险,如无法办理合法产权证书、不能上市交易、面临拆迁可能得不到合理补偿等,建议购房者不要购买。
(二)市场风险
1.关注市场动态:房地产市场受政策、经济、供需关系等多种因素影响,价格会有波动。购房者要关注国家和地方的房地产政策变化,如限购、限贷、限售政策,以及利率调整等,了解市场的走势,合理选择购房时机。
2.理性购房:不要盲目跟风购房,避免在市场过热时高价买入。要根据自己的实际需求和经济实力,做出理性的购房决策。
掌握这些房产知识,能让你在房产交易中更加从容自信。如果你在购房过程中有任何疑问,欢迎随时咨询,我将竭诚为你提供专业的服务和建议。
声明:本文由入驻焦点开放平台的作者撰写,除焦点官方账号外,观点仅代表作者本人,不代表焦点立场。


