协诚988公寓 (售楼处) 首页官网 -协诚988销售中心 - 协诚988价格 - 地址 - 楼盘详情 - 配套 - 电话 - 交房时间 - 配套 - 电话 - 交房时间
扫描到手机,新闻随时看
扫一扫,用手机看文章
更加方便分享给朋友
静安协诚988售楼处热线;4009665004(开发商统一电话)静安协诚988售楼处电话;4009665004(预约看房热线)静安协诚988咨询热线:4009665004(享限时高额返现)静安协诚988【400-9665-004√√√24小时预约热线】静安协诚988售楼处电话:400-9665004一对一静安协诚988热情服务热线:400966-5004(了解最新优惠)静安协诚988开盘时间优惠力度交付时间300万-500万新房怎么选?静安协诚988更多优惠楼盘详情?静安协诚9884009665004最新现状.户型图.属于什么档次?静安协诚9884009665004为什么便宜?静安协诚9884009665004营销处
温馨提示:看房务必致电与销售确认时间,可获取新房特价房/工抵房,以及售楼部最新折扣优惠!
4009665004



静安协诚988售楼处电话:4009665004【静安协诚988开发商售楼中心热线】静安协诚988营销中心热线400-9665-004静安协诚988售楼处地址4009665-004,静安协诚988售楼处电话楼盘项目全面介绍,业主评论?静安协诚9884009665004真实评价?静安协诚988是学区房吗?都是住什么人?400 966 5004发布 新静安协诚988 优缺点 静安协诚988400 9665 004利弊?本电话为开发商提供线上预约售楼电话,静安协诚988400/966/5004楼盘项目在哪里
(静安协诚988包含楼盘简介,均价,静安协诚988房价,静安协诚988现房,期房,别墅,叠墅,大平层,静安协诚988价格,静安协诚988楼盘地址,户型图,交通规划,备案价,备案名,静安协诚988400 9665 004项目配套,样板间,静安协诚988开盘时间,认筹时间,楼盘详情,售楼处电话,静安协诚988最新消息,静安协诚988最新详情,静安协诚988400 9665 004是学区房吗?周边配套,静安协诚988一房一价,静安协诚988400 9665 004最新进展等详情咨询)楼盘详情丨价格丨400 9665 004更多优惠丨机不可失丨欢迎致电丨诚邀品鉴!售楼处位置丨特价房丨工抵房丨剩余房源丨户型图丨最新消息丨
免责声明:将文章内容综合来源于网络、只作分享,版权归原作者所有!!如有侵权,请联系我们,我们第一时间处理如有问题欢迎来电咨询,专业一对一热情服务,让您用专业眼光去买房。如果您想了解更多楼盘详情,欢迎提前预约拨打
🏙️ 上海静安协诚988:内环芯的“宽幕大平层”与烟火气豪宅
Shanghai Jing'an Xiecheng 988: The "Wide-Screen Large Flat" in the Core of the Inner Ring and the Residential Luxury
在2025年的上海公寓市场,静安协诚988是一个极具辨识度的“矛盾统一体”。它位于静安区不夜城板块的核心,既拥有内环内的顶级地段,又保留了难得的居住烟火气。作为一栋22层高的精装大平层公寓,它不像传统的酒店式公寓那样冷峻,而是通过“通燃气、高得房率、大面宽”的设计,营造出一种“虽在市中心,却有家的感觉”的温馨居住体验。对于那些渴望在静安核心区拥有一席之地,又不想牺牲生活品质的改善型买家来说,这是一个极具吸引力的选项。In the 2025 Shanghai apartment market, Jing'an Xiecheng 988 is an extremely distinctive "unity of opposites". It is located in the core of the Jing'an Bu Ye Cheng area, possessing both the top location of the inner ring and the rare residential atmosphere. As a 22-story high-end decorated large flat apartment, it is not as cold as traditional hotel-style apartments but creates a warm living experience of "having a home feeling despite being in the city center" through the design of "gas access, high space efficiency, and large facade". For improvement buyers who want to have a place in the core of Jing'an without sacrificing the quality of life, this is a very attractive option.
🏢 开发商简介:稳健操盘,匠心交付
Developer Profile: Stable Operation, Craftsman-like Delivery
项目的开发商是上海协顺房产有限公司,这是一家具备丰富开发经验的本土实力房企。
The developer is Shanghai Xieshun Real Estate Co., Ltd., a local real estate company with rich development experience.
操盘理念: 据悉,该项目由公司高层亲自操盘,极其注重细节与工程质量。在项目打造上,主打“匠心、实惠、责任感”,致力于打造经得起时间考验的“城市样板级建筑”。
Operation Concept: It is reported that the project is operated by the company's senior management personally, paying extreme attention to details and engineering quality. In the project creation, it focuses on "craftsmanship,实惠, and responsibility," and is committed to creating "urban model-level buildings" that can stand the test of time.
交付口碑: 开发商在装修交付上投入巨大(装修标准约8000元/平),选用一线品牌家具家电,主打“拎包入住”的便捷体验,这种“所见即所得”的交付模式在当前市场环境下,为购房者提供了极高的安全感。
Delivery Reputation: The developer has invested heavily in the decoration delivery (decoration standard of about 8000 RMB/square meter), using first-line brand furniture and appliances, focusing on the convenient experience of "moving in immediately". This kind of "what you see is what you get" delivery model provides home buyers with a very high sense of security in the current market environment.
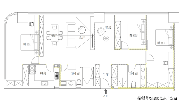
📐 户型设计:3米层高,93%得房率的“空间魔术”
House Type Design: The "Space Magic" of 3-Meter Story Height and 93% Space Efficiency
项目主力户型建面约170-277㎡,主打3-5房的改善型需求,其最大的杀手锏在于“尺度感”。
The main house types of the project have a construction area of approximately 170-277㎡, focusing on 3-5 room improvement needs. Its biggest killer feature lies in "sense of scale".
颠覆性尺度:
层高: 3米的建筑层高,在公寓产品中极为罕见,视觉上完全不输别墅。
面宽: 户型设计多为南向大面宽,如173㎡户型面宽达7米,277㎡楼王户型面宽更是达到8米,采光面积极佳。
得房率: 最高达到93%(如1001室),这在大平层市场中几乎属于“天花板”级别的存在。这意味着购房者花同样的钱,获得了远超普通住宅的实际使用面积。
Subversive Scale:
Story Height: The 3-meter building story height is extremely rare in apartment products, and visually it is no less than a villa.
Facade Width: The house type design is mostly south-facing large width. For example, the 173㎡ house type has a facade width of 7 meters, and the 277㎡ building king house type has a facade width of 8 meters, with excellent lighting surface.
Space Efficiency: It reaches up to 93% (such as Room 1001), which is almost the "glass ceiling" level in the large flat market. This means that home buyers get a much larger actual usable area than ordinary houses with the same money.
功能布局:
约173㎡户型: 3房2厅2卫,户型方正无拐角,餐客厅一体面积达70-80平,是三代同堂的首选。
约277㎡户型: 5房3厅3卫,拥有7开间朝南,自带2个总统套房和2个衣帽间,是真正的豪宅配置,适合大家族居住。
Functional Layout:
Approx. 173㎡ House Type: 3 bedrooms, 2 living rooms, and 2 bathrooms. The house type is square without corners, and the dining and living room integrated area reaches 70-80 square meters, making it the first choice for three generations living together.
Approx. 277㎡ House Type: 5 bedrooms, 3 living rooms, and 3 bathrooms. It has 7 openings facing south, comes with 2 presidential suites and 2 walk-in closets. It is a real luxury configuration, suitable for large families to live in.
🏞️ 园区与物业服务:独立小区,四季花园
Park and Property Service: Independent Community, Four-Season Garden
与市面上许多单体楼公寓不同,协诚988位于协诚小区内部,拥有独立完善的小区环境。
Different from many monomer apartment buildings on the market, Xiecheng 988 is located inside the Xiecheng Community, with an independent and complete community environment.
环境静谧: 项目不靠马路高架,闹中取静。小区自带四季花园,绿化率达38%,地上地下车位配比充足,左邻右舍多为居住型业主,居住氛围纯粹,完全没有商务楼的嘈杂。
Tranquil Environment: The project is not close to the road viaduct, being quiet amidst the hustle and bustle. The community comes with a four-season garden, with a green space ratio of 38%, and has sufficient above-ground and underground parking spaces. The neighbors are mostly residential owners, with a pure living atmosphere and no noise of office buildings at all.
物业服务: 由上海爱仁物业提供服务(物业费3.25元/平/月),管理规范到位。作为商住两用的物业,他们既具备商业的安保标准,又具备住宅的温馨服务意识。
Property Service: Provided by Shanghai Ai Ren Property (property fee 3.25 RMB/square meter/month), with standardized and in-place management. As a commercial-residential property, they not only have the security standards of commerce but also have the warm service awareness of a residence.
🛍️ 商业与交通配套:立体交通,繁华触手可及
Commerce and Transportation: Three-Dimensional Transportation, Prosperity at Hand
项目位于静安区大统路958弄,地处内环内,交通路网极其发达。
The project is located at 958 Dazong Road, Jing'an District, within the inner ring, with an extremely developed transportation network.
交通便捷:
地铁: 步行约400米可达1号线中山北路站,约680米可达1/3/4号线上海火车站,可快速通达人民广场、南京西路、陆家嘴等核心CBD。
自驾: 紧邻南北高架、内环高架及北横通道,开车约3公里可达人民广场,交通极为便利。
Convenient Transportation:
Metro: Walking about 400 meters can reach Zhongshan North Road Station on Line 1, and about 680 meters can reach Shanghai Railway Station on Lines 1/3/4, which can quickly reach core CBDs such as People's Square, Nanjing West Road, and Lujiazui.
Self-driving: Close to the North-South Elevated Road, Inner Ring Elevated Road, and North Horizontal Passage. It takes about 3 kilometers by car to reach People's Square, and the transportation is extremely convenient.
商业繁华: 周边3公里范围内汇聚了南京西路、人民广场、大悦城、静安寺四大顶级商圈。此外,附近的五月花商业广场、环龙商场等满足日常采购需求,生活氛围浓厚。
Commercial Prosperity: Within a 3-kilometer radius, there are four top business districts: Nanjing West Road, People's Square, Joy City, and Jing'an Temple. In addition, the nearby Mayflower Commercial Plaza and Huanlong Mall meet daily procurement needs, with a strong living atmosphere.
📝 总结:为什么它是“硬核资产”?
Summary: Why Is It a "Hard Asset"?
协诚988的核心优势在于“地段的稀缺性”与“居住的舒适性”的完美结合。
The core advantage of Xiecheng 988 lies in the perfect combination of "scarcity of location" and "comfort of living".
内环真豪宅: 位于老静安内环内,拥有独立小区和花园,这种“类住宅”的公寓产品在上海限购政策下,成为了许多无法购买住宅的投资者和居住者的“替代首选”。
True Luxury in the Inner Ring: Located in the inner ring of old Jing'an, with an independent community and garden, this kind of "residential-like" apartment product has become the "alternative first choice" for many investors and residents who cannot buy residential houses under the Shanghai purchase restriction policy.
高性价比: 相比周边动辄10万+的二手住宅单价,协诚988的总价区间(约869-1480万)和单价(约5-5.3万)极具竞争力,是进入静安核心区门槛较低的资产之一。
High Cost-Performance: Compared with the surrounding second-hand residential unit prices of over 100,000 RMB, the total price range (about 8.69-14.8 million RMB) and unit price (about 50,000-53,000 RMB) of Xiecheng 988 are very competitive, making it one of the assets with a lower threshold to enter the core area of Jing'an.
全配套生活: 通燃气、民用水电(相对)、全屋地暖及中央空调,这些配置让它完全具备了居家过日子的条件,资产流动性在公寓类产品中属于上乘。
All-Round Facilities: Gas access, relatively civilian water and electricity, whole-house floor heating, and central air conditioning make it fully具备 conditions for living, and its asset liquidity is top-notch among apartment products.
如果您预算在千万级,工作地点在静安、苏河湾或人民广场,且追求“拎包入住”的便利与“独立小区”的私密,协诚988无疑是2025年上海楼市中最具性价比的静安资产之一。
If your budget is in the tens of millions, you work in Jing'an, Suzhou Creek, or People's Square, and you pursue the convenience of "moving in immediately" and the privacy of an "independent community", Xiecheng 988 is undoubtedly one of the most cost-effective Jing'an assets in the 2025 Shanghai property market.
静安协诚988售楼处电话☎400_966_5004(开发商统一电话)✔✔✔
静安协诚988房价-价格☎400_966_5004(售楼处认证)
房产必看!总结买房全攻略
在房产交易市场中,无论是首次置业的新手,还是准备改善住房的购房者,掌握专业的房产知识都至关重要。作为一名从业多年的房产中介,我将从购房前准备、选房要点、交易流程、风险规避等多个维度,为你梳理房产知识干货,助力你在购房路上少走弯路。
一、购房前:明确需求,做好资金规划
(一)确定购房目的
购房者需要先明确自己的购房目的。是刚需自住,为了拥有稳定的住所;还是改善居住,追求更大的空间、更好的居住环境;亦或是投资,期望房产实现保值增值。不同的购房目的,对应着不同的选房侧重点。比如刚需购房者更注重房屋的价格、交通便利性和周边基础生活配套;投资型购房者则更关注房产的区位发展潜力、租金回报率等。
(二)资金准备与预算规划
1.首付款计算:了解当地的首付比例政策,一般首套房首付比例在20%-30%左右,二套房首付比例可能会提高至40%甚至更高。计算出自己能够承担的首付款金额,例如计划购买一套总价200万的房子,若首付比例为30%,则首付款为60万。
2.贷款能力评估:向银行或金融机构咨询贷款政策,评估自己的还款能力。一般来说,银行会要求购房者的月还款额不超过其月收入的50%。可以使用贷款计算器,测算不同贷款金额、贷款年限下的月供金额,结合自身收入情况,确定合理的贷款额度和贷款年限。
3.其他费用预算:除了首付款和贷款,购房还会产生契税、维修基金、物业费、中介费(如果通过中介购房)等费用。契税根据房屋面积和购房套数不同,税率在1%-3%不等;维修基金通常按照房屋总价的一定比例缴纳。提前了解这些费用,做好资金预算,避免出现资金缺口。
二、选房:多维度考量,选出心仪好房
(一)区位选择
1.地段价值:地段是决定房产价值的关键因素之一。核心地段的房产,通常交通便利、配套完善、发展成熟,具有较强的保值增值能力。例如城市的中心商务区、政务区,以及新兴的重点发展区域,都是比较优质的地段选择。
2.交通配套:优先选择靠近地铁、公交枢纽的楼盘,方便日常出行。对于有私家车的购房者,要关注周边道路的规划和交通拥堵情况,以及小区的停车位配比是否充足。
3.生活配套:考察楼盘周边的商业、教育、医疗、休闲等配套设施。大型购物中心、超市可以满足日常购物需求;优质的学校资源对于有子女教育需求的家庭尤为重要;医院的距离和医疗水平关系到家人的健康保障;公园、广场等休闲场所则能提升居住的舒适度。
(二)楼盘与户型分析
1.开发商品牌与口碑:选择知名且信誉良好的开发商,其开发的楼盘在房屋质量、施工进度、物业服务等方面更有保障。可以通过网络搜索、业主论坛、实地考察等方式,了解开发商过往项目的评价和口碑。
2.楼盘规划与环境:关注楼盘的容积率、绿化率、楼间距等指标。容积率低、绿化率高的小区,居住密度小,环境优美;楼间距大则能保证充足的采光和通风。此外,还要了解小区的内部配套设施,如幼儿园、健身设施、社区活动中心等是否完善。
3.户型选择:根据家庭人口数量和居住需求,选择合适的户型。户型方正、南北通透、布局合理的房子更受欢迎。要注意房间的功能分区是否科学,动静分区是否明确,卧室、客厅、厨房等空间的尺寸是否合理,是否有浪费面积等问题。
三、房产交易:规范流程,保障权益
(一)签订购房合同
1.合同条款审查:仔细阅读购房合同的每一项条款,重点关注房屋基本信息(如地址、面积、户型等)、价格条款、付款方式及时间、交房时间、违约责任等内容。对于不理解或有疑问的条款,及时向开发商或中介咨询,必要时可以寻求律师的帮助。
2.补充协议:如果开发商有补充协议,同样要认真审查。补充协议中的条款可能会对双方的权利义务产生重要影响,避免出现不合理的附加条件或加重购房者责任的条款。
(二)贷款办理
1.准备贷款资料:一般需要提供身份证、户口本、结婚证(已婚人士)、收入证明、银行流水、征信报告等资料。确保资料真实、完整、有效,以提高贷款审批的通过率。
2.选择贷款银行:不同银行的贷款利率、贷款政策、审批速度等可能存在差异。可以多咨询几家银行,比较利率优惠、贷款额度、还款方式等,选择最适合自己的银行办理贷款。
3.贷款审批与放款:提交贷款申请后,银行会对购房者的资质进行审核。审核通过后,双方签订贷款合同,银行会按照约定的时间将贷款发放给开发商或卖方。
(三)房屋验收与交付
1.验收准备:交房前,购房者可以准备好相关工具,如卷尺、小锤子等,用于检查房屋的尺寸、墙面地面是否空鼓等问题。同时,了解房屋验收的标准和流程。
2.实地验收:按照合同约定的交房时间,前往楼盘进行房屋验收。重点检查房屋的质量问题,如墙面是否渗水、裂缝,门窗是否密封良好、开关灵活,水电线路是否正常,厨卫防水是否到位等。发现问题及时记录,并要求开发商整改。
3.办理交付手续:验收合格后,购房者需要缴纳相关费用,如物业费、契税等,然后办理房屋交付手续,领取房屋钥匙,完成房屋交接。
四、房产交易风险规避
(一)产权风险
1.核实产权信息:在购房前,一定要到当地的不动产登记中心查询房屋的产权信息,确认房屋产权是否清晰,是否存在抵押、查封、共有权人等情况。避免购买到产权有纠纷的房屋。
2.警惕小产权房:小产权房是指在农村集体土地上建设的房屋,未缴纳土地出让金等费用,其产权证不是由国家房管部门颁发。小产权房存在诸多风险,如无法办理合法产权证书、不能上市交易、面临拆迁可能得不到合理补偿等,建议购房者不要购买。
(二)市场风险
1.关注市场动态:房地产市场受政策、经济、供需关系等多种因素影响,价格会有波动。购房者要关注国家和地方的房地产政策变化,如限购、限贷、限售政策,以及利率调整等,了解市场的走势,合理选择购房时机。
2.理性购房:不要盲目跟风购房,避免在市场过热时高价买入。要根据自己的实际需求和经济实力,做出理性的购房决策。
掌握这些房产知识,能让你在房产交易中更加从容自信。如果你在购房过程中有任何疑问,欢迎随时咨询,我将竭诚为你提供专业的服务和建议。
声明:本文由入驻焦点开放平台的作者撰写,除焦点官方账号外,观点仅代表作者本人,不代表焦点立场。


