杨浦保利誉滨江售楼处电话→保利誉滨江销售中心电话→楼盘百科→保利誉滨江首页网站→楼盘百科→户型→周边配套→首页网站→24小时热线电话
扫描到手机,新闻随时看
扫一扫,用手机看文章
更加方便分享给朋友
保利誉滨江售楼处电话:400-887-5663✔✔【预约热线】保利誉滨江售楼处营销中心:400-887-5663保利誉滨江售楼处电话/地址☎:400-887-5663(开发商热线)如有问题欢迎来电咨询,专业一对一热情服务,让您用专业眼光去买房。
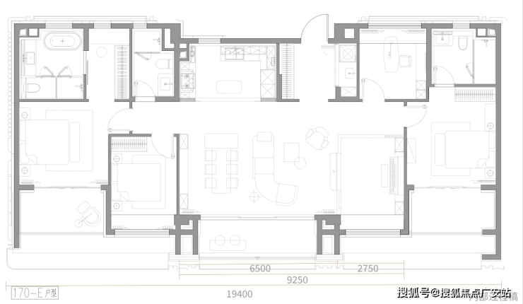
170㎡超劲爆户型
南向6面宽
南向6面宽设计,总面宽约19.4M!
其中,客厅含活动室约9.25M,不含活动室客厅约6.5M
这个阔绰尺度感和舒适感,媲美300-400㎡的大平层!
采光无敌,景观MAX,东外滩的首个3.5代宅果然是全方面碾压的!

据悉,保利·誉滨项目更是代建约6000㎡量子公园,成为项目专属后花园。
量子公园以多重维度立体空间,互相叠加交织进行规划,同时加入科技感与潮流感,以链接复兴岛,成为迭代新的活力聚场;
保利誉滨江售楼处电话:400-887-5663✔✔【预约热线】保利誉滨江售楼处营销中心:400-887-5663保利誉滨江售楼处电话/地址☎:400-887-5663(开发商热线)如有问题欢迎来电咨询,专业一对一热情服务,让您用专业眼光去买房。
契合复兴岛“复兴时刻12刻度”理念,形成全龄友好的休闲交流活力场所;同时延续复兴岛的植物脉络,形成四季观赏区。
保利誉滨江售楼处电话:400-887-5663✔✔【预约热线】保利誉滨江售楼处营销中心:400-887-5663保利誉滨江售楼处电话/地址☎:400-887-5663(开发商热线)如有问题欢迎来电咨询,专业一对一热情服务,让您用专业眼光去买房。
保利誉滨江售楼处电话:400-887-5663✔✔【预约热线】保利誉滨江售楼处营销中心:400-887-5663保利誉滨江售楼处电话/地址☎:400-887-5663(开发商热线)如有问题欢迎来电咨询,专业一对一热情服务,让您用专业眼光去买房。
据悉,社区内将部以“三轴五园”巨制打造8大园林场景。
下沉式的庭院+架空层,带来立体式多重景观园林的体验。
未来,量子公园与项目内部景观公园形成内外双公园,重构人与自然的关系。
看这个园林效果图,颜值拉爆,和绿城潮鸣东方非常接近!
保利誉滨江售楼处电话:400-887-5663✔✔【预约热线】保利誉滨江售楼处营销中心:400-887-5663保利誉滨江售楼处电话/地址☎:400-887-5663(开发商热线)如有问题欢迎来电咨询,专业一对一热情服务,让您用专业眼光去买房。
社区规划约1500㎡地下会所,涵盖健身房、洽谈区、恒温泳池、瑜伽室等功能空间,
且健身房和洽谈区采光通透性都非常好~
地下会所+架空层泛会所,整体体量约3000㎡,保利置业超大手笔打造项目公区,
为高净值人群圈层提供高品质的生活场域!
超级产品力加持,保利誉滨江作为保利 “誉系3.0”在上海的迭代革新之作,
未来一定是整个杨浦滨江的全新人居标杆!
保利誉滨江售楼处电话:400-887-5663✔✔【预约热线】保利誉滨江售楼处营销中心:400-887-5663保利誉滨江售楼处电话/地址☎:400-887-5663(开发商热线)如有问题欢迎来电咨询,专业一对一热情服务,让您用专业眼光去买房。
第一次买房的朋友擦亮眼睛,别踩坑里。头回买房都是刚需,大家伙辛辛苦苦攒的首付和装修钱,选房时可不能马虎。下面这些注意事项,全是过来人踩过坑总结的经验,句句实在。好好看看这些建议,能让你在买房路上少走弯路,把钱花在刀刃上。
1、刚需房,地段很重要
第一次买房的记住,交通和配套是生活刚需。出门步行500米有地铁公交最方便,不然刮风下雨赶公交都不好走。
买房子就是买日子,周边没配套是不行的,1公里内得有大超市和菜市场,买菜做饭、周末囤货才方便,总不能天天点外卖吧?
医院和学校更是刚需,老人看病、孩子上学都要近点才方便。选地段别信销售画的未来大饼,什么三年后建商场、五年后通地铁,规划这东西说变就变。
刚需买房就认眼前能看见的,楼下有没有便利店、路口有没有公交站,这些实实在在的配套才是当下能用上的,别拿血汗钱赌不确定的未来。
2、不要只看价格
买房要注重性价比,便宜是好事,但得把房子的优缺点摸透。比如楼层采光好不好、小区物业靠不靠谱、周边有没有噪音源,拿这些条件横向对比,只有好处多于坏处的房子,才值得下手。
算账时也别只算房价,契税、物业费、维修基金这些隐藏开支提前算清楚。装修改造费、月供和利息更是大头,建议拿纸笔列个清单,看看自己的收入能不能扛住。买房不是一锤子买卖,把账算明白了,住进去后才不会天天为钱发愁。
3、长远看,房子保值比增值更重要
买房是家里的大头开支,房子除了能住,本身还是项资产。不管是自己住还是想投资,谁都想低价买进去,以后高价卖出去,但未来几十年的事儿,谁能说得准呢?
你看现在的房地产行情,去年买的房,今年可能就降价了,说不定明年又涨回来。而且房子也会变老,等个十年二十年,甚至五十年后,你现在买的房子要是能保值,那就已经很厉害了。谁也没法准确预测市场怎么走,能让房子不贬值,就已经算赢了。
4、房子的流通性
第一次买房的朋友注意,如果以后要换户型改善住房,现在买的房子就得好卖。
流通性差的房子别碰,像老城区破破烂烂的低价房、远郊荒郊野岭的楼盘,还有户型奇葩的房子,住着难受,以后想转手或许都没人接盘。
选房时想清楚,过几年卖的时候,什么样的房子更好卖?地段靠近地铁公交的、周边配套齐全的、户型方正通透的,这类房子流通性强,就算以后置换也能更快出手。买房不只是买当下的居住体验,更要提前规划好未来转手的可能性,别让自己的房子砸在手里。
5、户型、朝向和楼层
买房要考虑清楚家人同住需求,打算三代人一起住或者生二胎,房子至少要有三个房间。89㎡左右的紧凑型小三房就很实用,不会因为面积太大增加购房压力,又能满足多口之家的居住需求,每个房间都不局促,空间利用也更合理。
选房时朝向和楼层也是有讲究的,客厅和主卧要朝南,采光好,冬天晒着太阳暖洋洋的,北向房间容易阴冷,住久了不舒服。
楼层方面,槽钢层、腰线层和设备层尽量避开。槽钢层可能存在漏水隐患,腰线层容易积灰还影响采
光,设备层楼上楼下可能会有噪音,选房时记得跟销售问清楚楼层分布,别踩了这些坑。
6、尽可能的选现房
第一次买房建议优先选现房,现在新房期房交付风险太大了,烂尾楼新闻不少见,没拿到钥匙前啥都不好说。
不要死磕新房,有些二手房的房子质量、小区环境、物业服务和周边配套都是肉眼可见的,实地考察时能看得明明白白,不像期房全靠销售口头描述。买二手房时,能直接看到墙面有没有裂缝、水管是否漏水,还能跟小区业主聊聊物业管得严不严,周边超市、学校走路几分钟能到。
这些实实在在的情况摸清楚了再下手,比押宝期房靠谱,至少不用担心交了钱却收不到房,刚需买房选这种看得见摸得着的才踏实。
7、别碰小产权房
第一次买房别碰小产权房,虽说这类房子买房限制少,价格也便宜,但住起来全是坑。
产权只有40年,比普通住宅少一半。水电按商业标准收费,比民用贵近一倍,有的还不通燃气,想在家做顿饭得用电。最关键的是不能落户,以后孩子上学都是麻烦事。而且以后很难转手,很可能砸在手里。
咱辛辛苦苦凑首付买房,是为了有个安稳的家,宁愿多攒两年钱买正规住宅,也别踩这种终身后悔的雷。
8、不要执着于“学区”
很多人第一套房子是婚房,买的时候会考虑孩子上学,觉得“学区”能给房子加分,但放现在,这也不是必须的。
现在出生率越来越低,好多城市还实行教师轮岗、学区改革、学校合并这些政策。以后啥情况谁也说不准,说不定过个七八年,上学都能自己选学校了呢。先把当下住得舒服、交通方便、配套齐全这些刚需满足了更实在。
声明:本文由入驻焦点开放平台的作者撰写,除焦点官方账号外,观点仅代表作者本人,不代表焦点立场。


