江湾鸿玺(售楼处)首页网站-2025江湾鸿玺营销中心(售楼处中心)江湾鸿玺小区欢迎您-周边环境-户型-价格-地址-楼盘详情-户型配套-售楼处电话-交房时间
扫描到手机,新闻随时看
扫一扫,用手机看文章
更加方便分享给朋友
宝山高境板块高境欣苑二期定名「江湾鸿玺」推出建面约200㎡大平层仅32套,即将入市!
上海宝山「江湾鸿玺」开发商售楼处电话400-8657-114
如有问题欢迎来电咨询,来电即可享受买房优惠!预约来电尊享购房优惠,可预约案场内部销售人员,官方营销中心400-8657-114✔✔✔专业一对一热情服务,让您用专业眼光去买房

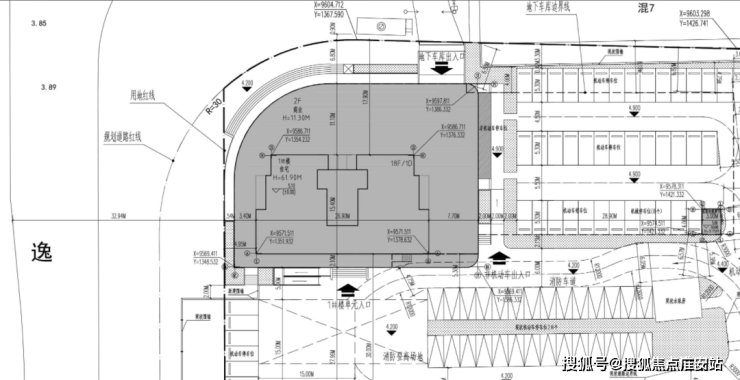
户型图如下:(仅供参考,最终以实际为准)建面约200m²4房户型
高境板块作为宝山近市中心的板块,一直以来缺乏新房,目前该项目是高境乃至整个宝山标杆,该项目位于殷高路逸仙路路口。




混乱的涂鸦打破了常规的束缚,让简约兼具了更多的力量感。


私密场域依旧保持静谧,黑白色基础上搭配了更多的色彩,例如深棕、浅紫等,艺术品的衬托深邃迷人,热络了家的氛围。




整个空间以静、雅、柔传达着家的精气神儿,黑白的交错,棱角的柔和,都是家的本色,都是极简的象征。

混乱的涂鸦打破了常规的束缚,让简约兼具了更多的力量感。


私密场域依旧保持静谧,黑白色基础上搭配了更多的色彩,例如深棕、浅紫等,艺术品的衬托深邃迷人,热络了家的氛围。




整个空间以静、雅、柔传达着家的精气神儿,黑白的交错,棱角的柔和,都是家的本色,都是极简的象征。


根据规划,这栋楼共18层,估计2梯2户,据悉首层为商业配置,将来可能引进运动健身、休闲会馆、便利商超等。还有两套自持,所以可售为32套,户型为建面约200㎡大平层。

项目就在3号线殷高西路地铁口,一路直达虹口足球场、鲁迅公园,换乘去市中心很方便。此外东面直线约1公里处有18号线殷高路站。自驾的话,逸仙路高架上下匝道就在小区门口,往东南西北出行都非常方便。

项目西侧就是一个商场,吃喝玩乐都能满足,另外殷高西路上还有永辉、长江国际、景瑞生活广场等,生活很方便。
项目就一栋楼,与2000年左右建设的高境欣苑在一个大社区,目前链家上高境欣苑挂牌价为5.8-6万/㎡。

上海宝山「江湾鸿玺」开发商售楼处电话400-8657-114
房产知识
1、土地产权年限:商品住宅为70年,公寓、LOFT等多为40年或50年。
2、房屋性质:公寓、LOFT等主要为商业性质,水电均为商业,一般不通燃气、暖气。
3、普通住宅:是指按一般民用住宅标准造的居住用住宅,高级公寓、别墅、度假村等不属于普通住宅的范畴。
4、商住住宅:是SOHO(居家办公)住宅观念的一种延伸,它属于住宅,但同时又融入写字楼的诸多硬件设施,尤其是网络功能的发达,使居住者在居住同时又能从事商业活动的住宅形式。
5、购买条件:商品住宅会有较多限制条件,户口、社保、纳税证明等;公寓、LOFT一般不需要,基本上不在限购范围。
6、付款条件:商品住宅首套较低首付比例为总价的20%--30%,且非首套房的首付比例更高,按揭年限最长可达30年;公寓、LOFT等没有首套和非首套之分,首付比例一般为总价的50%,按揭年限最长为10年。
7、现房:指开发商已办妥房地产权证(大产证)的商品房,与消费者签订商品房买卖合同后,立即可以办理入住并取得。只有拥有房产证和土地使用证才能称之为现房。通常意义上的现房是指项目已经竣工可以入住的房屋。
8、准现房:指房屋主体已基本封顶完工但未竣工验收,小区内的楼宇及设施的大致轮廓已初现,房型、楼间距等重要因素已经一目了然,工程正处在内外墙装修和进行配套施工阶段的房屋。(但是这种房产的性质仍然属于期房,政府按照期房进行管理,必须办理商品房销售许可证才能销售。)
9、期房:指在建的、尚未完成建设的、不能交付使用的房屋。即指开发商从取得许可证开始至取得房地产权证(大产证)为止,在这一期间的商品房称为期房,消费者在这一阶段购买商品房时应签预售合同。目前市面上销售的新房基本上都是期房。一般情况下,期房的价格较低,挑选余地较大,但由于是先付款后交房,因此消费的过程和结果要依赖于购房合同约定的权利义务的履行,而购房合同的履行,不仅受开发商自身经营的影响,还受到许多客观因素的制约。
10、毛坯房:房地产商交付屋内只有门框没有门,墙面地面仅做基础处理而未做表面处理的房叫毛坯房。
11、成品房:是指对墙面、天花、门套、地板实行装修。
(1) 内墙面为普通仿瓷涂料
(2) 客厅楼地板为普通瓷砖
(3) 普通铝合金窗
(4) 普通胶合板门
12、民用建筑高度与层数,根据《住宅设计规范》划分为:1-3层为低层住宅,产品主要为独栋别墅、双拼别墅、联排别墅等。4-6层为多层住宅,产品主要为叠拼别墅、花园洋房(有的有大平层概念)等。7-10层为中高层住宅(也叫小高层),很多城市广义上将18层以下的住宅也称之为小高层。11-30层左右为高层;30层以上为超高层。小高层及高层一般为普通住宅,超高层一般为城市豪宅
13、保障性住房:指政府为住房困难家庭所提供的限定标准、限定价格或租金的住房,一般由廉租住房、经济适用住房、政策性租赁住房和定向安置房等构成。这种类型的住房有别于完全由市场形成价格的商品房。经济适用房在满足一定条件的情况下可以转变为商品住宅。
14、房地产”五证“:《建设用地规划许可证》、《建设工程规划许可证》、《建筑工程施工许可证》、《国有土地使用证》和《商品房预售许可证》。开发商再取得五证之前,是不允许销售的,一般会有认购行为(一种是在开发商未拿到预售证,而向购房者预约房源,待拿到预售证正式销售时正式成交。即在没有正式的销售许可的情况下,开发商与购房者达成购买协议。也叫认筹、预约、预定。)
15、房地产“二书”:是指建设部为了加强对商品房的质量管理与监督,要求发展商必须提供的新建住宅质量保证书和新建住宅使用说明书。
16、购房资格:各个城市的条件不一样,因地制宜。目前可多关注当地人才引进计划,实际上是尽可能放开限购的伎俩。
17、资金情况:对于首付比例及月供有一个相对明确的概念。
18、购房需求分析:先安家?孩子教育?工作较近?改善?投资等等。明确以上问题后,接下来要在市面的产品上进行考察、选择。买房就是资金、品牌、地段、配套、户型、物业等方面做权衡,根据自己的情况选择。
19、买房意向金:在国家有关房地产法律法规中,没有“意向金”的提法,要么是定金,要么是保证金。
20、面积赠送:购房时大都会有一些面积是赠送的,如阳台。阳台分为封闭和半封闭两种,封闭阳台要全部算面积,半封闭阳台只算一半面积,半封闭阳台越多越超值。
21、住宅的净高:是指下层地板表面或楼板上表面到上层楼板下表面之间的距离。
22、住宅的开间:是指一间房屋内一面墙皮到另一面墙皮之间的实际距离。
23、住宅的长度和进深:是指一间独立的房屋或一幢居住建筑从前一墙皮到后一墙皮之间的实际长度。
24、住宅的层高:是指下层地板表面或楼板表面到上层楼板表面之间的距离。
25、个人住房贷款还款方式:分为等额本金还款和等额本息还款两种。
26、首套房优惠:配偶买过房且贷款未还清,另一方买房仍算作二套房,不能享受首次购房的各种优惠政策。
27、哪些公用面积应分摊:应分摊的公用建筑面积包括套(单元)门以外的室内外楼梯、内外廊、公共门厅、通道、电梯、配电房、设备层、设备用房、结构转换层、技术层、空调机房、消防控制室、为整栋楼层服务的值班卫室、建筑物内的垃圾以及突出屋面有围护结构的楼梯间、电梯机房、水箱间等。
28、哪些公用面积不能分摊:不能分摊的公用面积为底层架空层中作为公共使用的机动车库、非机动车库、公共开放空间、城市公共通道、沿街的骑楼作为公共开放使用的建筑面积、消防避难层;为多栋建筑物使用的配电房;公民防护地下室以及地面车库、地下设备用房等。
29、套内使用面积:指套内住户独自使用的面积,一般包括卧室、厨房、卫生间、过厅、起居室、内走道、阳台、壁柜等净面积的总和。
30、银行按揭:按揭是英语“Mongase”(抵押)一词的粤语音译,因此,银行按揭的正确名称是购房抵押贷款,是购房者以所购房屋之产权作抵押,由银行先行支付房款给发展商,以后购房者按月向银行分期支付本息。
31、公积金贷款:公积金贷款也就是个人住房担保委托贷款,是由城市住房资金管理中心及所属分中心运用房改资金委托银行向购买(含建造、大修)自住住房的公积金交存人和离退休职工发放的贷款。
32、申请住房公积金贷款的条件:凡住房公积金连续缴存6个月以上或累计缴存公积金一年以上,并且目前仍在缴存公积金,才有资格申请,每个城市政策可能有所不一样。
买房要买楼王吗? 是宣传陷阱还是真的赚到
作为购房者,在接收到的各种房产营销信息中一定看到过类似“xxx项目楼王加推,只此一栋,错过不再有!”这样的宣传语。其中“楼王”两个字特别引人注意,一旦带上这个字眼就表明该楼栋是整个项目中最优质的一栋。具体优质在哪,下文会介绍。
从情感角度来说,好东西人人都有兴趣,尤其在听完置业顾问的介绍后普遍都会动心。但较好的东西往往也标上了最贵的价格。房子不同于普通商品,其单价高,每平米贵1000,整套房就要多出十几万。多花一笔大价钱买一份长久的“王者”体验到底值不值呢?你需要知道以下几点:
什么是“楼王”
“楼王”的概念来源于香港,原是指楼房顶层面积较大、定价最贵的一两种户型。现在我们说的“楼王”通常是指社区里所有楼栋中综合条件较好的那一栋建筑,“楼王”一般占据着整个小区较好的资源。
根据楼盘的规模差异,还会细分出更多品类,例如“楼王组团”,泛指超级大盘中的较佳区域内多个楼座共同组成的部分,楼王组团中往往还会出现“楼王之王”;再如一期楼王、二期楼王等等,泛指分期开发的楼盘中每一个开发周期内的楼王。
“楼王”的特点
位置较好:“楼王”通常是位于小区的“C位”。排名前列不会离小区外围很近,避免车来人往的噪音干扰和空气污染。第二离小区各个出口都较近,保证进出方便,去地铁站、超市、幼儿园都不会走很长。
景观较佳:“楼王”一般离相邻的楼栋会较宽一些,视野更开阔;不会被其它建筑大面积遮挡,保证采光不受影响;另外,对外,如果楼盘本身就靠近山、海、江、湖、林等自然景观,那“楼王”基本也会占据欣赏景观较佳的位置。对内,“楼王”通常靠近中央园林,能欣赏到较佳的小区内部园林景观。
配套最全:“楼王”通常可享受最完备的小区内部基本配套,如健身设施、游乐设施、休闲设施、景观设施、生活设施等。
户型最优:一般楼王的产品会是整个楼盘中较高端的,如面积较大、装修标准较高,户型设计较好的产品。另外,楼王的梯户比一般也会是小区比较好的。
朝向较好:通常是坐北朝南,保证空气流通,光照适宜。
价格较高:开发商深知自己楼盘优劣势,也知道每栋楼、每套房子的优劣势,楼王占据较佳资源,所消耗的内部资源往往都是最多的。为了使商品房价值与价格相匹配,达到收益较大化;楼王位置的标价往往较高,与其它楼栋拉开一定差距。
“楼王”不是特别的
排名前列,我们需要清楚的是,“楼王”一说,原本就是从香港传过来的一个概念,现在常被房产商用作宣传房屋时的一个亮点。有时,开发商会宣传他的多个楼栋都为“楼王”,用这样的噱头去吸引购房者,利用购房者“害怕错过”的心态,催促购房者尽快成交。有时,是借着楼王的名号,名正言顺地卖出高价。所以,宣传中所谓的“楼王”也许并非真“楼王”,需要购房者仔细辨别。
第二,“楼王”并非会在每一个方面都达到较佳,比如有一线江景景观的楼栋也许离地铁站比较远。“楼王”只是一个综合下得出的相对最优结果。购房者要根据自身需求进行选择。
第三,“楼王”概念不是所有小区都适用。有的楼盘只有几栋建筑,每一栋都临街,位置、楼间距、景观都差不多,这种情况下,购房者千万不要被商家所谓的话术牵着鼻子走。
第四,“楼王”不一定对所有人都是较好的,也千万不要认为买房就一定要买“楼王”。如果购房是为了长期居住,那就从自身的预算、交通需求、生活需求等出发去评定选择即可。预算够,又要追求较高的居住体验,买“楼王”当然可以。预算不够,可以考虑“楼王”邻近的几栋。如果购房是为了投资的话,更需要考虑几年后出手,你所购买的“楼王”的价格能不能与同小区的其它楼栋拉开差距。
上海宝山「江湾鸿玺」开发商售楼处电话400-8657-114
声明:本文由入驻焦点开放平台的作者撰写,除焦点官方账号外,观点仅代表作者本人,不代表焦点立场。


