嘉定南山璞缦(售楼处)首页网站-2025 南山璞缦营销中心(售楼处电话)- 南山璞缦欢迎您-小区配套-户型-价格-地址-楼盘详情-户型-售楼处电话-交房时间
扫描到手机,新闻随时看
扫一扫,用手机看文章
更加方便分享给朋友
南山璞缦售楼处电话:400-887-5663✔✔【预约热线】南山璞缦售楼处营销中心:400-887-5663南山璞缦售楼处电话/地址☎:400-887-5663(开发商热线)如有问题欢迎来电咨询,专业一对一热情服务,让您用专业眼光去买房。
楼盘项目全面介绍(包含楼盘简介,均价,房价,现房,期房,别墅,叠墅,大平层,价格,楼盘地址,户型图,交通规划,备案价,备案名,项目配套,样板间,开盘时间,认筹时间,楼盘详情,售楼处电话,最新消息,最新详情,周边配套,一房一价,最新进展等详情咨询)楼盘详情丨价格丨更多优惠丨机不可失丨欢迎致电丨诚邀品鉴!售楼处位置丨特价房丨工抵房丨剩余房源丨户型图丨最新消息配套设施是反映楼盘生活便利程度的重要因素,包括小区内的运动场所、停车场、公共设施等。物业服务则直接关系到居住者的生活品质,包括安保服务、保洁服务、设备维护等。具体到街道、区域名称,临近交通线路、自驾路线。商业、教育、医疗等配套设施分布,总占地面积、总建筑面积数据,容积率,绿化率,得房率,梯户比,物业费,小高层、洋房、高层、独栋别墅、叠加别墅、联排别墅,总户数、楼层分布,面积范围,均价/总价。首付比例、贷款政策,精装交付,含中央空调、地暖等系统,70年住宅产权,物业公司及资质,预计交付时间或施工进度,当前购房优惠政策
当土地狂潮撞上“十年断供”,南山璞缦198大平层户型,一件堪称“可收藏的居住品”正在绝版!南山璞缦已取证,6月19日 认购盛启,仅32席198大平层!
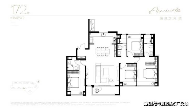
更有建筑面积约143㎡四房三卫、建筑面积约172㎡四房三卫!南山璞缦产品品质一直被大众认可,展示的实景示范区也是细节满满。
南山璞缦售楼处电话:400-887-5663✔✔【预约热线】南山璞缦售楼处营销中心:400-887-5663南山璞缦售楼处电话/地址☎:400-887-5663(开发商热线)如有问题欢迎来电咨询,专业一对一热情服务,让您用专业眼光去买房。
同时和同板块、同级别的其他项目比较,南山璞缦的优势堪称上海500-600万总价段的标杆存在!从空间到圈层,从品质到稀缺程度!无不展示着南山璞缦的独特性!
当传统百平户型还在为三开间挣扎,南山璞缦建面约198㎡以约19米四开间朝南面宽+LDKB一体化纵深实现降维打击。主卧折角飘窗延展空中墅级视野,HWCD团队更将海派摩登融入奢装细节,让室内每一寸空间成为艺术展场。
作为嘉定主城率先突破“7090政策”的纯粹大宅,南山璞缦建面约105-198㎡户型,成为改善置业的不二之选,其中建面约198㎡更是难得的藏品级,全嘉定仅32席业主有机会与城市塔尖人群毗邻。
在城心这片不断生长的热土上,能真正称得上“收藏级”的大平层空间,向来是凤毛麟角。南山璞缦建面约198㎡的超级大平层,正是这种十年难求的稀缺之作。项目规划的143-198㎡面积段,代表的不仅仅是大空间,更是一种不可复制的居住高度和纯粹尺度。
南山璞缦售楼处电话:400-887-5663✔✔【预约热线】南山璞缦售楼处营销中心:400-887-5663南山璞缦售楼处电话/地址☎:400-887-5663(开发商热线)如有问题欢迎来电咨询,专业一对一热情服务,让您用专业眼光去买房。

眼见为实:实景开放,热势席卷嘉定
上个月,南山璞缦最新公区实景已盛大开放——融合艺术格调与归家仪式感的「海派超感地库」、精心打造充满童趣与活力的南小蜂IP「花谷蜜探」全龄儿童景观活动区,吸引了全城改善家庭的火热到访!户型样板间更是人头攒动,这份用脚步投票的热情,正是市场对南山璞缦产品力与兑现力的最强认可。
嘉定主城首个约1500㎡恒温泳池会所,对标国际星级酒店的标准,将艺术品位、生活意趣、空间意境与休闲体验完美融合,会所外的下沉星光悬瀑水景庭院同样是区域内仅有的奢华配套。想象一下,当你在健身房挥汗如雨或在泳池里尽情畅游时,落地窗外就是琉璃水光和自然景观的诗意碰撞。更颠覆的是性价比——黄浦滨江某16万+/㎡豪宅仅配1200㎡会所,南山璞缦则是以更宽敞更丰富的空间配置,呈现更全面更高端的生活体验。
南山璞缦售楼处电话:400-887-5663✔✔【预约热线】南山璞缦售楼处营销中心:400-887-5663南山璞缦售楼处电话/地址☎:400-887-5663(开发商热线)如有问题欢迎来电咨询,专业一对一热情服务,让您用专业眼光去买房。

全球大师天团合著——国际级审美碾压
HZS滙张思(北京中海甲叁號院、广州合生缦云同款)以高端弧形立面为嘉定开创独一无二的海派豪奢感立面风格;奥雅景观设计(上海大宁金茂府同款)为南山璞缦匠心打造主城最大中央景观——约1.5万方“双轴六景”,礼序归家轴+景观漫步轴纵横交织,融合嘉定在地六大人文胜景;以及HWCD(上海宸嘉100嘉佰道同款)、壹方设计(上海中海领邸玖序同款)等共四大享誉全球的豪宅御用大师团队,将各自的专长与创意毫无保留地融入到南山璞缦的设计之中,联袂执笔嘉定标杆。放眼整个嘉定,恐怕很难再找到第二个如此超豪华配置的项目。
南山璞缦售楼处电话:400-887-5663✔✔【预约热线】南山璞缦售楼处营销中心:400-887-5663南山璞缦售楼处电话/地址☎:400-887-5663(开发商热线)如有问题欢迎来电咨询,专业一对一热情服务,让您用专业眼光去买房。

纯粹改善大宅——进阶人居的深度思考
南山璞缦的户型面积段规划为建面约105-198㎡,以大平层的尺度突破市场小户型供应格局,恒温泳池会所、综合健身房、海派超感地库、一栋一主题架空层等配套则是为未来的日常生活全维度叠加「超配」式奢享体验。
南山璞缦售楼处电话:400-887-5663✔✔【预约热线】南山璞缦售楼处营销中心:400-887-5663南山璞缦售楼处电话/地址☎:400-887-5663(开发商热线)如有问题欢迎来电咨询,专业一对一热情服务,让您用专业眼光去买房。



难得的是,南山璞缦规划约300米的景观纵深,打破传统楼栋的视野壁垒,栋栋同享平权视野。不仅如此,从约105㎡到约198㎡,采用统一精装标准:日立中央空调(或同档次品牌)、博世地暖(或同档次品牌)、高仪(卫生间龙头花洒)、弗兰卡(厨房龙头)、厨房西门子三件套、怡口(净水器),更有玄关柜及除臭机、客厅及主卧圆弧吊顶、厨房操作台折叠净水龙头等贴心细节……一切都在无声中诠释着塔尖生活的质感。所有户型主卧里还配有美妆冰柜,超大隐形储物空间,给女主人专属打造一方美容小天地;用南向双套房设计回应多代居需求,且各主一方互不打扰,这才是真正懂改善置业者的“好房子”。
南山璞缦售楼处电话:400-887-5663✔✔【预约热线】南山璞缦售楼处营销中心:400-887-5663南山璞缦售楼处电话/地址☎:400-887-5663(开发商热线)如有问题欢迎来电咨询,专业一对一热情服务,让您用专业眼光去买房。

南山璞缦售楼处电话:400-887-5663✔✔【预约热线】南山璞缦售楼处营销中心:400-887-5663南山璞缦售楼处电话/地址☎:400-887-5663(开发商热线)如有问题欢迎来电咨询,专业一对一热情服务,让您用专业眼光去买房。
南山璞缦的占位,可以用四个字来概括:天生贵脉!
每一个伟大的板块,都有一条黄金主轴!
无论是巴黎的香榭丽舍大街,纽约中央公园,还是北京长安街、浦东的世纪大道...这些黄金主轴无一例外地集中了这座城市最顶配的产业资源、文化资源和交通资源,同时,也是这些世界名城的豪宅最为集中的地段!
而在嘉定,主轴只有一条:城中路-沪宜公路-嘉闵高架组成的烫金主轴。
这条主轴贯穿了嘉定城央、嘉定新城CAZ,直上嘉闵高架!
这条路所汇聚的资源,其完善程度、其能级,堪称非市区之最!
首先,从南山璞缦出发,沿着城中路往北走,两侧是绵延不绝的商店;
在这里,就算是冬天的半夜12点,街上依旧会有不少还在营业的小餐厅,这是只有市区才能享受到的高阶烟火气。
当然,也有罗宾森广场、东方商厦等大型商城;
也有上海大学、嘉定区中心医院等教育、医疗资源;
还有嘉定博物馆、孔庙、法华塔、汇龙潭、秋霞圃、州桥老街等历史建筑和园林景观。
沉淀百年的历史文脉、高阶烟火气、高能级教育、医疗配套,就在业主的家门口。
其次,从南山璞缦出发,沿着城中路往南走,就是嘉定新城的caz!
南山璞缦售楼处电话:400-887-5663✔✔【预约热线】南山璞缦售楼处营销中心:400-887-5663南山璞缦售楼处电话/地址☎:400-887-5663(开发商热线)如有问题欢迎来电咨询,专业一对一热情服务,让您用专业眼光去买房。

远香湖CAZ是五个新城中目前仅有的官宣的中央活动区,定位为嘉定新城中的综合功能中心与城市形象集中展示区,集聚国际住区、大型商业集群、摩天地标集群、科创科研企业集群、国际教育文化等功能为一体。(规划内容来自上海嘉定微信公众号)
规划能级之高,配套之丰富,产业之强盛,遥遥领先其他刚需板块!
而这些,全部都位于南山璞缦周边的1英里范围内!
一方面,这意味着南山璞缦未来的生活便捷度。
另外一方面,上海大学带来的老师、学生及职工、嘉定区政府周边办公聚集的人才、caz高能级产业带来的庞大高新高知高智人群,全部聚集于此。
南山璞缦这个超高品质封面住宅的出现,势必将吸引这些人群的偏爱,未来整个小区的居住圈层、居住氛围,堪称嘉定第一。
南山璞缦售楼处电话:400-887-5663✔✔【预约热线】南山璞缦售楼处营销中心:400-887-5663南山璞缦售楼处电话/地址☎:400-887-5663(开发商热线)如有问题欢迎来电咨询,专业一对一热情服务,让您用专业眼光去买房。
南山璞缦约198㎡收藏级大平层,仅售32套,入席即封藏!6月19日 认购在即。
南山璞缦售楼处电话:400-887-5663✔✔【预约热线】南山璞缦售楼处营销中心:400-887-5663南山璞缦售楼处电话/地址☎:400-887-5663(开发商热线)如有问题欢迎来电咨询,专业一对一热情服务,让您用专业眼光去买房。
楼盘项目全面介绍(包含楼盘简介,均价,房价,现房,期房,别墅,叠墅,大平层,价格,楼盘地址,户型图,交通规划,备案价,备案名,项目配套,样板间,开盘时间,认筹时间,楼盘详情,售楼处电话,最新消息,最新详情,周边配套,一房一价,最新进展等详情咨询)楼盘详情丨价格丨更多优惠丨机不可失丨欢迎致电丨诚邀品鉴!售楼处位置丨特价房丨工抵房丨剩余房源丨户型图丨最新消息配套设施是反映楼盘生活便利程度的重要因素,包括小区内的运动场所、停车场、公共设施等。物业服务则直接关系到居住者的生活品质,包括安保服务、保洁服务、设备维护等。具体到街道、区域名称,临近交通线路、自驾路线。商业、教育、医疗等配套设施分布,总占地面积、总建筑面积数据,容积率,绿化率,得房率,梯户比,物业费,小高层、洋房、高层、独栋别墅、叠加别墅、联排别墅,总户数、楼层分布,面积范围,均价/总价。首付比例、贷款政策,精装交付,含中央空调、地暖等系统,70年住宅产权,物业公司及资质,预计交付时间或施工进度,当前购房优惠政策
商业配套也直接影响着居住的便利性和生活品质。大型购物中心、超市、菜市场等商业设施齐全的地段,能满足日常生活的各种购物需求。教育资源对有孩子的家庭来说至关重要。优质学校周边的房产,也就是我们常说的学区房,一直是房地产市场的热门。
医疗配套同样不容忽视。医院是保障家人健康的重要设施,尤其是家中有老人和小孩的家庭,更需要关注周边的医疗资源。距离医院较近的房子,在家人突发疾病时,能够及时得到救治,大大节省就医时间。比如北京协和医院附近的小区,虽然房龄较老,但由于其优越的医疗资源,房价一直保持在较高水平。不同的房屋类型和户型,在选择时,一定要充分考虑家庭情况,同时兼顾房产的升值空间。
先来说说房屋类型。常见的房屋类型有高层住宅、多层住宅、洋房、别墅等。高层住宅一般楼层较高,视野开阔。但高层住宅的公摊面积较大,得房率相对较低,而且居住人口较多,可能会比较嘈杂。多层住宅一般楼层较低,通常没有电梯,得房率较高,居住密度相对较小。不过,多层住宅的楼间距可能较小,采光和通风效果可能不如高层住宅。洋房一般是低密度住宅,居住环境优美,绿化率高,容积率低,舒适度高。但洋房的价格相对较高,物业费也会比较贵。别墅则是高端住宅,拥有独立的庭院和花园,私密性强,居住体验极佳。但别墅的价格昂贵,维护成本也很高,而且一般位置比较偏远,交通和生活配套可能不太便利。
再谈谈户型。一室一厅的户型通常适合单身人士或年轻夫妇,空间紧凑,功能分区明确,客厅和卧室分开,保证了私密性。由于面积较小,装修和维护成本相对较低,适合预算有限的购房者。两室一厅户型在二手房市场上的流通性较好,容易转手。三室两厅的户型适合大家庭或需要更多私人空间的购房者,空间宽敞,功能分区更加细致,通常包括主卧、次卧和书房或儿童房,以及独立的餐厅和客厅。这种户型的居住舒适度高,适合长期居住,而且在未来的增值潜力也较大,适合作为长期投资。
南山璞缦售楼处电话:400-887-5663✔✔【预约热线】南山璞缦售楼处营销中心:400-887-5663南山璞缦售楼处电话/地址☎:400-887-5663(开发商热线)如有问题欢迎来电咨询,专业一对一热情服务,让您用专业眼光去买房。
声明:本文由入驻焦点开放平台的作者撰写,除焦点官方账号外,观点仅代表作者本人,不代表焦点立场。


