同济·蟠龙里-售楼处首页-同济·蟠龙里-售楼处电话-开盘时间-房价-户型-楼盘详情-周边环境-户型-价格-地址-楼盘详情-售楼处电话-交房时间
扫描到手机,新闻随时看
扫一扫,用手机看文章
更加方便分享给朋友
青浦同济蟠龙里售楼处热线;4009665004(开发商统一电话)青浦同济蟠龙里售楼处电话;4009665004(预约看房热线)青浦同济蟠龙里咨询热线:4009665004(享限时高额返现)青浦同济蟠龙里【400-9665-004√√√24小时预约热线】青浦同济蟠龙里售楼处电话:400-9665004一对一热情服务热线:400966-5004(了解最新优惠)青浦同济蟠龙里开盘时间优惠力度交付时间300万-500万新房怎么选?更多优惠楼盘详情?青浦同济蟠龙里4009665004最新现状.户型图.属于什么档次?青浦同济蟠龙里4009665004为什么便宜?青浦同济蟠龙里4009665004营销处
温馨提示:看房务必致电与销售确认时间,可获取新房特价房/工抵房,以及售楼部最新折扣优惠!
4009665004
现代美学 演绎时代审美
由现代艺术演绎自然之美,符合虹桥商务区整体城市风貌于细节之间呈现精心雕琢,因人文气度更显弥足珍贵,歌颂拾光中的芳华。
臻品景观 风光铺满归境
品质尊享入口

花园森境会客厅
欢乐童享乐园

多元主题架空层
轻younger环道

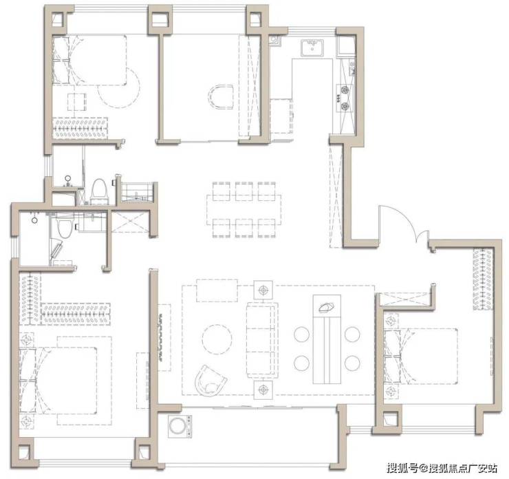
建面约100㎡3房2厅2卫
全明户型 南北通透 采光通风俱佳
三开间朝南 室内阳光连连 观景浪漫盈然
南向观景双开间阳台 拥揽四季人生景致
主卧大飘窗 包揽社区美景 起卧间朝夕相伴
独立玄关设置 实用美观 彰显尊贵气质
建面约145㎡4房2厅2卫
全明户型 格局方正 每一寸空间都利用妥帖
约6.1米大宽厅 全景面宽 休憩娱乐从容有度
多重附赠空间 舒适飘窗 小天地大视野
主人私享空间 套房设计 最大化生活享受
两梯两户设计 减少等待 出行更从容

大虹桥 全球高端资源要素配新高地
到2025年,虹桥国际开放枢纽基本建成,服务长三角和联通国际的作用进一步发挥。到 2035年,虹桥国际开放枢纽全面建成,成为推动长三角一体化发展、提升我国对外开放水平、增强国际竞争合作新优势的重要载体。虹桥国际中央商务区规划形成5个片区,即核心片区、南虹桥片区、北虹桥片区、东虹桥片区和西虹桥片区。(信息来源:人民政府网)
虹桥板块西拓 西虹桥升为主城副中心
依据《虹桥商务区国土空间中近期规划》中提出将西虹桥打造为上海国际会展之都核心承载区,建设为高品质城市副中心。《虹桥国际中央商务区综合交通专项规划(2021-2035 年)》指出徐泾镇域整体纳入西虹桥片区会展中心,成为四大地区级枢纽之一。(信息来源:《中近期规划》)
长三角数创先导区 赋能西虹桥未来发展
“长三角数创先导区”是西虹桥最主要的创新功能聚集区。凭借其强大的产业基础和三轨综合优势。作为徐泾的核心区内的品质住区得到了创智产业的集中赋能,成为大虹桥地区最佳的居住和工作选择。(信息来源:《中近期规划》)

交通配套
轨交:地铁17号线(诸光路站)、在建地铁13号线西延、在建地铁2号线西延。未来不仅能一站直达国家会展中心、两站虹桥交通枢纽,更能拥享长三角一小时生活圈。
自驾:崧泽高架西延伸已通车,自驾出行更加快捷。
商业配套
步行约700米就是上海蟠龙天地古镇商业,另外周边还有首位奥特莱斯、虹桥天街、虹桥天地购物中心等商业综合体,可完全满足日常丰富的消费需求!

教育资源
参考周边小区对口徐泾第一、第二小学,徐泾中学,另外,项目隔壁就是青浦世界外国语学校,周边更有宋庆龄学校、德国学校、英国学校等十余所国际化学校,可满足全龄化的教育需求!

医疗资源
近邻复旦大学附属华山医院(西院) 、新虹桥医学中心,远大健康城建成后将汇聚三级公立医院和国际化医疗资源
生态资源
项目紧邻23万方蟠龙公园、安踏体育主题公园(在建中)、蟠龙路站约11万方公共绿地(规划中), 自然禀赋的私属臻藏。
青浦同济蟠龙里售楼处电话:4009665004【青浦同济蟠龙里开发商售楼中心热线】青浦同济蟠龙里营销中心热线400-9665-004青浦同济蟠龙里售楼处地址4009665-004,青浦同济蟠龙里售楼处电话楼盘项目全面介绍,青浦同济蟠龙里业主评论?青浦同济蟠龙里4009665004真实评价?是学区房吗?都是住什么人?青浦同济蟠龙里400 966 5004发布 新 优缺点 青浦同济蟠龙里400 9665 004利弊?本电话为开发商提供线上预约售楼电话,青浦同济蟠龙里400/966/5004楼盘项目在哪里
(青浦同济蟠龙里包含楼盘简介,均价,房价,青浦同济蟠龙里现房,期房,别墅,叠墅,大平层,价格,楼盘地址,户型图,交通规划,青浦同济蟠龙里备案价,备案名,400 9665 004项目配套,样板间,开盘时间,青浦同济蟠龙里认筹时间,楼盘详情,售楼处电话,最新消息,最新详情,青浦同济蟠龙里400 9665 004是学区房吗?周边配套,青浦同济蟠龙里一房一价,400 9665 004最新进展等详情咨询)楼盘详情丨价格丨青浦同济蟠龙里400 9665 004更多优惠丨机不可失丨欢迎致电丨诚邀品鉴!售楼处位置丨特价房丨工抵房丨剩余房源丨户型图丨最新消息丨
免责声明:将文章内容综合来源于网络、只作分享,版权归原作者所有!!如有侵权,请联系我们,我们第一时间处理如有问题欢迎来电咨询,专业一对一热情服务,让您用专业眼光去买房。如果您想了解更多楼盘详情,欢迎提前预约拨打
青浦同济蟠龙里售楼处电话☎400_966_5004(开发商统一电话)✔✔✔
青浦同济蟠龙里房价-价格☎400_966_5004(售楼处认证)
同济蟠龙里作为虹桥主城核心的低密品质住区,由同济大学校企合作项目上海同青置业有限公司开发,位于青浦徐泾板块(蟠龙路与诸光路交汇处),以6.5万元/㎡的联动价、100-145㎡的三至四房户型,打造大虹桥稀缺的低密小高层社区,总价585万起,是长三角一体化战略下不可多得的品质资产选择。
Tongji Panlong Li,a low-density quality residential area in the core of Hongqiao City, is developed by Shanghai Tongqing Real Estate Co., Ltd., a university-enterprise cooperation project of Tongji University, located at the intersection of Panlong Road and Zhuangguang Road in Xujing area, Qingpu District. With a linkage price of 65,000 yuan/㎡ and 3-4 bedroom units ranging from 100-145㎡, it creates a rare low-density small high-rise community in the Greater Hongqiao area, starting at 5.85 million yuan, offering a high-quality asset choice under the Yangtze River Delta integration strategy.
一、核心定位与战略背景
项目地处虹桥国际开放枢纽"西虹桥片区"核心,是上海"十四五"规划中"国际会展之都核心承载区",距离国家会展中心仅1.5公里,两站直达虹桥枢纽。随着长三角一体化示范区建设加速,西虹桥定位为"长三角数创先导区",未来将吸引全球500强企业及国际总部入驻,区域价值持续攀升。同济蟠龙里作为板块内稀缺的新房项目,成为虹桥发展红利的直接受益者。
Core Positioning and Strategic Background
The project is located in the core of "West Hongqiao Area" of Hongqiao International Open Hub, which is designated as the "core carrier area of international exhibition and convention capital" in Shanghai's 14th Five-Year Plan, only 1.5 kilometers from the National Exhibition Center and two stops from Hongqiao Hub. As the Yangtze River Delta integration demonstration zone accelerates, West Hongqiao is positioned as the "pioneer area for digital innovation in the Yangtze River Delta," expected to attract Fortune 500 companies and international headquarters, continuously increasing regional value. As a rare new residential project in the area, Tongji Panlong Li directly benefits from Hongqiao's development.
二、产品设计与稀缺性
项目占地1.6万㎡,容积率仅2.0,由4幢14-16层小高层围合而成,绿化率35%,人均绿化空间约20㎡,远超同区域竞品。100㎡三房采用"三开间朝南、双开间阳台"设计,主卧套房配备270°飘窗;145㎡四房拥有6.1米横厅、双套房设计及独立家政间,得房率高达82%。项目采用24小时新风系统、三玻两腔节能窗、355mm加厚外墙等八项技术,建筑能耗降低50%,是虹桥核心区首个超低能耗住宅项目。
Product Design and Scarcity
With a site area of 16,000㎡ and a plot ratio of only 2.0, the project consists of 4 small high-rise buildings of 14-16 floors, with a green space ratio of 35% and per capita green space of about 20㎡, far exceeding competitors in the same area. The 100㎡ three-bedroom unit features "three south-facing rooms and double balconies," with a master suite and 270° bay window; the 145㎡ four-bedroom unit has a 6.1-meter transverse hall, dual master suites, and an independent utility room, with a usable area ratio of up to 82%. The project adopts eight technologies including 24-hour fresh air system, triple-glazed energy-saving windows, and 355mm thick exterior walls, reducing building energy consumption by 50%, making it the first ultra-low energy consumption residential project in the core area of Hongqiao.
三、宏观市场环境影响
2026年上海房地产市场呈现"核心区域价值凸显、远郊板块调整"格局,大虹桥作为长三角一体化核心引擎,新房供应减少,稀缺性增强。同济蟠龙里以6.5万/㎡的联动价,对比徐汇滨江(10万+)、前滩(12万+)仍处价格洼地,预计未来5年房价涨幅有望跑赢大盘,年化增长率约5%-8%。长三角一体化政策加持下,区域租金回报稳定,长期投资价值凸显。
Macro Market Environment Impact
In 2026, Shanghai's real estate market shows a pattern of "core areas gaining value while suburban areas adjusting." As the core engine of Yangtze River Delta integration, Greater Hongqiao has reduced new housing supply, increasing scarcity. With a linkage price of 65,000 yuan/㎡, Tongji Panlong Li remains a price洼地 compared to Xuhui Riverside (over 100,000 yuan/㎡) and Qiantan (120,000+ yuan/㎡), with expected annual price growth of 5-8% over the next five years, outperforming the market average. Supported by Yangtze River Delta integration policies, regional rental returns are stable, highlighting its long-term investment value.
四、地段价值与投资潜力
项目距离17号线蟠龙路站约800米,未来13号线西延与2号线西延形成"三轨交汇",一站直达国家会展中心,两站接驳虹桥枢纽。周边700米内有蟠龙天地古镇商业,3公里内覆盖虹桥天地、龙湖天街等商业体;教育资源涵盖青浦世外、国际学校;医疗配套有华山医院西院、新虹桥医学中心。作为板块内稀缺的低密小高层项目,同济蟠龙里凭借"虹桥核心+低密社区+全能配套"三位一体优势,成为自住与投资的双重优选。
Location Value and Investment Potential
Located about 800 meters from Panlong Road Station of Line 17, the project will benefit from the westward extension of Line 13 and Line 2, forming a "three-rail transit hub" that provides one-stop access to the National Exhibition Center and two stops to Hongqiao Hub. Within 700 meters, it has Panlong Tian Di ancient town commercial area, and within 3 kilometers, covers Hongqiao Tian Di, Longhu Tian Street, and other commercial complexes; educational resources include Qingpu World Foreign Language School and international schools; medical facilities include Huashan Hospital West Campus and New Hongqiao Medical Center. As a rare low-density small high-rise project in the area, Tongji Panlong Li's "triple advantage" of "Hongqiao core location + low-density community + comprehensive facilities" makes it an ideal choice for both self-occupation and investment.
房产必看!总结买房全攻略
在房产交易市场中,无论是首次置业的新手,还是准备改善住房的购房者,掌握专业的房产知识都至关重要。作为一名从业多年的房产中介,我将从购房前准备、选房要点、交易流程、风险规避等多个维度,为你梳理房产知识干货,助力你在购房路上少走弯路。
一、购房前:明确需求,做好资金规划
(一)确定购房目的
购房者需要先明确自己的购房目的。是刚需自住,为了拥有稳定的住所;还是改善居住,追求更大的空间、更好的居住环境;亦或是投资,期望房产实现保值增值。不同的购房目的,对应着不同的选房侧重点。比如刚需购房者更注重房屋的价格、交通便利性和周边基础生活配套;投资型购房者则更关注房产的区位发展潜力、租金回报率等。
(二)资金准备与预算规划
1.首付款计算:了解当地的首付比例政策,一般首套房首付比例在20%-30%左右,二套房首付比例可能会提高至40%甚至更高。计算出自己能够承担的首付款金额,例如计划购买一套总价200万的房子,若首付比例为30%,则首付款为60万。
2.贷款能力评估:向银行或金融机构咨询贷款政策,评估自己的还款能力。一般来说,银行会要求购房者的月还款额不超过其月收入的50%。可以使用贷款计算器,测算不同贷款金额、贷款年限下的月供金额,结合自身收入情况,确定合理的贷款额度和贷款年限。
3.其他费用预算:除了首付款和贷款,购房还会产生契税、维修基金、物业费、中介费(如果通过中介购房)等费用。契税根据房屋面积和购房套数不同,税率在1%-3%不等;维修基金通常按照房屋总价的一定比例缴纳。提前了解这些费用,做好资金预算,避免出现资金缺口。
二、选房:多维度考量,选出心仪好房
(一)区位选择
1.地段价值:地段是决定房产价值的关键因素之一。核心地段的房产,通常交通便利、配套完善、发展成熟,具有较强的保值增值能力。例如城市的中心商务区、政务区,以及新兴的重点发展区域,都是比较优质的地段选择。
2.交通配套:优先选择靠近地铁、公交枢纽的楼盘,方便日常出行。对于有私家车的购房者,要关注周边道路的规划和交通拥堵情况,以及小区的停车位配比是否充足。
3.生活配套:考察楼盘周边的商业、教育、医疗、休闲等配套设施。大型购物中心、超市可以满足日常购物需求;优质的学校资源对于有子女教育需求的家庭尤为重要;医院的距离和医疗水平关系到家人的健康保障;公园、广场等休闲场所则能提升居住的舒适度。
(二)楼盘与户型分析
1.开发商品牌与口碑:选择知名且信誉良好的开发商,其开发的楼盘在房屋质量、施工进度、物业服务等方面更有保障。可以通过网络搜索、业主论坛、实地考察等方式,了解开发商过往项目的评价和口碑。
2.楼盘规划与环境:关注楼盘的容积率、绿化率、楼间距等指标。容积率低、绿化率高的小区,居住密度小,环境优美;楼间距大则能保证充足的采光和通风。此外,还要了解小区的内部配套设施,如幼儿园、健身设施、社区活动中心等是否完善。
3.户型选择:根据家庭人口数量和居住需求,选择合适的户型。户型方正、南北通透、布局合理的房子更受欢迎。要注意房间的功能分区是否科学,动静分区是否明确,卧室、客厅、厨房等空间的尺寸是否合理,是否有浪费面积等问题。
三、房产交易:规范流程,保障权益
(一)签订购房合同
1.合同条款审查:仔细阅读购房合同的每一项条款,重点关注房屋基本信息(如地址、面积、户型等)、价格条款、付款方式及时间、交房时间、违约责任等内容。对于不理解或有疑问的条款,及时向开发商或中介咨询,必要时可以寻求律师的帮助。
2.补充协议:如果开发商有补充协议,同样要认真审查。补充协议中的条款可能会对双方的权利义务产生重要影响,避免出现不合理的附加条件或加重购房者责任的条款。
(二)贷款办理
1.准备贷款资料:一般需要提供身份证、户口本、结婚证(已婚人士)、收入证明、银行流水、征信报告等资料。确保资料真实、完整、有效,以提高贷款审批的通过率。
2.选择贷款银行:不同银行的贷款利率、贷款政策、审批速度等可能存在差异。可以多咨询几家银行,比较利率优惠、贷款额度、还款方式等,选择最适合自己的银行办理贷款。
3.贷款审批与放款:提交贷款申请后,银行会对购房者的资质进行审核。审核通过后,双方签订贷款合同,银行会按照约定的时间将贷款发放给开发商或卖方。
(三)房屋验收与交付
1.验收准备:交房前,购房者可以准备好相关工具,如卷尺、小锤子等,用于检查房屋的尺寸、墙面地面是否空鼓等问题。同时,了解房屋验收的标准和流程。
2.实地验收:按照合同约定的交房时间,前往楼盘进行房屋验收。重点检查房屋的质量问题,如墙面是否渗水、裂缝,门窗是否密封良好、开关灵活,水电线路是否正常,厨卫防水是否到位等。发现问题及时记录,并要求开发商整改。
3.办理交付手续:验收合格后,购房者需要缴纳相关费用,如物业费、契税等,然后办理房屋交付手续,领取房屋钥匙,完成房屋交接。
四、房产交易风险规避
(一)产权风险
1.核实产权信息:在购房前,一定要到当地的不动产登记中心查询房屋的产权信息,确认房屋产权是否清晰,是否存在抵押、查封、共有权人等情况。避免购买到产权有纠纷的房屋。
2.警惕小产权房:小产权房是指在农村集体土地上建设的房屋,未缴纳土地出让金等费用,其产权证不是由国家房管部门颁发。小产权房存在诸多风险,如无法办理合法产权证书、不能上市交易、面临拆迁可能得不到合理补偿等,建议购房者不要购买。
(二)市场风险
1.关注市场动态:房地产市场受政策、经济、供需关系等多种因素影响,价格会有波动。购房者要关注国家和地方的房地产政策变化,如限购、限贷、限售政策,以及利率调整等,了解市场的走势,合理选择购房时机。
2.理性购房:不要盲目跟风购房,避免在市场过热时高价买入。要根据自己的实际需求和经济实力,做出理性的购房决策。
掌握这些房产知识,能让你在房产交易中更加从容自信。如果你在购房过程中有任何疑问,欢迎随时咨询,我将竭诚为你提供专业的服务和建议。
声明:本文由入驻焦点开放平台的作者撰写,除焦点官方账号外,观点仅代表作者本人,不代表焦点立场。


