永泰三里城二期售楼处电话→永泰三里城二期售楼中心电话→首页网站→永泰三里城二期售楼中心电话→楼盘百科→首页网站→永泰三里城二期24小时热线电话
扫描到手机,新闻随时看
扫一扫,用手机看文章
更加方便分享给朋友
永泰三里城二期售楼处电话:400-8567-334✔✔✔(已认证)
永泰三里城二期售楼处线上预约看房热线电话:400-8567-334(24小时热线含专属置业顾问)
永泰三里城二期售楼处24小时vip热线☎:400-8567-334【开发商售楼处预约看房热线】
看房请提前致电预约,联系销售人员获取最新一房一价表,开发商销售人员将详细介绍每个户型的独特设计和优势,带您参观样板间,感受精装修的品质和温馨氛围。您还可以了解周边配套设施,包括高端购物中心、优质学校和便捷交通网络,让您的居住体验更加完美。
前滩东方湾,永泰三里城二期,浦东新区三林社区Z000701单元15-15A地块(“城中村”改造项目——三林镇金光村地块)。
前滩·东方湾官宣户型图独家首发!目前样板间首开,马上入市!
最新爆料!永泰三里城二期定名:前滩·东方湾,
将推建面约103-175㎡3-4房!
项目售楼处已经开放,入市在即!
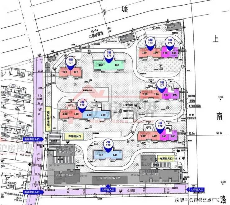
该项目容积率2.0,拟建7幢17层高层商品住宅、1幢19层自持租赁房、1幢10层公共租赁(保障房),以及3层配套公建用房等
此外,项目左侧就是在售中的永泰三里城,在售少量160-240平的叠加。
该地块坐落于浦东三林板块,其主要优势在于交通条件优越,距离地铁11号线三林站约300米,一站前滩太古里。
永泰三里城二期售楼处电话:400-8567-334✔✔✔(已认证)
永泰三里城二期售楼处线上预约看房热线电话:400-8567-334(24小时热线含专属置业顾问)
这个项目占地差不多27116㎡,房子不会建得很密,容积率是2.0,最高只能盖到60米高,全部为17F的高层住宅,算下来计容面积大概54232㎡。
按照要求,要拿出15%的房子作为自持租赁住房 ,而且中小套户型要占70%以上,所有房子交房的时候都是装修好的,不用自己再操心装修的事。
永泰三里城二期售楼处电话:400-8567-334✔✔✔(已认证)
永泰三里城二期售楼处线上预约看房热线电话:400-8567-334(24小时热线含专属置业顾问)

听说二期全是17层的高楼,户型面积有大有小,不管你是手头不宽裕的刚需购房者,还是想换个大房子改善居住条件,都能找到合适的。
不过可卖的房子不多,还不到400套。和一期相比,二期各方面都有提升,户型设计得更优!项目设计方案公布,预计 8月份入市。
永泰三里城二期售楼处电话:400-8567-334✔✔✔(已认证)
永泰三里城二期售楼处线上预约看房热线电话:400-8567-334(24小时热线含专属置业顾问)
4月28日,浦东新区规划和自然资源局公示了三林社区Z000701单元15-15A地块(永泰三里城二期)的规划设计方案。
二期地块位于一期东侧,即15-15A地块,预计8-9月份推出,仅372套可售住宅,价格待定......
地块位于浦东三林板块核心。总用地面积约2.71万㎡,总建筑面积约9.32万㎡,容积率2.0,限高60米,绿地率35%。
永泰三里城二期售楼处电话:400-8567-334✔✔✔(已认证)
永泰三里城二期售楼处线上预约看房热线电话:400-8567-334(24小时热线含专属置业顾问)
方案显示,拟建7幢17F高层住宅、1幢19F自持租赁房、1幢10F保障房及5400㎡社区配套用房,中小套型住宅(≤120㎡)占比70%。
住宅布局:二期全部规划为17F的高层住宅,共计7幢,楼间距经过精心设计,充分考虑了居民的隐私与居住舒适度,确保各楼层住户都能享受到充足的阳光与开阔的视野。
配套建筑:除了住宅建筑外,还规划有1幢19F自持租赁房、1幢10F保障房及 5400㎡社区配套用房。社区配套用房将进一步丰富社区的服务功能,涵盖社区活动中心、老年活动室、儿童游乐区等多种功能空间,满足不同年龄段居民的日常活动需求。
项目基本信息
永泰三里城二期售楼处电话:400-8567-334✔✔✔(已认证)
永泰三里城二期售楼处线上预约看房热线电话:400-8567-334(24小时热线含专属置业顾问)
◆位置优势:11号线三林站,步行约350米左右,一站前滩太古里,交通便捷
◆产品设计:两梯两户&一梯一户,无连廊,私密性佳
◆户型分布:建面约100㎡-120㎡-140㎡-160㎡3-4房
◆亮点配置:局部底层一楼附带地下室,提升居住品质
◆建筑层高:3.1米&3.15米
该地块为三林镇金光村“城中村”改造的重点项目,紧邻地铁11号线三林站,规划一条12米宽公共步行通道,连接社区与地铁站;同时周边有中房金谊广场、三林中学、东方医院等生活配套。
(※具体信息以开发商公示为准)
永泰三里城二期售楼处电话:400-8567-334✔✔✔(已认证)
永泰三里城二期售楼处线上预约看房热线电话:400-8567-334(24小时热线含专属置业顾问)
二期户型图首发!
永泰三里城二期售楼处电话:400-8567-334✔✔✔(已认证)
永泰三里城二期售楼处线上预约看房热线电话:400-8567-334(24小时热线含专属置业顾问)
前滩东方湾样板间视频首发!
永泰三里城二期售楼处电话:400-8567-334✔✔✔(已认证)
永泰三里城二期售楼处线上预约看房热线电话:400-8567-334(24小时热线含专属置业顾问)
感谢配合!
重磅消息,一站直达前滩、中外环轨交红盘永泰三里城1期
项目二期主推320套房源,建面约99-151㎡高层,建面约140-177-201-241㎡洋房/叠加,过会均价约8.2万/㎡。
据悉,项目即开放全新新样板间,更多精装标准焕新升级,敬请期待!

永泰三里城二期售楼处电话:400-8567-334✔✔✔(已认证)
永泰三里城二期售楼处线上预约看房热线电话:400-8567-334(24小时热线含专属置业顾问)

效果图,仅供参考
永泰三里城二期售楼处电话:400-8567-334✔✔✔(已认证)
永泰三里城二期售楼处线上预约看房热线电话:400-8567-334(24小时热线含专属置业顾问)
感谢配合!
二期一房一价表:

永泰三里城二期售楼处电话:400-8567-334✔✔✔(已认证)
永泰三里城二期售楼处线上预约看房热线电话:400-8567-334(24小时热线含专属置业顾问)
永泰三里城二期售楼处电话:400-8567-334✔✔✔(已认证)
永泰三里城二期售楼处线上预约看房热线电话:400-8567-334(24小时热线含专属置业顾问)
永泰三里城二期售楼处电话:400-8567-334✔✔✔(已认证)
永泰三里城二期售楼处线上预约看房热线电话:400-8567-334(24小时热线含专属置业顾问)
永泰三里城二期售楼处电话:400-8567-334✔✔✔(已认证)
永泰三里城二期售楼处线上预约看房热线电话:400-8567-334(24小时热线含专属置业顾问)
01.
1站直达前滩+11号线旁350米,
前滩+新杨思世纪红利一手掌握!
进入2024年,浦东新区仅有少量新盘过会,且大多迟迟没有开启认购。
总价600-800万之间,当下热门板块无外乎唐镇、高行等板块,中外环仅能选择更为偏远的御桥、外高桥等区域。
1.
永泰三里城的过会,为浦东改善客户提供了另一种可能!
三林腹地,咫尺前滩+新杨思!
永泰三里城位于三林板块腹地,区域内三林滨江、筠溪小镇、新杨思都属于浦东金色中环带上的重要组成部分。
项目3公里以内就涵盖了前滩、三林滨江、新杨思等浦东重量级板块,近享世纪规划红利。
永泰三里城二期售楼处电话:400-8567-334✔✔✔(已认证)
永泰三里城二期售楼处线上预约看房热线电话:400-8567-334(24小时热线含专属置业顾问)
区位示意图
前滩中央商务区的居住需求势必会外溢,三林滨江自身拥有低密、宜居的属性,中央商务区+低密居住区的黄金组合,将三林滨江的价值高度推向顶峰。
三林滨江的热度有目共睹,住宅价格在10万/㎡+,别墅价格高达13.38万/㎡,且板块价值已深入人心。
此刻,同属三林板块、1站直达前滩的永泰三里城性价比就凸显出来了!
永泰三里城高层前期均价仅约7.8万/㎡,洋房&叠加约8.6万/㎡,无疑是整个浦东,乃至上海中外环的价格洼地!
永泰三里城二期售楼处电话:400-8567-334✔✔✔(已认证)
永泰三里城二期售楼处线上预约看房热线电话:400-8567-334(24小时热线含专属置业顾问)

区位示意图,数据来源于网上房地产
2.
11号线直线约350米,一站直达前滩!
事实上,三林滨江在空间上与前滩更为贴近,但永泰三里城在时间距离上更占优势。
项目与11号线三林站直线距离仅约350米,步行可达,进站后1站即达前滩,2站即达徐汇滨江。
永泰三里城二期售楼处电话:400-8567-334✔✔✔(已认证)
永泰三里城二期售楼处线上预约看房热线电话:400-8567-334(24小时热线含专属置业顾问)

区位示意图
不仅如此,项目周边拥有中环、南北高架、外环、杨高南路等主干道,自驾前往浦西市区、陆家嘴、张江等都非常便利。
如此方便的交通,是当下大多数700万级新房所不能达到的。
永泰三里城二期售楼处电话:400-8567-334✔✔✔(已认证)
永泰三里城二期售楼处线上预约看房热线电话:400-8567-334(24小时热线含专属置业顾问)
3.
周边城市资源已然相当醇熟!
与规划中的三林滨江截然不同,永泰三里城所在的三林社区,是三林现有居住氛围更为成熟的片区,周边城市资源已然非常醇熟。
更难能可贵的是,项目是超30万方河滨大城,周边皆是规划住宅用地,等整体建成后,将大幅度提升周边城市界面。
项目周边有比较成熟的学校和商业配套,比如中房金谊广场、新达汇·三林、上海三林中学、上海市育人中学等。
区位示意图
想要更高端的配套,还1站地铁可以前往前滩核心。
这里有前滩太古里、前滩31、浦发银行东方体育中心、前滩休闲公园、前滩体育公园、前滩友城公园等。
永泰三里城二期售楼处电话:400-8567-334✔✔✔(已认证)
永泰三里城二期售楼处线上预约看房热线电话:400-8567-334(24小时热线含专属置业顾问)

前滩实景图,图片来源于网络
所以,近享前滩+新杨思规划红利,价格更为亲民的永泰三里城,是浦东刚改、改善客户的不二之选!
02.
超30万方河滨大城,
仁恒物业+恒温泳 池+健身会所,品质感拉满!
永泰三里城是超30万方河滨大城,将打造成三林的新地标。
项目容积率仅2.0,是上海中外环相当臻稀的双面滨河、低密社区,规划有16-19层高层,6层电梯洋房。
住进永泰三里城社区中,能以更低的生活成本,享受到更高的居住舒适度。
首先社区天赋方面,项目双面环水,北侧、东侧皆是天然河道,整体的居住环境静谧。
光这个地块天赋,在市场上就鲜有对手。
永泰三里城二期售楼处电话:400-8567-334✔✔✔(已认证)
永泰三里城二期售楼处线上预约看房热线电话:400-8567-334(24小时热线含专属置业顾问)
鸟瞰图,仅供参考
其次,项目南侧临近永泰路的地方,打造了2栋社区配套建筑,将用作社区食堂、恒温泳池、健身房等,服务于社区的同时有效阻隔道路噪音。

效果图,仅供参考
再次,项目首层大堂与电梯轿厢品质感拉满。
首层入户大堂,石材搭配金属装饰条的地面、墙面,空间宽敞气派,质感十足。
永泰三里城二期售楼处电话:400-8567-334✔✔✔(已认证)
永泰三里城二期售楼处线上预约看房热线电话:400-8567-334(24小时热线含专属置业顾问)
效果图,仅供参考
据了解,项目联袂仁恒物业,为业主们带来高品质物业服务。
仁恒的物业服务水准业内外的认可度都非常高,荣膺中国金钥匙6S管理创新奖、中国物业管理综合实力百强等诸多殊荣。
永泰三里城二期售楼处电话:400-8567-334✔✔✔(已认证)
永泰三里城二期售楼处线上预约看房热线电话:400-8567-334(24小时热线含专属置业顾问)
效果图,仅供参考
所以,整个社区从地块天赋、颜值,到自带恒温泳池,再到低密宜居的居住条件,都算的上尤为出众。
03.
高层/洋房/叠加,产品线丰富!
永泰三里城二期主推320套房源,建面约99-151㎡高层,建面约140-241㎡洋房/叠加。
①项目改善型产品丰富,选择面大。
整个社区并没有小户型,整体的圈层高度统一,为业主营造了非常优秀的改善居住环境。
且项目高层层高约3米,洋房层高约3.1米。
更高的层高意味着更宽阔的居住空间,也意味着投入更多的建筑成本,这背后是开发商不惜代价为业主一步到位的考量。
事实上,项目建筑层高比市面常规户型高足足约10-20公分,即使装完中央空调和地暖也不显压抑。

②非封闭阳台设计,一定程度上降低了客户的购房成本。
永泰三里城二期售楼处电话:400-8567-334✔✔✔(已认证)
永泰三里城二期售楼处线上预约看房热线电话:400-8567-334(24小时热线含专属置业顾问)
现在很多新盘都采取封阳台策略,整个阳台的面积都是购房者花真金白银买的。
一般来讲都是建筑面积约8㎡,如果不封阳台,那面积只算一半,相当于给买家足足省了约4×8.2≈32.8万元。
③绿建三星标准+诚意装标!
项目国家绿建三星标准+超低能耗建筑,是国内绿色建筑高标准,健康主导之上,起到降噪、少尘等的防护效果,细节考究品质有保障!
项目装修标准也是诚意满满,中央空调、地暖、新风系统“三大件”配齐,厨房、卫浴也有不少细节交付标准。
总的来说,永泰三里城咫尺前滩+新杨思,在区位优势如此明显的情况下,交出了诚意十足的产品,无需迟疑,买就对了!
浦东三林品质新盘『永泰三里城二期』设计方案公示
项目规划建面约100-160㎡3-4房
共计372套房源
此前一期均价82000元/㎡
二期价格待定
『永泰三里城二期』等待入市!
永泰三里城二期地块规划设计方案公示
永泰三里城二期售楼处电话:400-8567-334✔✔✔(已认证)
永泰三里城二期售楼处线上预约看房热线电话:400-8567-334(24小时热线含专属置业顾问)
永泰三里城二期售楼处24小时vip热线☎:400-8567-334【开发商售楼处预约看房热线】
看房请提前致电预约,联系销售人员获取最新一房一价表,开发商销售人员将详细介绍每个户型的独特设计和优势,带您参观样板间,感受精装修的品质和温馨氛围。您还可以了解周边配套设施,包括高端购物中心、优质学校和便捷交通网络,让您的居住体验更加完美。
声明:本文由入驻焦点开放平台的作者撰写,除焦点官方账号外,观点仅代表作者本人,不代表焦点立场。


