中凯曼荼园-(2025年上海中凯曼荼园)楼盘详情-中凯曼荼园房价--楼盘详情-首页网站-松江【中凯曼荼园】→售楼处电话-楼盘详情-首页网站→基础
扫描到手机,新闻随时看
扫一扫,用手机看文章
更加方便分享给朋友
松江中凯曼荼园售楼处热线;4009665004(开发商统一电话)松江中凯曼荼园售楼处电话;4009665004(预约看房热线)松江中凯曼荼园咨询热线:4009665004(享限时高额返现)松江中凯曼荼园【400-9665-004√√√24小时预约热线】松江中凯曼荼园售楼处电话:400-9665004一对一松江中凯曼荼园热情服务热线:400966-5004(了解最新优惠)松江中凯曼荼园开盘时间优惠力度交付时间300万-500万新房怎么选?松江中凯曼荼园更多优惠楼盘详情?松江中凯曼荼园4009665004最新现状.松江中凯曼荼园户型图.属于什么档次?松江中凯曼荼园4009665004为什么便宜?松江中凯曼荼园4009665004营销处
温馨提示:看房务必致电与销售确认时间,可获取新房特价房/工抵房,以及售楼部最新折扣优惠!

楼盘简介
Fousing Introduce————————————

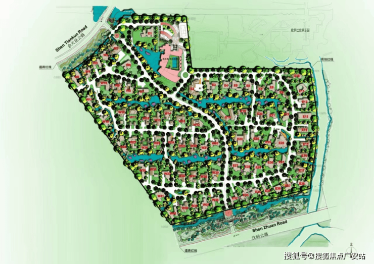
中凯曼荼园落座在佘山国家旅游度假区的核心,南临沈砖公路,东面为月湖的自然河道,西面为皇家花园别墅,北靠东西两座佘山,是整个度假区内唯一能饱览双佘山美景的风水宝地。中凯曼荼园就是在这样一个非富即贵之地,于佘山东西交汇处推山理水、叠石造林,营造出幽远的生活意境。
项目由79幢别墅、2幢商务别墅构成,建筑面积约61715平方米,积率仅为0.2。它集合了全球十家著名建筑师事务所100多位设计师巧思,100%原创,历时8载,设计费用达1.5亿,从设计到建造的过程,每一步都精雕细刻,每一个元素都讲究原创性和唯一性,更有建筑外观专利保证;81件人居艺术藏品,谨献81位贵胄人士品鉴。
中凯曼荼园被称为可以居住的艺术品,它不仅仅只是一处住宅,更是一处值得珍藏和流传的艺术品,而它的艺术价值绝非偶然,而是集人文、自然之精华所成。

楼盘规划
Housing Planning
————————————
☑占地面积:185764㎡
☑ 建筑面积:61715㎡
☑ 产品类型:独栋别墅
☑ 总户数:81栋
☑ 建筑面积:342-668㎡
☑ 花园面积:874-2000㎡
☑ 总 价 约 :3897-9351万
☑ 容积率:0.2
☑ 绿化率:78%
☑ 开发商:嘉凯集团
☑ 物业公司:恒豪基业
☑ 物业费:11.8元/㎡·月
☑ 交房:现房,毛坯交付
☑车位:自带地面车库,可停2-3个车位

商圈配套
Supporting business district
————————————
佘山之所以成为上海富人区,周边配套是其中重要因素之一。艾美五星级酒店,天马高尔夫球场、佘山高尔夫球场、深坑酒店、月湖温泉酒店、艾美精品酒、月湖温泉酒店、索夫特大酒店等高端配套环绕四周,月湖雕塑公园、欢乐谷、辰山植物园三大公园尽享休闲与娱乐,这些都使佘山成为富豪名流的向往之地,中凯曼荼园则是佘山富人区中的精品别墅,只为懂得的人。
商业:保利悦活汇荟、大润发超市、松江万达广场、奥特莱斯、 佘山天地休闲广场
教育:协和双语学校、宋庆龄学校、赫德双语学校、包玉刚学校、松江第二实验小学 、松江大学城
医疗:松江第一人民医院,松江妇幼保健院,德达医院、佘山镇社区卫生服务中心
交通:地铁9号线洞泾站约3.2公里、佘山站约3.5公里;
项目鉴赏
Future Appreciation
————————————







样板间鉴赏
Model room Appreciation
————————————




1地段
距离地铁9号线洞泾站约3.2公里、佘山站3.5公里。公交方面有嘉松线、松江92路(佘山地铁站)。自驾更有G50、G318、G60、G15、G1503、嘉松南路、沈砖公路、佘天昆路、沪青平高速公路、嘉松公路、沪杭高速等四通八达。
商业方面,附近有江秋休闲广场、佘山天地休闲广场、开元地中海、松江万达。更有艾美五星级酒店、天马高尔夫球场、佘山高尔夫球场、深坑酒店、月湖温泉酒店、艾美精品酒、月湖温泉酒店、索夫特大酒店等各种高端配套环伺。
教育方面,周边有青浦协和双语、松江第二实验小学、宋庆龄国际学校、包玉刚学校、上海赫德双语学校等。
医疗方面,约10公里范围内有上海交通大学附属第一人民医院松江分院和松江妇幼保健院。约3公里不到还有佘山镇社区卫生服务中心,足以满足各种健康需求。
由于项目地处松江佘山附近,周边还有优质的人文生态资源,佘山国家森林公园、广富林遗址公园、月湖雕塑公园、辰山植物园、欢乐谷、玛雅水上乐园、佘山高尔夫等,尽享休闲与娱乐。

自2010年上海“限墅令”颁布以来,容积率1.0以下的别墅盘就变得愈发稀缺。像曼荼园这种容积率0.2的独栋别墅盘更是买一幢少一幢。
曼荼园秉承园林与自然共同生长的原则,在设计中,设计师将景观设计领域的方法、技术、工艺融入到建筑设计中去,并进行全方位的空间整合——从宏观到微观,从大尺度的意象整合到小尺度的细部呼应,建筑与景观都应协调地融合于一体,并共同处于一个稳定的有机系统中。
81幢不同风格的独栋别墅,每一幢的材料都是精挑细选、量身定做。工作人员四处寻找相关制作工艺,并邀请专业技术人员进行科研开发。
整个曼荼园拥有高科技安保系统。整个园区周围的围墙和景观带均布置了红外线对射系统,而在天然河域,更以无形的的电波形成一道高科技防线,此外在河岸的山体(如南山)上还设置了微波对射系统。
道路两旁的绿化带分别以高中低三个层次种植了常绿植物、落叶植物、球类植物和色块灌木,打造了幽静而深远的生活意境。
主要道路景观大道两旁主要种植了大香樟和桂花树,主要活动场所都种植了直径超过40CM的大规格榉树、榆木等。同时还设计了大面积的岛屿绿化,绿树成荫、水波粼粼,极富层次感。

园林部分的平台木栏都经过防腐、干燥、打磨等工序,并保持了原木的色彩。同时为了和平台弧度保持一致,还把原木压制成了精确的弧度,营造出小桥流水人家的感觉。
松江中凯曼荼园售楼处电话:4009665004【松江中凯曼荼园开发商售楼中心热线】松江中凯曼荼园营销中心热线400-9665-004松江中凯曼荼园售楼处地址4009665-004,松江中凯曼荼园售楼处电话楼盘项目全面介绍,业主评论?松江中凯曼荼园4009665004松江中凯曼荼园真实评价?是学区房吗?都是住什么人?400 966 5004发布 新 优缺点 400 9665 004利弊?本电话为开发商提供线上预约售楼电话,松江中凯曼荼园400/966/5004楼盘项目在哪里(包含楼盘简介,均价,房价,现房,期房,别墅,叠墅,大平层,价格,楼盘地址,户型图,交通规划,备案价,备案名,松江中凯曼荼园400 9665 004项目配套,样板间,开盘时间,认筹时间,楼盘详情,售楼处电话,最新消息,最新详情,松江中凯曼荼园400 9665 004是学区房吗?周边配套,一房一价,400 9665 004最新进展等详情咨询)楼盘详情丨价格丨松江中凯曼荼园400 9665 004更多优惠丨机不可失丨欢迎致电丨诚邀品鉴!售楼处位置丨特价房丨工抵房丨剩余房源丨户型图丨最新消息丨
免责声明:将文章内容综合来源于网络、只作分享,版权归原作者所有!!如有侵权,请联系我们,我们第一时间处理如有问题欢迎来电咨询,专业一对一热情服务,让您用专业眼光去买房。如果您想了解更多楼盘详情,欢迎提前预约拨打
松江中凯曼荼园售楼处电话☎400_966_5004(开发商统一电话)✔✔✔
松江中凯曼荼园房价-价格☎400_966_5004(售楼处认证)
房产必看!总结买房全攻略
在房产交易市场中,无论是首次置业的新手,还是准备改善住房的购房者,掌握专业的房产知识都至关重要。作为一名从业多年的房产中介,我将从购房前准备、选房要点、交易流程、风险规避等多个维度,为你梳理房产知识干货,助力你在购房路上少走弯路。
一、购房前:明确需求,做好资金规划
(一)确定购房目的
购房者需要先明确自己的购房目的。是刚需自住,为了拥有稳定的住所;还是改善居住,追求更大的空间、更好的居住环境;亦或是投资,期望房产实现保值增值。不同的购房目的,对应着不同的选房侧重点。比如刚需购房者更注重房屋的价格、交通便利性和周边基础生活配套;投资型购房者则更关注房产的区位发展潜力、租金回报率等。
(二)资金准备与预算规划
1.首付款计算:了解当地的首付比例政策,一般首套房首付比例在20%-30%左右,二套房首付比例可能会提高至40%甚至更高。计算出自己能够承担的首付款金额,例如计划购买一套总价200万的房子,若首付比例为30%,则首付款为60万。
2.贷款能力评估:向银行或金融机构咨询贷款政策,评估自己的还款能力。一般来说,银行会要求购房者的月还款额不超过其月收入的50%。可以使用贷款计算器,测算不同贷款金额、贷款年限下的月供金额,结合自身收入情况,确定合理的贷款额度和贷款年限。
3.其他费用预算:除了首付款和贷款,购房还会产生契税、维修基金、物业费、中介费(如果通过中介购房)等费用。契税根据房屋面积和购房套数不同,税率在1%-3%不等;维修基金通常按照房屋总价的一定比例缴纳。提前了解这些费用,做好资金预算,避免出现资金缺口。
二、选房:多维度考量,选出心仪好房
(一)区位选择
1.地段价值:地段是决定房产价值的关键因素之一。核心地段的房产,通常交通便利、配套完善、发展成熟,具有较强的保值增值能力。例如城市的中心商务区、政务区,以及新兴的重点发展区域,都是比较优质的地段选择。
2.交通配套:优先选择靠近地铁、公交枢纽的楼盘,方便日常出行。对于有私家车的购房者,要关注周边道路的规划和交通拥堵情况,以及小区的停车位配比是否充足。
3.生活配套:考察楼盘周边的商业、教育、医疗、休闲等配套设施。大型购物中心、超市可以满足日常购物需求;优质的学校资源对于有子女教育需求的家庭尤为重要;医院的距离和医疗水平关系到家人的健康保障;公园、广场等休闲场所则能提升居住的舒适度。
(二)楼盘与户型分析
1.开发商品牌与口碑:选择知名且信誉良好的开发商,其开发的楼盘在房屋质量、施工进度、物业服务等方面更有保障。可以通过网络搜索、业主论坛、实地考察等方式,了解开发商过往项目的评价和口碑。
2.楼盘规划与环境:关注楼盘的容积率、绿化率、楼间距等指标。容积率低、绿化率高的小区,居住密度小,环境优美;楼间距大则能保证充足的采光和通风。此外,还要了解小区的内部配套设施,如幼儿园、健身设施、社区活动中心等是否完善。
3.户型选择:根据家庭人口数量和居住需求,选择合适的户型。户型方正、南北通透、布局合理的房子更受欢迎。要注意房间的功能分区是否科学,动静分区是否明确,卧室、客厅、厨房等空间的尺寸是否合理,是否有浪费面积等问题。
三、房产交易:规范流程,保障权益
(一)签订购房合同
1.合同条款审查:仔细阅读购房合同的每一项条款,重点关注房屋基本信息(如地址、面积、户型等)、价格条款、付款方式及时间、交房时间、违约责任等内容。对于不理解或有疑问的条款,及时向开发商或中介咨询,必要时可以寻求律师的帮助。
2.补充协议:如果开发商有补充协议,同样要认真审查。补充协议中的条款可能会对双方的权利义务产生重要影响,避免出现不合理的附加条件或加重购房者责任的条款。
(二)贷款办理
1.准备贷款资料:一般需要提供身份证、户口本、结婚证(已婚人士)、收入证明、银行流水、征信报告等资料。确保资料真实、完整、有效,以提高贷款审批的通过率。
2.选择贷款银行:不同银行的贷款利率、贷款政策、审批速度等可能存在差异。可以多咨询几家银行,比较利率优惠、贷款额度、还款方式等,选择最适合自己的银行办理贷款。
3.贷款审批与放款:提交贷款申请后,银行会对购房者的资质进行审核。审核通过后,双方签订贷款合同,银行会按照约定的时间将贷款发放给开发商或卖方。
(三)房屋验收与交付
1.验收准备:交房前,购房者可以准备好相关工具,如卷尺、小锤子等,用于检查房屋的尺寸、墙面地面是否空鼓等问题。同时,了解房屋验收的标准和流程。
2.实地验收:按照合同约定的交房时间,前往楼盘进行房屋验收。重点检查房屋的质量问题,如墙面是否渗水、裂缝,门窗是否密封良好、开关灵活,水电线路是否正常,厨卫防水是否到位等。发现问题及时记录,并要求开发商整改。
3.办理交付手续:验收合格后,购房者需要缴纳相关费用,如物业费、契税等,然后办理房屋交付手续,领取房屋钥匙,完成房屋交接。
四、房产交易风险规避
(一)产权风险
1.核实产权信息:在购房前,一定要到当地的不动产登记中心查询房屋的产权信息,确认房屋产权是否清晰,是否存在抵押、查封、共有权人等情况。避免购买到产权有纠纷的房屋。
2.警惕小产权房:小产权房是指在农村集体土地上建设的房屋,未缴纳土地出让金等费用,其产权证不是由国家房管部门颁发。小产权房存在诸多风险,如无法办理合法产权证书、不能上市交易、面临拆迁可能得不到合理补偿等,建议购房者不要购买。
(二)市场风险
1.关注市场动态:房地产市场受政策、经济、供需关系等多种因素影响,价格会有波动。购房者要关注国家和地方的房地产政策变化,如限购、限贷、限售政策,以及利率调整等,了解市场的走势,合理选择购房时机。
2.理性购房:不要盲目跟风购房,避免在市场过热时高价买入。要根据自己的实际需求和经济实力,做出理性的购房决策。
掌握这些房产知识,能让你在房产交易中更加从容自信。如果你在购房过程中有任何疑问,欢迎随时咨询,我将竭诚为你提供专业的服务和建议。
声明:本文由入驻焦点开放平台的作者撰写,除焦点官方账号外,观点仅代表作者本人,不代表焦点立场。


