和萃澜庭|苏州(和萃澜庭售楼处电话)首页网站和萃澜庭欢迎您|楼盘详情/户型
扫描到手机,新闻随时看
扫一扫,用手机看文章
更加方便分享给朋友
苏州「和萃澜庭」
售楼处电话☎:400-998-7894✔✔【预约热线】(一对一热情服务)
如有问题欢迎来电咨询,专业一对一售楼处电话☎:400-998-7894✔✔热情服务,让您用专业眼光去买房。
在四期领证3个多月后
科技城 和萃澜庭五期领证

备案均价 2.95万/㎡
单价区间在 27691~30591元/㎡
总价区间在 326~372万元售楼处电话☎:400-998-7894✔✔
和萃澜庭属于板块内少见的新中式风格,售楼处电话☎:400-998-7894✔✔毫无疑问建发参与了项目。

项目容积率在科技城不算高,面积段偏小售楼处电话☎:400-998-7894✔✔,整体定位刚需/刚改小区。
和萃澜庭
基本情况
开盘时间:2022年6月售楼处电话☎:400-998-7894✔✔
交房时间:2024年6月
建筑类型:小高层8幢(18F)、洋房13幢(11F)
规划户数:1048户
容积率:1.8售楼处电话☎:400-998-7894✔✔
车位比:1.42 :1(1490个)
面积段:101~140㎡售楼处电话☎:400-998-7894✔✔
开发商:苏州鑫城发房地产开发有限公司(武汉城建、金地、建发)
交付:精装交付售楼处电话☎:400-998-7894✔✔
关于科技城的基本情况,我们在售楼处电话☎:400-998-7894✔✔(科技城新标杆!苏州拾月璟庭值得买吗?)已经说过不少。作为国内首个由科技部、省政府、市政府共建的大型研发创新基地,售楼处电话☎:400-998-7894✔✔科技城的定位和规划起点都非常高。
经过十余年的发展,售楼处电话☎:400-998-7894✔✔科技城现聚集了100余家院所,214家研发机构,600家各类金融投资机构,以及1000多家国内外知名企业和高新技术项目售楼处电话☎:400-998-7894✔✔,产业实力在各大新城里遥遥领先。
评分:
3
太湖大道以南的教育资源相对贫乏售楼处电话☎:400-998-7894✔✔,最近的小学是科技城实验小学西渚校区和高新区第三中学(原东渚中学和镇湖中学),整体实力较弱。售楼处电话☎:400-998-7894✔✔当然最终还是要看教育部门的划分。

评分:
2
项目距离有轨电车1号线售楼处电话☎:400-998-7894✔✔、2号线的换乘站“龙康路”仅300米左右,整体出行还算方便。

评分:
3
小区南面是邻里中心生活新空间,售楼处电话☎:400-998-7894✔✔总建筑面积2.8万方,投资2.8亿,涵盖新型农贸市场、超市、餐饮、教育培训、健身中心等,可满足日常生活的大部分需求售楼处电话☎:400-998-7894✔✔。距离项目1公里左右还有文体中心,梦之城等综合体售楼处电话☎:400-998-7894✔✔,吃喝玩乐都能满足。

评分:
4
项目距离科技城医院售楼处电话☎:400-998-7894✔✔(南京大学医学院附属苏州医院)只有430米,按照3甲医院设计打造,科技城最好的医院。

评分:
4
先看一下小区的大门,宽50米,售楼处电话☎:400-998-7894✔✔高9.9米,据说参考了乾清宫设计。
都说建发是卖大门的售楼处电话☎:400-998-7894✔✔,就问这风格你喜不喜欢?如果你觉得一般,再看两张开发商的宣传照:


是不是有一种住进了王府的感觉售楼处电话☎:400-998-7894✔✔?再看一下小区的布局,也彻底地把中式风格贯彻到底。各组团命名都像是从历史中穿越过来的一样。
甚至连单元门的打造也颇为用心售楼处电话☎:400-998-7894✔✔,与千篇一律的阿拉伯数字不同。

外立面上,采用的是真石漆+铝板设计售楼处电话☎:400-998-7894✔✔,屋顶虽然也有屋檐,相比建发高端项目显得有点缩水。

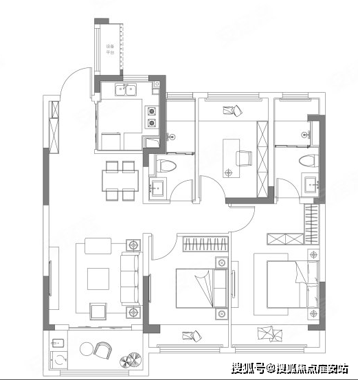
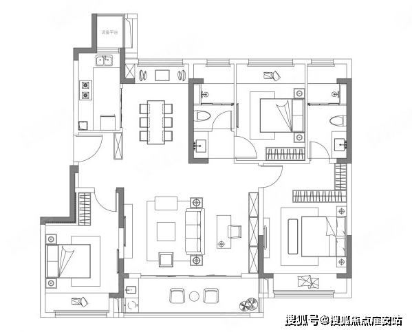
户型设计方面中规中矩,飘窗赠送蛮多售楼处电话☎:400-998-7894✔✔,102不太推荐,118和140都是横厅设计,尺度感相对更好。如果对面积有更大的要求,售楼处电话☎:400-998-7894✔✔可以考虑隔壁的拾月璟庭。

建筑面积102平

建筑面积118平

建筑面积140平
评分:
4
项目周边都是新建小区,售楼处电话☎:400-998-7894✔✔北面是景观带,界面很新。

北面的太湖大道是科技城的主干道,如果有可能,尽量避开最后一排。
评分:
4
作为一个定位刚需/刚改的楼盘,售楼处电话☎:400-998-7894✔✔能够呈现出这样的产品状态,说实在话挺让人吃惊的。从配套和定价来看,项目还是有一定的性价比,售楼处电话☎:400-998-7894✔✔但除了地缘用户,谁又愿意过来呢?

总分:
24
苏州「和萃澜庭」
售楼处电话☎:400-998-7894✔✔【预约热线】(一对一热情服务)
如有问题欢迎来电咨询,专业一对一热情服务,让您用专业眼光去买房
声明:本文由入驻焦点开放平台的作者撰写,除焦点官方账号外,观点仅代表作者本人,不代表焦点立场。


