滨江鸣澜里(售楼处)首页网站-滨江鸣澜里销售中心(营销中心)-滨江鸣澜里楼盘欢迎您-小区环境-户型-价格-地址-楼盘详情-滨江鸣澜里售楼处电话-交房时间
扫描到手机,新闻随时看
扫一扫,用手机看文章
更加方便分享给朋友
滨江鸣澜里售楼处电话☎:400-865-7114(预约看房热线√√)
滨江鸣澜里售楼处电话/地址☎:4008657114【售楼中心已认证√√】
售楼处电话☎:400-8657-114【售楼处预约热线】(一对一热情服务)
看房请务必提前致电销售确认时间,只有预约客户才能享受开发商提供的内部优惠以及专属的老客户推荐奖励!我们提供专业的一对一热情服务,助您以专业视角挑选理想的房产。

近日,拱墅区运河新城滨江兴耀·鸣澜里取出首个预售证,2#、6#,共140套房,面积103-120-126-139方,最低单价28350元/平,均价33781元/平!还送车位!
登记结果已经公示,相当耀眼:共387组登记,中签率36.18%!其中人才2组,有房家庭350组,最低中签率29.43%。
1.户型&样板间介绍
建面约103-139方,实得率高达94%
鸣澜里整盘规划6栋17-24层高层,容积率2.7、绿地率约35%,构筑建面约103-139方覆盖首置、改善人群,包括5大户型,其中建面约103方大三房、约120方-126方-139方为大四房,深受关注。
滨江鸣澜里售楼处电话☎:400-865-7114(预约看房热线√√)
滨江鸣澜里售楼处电话/地址☎:4008657114【售楼中心已认证√√】
(鸣澜里立面效果示意图)
建面约103方3房2卫,「入门即改善」的典范
南向三开间朝南,约9.8米大面宽,约7米阔绰阳台,餐客厅贯通,并连接阳台,百变待客空间;套房式主卧,南联阔景飘窗,栖居更温馨舒适。
在降低总价门槛的同时,也让年轻购房者能轻松享受到「改善性的大三房」,对于总价3打头的户型来说,不管是实用性、空间感优势都格外突出。
滨江鸣澜里售楼处电话☎:400-865-7114(预约看房热线√√)
滨江鸣澜里售楼处电话/地址☎:4008657114【售楼中心已认证√√】
建面约120方4房2卫,爆款全能舒适四房
这款改善四居户型,拥有同面积段罕见的约13.1米南向大面宽,四个房间面宽均超过3米,南向主卧和次卧分布在客厅两侧,保证了居者私密性;客餐厅、阳台一线贯通,不仅轩敞气派,而且采光效果更好;主卧套房设计,舒适度拉满。
滨江鸣澜里售楼处电话☎:400-865-7114(预约看房热线√√)
滨江鸣澜里售楼处电话/地址☎:4008657114【售楼中心已认证√√】
建面约126方4房2卫,270°稀缺边套四房
如果追求视野和仪式感,该户型完美契合。四开间朝南的王者格局,主卧配约3.5米飘窗,叠加约6.1米观景宽幕,你的家就像“运河第一排观景座”,运河船只往来间,镌刻下永不落幕的风景。
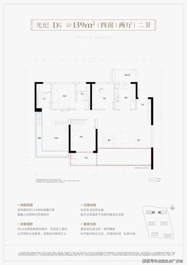
建面约139方4房2卫,宝藏款社交型大宅
约139方则分为横竖两款,全部为边套,两梯两户设计,尊崇感和私密感兼备。“横版”是四开间朝南+大方厅+L型转角飘窗的“全景舱主卧”+超级双联阳台;“竖版”有大边厅带超长观景飘窗+约10米南向三开间+酒店式套房……房源数量很少,且摇且珍惜。
滨江鸣澜里售楼处电话☎:400-865-7114(预约看房热线√√)
滨江鸣澜里售楼处电话/地址☎:4008657114【售楼中心已认证√√】
2.周边配套介绍
既有现在,更有未来
或许你会好奇,为什么「运河新城+滨江造」总能创造热销奇迹?我想以下几点值得关注。
其一、城北之芯运河新城,产业集聚,人才扎堆,居住、置换的需求巨大。
作为杭州主城留白地、拱墅「举全区之力」重点建设的城北之芯,运河新城打出“文化+地标”、“生态+生活”、“经济+产业”三大组合拳,让其含金量持续飙涨。
人文荟萃:诸如京杭大运河博物院(在建)、大运河未来艺术科技中心(规划)等7大城市级艺文地标环伺,人文艺术气息拉满。
宜居胜地:未来,千年运河旁生长出一条世界级的滨水空间带,全长18公里山水景观环链,放置14个不同主题的水岸活力公园。
滨江鸣澜里售楼处电话☎:400-865-7114(预约看房热线√√)
滨江鸣澜里售楼处电话/地址☎:4008657114【售楼中心已认证√√】
(京杭大运河航拍图,源自图虫,已授权)
科创引领:杭州首个创新型小镇智慧网谷,已经吸引了新浪、360、联想、华为等大批高新互联网企业入驻,虹吸海量高素质人才。

(智慧网谷规划图,源自网络)
不仅如此,杭钢数字经济小镇(规划),国资云、气象云、健康云三大省级数字基座在此扎根。
滨江鸣澜里售楼处电话☎:400-865-7114(预约看房热线√√)
滨江鸣澜里售楼处电话/地址☎:4008657114【售楼中心已认证√√】
(杭钢半山数字经济小镇示意图,源自网络)
杭州又一国字号“中国算谷”即将诞生(也是“杭州科创六谷”之一)正在建设中,这里或将成为下一轮科技爆发的原点!
(中国算谷示意图,源自网络)
北部康桥健康产业、能源产业也逐步落地。如此高层次的战略部署,运河新城起飞模式已经开启。
其二、运河新城C位,占位黄金生活圈,鸣澜里拥享醇熟生活优配。
(鸣澜里区位示意图)
除了板块潜力无限,鸣澜里本身的占位亦不容小觑。
项目位居“大城北历史年轮带”与“大运河风光文化带”这两大轴线交汇点,极强的CP加持,鸣澜里隐形价值更加刺激。
交通方面,地铁4号线平安桥站直线距离约700米,15号线康桥路站(在建)约320米,加上康桥路、丽水北路、上塘高架等,出行便捷。
周边城北万象城、拱墅万达、运河上街、乐堤港等5大商业综合体环伺,让购物和聚会变得轻松愉快。

(育才大城北学校实景图,源自网络)
此外,教育资源云集,如育才大城北学校,以及文渊小学(新城校区)、杭十四中附属学校,杭十四中康桥校区,家门口还规划一所九年一贯制学校等。(注:具体学区以教育局官方文件为准)
值得一提的是,项目直线距离约300米运河水岸,出园可到运河游步道,近揽一线京杭大运河缤纷胜景,可以安放杭州人都有的运河情结。

滨江鸣澜里售楼处电话:400-8657-114【售楼中心】
咨询高峰期请耐心等待,预约来电尊享内部优惠,专业一对一热情服务,让您用专业眼光去买房。
滨江鸣澜里售楼处电话☎:4008657114【售楼热线】✔✔✔滨江鸣澜里营销中心热线☎4008657114滨江鸣澜里售楼处地址☎400--8657--114本电话为开发商提供线上售楼电话,楼盘项目全面介绍(包含楼盘详情,最新房价,户型图,容积率,小区配套环境,楼盘简介,售楼处位置,户型图,交通规划,备案价,项目配套,楼盘详情,售楼处电话,最新消息,最新详情,最新进展等详情咨询
免责声明:将文章内容综合来源于网络、只作分享,版权归原作者所有!!如有侵权,请联系我们,我们第一时间处理如有问题欢迎来电咨询,专业一对一热情服务,让您用专业眼光去买房。如果您想了解更多楼盘详情,欢迎提前预约拨打
声明:本文由入驻焦点开放平台的作者撰写,除焦点官方账号外,观点仅代表作者本人,不代表焦点立场。


