2025杭州萧山 建发·宸云 房价 户型-建发英冠宸云 小区环境 「建发英冠宸云 (2025杭州萧山区「建发宸云」)建发英冠宸云 (建发英冠宸云) 2025年最新动态丨
扫描到手机,新闻随时看
扫一扫,用手机看文章
更加方便分享给朋友
杭州萧山建发英冠宸云售楼处热线;4009665004(开发商统一电话)杭州萧山建发英冠宸云售楼处电话;4009665004(预约看房热线)杭州萧山建发英冠宸云咨询热线:4009665004(享限时高额返现)杭州萧山建发英冠宸云【400-966-5004√√√24小时预约热线】杭州萧山建发英冠宸云售楼处电话:400-966-5004一对一杭州萧山建发英冠宸云热情服务热线:400-966-5004(了解最新优惠)开盘时间优惠力度交付时间300万-500万新房怎么选?更多优惠楼盘详情?
温馨提示:看房务必致电与销售确认时间,可获取新房特价房/工抵房,以及售楼部最新折扣优惠!
建面约199-440方 王炸户型均涉及
无论风向如何,钱江世纪城单元(奥体)的新楼盘都是不愁卖的存在。
好比24年上半年有建发朗云以4400+组登记,触发拼社保!三开有房95个月社保!四开有房90个月社保等多次拼社保记录证明实力!下半年,绿城晓风明月低调开盘,一把梭哈有房中签了也只有6.53%,而且是240方大户型去化最快!
目前这2个项目已经全部售罄,接下来的世纪城,可以指向哪里,建发英冠奥体项目是优秀选择之一!
该地块于1月底,由英冠在76轮报价之后,以楼面价约3.36万/平,溢价率45.91%竞得,后由建发加入开发并操盘,本计划5.6月可能就有首开消息,但因为4上旬,建发大改版项目规划,因此所有节点都推后!
之所以说,它是优选选择的原因,主要有:①高层价格可能是不限价市场后,板块放风性价比最高的,,;②建发品牌房企操盘,在产品力上还是相对有保障的。
项目高层面积约199方,共2款同面积段的不同户型设计,并有户型图抢先奉送!
项目户型图独家首发
2款设计都不错
该户型图为四房三卫的格局,进门即独立玄关,仪式感强,还自带小储藏间,便于业主收纳、整理。南向连通阳台,采光视野都很不错。双套房设计,其中大套房带独立衣帽间。满足三代同堂的居住需求。
稍有遗憾的就是有一个暗卫。
本户型在格局设计上,同样是保留了四房三卫,相比于上者,本户型朝南的房间更多了,业主可以凭借自己的喜好选择户型方案。
199㎡四房两厅三卫
项目规划回顾
高低配:3幢高层+6幢叠墅
25年4月9日,项目发布新版规划:3幢20F高层、3幢四联排、五层排屋面世!
整体高低配,东高西低分布。
主要出入口位于北面的振宁路上,西面有五堡河一线河道景观。
主要出入口位于北面的振宁路上,西面有五堡河一线河道景观。
高层和排屋之间的区域有下沉庭院。高层区域有集中绿地、体育设施等。北面进入小区的区域有归家通道、景观廊架,整体的内部配套还是比较丰富的。
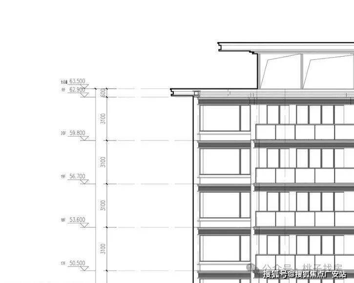
架空层层高4.2米,房源层高约3.1米。
附大寒日照:

地块更多基础信息回顾
2号线振宁路地铁口
24年11月,该地块迎来商改住的调整草案:
调整前:一宗含邮政所、农贸市场的商业地块;
调整后:一宗含社区食堂、残疾人社区康复站的涉宅地块,容积率2.7,限高80米;
地块具体位置:振宁路和民和路东南角。
最新地块公示信息:容积率下调至2.5;配套公建不大于10%(居家养老500㎡、婴幼儿210㎡、食堂80㎡、残疾人康复站30㎡、公厕75㎡)
地块实景:
周边配套详细解析:
交通:地铁2号线振宁路站直线约750米,周边主干道有盈丰路、机场大道等;
学校:1公里范围内杭州学军中学教育集团文渊中学、萧山实际实验小学、杭州市崇文实验学院、杭州第二中学钱江学校等均在侧;
商业:奥体印象城约1公里、信达中心约、SKP约2.5公里等;
其他:奥体博览城直线约2公里等;
杭州萧山建发英冠宸云售楼处电话:4009665004【杭州萧山建发英冠宸云开发商售楼中心热线】杭州萧山建发英冠宸云营销中心热线400-966-5004杭州萧山建发英冠宸云售楼处地址400-9665-004,杭州萧山建发英冠宸云售楼处电话楼盘项目全面介绍,本电话为开发商提供线上预约售楼电话,楼盘项目在哪里(包含楼盘简介,均价,房价,现房,期房,别墅,叠墅,大平层,价格,楼盘地址,户型图,交通规划,备案价,备案名,项目配套,样板间,开盘时间,认筹时间,楼盘详情,售楼处电话,最新消息,最新详情,周边配套,一房一价,最新进展等详情咨询)楼盘详情丨价格丨更多优惠丨机不可失丨欢迎致电丨诚邀品鉴!售楼处位置丨特价房丨工抵房丨剩余房源丨户型图丨最新消息丨
免责声明:将文章内容综合来源于网络、只作分享,版权归原作者所有!!如有侵权,请联系我们,我们第一时间处理如有问题欢迎来电咨询,专业一对一热情服务,让您用专业眼光去买房。如果您想了解更多楼盘详情,欢迎提前预约拨打
售楼处电话☎400_966_5004(开发商统一电话)✔✔✔
房价-价格☎400_966_5004(售楼处认证)
房产必看!总结买房全攻略
在房产交易市场中,无论是首次置业的新手,还是准备改善住房的购房者,掌握专业的房产知识都至关重要。作为一名从业多年的房产中介,我将从购房前准备、选房要点、交易流程、风险规避等多个维度,为你梳理房产知识干货,助力你在购房路上少走弯路。
一、购房前:明确需求,做好资金规划
(一)确定购房目的
购房者需要先明确自己的购房目的。是刚需自住,为了拥有稳定的住所;还是改善居住,追求更大的空间、更好的居住环境;亦或是投资,期望房产实现保值增值。不同的购房目的,对应着不同的选房侧重点。比如刚需购房者更注重房屋的价格、交通便利性和周边基础生活配套;投资型购房者则更关注房产的区位发展潜力、租金回报率等。
(二)资金准备与预算规划
1.首付款计算:了解当地的首付比例政策,一般首套房首付比例在20%-30%左右,二套房首付比例可能会提高至40%甚至更高。计算出自己能够承担的首付款金额,例如计划购买一套总价200万的房子,若首付比例为30%,则首付款为60万。
2.贷款能力评估:向银行或金融机构咨询贷款政策,评估自己的还款能力。一般来说,银行会要求购房者的月还款额不超过其月收入的50%。可以使用贷款计算器,测算不同贷款金额、贷款年限下的月供金额,结合自身收入情况,确定合理的贷款额度和贷款年限。
3.其他费用预算:除了首付款和贷款,购房还会产生契税、维修基金、物业费、中介费(如果通过中介购房)等费用。契税根据房屋面积和购房套数不同,税率在1%-3%不等;维修基金通常按照房屋总价的一定比例缴纳。提前了解这些费用,做好资金预算,避免出现资金缺口。
二、选房:多维度考量,选出心仪好房
(一)区位选择
1.地段价值:地段是决定房产价值的关键因素之一。核心地段的房产,通常交通便利、配套完善、发展成熟,具有较强的保值增值能力。例如城市的中心商务区、政务区,以及新兴的重点发展区域,都是比较优质的地段选择。
2.交通配套:优先选择靠近地铁、公交枢纽的楼盘,方便日常出行。对于有私家车的购房者,要关注周边道路的规划和交通拥堵情况,以及小区的停车位配比是否充足。
3.生活配套:考察楼盘周边的商业、教育、医疗、休闲等配套设施。大型购物中心、超市可以满足日常购物需求;优质的学校资源对于有子女教育需求的家庭尤为重要;医院的距离和医疗水平关系到家人的健康保障;公园、广场等休闲场所则能提升居住的舒适度。
(二)楼盘与户型分析
1.开发商品牌与口碑:选择知名且信誉良好的开发商,其开发的楼盘在房屋质量、施工进度、物业服务等方面更有保障。可以通过网络搜索、业主论坛、实地考察等方式,了解开发商过往项目的评价和口碑。
2.楼盘规划与环境:关注楼盘的容积率、绿化率、楼间距等指标。容积率低、绿化率高的小区,居住密度小,环境优美;楼间距大则能保证充足的采光和通风。此外,还要了解小区的内部配套设施,如幼儿园、健身设施、社区活动中心等是否完善。
3.户型选择:根据家庭人口数量和居住需求,选择合适的户型。户型方正、南北通透、布局合理的房子更受欢迎。要注意房间的功能分区是否科学,动静分区是否明确,卧室、客厅、厨房等空间的尺寸是否合理,是否有浪费面积等问题。
三、房产交易:规范流程,保障权益
(一)签订购房合同
1.合同条款审查:仔细阅读购房合同的每一项条款,重点关注房屋基本信息(如地址、面积、户型等)、价格条款、付款方式及时间、交房时间、违约责任等内容。对于不理解或有疑问的条款,及时向开发商或中介咨询,必要时可以寻求律师的帮助。
2.补充协议:如果开发商有补充协议,同样要认真审查。补充协议中的条款可能会对双方的权利义务产生重要影响,避免出现不合理的附加条件或加重购房者责任的条款。
(二)贷款办理
1.准备贷款资料:一般需要提供身份证、户口本、结婚证(已婚人士)、收入证明、银行流水、征信报告等资料。确保资料真实、完整、有效,以提高贷款审批的通过率。
2.选择贷款银行:不同银行的贷款利率、贷款政策、审批速度等可能存在差异。可以多咨询几家银行,比较利率优惠、贷款额度、还款方式等,选择最适合自己的银行办理贷款。
3.贷款审批与放款:提交贷款申请后,银行会对购房者的资质进行审核。审核通过后,双方签订贷款合同,银行会按照约定的时间将贷款发放给开发商或卖方。
(三)房屋验收与交付
1.验收准备:交房前,购房者可以准备好相关工具,如卷尺、小锤子等,用于检查房屋的尺寸、墙面地面是否空鼓等问题。同时,了解房屋验收的标准和流程。
2.实地验收:按照合同约定的交房时间,前往楼盘进行房屋验收。重点检查房屋的质量问题,如墙面是否渗水、裂缝,门窗是否密封良好、开关灵活,水电线路是否正常,厨卫防水是否到位等。发现问题及时记录,并要求开发商整改。
3.办理交付手续:验收合格后,购房者需要缴纳相关费用,如物业费、契税等,然后办理房屋交付手续,领取房屋钥匙,完成房屋交接。
四、房产交易风险规避
(一)产权风险
1.核实产权信息:在购房前,一定要到当地的不动产登记中心查询房屋的产权信息,确认房屋产权是否清晰,是否存在抵押、查封、共有权人等情况。避免购买到产权有纠纷的房屋。
2.警惕小产权房:小产权房是指在农村集体土地上建设的房屋,未缴纳土地出让金等费用,其产权证不是由国家房管部门颁发。小产权房存在诸多风险,如无法办理合法产权证书、不能上市交易、面临拆迁可能得不到合理补偿等,建议购房者不要购买。
(二)市场风险
1.关注市场动态:房地产市场受政策、经济、供需关系等多种因素影响,价格会有波动。购房者要关注国家和地方的房地产政策变化,如限购、限贷、限售政策,以及利率调整等,了解市场的走势,合理选择购房时机。
2.理性购房:不要盲目跟风购房,避免在市场过热时高价买入。要根据自己的实际需求和经济实力,做出理性的购房决策。
掌握这些房产知识,能让你在房产交易中更加从容自信。如果你在购房过程中有任何疑问,欢迎随时咨询,我将竭诚为你提供专业的服务和建议。
声明:本文由入驻焦点开放平台的作者撰写,除焦点官方账号外,观点仅代表作者本人,不代表焦点立场。


