中鹰黑森林-中鹰黑森林(2025·中鹰黑森林最新)楼盘详情-房价-户型-周边配套-交房时间-小区环境-中鹰黑森林售楼处位置
扫描到手机,新闻随时看
扫一扫,用手机看文章
更加方便分享给朋友
普陀中鹰黑森林售楼处热线;4009665004(开发商统一电话)普陀中鹰黑森林售楼处电话;4009665004(预约看房热线)普陀中鹰黑森林咨询热线:4009665004(享限时高额返现)普陀中鹰黑森林【400-966-5004√√√24小时预约热线】普陀中鹰黑森林售楼处电话:400-966-5004一对一普陀中鹰黑森林热情服务热线:400-966-5004(了解最新优惠)开盘时间优惠力度交付时间300万-500万新房怎么选?更多优惠楼盘详情?
温馨提示:看房务必致电与销售确认时间,可获取新房特价房/工抵房,以及售楼部最新折扣优惠!
中鹰黑森林
中鹰黑森林在售房源列表▼
中鹰黑森林 项目信息
•项目名称:中鹰黑森林
•项目地址:上海市新村路
项目名称:
•开 发 商:上海中鹰置业有限公司
•物业公司:上海中鹰黑森林物业有限公司
•产 权: 70年【住宅】
•交房标准:带装修【2梯2户】
• 能 源 费:15.8元/㎡/月【含中央能源费(毛细管冷暖系统、新风系统、地源热泵),中央净水、热水系统(热水免费供应),物业费等】
• 面 积:200.96㎡-.㎡(交付三房两厅三卫)
.㎡-.㎡-473.87㎡-.㎡(可定制)
• 均 价:14万/㎡
• 拿地时间:年月号(首期开盘2006年)
• 交房时间:现房交付

项目俯瞰图
中鹰黑森林名字
源自德国的黑森林
德国黑森林名来自德语的Schwarzwald,意思是“黑色的森林”,是德国西南部著名的自然风景区。在连绵起伏的群山间,漫山遍野树木林立,叶色绿得发黑,从高处远看这片层层叠叠的密林,犹如一片漫无边际的黑幕-黑森林。
项目实景图
【中鹰·黑森林】项目总建筑面积 27 万平方米,由5栋叠加别墅和 11 栋 16 层高层、高层公寓构成,小区规划采用了原生态森林公园布局,11000棵成年香樟树,豪华订制健康生活理念,让业主体验到全方位景观感受。所有房源均采用一梯一户设计,充分保障客户的私密性和尊贵感。
森林宽度达到130米,1公里长,体量足有4个半淮海公园大小,整个绿化率达到100%。
中鹰黑森林实景图
整个社区都是绿色森林,树海环抱,连底层都挑空6~9米,种植绿色,让每户人家都能“开窗见树”,让房子生长在森林之上。
中鹰黑森林实景图
绿色森林能调节微气候,降低噪音(一条40米宽的森林带可降低噪音10~15分贝)、阻隔尘埃(每公顷森林每年能吸附50~80吨粉尘),调节温度与湿度,净化空气,使人平静、舒服,而且可以降低人体的温度1-2℃,并能杀灭众多病菌,实现人与自然和谐相处。
项目实景图
【中鹰·黑森林】的四面墙体,全由瑞士Air-lux技术的Low-E四层玻璃打造,由于拥有两层氩气中空层,橡皮条密闭技术达太空舱级,且最大尺寸达6×3米,使得这种超高强度、隔热隔音的大玻璃,有了“透明墙”的美称。全视野的地窗系统,更让窗外的森林景致随时映入眼帘,方才不辜负成长10年的森林景色。
项目采用先进的屋顶花园系统,多达11层的屋顶生态科技,种植花草,形成屋顶生态,与森林环境共同形成中鹰私享的城市生态微气候,根除了水泥森林热岛效应,促进气候循环,提供动植物栖息地。
【中鹰·黑森林11号】创新采用“厚板框架结构”,力邀德国顶尖的独立工程咨询公司——Obermeyer(欧博迈亚)打造了上海首个高层纯住宅自由分割大平层。
在框架结构的基础上,又增加了一层“厚板”,即“上翻梁楼面体系”,这一巧妙布局,为其他功能系统、设备管线提供了解决方案,上述的新风管道、同层排水等都能在厚板中完成。
超厚的楼板,起到很好的隔音效果,上下户不受干扰,同时也为重新翻新房屋提供便利,不会影响房屋结构。
【中鹰·黑森林11号】,每一个细节都营造超乎寻常的舒适。智能家居控制系统,集合EIB欧洲总线系统及智能安防于一体。EIB欧洲智能总线,如同建立了人的大脑与诸多电气对话的平台,实现随心控制,安全智能化。
可轻松调节室内温度、湿度,户外智能卷帘光线角度以及整合家居的灯光、音响、影像等系统,同时还可实现手机、ipad远程控制,达到真正意义上的智能家居。

【中鹰·黑森林】在装修污染问题上更注重每一个细节:工程隐蔽+环保进口材料。
地板用的是德国Parador环保地板,不光无甲醛,还可分解甲醛、烟味等有害气体;
ERFURT墙纸,不仅无污染,脏了还能擦洗,再也不怕熊孩子乱涂乱画。如果几年后想换一下风格,还可以整体重刷颜色;
德国进口YTONG砖,标准性强、误差小,保温厚度达30公分,是欧洲用于保温结构材料的特能砖。
中鹰以YTONG砖替代普通砖,从砖墙自身增加了外墙保温性能。结合专用绿色粘结材料,达到无缝契合,且吸音隔音效果强,防渗漏,隔热保温,不开裂,使用寿命更长。
引进Larfage石膏板、龙骨、嵌缝条、护角条等系列材料,打造多层石膏板吊顶及内隔墙系统,防水防火,耐久不变形,且隔热保温、防腐环保。
卫生间采用同层排水系统和防水粘结系统:采用瑞士吉博力同层排水系统,将马桶水箱连同各类管道全部隐藏至隐蔽式墙体内,节水率高达50%;隐蔽式墙体安装,保持建筑结构完整,寿命长,易检修。
这样的设计大大节约了室内空间、美化了视觉效果,同时消除卫生死角,防止异味。各种管道不穿越楼板,上下住户无干扰,做到静音排水,告别噪声。
采用Basf、Henkel等品牌的卫生间水泥基防水粘结材料;阴阳角采用进口无纺布进行细部处理;淋浴区、迎水面水泥基防水层高度达到1.5-1.8m,双层防水。
至于厨房,引进奢华橱柜品牌Bulthaup(巴托普),通常来说,汽车原厂漆的烤漆喷涂需11道工序,而Bulthaup橱柜的环保高光烤漆工艺达12道。触感犹如钢琴琴键那般丝滑。
引进德国高科技的食物垃圾处理系统,让厨房卫生更轻松、实用、方便,倡导生活的环保健康理念。
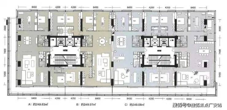
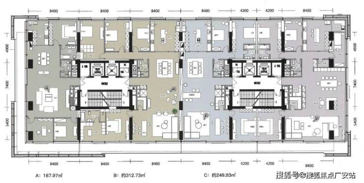
中鹰黑森林户型面积分布图
中鹰黑森林 样板间鉴赏
【中鹰·黑森林】的大平层都由欧洲顶级设计师执掌,并提供了北欧风范的奢华装修标准。全部个性化定制哦!你的房子户型你做主,前所未有的体验!
中鹰黑森林 周边配套
交通配套方面:项目距离轨交7号线新村路,11号线上海西站,自驾出行5分钟即可上内环高架和南北路高架路。
商业配套方面:上海巴黎春天(宝山店)、澳洲广场、仙乐都生活广场、弘基·时尚生活中心、大华虎城嘉年华、宝大祥青少年儿童购物中心、金盛休闲购物中心
教育资源方面:大渡河路第二幼儿园、上海市曹杨职业技术学校、普陀区满天星幼儿园分部、玉华中学、上海桐柏高级中学、同济大学(沪西校区)、晋元高级中学、晋元小学(对口)
晋元小学
医疗资源:上海宏康医院、上海市龙华中医医院集团普陀医院、上海九洲医院。
普陀医院
中鹰黑森林
普陀中鹰黑森林售楼处电话:4009665004【普陀中鹰黑森林开发商售楼中心热线】普陀中鹰黑森林营销中心热线400-966-5004普陀中鹰黑森林售楼处地址400-9665-004,普陀中鹰黑森林售楼处电话楼盘项目全面介绍,本电话为开发商提供线上预约售楼电话,楼盘项目在哪里(包含楼盘简介,均价,房价,现房,期房,别墅,叠墅,大平层,价格,楼盘地址,户型图,交通规划,备案价,备案名,项目配套,样板间,开盘时间,认筹时间,楼盘详情,售楼处电话,最新消息,最新详情,周边配套,一房一价,最新进展等详情咨询)楼盘详情丨价格丨更多优惠丨机不可失丨欢迎致电丨诚邀品鉴!售楼处位置丨特价房丨工抵房丨剩余房源丨户型图丨最新消息丨
免责声明:将文章内容综合来源于网络、只作分享,版权归原作者所有!!如有侵权,请联系我们,我们第一时间处理如有问题欢迎来电咨询,专业一对一热情服务,让您用专业眼光去买房。如果您想了解更多楼盘详情,欢迎提前预约拨打
普陀中鹰黑森林售楼处电话☎400_966_5004(开发商统一电话)✔✔✔
普陀中鹰黑森林房价-价格☎400_966_5004(售楼处认证)
房产必看!总结买房全攻略
在房产交易市场中,无论是首次置业的新手,还是准备改善住房的购房者,掌握专业的房产知识都至关重要。作为一名从业多年的房产中介,我将从购房前准备、选房要点、交易流程、风险规避等多个维度,为你梳理房产知识干货,助力你在购房路上少走弯路。
一、购房前:明确需求,做好资金规划
(一)确定购房目的
购房者需要先明确自己的购房目的。是刚需自住,为了拥有稳定的住所;还是改善居住,追求更大的空间、更好的居住环境;亦或是投资,期望房产实现保值增值。不同的购房目的,对应着不同的选房侧重点。比如刚需购房者更注重房屋的价格、交通便利性和周边基础生活配套;投资型购房者则更关注房产的区位发展潜力、租金回报率等。
(二)资金准备与预算规划
1.首付款计算:了解当地的首付比例政策,一般首套房首付比例在20%-30%左右,二套房首付比例可能会提高至40%甚至更高。计算出自己能够承担的首付款金额,例如计划购买一套总价200万的房子,若首付比例为30%,则首付款为60万。
2.贷款能力评估:向银行或金融机构咨询贷款政策,评估自己的还款能力。一般来说,银行会要求购房者的月还款额不超过其月收入的50%。可以使用贷款计算器,测算不同贷款金额、贷款年限下的月供金额,结合自身收入情况,确定合理的贷款额度和贷款年限。
3.其他费用预算:除了首付款和贷款,购房还会产生契税、维修基金、物业费、中介费(如果通过中介购房)等费用。契税根据房屋面积和购房套数不同,税率在1%-3%不等;维修基金通常按照房屋总价的一定比例缴纳。提前了解这些费用,做好资金预算,避免出现资金缺口。
二、选房:多维度考量,选出心仪好房
(一)区位选择
1.地段价值:地段是决定房产价值的关键因素之一。核心地段的房产,通常交通便利、配套完善、发展成熟,具有较强的保值增值能力。例如城市的中心商务区、政务区,以及新兴的重点发展区域,都是比较优质的地段选择。
2.交通配套:优先选择靠近地铁、公交枢纽的楼盘,方便日常出行。对于有私家车的购房者,要关注周边道路的规划和交通拥堵情况,以及小区的停车位配比是否充足。
3.生活配套:考察楼盘周边的商业、教育、医疗、休闲等配套设施。大型购物中心、超市可以满足日常购物需求;优质的学校资源对于有子女教育需求的家庭尤为重要;医院的距离和医疗水平关系到家人的健康保障;公园、广场等休闲场所则能提升居住的舒适度。
(二)楼盘与户型分析
1.开发商品牌与口碑:选择知名且信誉良好的开发商,其开发的楼盘在房屋质量、施工进度、物业服务等方面更有保障。可以通过网络搜索、业主论坛、实地考察等方式,了解开发商过往项目的评价和口碑。
2.楼盘规划与环境:关注楼盘的容积率、绿化率、楼间距等指标。容积率低、绿化率高的小区,居住密度小,环境优美;楼间距大则能保证充足的采光和通风。此外,还要了解小区的内部配套设施,如幼儿园、健身设施、社区活动中心等是否完善。
3.户型选择:根据家庭人口数量和居住需求,选择合适的户型。户型方正、南北通透、布局合理的房子更受欢迎。要注意房间的功能分区是否科学,动静分区是否明确,卧室、客厅、厨房等空间的尺寸是否合理,是否有浪费面积等问题。
三、房产交易:规范流程,保障权益
(一)签订购房合同
1.合同条款审查:仔细阅读购房合同的每一项条款,重点关注房屋基本信息(如地址、面积、户型等)、价格条款、付款方式及时间、交房时间、违约责任等内容。对于不理解或有疑问的条款,及时向开发商或中介咨询,必要时可以寻求律师的帮助。
2.补充协议:如果开发商有补充协议,同样要认真审查。补充协议中的条款可能会对双方的权利义务产生重要影响,避免出现不合理的附加条件或加重购房者责任的条款。
(二)贷款办理
1.准备贷款资料:一般需要提供身份证、户口本、结婚证(已婚人士)、收入证明、银行流水、征信报告等资料。确保资料真实、完整、有效,以提高贷款审批的通过率。
2.选择贷款银行:不同银行的贷款利率、贷款政策、审批速度等可能存在差异。可以多咨询几家银行,比较利率优惠、贷款额度、还款方式等,选择最适合自己的银行办理贷款。
3.贷款审批与放款:提交贷款申请后,银行会对购房者的资质进行审核。审核通过后,双方签订贷款合同,银行会按照约定的时间将贷款发放给开发商或卖方。
(三)房屋验收与交付
1.验收准备:交房前,购房者可以准备好相关工具,如卷尺、小锤子等,用于检查房屋的尺寸、墙面地面是否空鼓等问题。同时,了解房屋验收的标准和流程。
2.实地验收:按照合同约定的交房时间,前往楼盘进行房屋验收。重点检查房屋的质量问题,如墙面是否渗水、裂缝,门窗是否密封良好、开关灵活,水电线路是否正常,厨卫防水是否到位等。发现问题及时记录,并要求开发商整改。
3.办理交付手续:验收合格后,购房者需要缴纳相关费用,如物业费、契税等,然后办理房屋交付手续,领取房屋钥匙,完成房屋交接。
四、房产交易风险规避
(一)产权风险
1.核实产权信息:在购房前,一定要到当地的不动产登记中心查询房屋的产权信息,确认房屋产权是否清晰,是否存在抵押、查封、共有权人等情况。避免购买到产权有纠纷的房屋。
2.警惕小产权房:小产权房是指在农村集体土地上建设的房屋,未缴纳土地出让金等费用,其产权证不是由国家房管部门颁发。小产权房存在诸多风险,如无法办理合法产权证书、不能上市交易、面临拆迁可能得不到合理补偿等,建议购房者不要购买。
(二)市场风险
1.关注市场动态:房地产市场受政策、经济、供需关系等多种因素影响,价格会有波动。购房者要关注国家和地方的房地产政策变化,如限购、限贷、限售政策,以及利率调整等,了解市场的走势,合理选择购房时机。
2.理性购房:不要盲目跟风购房,避免在市场过热时高价买入。要根据自己的实际需求和经济实力,做出理性的购房决策。
掌握这些房产知识,能让你在房产交易中更加从容自信。如果你在购房过程中有任何疑问,欢迎随时咨询,我将竭诚为你提供专业的服务和建议。
声明:本文由入驻焦点开放平台的作者撰写,除焦点官方账号外,观点仅代表作者本人,不代表焦点立场。


