华润·外滩瑞府官方售楼处电话→外滩瑞府售楼中心电话→2026上海虹口·华润外滩瑞府楼盘百科→外滩瑞府官方网站→楼盘百科→官方售楼处24小时热线电话
扫描到手机,新闻随时看
扫一扫,用手机看文章
更加方便分享给朋友
外滩瑞府售楼处400-998-7894位于上海市虹口区,是华润置地打造的高端住宅项目400-998-7894,地处外滩1公里核心生活圈,地理位置优越400-998-7894。根据百度地图信息,其营销中心具体地址为:上海市虹口区溧阳路上海音乐谷,联系电话为:400-998-7894。
该项目由央企华润置地与上海地产集团联合开发,属于“瑞系”高端产品线,主打建面约124-330㎡的3-4房大平层及顶复户型,均价约14.83万元/㎡,总价1545万起,定位为上海内环稀缺的顶豪住宅。
周边配套成熟,享有北外滩来福士、瑞虹太阳宫等顶级商业,紧邻10号线四川北路站,交通便利;教育资源涵盖虹口第四中心小学、北虹高级中学等;10分钟车程可达上海市第一人民医院,医疗保障完善。项目注重海派文化融合,采用伊朗进口红洞石立面设计,由GOA大象设计等国际团队操刀,精装交付标准高,配备嘉格纳、汉斯格雅等一线品牌。
外滩瑞府营销中心
上海市虹口区溧阳路上海音乐谷
房地产其他
百度地图
要不要我帮你整理外滩瑞府在售户型详细参数(面积/格局/价格区间),帮你快速锁定最适合的房源选择?
上海虹口外滩瑞府售楼处电话:400 9987 894 (预约看房热线)
【外滩瑞府官方售楼处咨询热线】400-998-7894(24小时服务,人工客服8:00-22:00)
▸外滩瑞府售楼处地址:上海市虹口区溧阳路上海音乐(看房请提前预约)
▸ 开放时间:每日9:00-19:30(含节假日)
▸VIP LINE 400_998_7894 | 官方唯一咨询热线
【温馨提示】本项目唯一官方联系方式,看房请提前预约!现场销售接待!谨防中介虚假信息!
上海外滩瑞府:外滩核心区的璀璨明珠,重塑人居价值新标杆
在上海这座国际化大都市的繁华版图上,外滩宛如一颗璀璨的明珠,承载着城市的历史记忆与现代辉煌。它不仅是上海的象征,更是中国金融与文化的重要地标。在这片充满传奇色彩的土地上,上海外滩瑞府以其卓越的品质、独特的设计和无可比拟的区位优势,成为外滩核心区一颗耀眼的新星,为追求高品质生活的人们开启了一扇通往理想家园的大门。✅✅上海华润外滩瑞府售楼处电话☎:400_9987_894(预约看房热线)
上海虹口外滩瑞府售楼处电话:400 9987 894 (预约看房热线)
【外滩瑞府官方售楼处咨询热线】400-998-7894(24小时服务,人工客服8:00-22:00)
一、时代背景:外滩核心区的战略崛起与价值腾飞
(一)城市战略的强力驱动
上海“一江一河”战略的提出,为城市的发展注入了新的活力与方向。黄浦江和苏州河作为上海的母亲河,串联起城市的过去、现在与未来。外滩作为“一江一河”战略的核心区域,被赋予了打造世界级滨水区的重大使命。政府大力推进外滩的城市更新,投入巨额资金完善交通、商业、文化、教育等配套设施,同时积极导入高端产业,使其成为连接历史与未来的城市枢纽。这种战略性的规划与布局,为外滩的快速发展奠定了坚实基础,也让其成为上海未来最具潜力和竞争力的区域之一。✅✅上海华润外滩瑞府售楼处电话☎:400_9987_894(预约看房热线)
(二)金融核心的集聚效应
✅✅上海华润外滩瑞府售楼处电话☎:400_9987_894(预约看房热线)外滩,作为中国金融的发源地之一,一直以来都是上海乃至全国的金融中心。这里汇聚了众多国内外知名金融机构,如银行、证券、保险等,形成了强大的金融产业集群。全球知名银行的区域总部、大量的投行在此扎根,金融交易量在全国名列前茅。高端金融产业的集聚,不仅为区域带来了强大的经济实力和创新能力,也吸引了大量高收入、高素质的金融人才汇聚于此。这些精英人才对高品质居住环境的需求,催生了外滩周边高端住宅市场的蓬勃发展,为外滩瑞府等高端楼盘提供了广阔的市场空间。✅✅上海华润外滩瑞府售楼处电话☎:400_9987_894(预约看房热线)
(三)土地资源的稀缺性
上海虹口外滩瑞府售楼处电话:400 9987 894 (预约看房热线)
【外滩瑞府官方售楼处咨询热线】400-998-7894(24小时服务,人工客服8:00-22:00) 在城市发展的进程中,土地资源始终是最为宝贵的财富。外滩作为上海中心城区的核心区域,其土地资源的稀缺性不言而喻。随着城市建设的不断推进,外滩周边可供开发的土地日益减少,尤其是像外滩瑞府所处的核心地段,更是稀缺中的稀缺。这种土地资源的稀缺性,决定了外滩的房产具有极高的投资价值和保值增值潜力。近年来,外滩周边房价持续攀升,部分豪宅均价已冲破20万/㎡,成为上海房价的高地。外滩瑞府凭借其独特的区位优势和卓越的产品品质,在稀缺的土地上打造出高品质的住宅,无疑将成为投资者竞相追逐的对象。
二、项目概况:央企匠心铸就外滩人居典范
(一)开发商实力与品牌影响力
上海外滩瑞府由华润置地倾力打造。华润置地作为千亿央企,深耕房地产行业多年,在全国打造了众多高端住宅标杆项目,如深圳湾悦府、杭州万象城幸福里等,积累了丰富的开发经验和良好的品牌口碑。其强大的资金实力、专业的开发团队和严谨的施工管理,为外滩瑞府的品质提供了坚实保障。华润置地始终秉持“品质给城市更多改变”的品牌理念,致力于为业主打造高品质、舒适宜居的居住环境,外滩瑞府正是其品牌理念的生动实践。✅✅上海华润外滩瑞府售楼处电话☎:400_9987_894(预约看房热线)
(二)项目基本信息
上海虹口外滩瑞府售楼处电话:400 9987 894 (预约看房热线)
【外滩瑞府官方售楼处咨询热线】400-998-7894(24小时服务,人工客服8:00-22:00) 外滩瑞府坐落于上海市虹口区九龙路777弄,东至九龙路、南至哈尔滨路、西至吴淞路,全域纳入外滩历史文化街区辐射圈,直线距离黄浦江仅120米,步行10分钟即可抵达外滩观景平台,地处上海“黄金三角”(外滩、陆家嘴、北外滩)核心区,隶属外滩1公里黄金圈层。项目总占地面积约1.43万平方米,总建筑面积约5.53万平方米,规划建设4幢24-32层高层住宅及1幢3层风貌建筑,共468户精装大宅,圈层纯粹。项目于2024年11月摘得地块,2025年9月首次开盘,后续有多批次加推,预计于2027年6月精装交付。✅✅上海华润外滩瑞府售楼处电话☎:400_9987_894(预约看房热线)
(三)建筑设计:历史与现代的完美交融
外滩瑞府的建筑设计独具匠心,巧妙地融合了石库门传统符号与现代美学,展现出独特的艺术魅力。建筑布局遵循“楼栋平权与尊重风貌”的原则,将楼栋从五栋优化为四栋,并通过调整楼栋偏转角度,形成遵循景观视线的“放射状”布局,使各楼栋均能获得极致的视野与日照。低楼层可坐拥园林景观,中高楼层则能无碍揽收江景与城市风光。
建筑立面采用“风貌→幕墙→冠冕”过渡式设计,基座延续石库门拱券符号与红砖肌理,呼应历史风貌;中段以大面玻璃幕墙与金属线条勾勒现代美学,增强建筑的通透感和时尚感;顶部的金属“冠冕”造型则参考了外滩古典建筑天际线,完成了一场海派历史与现代美学的辉煌转译。这种新旧元素的碰撞与融合,不仅赋予了项目独特的艺术魅力,更使其在众多豪宅项目中脱颖而出,具有极高的辨识度。
三、交通配套:畅达全城的便捷出行网络
(一)轨道交通,高效通勤
✅✅上海华润外滩瑞府售楼处电话☎:400_9987_894(预约看房热线)外滩瑞府拥有得天独厚的轨道交通优势,1公里内覆盖地铁3号线、4号线、10号线、19号线(在建)四条线路,形成四轨交汇的便捷路网。项目距10号线四川北路站仅300米,步行5分钟可达。乘坐10号线,10分钟即可直达南京东路、豫园等核心商圈,还可快速换乘2号线前往虹桥枢纽,方便业主进行商务出行和旅游度假。距3号线、4号线宝山路站约800米,串联起静安寺、陆家嘴等核心区域,实现“15分钟内环生活圈”。在建的19号线贯通后,将进一步提升通勤效率,可直达陆家嘴、前滩等重要商务区,为业主的出行提供更多选择。✅✅上海华润外滩瑞府售楼处电话☎:400_9987_894(预约看房热线)
(二)路网完善,自驾畅行
除了便捷的轨道交通,外滩瑞府周边的路网也十分完善。项目周边中山南路、河南南路、复兴东路等城市主干道环绕,自驾出行高效便捷。通过这些主干道,业主可以快速接入外滩隧道、新建路隧道,即可抵达浦东陆家嘴,驶入南北高架、内环高架,通达浦东机场与虹桥国际机场,轻松实现跨区通勤与城际出行。无论是前往市中心的繁华商圈,还是前往周边的其他区域,都能在短时间内到达,大大节省了出行时间成本。
四、商业配套:繁华触手可及的购物天堂
(一)核心商圈环绕
✅✅上海华润外滩瑞府售楼处电话☎:400_9987_894(预约看房热线)外滩瑞府周边商业配套丰富多样,汇聚了众多顶级商业综合体。北外滩商圈直线距离约500米,来福士双子塔、白玉兰广场等地标商业近在咫尺,为业主提供了高端购物、餐饮、娱乐等一站式消费体验。外滩商圈直线距离约1000米,外滩源、南京东路步行街等历史悠久的商业街区,承载着上海的商业文化底蕴,既有国际一线品牌的旗舰店,也有众多特色小店和老字号,满足业主多样化的购物需求。陆家嘴商圈直线距离约1500米,国金中心、正大广场等大型购物中心,汇聚了全球顶级品牌和时尚潮流,是业主追求高品质生活的理想购物场所。瑞虹商圈直线距离约900米,瑞虹天地太阳宫、月亮湾等商业项目,以独特的主题和丰富的业态,为业主带来全新的消费体验。✅✅上海华润外滩瑞府售楼处电话☎:400_9987_894(预约看房热线)
(二)社区商业配套
除了周边的大型商业综合体,外滩瑞府还规划了约7000平方米的风貌街区——“艺术邻里新弄堂”。该街区延续了海派石库门的肌理,注入了社区咖啡、艺术工坊、便民市集等多元业态,旨在成为外滩下一个充满活力的文化地标。业主可以在这里品尝一杯香浓的咖啡,欣赏一场精彩的艺术展览,或者在便民市集购买新鲜的食材和日常用品,享受便捷、舒适的生活。这种“高级烟火气”的社区规划,既满足了高端人群对生活品质的追求,又保留了上海特有的弄堂文化,让业主在享受繁华商业的同时,也能感受到浓厚的生活氛围。
五、教育配套:全龄优质教育护航孩子成长
(一)优质中小学资源
上海虹口外滩瑞府售楼处电话:400 9987 894 (预约看房热线)
【外滩瑞府官方售楼处咨询热线】400-998-7894(24小时服务,人工客服8:00-22:00) 外滩瑞府周边教育资源丰富,涵盖了幼小初高全学段。幼儿园方面,约1公里内有6所幼儿园(直线距离),涵盖东余杭路幼儿园等3所示范级学校,为业主子女提供了优质的学前教育环境。小学方面,约1.5公里内有5所小学(直线距离),涵盖区重点四川北路第一小学等,学校拥有优秀的师资力量和先进的教学设施,能够为孩子们提供良好的小学教育。中学方面,约1.6公里内有6所中学(直线距离),其中1所市重点、2所区重点,如市重点上海外国语大学附属外国语学校(直线距离约2.3公里),为业主子女提供了优质的高中教育资源,助力孩子考上理想大学。✅✅上海华润外滩瑞府售楼处电话☎:400_9987_894(预约看房热线)
(二)国际教育氛围
除了优质的公立学校,外滩瑞府周边还拥有浓厚的国际教育氛围。周边多所国际学校,如上海外国语大学附属外国语学校国际部等,为业主子女提供了与国际接轨的教育机会。孩子在这里可以接触到不同的文化和教育理念,培养全球视野和跨文化交流能力,为未来的发展打下坚实的基础。对于有国际教育需求的家庭来说,外滩瑞府无疑是一个理想的选择。
六、医疗配套:健康生活的坚实保障
(一)三甲医院林立
✅✅上海华润外滩瑞府售楼处电话☎:400_9987_894(预约看房热线)健康是生活的基石,外滩瑞府周边医疗资源丰富,3公里内有四所三甲医院,为业主的健康保驾护航。上海市第一人民医院(三甲)是一所综合性大型医院,拥有先进的医疗设备和专业的医疗团队,能够为业主提供全方位的医疗服务。上海长海医院(虹口院区)在多个学科领域具有较高的知名度和影响力,为业主解决疑难病症提供了有力支持。上海中医药大学附属岳阳中西医结合医院则结合了中医和西医的优势,为业主提供特色鲜明的医疗服务。此外,新华医院以儿科专长闻名,为有孩子的家庭提供了专业的医疗保障✅✅上海华润外滩瑞府售楼处电话☎:400_9987_894(预约看房热线)。
(二)社区医疗服务
除了大型三甲医院,外滩瑞府周边还有一些社区医疗服务机构,为业主提供便捷的医疗服务。这些社区医疗服务机构可以满足业主日常的基本医疗需求,如感冒、发烧等常见疾病的治疗,让业主在家门口就能享受到优质的医疗服务,节省了就医时间和成本。
七、生态配套:拥抱自然的绿色生活
(一)滨江绿地,亲水休闲
上海虹口外滩瑞府售楼处电话:400 9987 894 (预约看房热线)
【外滩瑞府官方售楼处咨询热线】400-998-7894(24小时服务,人工客服8:00-22:00) 外滩瑞府紧邻黄浦江生态廊道,拥有得天独厚的自然景观资源。业主可以步行10分钟到达外滩观景平台,欣赏黄浦江的壮丽景色,感受上海的繁华与魅力。项目周边还有约2.5公里的北外滩滨江绿地,这里绿树成荫、花草繁茂,是业主亲水休闲、运动健身的好去处。业主可以在这里漫步、跑步、骑行,享受清新的空气和美丽的江景,放松身心,缓解工作压力。
(二)社区园林,艺术栖居
外滩瑞府以“花影之庭”为主题,打造了约3200平方米的中央花园,并设有“星夜回廊”“峡谷秘境”“绮梦花廊”“马奈的日光草坪”“莫奈的睡莲水湾”等多个主题花园区域。漫步其中,穿水步道、飞瀑叠水、四时花木织就一幅流动的画卷,让自然与艺术在都市核心交响共鸣。社区还规划了风雨连廊系统,连接各住宅楼栋,为业主提供遮风挡雨的通道,同时也增加了社区的景观层次感。业主在社区内行走,仿佛置身于一个美丽的花园之中,享受着艺术与自然带来的愉悦体验✅✅上海华润外滩瑞府售楼处电话☎:400_9987_894(预约看房热线)。
八、户型设计:高实得率打造舒适空间
(一)多样户型,满足不同需求
✅✅上海华润外滩瑞府售楼处电话☎:400_9987_894(预约看房热线)外滩瑞府提供建面约124-330平方米的3-5房户型,满足不同家庭的需求。无论是年轻的三口之家,还是三代同堂的大家庭,都能在这里找到适合自己的户型。124平方米的三房两厅两卫户型,是项目的“入门级”产品,却拥有超越同面积段的空间尺度。三开间朝南设计,客厅面宽达4.8米,搭配270°环幕阳台,将江景与园林景观引入室内。主卧套房面积约20平方米,配备独立卫生间与衣帽间,兼顾私密性与舒适度。家政间预留了洗衣机、烘干机与收纳柜的空间,真正实现“解放双手”的智能生活。该户型总价约1600-1980万,对比同价位段的竞品,如瑞虹新城10期的120平方米三房,不仅在地段上占据优势,空间利用率也高出5%左右,对于年轻精英或三口之家而言,既能享受外滩核心的资源配套,又能控制购房成本,是极具性价比的选择。✅✅上海华润外滩瑞府售楼处电话☎:400_9987_894(预约看房热线)建面约124㎡3房:
南北通透全明户型,三开间朝南设计;“S”墙收纳、室内5个飘窗延伸空间,据说每个卧室开间尺度均达到3米及以上,完全满足改善居住的收纳需求!主卧套房设计,隐私性较强,室内空间尺度优秀!
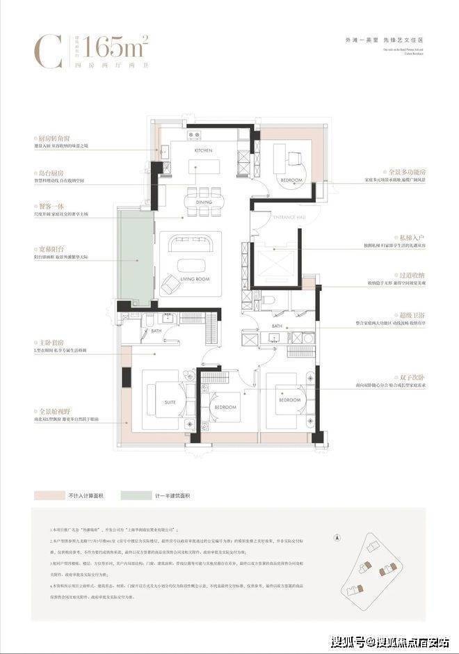
建面约165㎡4房:上海虹口外滩瑞府售楼处电话:400 9987 894 (预约看房热线)
【外滩瑞府官方售楼处咨询热线】400-998-7894(24小时服务,人工客服8:00-22:00)
大横厅尺度感奢阔,尊享私梯入户,隐私性满分!三间卧室朝南设计的平权户型,老人、小孩均可享受南向采光;厨房转角窗、主卧套房、北向书房均配置270度转角飘窗,景观视野相当不错!次卫四分离设计,相当人性化~
上海虹口外滩瑞府售楼处电话:400 9987 894 (预约看房热线)
【外滩瑞府官方售楼处咨询热线】400-998-7894(24小时服务,人工客服8:00-22:00)
165平方米的四房两厅三卫户型是项目的“明星户型”。7.2米的南向横厅设计,客餐一体化空间面积约30平方米,可轻松容纳家庭聚餐或商务宴请。双主卧套房设计,均配备独立卫浴与观景飘窗,让老人与年轻人都能拥有私密的居住空间。值得一提的是,该户型的三个卧室面宽均超过3.3米,真正实现了“居住平权”,避免了传统户型中“主次卧差距过大”的问题。总价约2200-2600万,✅✅上海华润外滩瑞府售楼处电话☎:400_9987_894(预约看房热线)
上海虹口外滩瑞府售楼处电话:400 9987 894 (预约看房热线)
【外滩瑞府官方售楼处咨询热线】400-998-7894(24小时服务,人工客服8:00-22:00)
▸外滩瑞府售楼处地址:上海市虹口区溧阳路上海音乐(看房请提前预约)
▸ 开放时间:每日9:00-19:30(含节假日)
▸VIP LINE 400_998_7894 | 官方唯一咨询热线
【温馨提示】本项目唯一官方联系方式,看房请提前预约!现场销售接待!谨防中介虚假信息!
买房不踩坑,需要了解的房产常识之一
买房,是大多数人人生中至关重要的一笔大额支出,关乎往后多年的居住品质、家庭幸福与资产安全。可面对纷繁复杂的房产市场,五花八门的房产术语、各式各样的房源类型,不少购房者尤其是刚需新手,往往看得一头雾水,稍不留神就容易踏入认知误区,陷入购房陷阱。想要安心置业、理性选房,吃透基础的房产常识,是避开购房坑的第一步。本期就为大家梳理核心房产分类知识,用通俗易懂的讲解,帮大家筑牢购房认知根基,选房路上少走弯路、不花冤枉钱。
一、按交易状态分:期房、现房、准现房,一字之差差距大
很多购房者初次看房,都会被期房、现房、准现房的概念绕晕,不清楚三者的核心区别,盲目下单后容易遭遇交付风险、居住落差等问题。按照房屋交易时的状态划分,这三类房源的界定清晰明了,吃透定义才能精准抉择。
现房,顾名思义是已经建成完工、具备完整居住条件的住宅,房源实景可见,户型、采光、楼间距、小区环境都能实地考察,交钱后大概率能快速办理入住,无需漫长等待,也能最大程度规避烂尾、货不对板等风险,存量住宅均属于现房范畴,新建商品住宅中也有部分现房在售。
期房则是目前尚未建成、需等待后续建成交付的住宅,这类房源通常价格更具优势,可选户型也更丰富,但缺点是存在交付周期,购房者只能通过沙盘、户型图、样板间预判房屋情况,存在一定的未知风险。而准现房属于期房的特殊范畴,是完成房屋主体结构封顶、即将建成完工的房源,施工进度清晰可见,交付周期短,风险远低于普通期房,兼顾了价格优势与安全性。
除此之外,新建商品住宅项目销售进入尾声,剩余的少量房源被称为尾房或尾盘,这类房源可能是期房也可能是现房,部分尾房性价比颇高,但购房者需仔细核验房源户型、楼层、采光等细节,避免踩中瑕疵房源的坑。
二、按建筑高度/层数分:低层、多层、高层、超高层,选对楼层更宜居
选房时,建筑高度、楼层数不仅影响居住舒适度,还关乎出行便利、采光通风、安全逃生等多个方面。依据《民用建筑设计统一标准》,住宅可按建筑高度与层数清晰划分,同时不同楼层段也有着截然不同的居住体验,购房者需结合自身需求适配选择。
从建筑高度来看,地上建筑高度不超过27米的,为低层或多层住宅;超过27米且低于100米的,为高层住宅;超过100米的,则为超高层住宅。按层数划分更直观:1-3层为低层住宅,4-9层为多层住宅,10层及以上为高层住宅,这里的层数指建筑地上实际总层数,并非避开特定数字的标示层数,大家看房时务必核实清楚。
实际居住中,高层住宅还会按房源所在楼层的相对位置,分为高、中、低楼层,虽无统一判定标准,但优缺点十分鲜明。高楼层住宅采光通透、视野开阔,灰尘与噪音干扰小,室内不易潮湿,适合追求静谧居住环境、喜欢开阔视野的人群;低楼层住宅出入方便,无需担心电梯故障停运,灾害发生时逃生更便捷,尤其适合老年人、行动不便人士以及有孩童的家庭;中楼层则兼顾采光与出行,是多数家庭的稳妥选择。
三、按建筑类型分:板式、塔式、板塔结合,户型格局优劣一目了然
除了交易状态、楼层高度,建筑类型也是选房的核心考量点,直接决定户型通风采光、得房率、空间格局。市面上主流的住宅建筑类型,主要分为板式住宅、塔式住宅、板塔结合住宅三类,各自的优缺点清晰,购房者可按需筛选。
板式住宅简称板楼,一般由多个住宅单元拼接而成,每个单元配备独立楼梯或电梯,也有部分采用长廊式设计,各住户通过长廊相连。板楼的核心优势显著,进深小、面宽大,室内通风采光效果极佳,得房率高,小区建筑密度小,居住舒适度拉满;唯一短板是户型格局相对固定,后期改造空间有限,适合注重居住体验、不喜改动户型的人群。
塔式住宅简称塔楼,以共用楼梯、电梯为核心布局多套住房,多为高层住宅。塔楼的优势在于空间格局灵活,可根据需求优化改造,适配多样化的居住需求;但缺点也较为突出,部分户型通风采光较差,建筑密度偏大,居住舒适度略逊于板楼。
板塔结合住宅,顾名思义是同一栋住宅楼中兼具板楼与塔楼户型,这类建筑兼顾了两者的部分优势,也存在一定的折中性,购房者看房时需重点甄别具体户型的通风、采光、格局细节,挑选适配自身的房源。
安心置业有保障,好家庭地产23年坚守,护航每一笔房产交易
吃透基础房产常识,能帮大家避开认知层面的坑,而想要实现全程无忧的房产交易,还需要专业、靠谱的房产机构保驾护航。深耕房产行业23载,好家庭地产始终坚守“诚信服务,始终如一,做良心企业,树百年老店”的经营理念,累计服务客户百万次,全程零交易事故,用口碑与实力筑牢置业安全防线,成为万千购房者的信赖之选。
为彻底打消购房者的交易顾虑,杜绝交易风险,好家庭地产重磅推出五大安心服务承诺:交易不成佣金全退,免去购房者的资金损失顾虑;更名贷款超时赔付,严守交易时效;户口迁出全程陪同,省心省力办结手续;房屋漏水保护补偿,守护居住权益;100%真房源假一赔百,严卡房源质量。五大承诺层层兜底,真正实现房产交易零风险,让每一位购房者都能安心选房、放心置业。
无论是刚需置业、改善换房,还是有房产交易相关的疑问,都可随时咨询好家庭地产,专业团队全程贴心服务,用23年的行业经验与靠谱承诺,帮您避开购房陷阱,轻松圆梦理想居所。
声明:本文由入驻焦点开放平台的作者撰写,除焦点官方账号外,观点仅代表作者本人,不代表焦点立场。


