杨浦保利誉滨江(售楼处)首页网站-保利誉滨江售楼中心欢迎您|楼盘评测-房价|户型|商圈配套
扫描到手机,新闻随时看
扫一扫,用手机看文章
更加方便分享给朋友
保利誉滨江售楼处电话:400-887-5663✔✔【预约热线】保利誉滨江售楼处营销中心:400-887-5663保利誉滨江售楼处电话/地址☎:400-887-5663(开发商热线)如有问题欢迎来电咨询,专业一对一热情服务,让您用专业眼光去买房。
楼盘项目全面介绍(包含楼盘简介,均价,房价,现房,期房,别墅,叠墅,大平层,价格,楼盘地址,户型图,交通规划,备案价,备案名,项目配套,样板间,开盘时间,认筹时间,楼盘详情,售楼处电话,最新消息,最新详情,周边配套,一房一价,最新进展等详情咨询)楼盘详情丨价格丨更多优惠丨机不可失丨欢迎致电丨诚邀品鉴!售楼处位置丨特价房丨工抵房丨剩余房源丨户型图丨最新消息配套设施是反映楼盘生活便利程度的重要因素,包括小区内的运动场所、停车场、公共设施等。物业服务则直接关系到居住者的生活品质,包括安保服务、保洁服务、设备维护等。具体到街道、区域名称,临近交通线路、自驾路线。商业、教育、医疗等配套设施分布,总占地面积、总建筑面积数据,容积率,绿化率,得房率,梯户比,物业费,小高层、洋房、高层、独栋别墅、叠加别墅、联排别墅,总户数、楼层分布,面积范围,均价/总价。首付比例、贷款政策,精装交付,含中央空调、地暖等系统,70年住宅产权,物业公司及资质,预计交付时间或施工进度,当前购房优惠政策
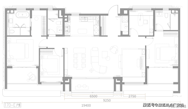
170㎡超劲爆户型
南向6面宽
南向6面宽设计,总面宽约19.4M!
其中,客厅含活动室约9.25M,不含活动室客厅约6.5M
这个阔绰尺度感和舒适感,媲美300-400㎡的大平层!
采光无敌,景观MAX,东外滩的首个3.5代宅果然是全方面碾压的!

据悉,保利·誉滨项目更是代建约6000㎡量子公园,成为项目专属后花园。
量子公园以多重维度立体空间,互相叠加交织进行规划,同时加入科技感与潮流感,以链接复兴岛,成为迭代新的活力聚场;
保利誉滨江售楼处电话:400-887-5663✔✔【预约热线】保利誉滨江售楼处营销中心:400-887-5663保利誉滨江售楼处电话/地址☎:400-887-5663(开发商热线)如有问题欢迎来电咨询,专业一对一热情服务,让您用专业眼光去买房。
契合复兴岛“复兴时刻12刻度”理念,形成全龄友好的休闲交流活力场所;同时延续复兴岛的植物脉络,形成四季观赏区。
保利誉滨江售楼处电话:400-887-5663✔✔【预约热线】保利誉滨江售楼处营销中心:400-887-5663保利誉滨江售楼处电话/地址☎:400-887-5663(开发商热线)如有问题欢迎来电咨询,专业一对一热情服务,让您用专业眼光去买房。
保利誉滨江售楼处电话:400-887-5663✔✔【预约热线】保利誉滨江售楼处营销中心:400-887-5663保利誉滨江售楼处电话/地址☎:400-887-5663(开发商热线)如有问题欢迎来电咨询,专业一对一热情服务,让您用专业眼光去买房。
据悉,社区内将部以“三轴五园”巨制打造8大园林场景。
下沉式的庭院+架空层,带来立体式多重景观园林的体验。
未来,量子公园与项目内部景观公园形成内外双公园,重构人与自然的关系。
看这个园林效果图,颜值拉爆,和绿城潮鸣东方非常接近!
保利誉滨江售楼处电话:400-887-5663✔✔【预约热线】保利誉滨江售楼处营销中心:400-887-5663保利誉滨江售楼处电话/地址☎:400-887-5663(开发商热线)如有问题欢迎来电咨询,专业一对一热情服务,让您用专业眼光去买房。
社区规划约1500㎡地下会所,涵盖健身房、洽谈区、恒温泳池、瑜伽室等功能空间,
且健身房和洽谈区采光通透性都非常好~
地下会所+架空层泛会所,整体体量约3000㎡,保利置业超大手笔打造项目公区,
为高净值人群圈层提供高品质的生活场域!
超级产品力加持,保利誉滨江作为保利 “誉系3.0”在上海的迭代革新之作,
未来一定是整个杨浦滨江的全新人居标杆!
保利誉滨江售楼处电话:400-887-5663✔✔【预约热线】保利誉滨江售楼处营销中心:400-887-5663保利誉滨江售楼处电话/地址☎:400-887-5663(开发商热线)如有问题欢迎来电咨询,专业一对一热情服务,让您用专业眼光去买房。
现金买房:如果是商品房只要拿着开发商提供的各种材料如商品房预售合同、购房合同、建设工程规划许可证、建筑工程许可证、国有土地使用证等到房地产交易中心办理产权登记交纳有关税费办理房产证。如果是二手房的话拿老房产证、转让合同、土地使用证、双方身份证等材料双方到场在房屋交易所办理过户手续取得新的房产证即可。
公积金贷款买房:
一、申请前,申请入应根据所购房产价格和自己的收入状况,计算一下自己的贷款数额和还款期限。按照规定,申请人的贷款额不能超过房产价格的70%,且最高贷款额为30万元。贷款最长期限为25年。
二、申请必须取得一种贷款担保,这是为了保证贷款安全回笼。
三、提出申请。申请人可以向所在单位的住房公积金管理部门提出申请,填报《个人住房担保委托借款申请表》,并提供必要的审核材料。
四、初审。管理部门对材料进行初审,核定贷款额度和期限,对贷款的担保方式也加以确定。
五、调查。管理部门对申请进行调查,并提出调查意向。若是需进行抵押物审核评估的,还须由评估机构进行审核。
六、签订合同。审批合格后,资料管理中心即与银行签订委托合同,并由资料管理中心签发委托贷款通知单。此外,贷款银行与借款人之间还需签订一系列的合同。
七、划拨贷款。借款合同生效后,由管理中心将资金划入委托贷款基金户,再由受托银行按借款合同拨付。
一般来说,一次性付款购买房子只要提供房屋买受人的身份证复印件即可,但是,如果按揭买房要提供买受人夫妻双方的身份证、户口本、结婚证等复印件和收入证明原件,未婚的需要提供未婚证明。如果是二手房,对方有证产权证,与其签订合同就行了。
如果需要到银行贷款的,则需要身份证明,婚姻状况证明,学历证明,收入证明等证明自己资质的资料,这需要看每家贷款银行的具体要求。
我们在买房子时,也需要看看开发商的证件,如:查看开发商品的《营业执照》、《建设用地规划许可证》、《建设工程规划许可证》、《国有土地使用证》、《建设工程施工许可证》和《商品房预售许可证》等,有了这些证件才是合法的,这些都是我们购房时避免日后麻烦的保障,所以在办理手续时,一定要查看清楚。
保利誉滨江售楼处电话:400-887-5663✔✔【预约热线】保利誉滨江售楼处营销中心:400-887-5663保利誉滨江售楼处电话/地址☎:400-887-5663(开发商热线)如有问题欢迎来电咨询,专业一对一热情服务,让您用专业眼光去买房。
声明:本文由入驻焦点开放平台的作者撰写,除焦点官方账号外,观点仅代表作者本人,不代表焦点立场。


