北外滩壹号官方售楼处首页-上海虹口中粮北外滩壹号售楼处电话-开盘时间-房价-户型-楼盘详情-周边环境-户型-价格-地址-楼盘详情-中粮北外滩壹号售楼处电话
扫描到手机,新闻随时看
扫一扫,用手机看文章
更加方便分享给朋友
虹口中粮北外滩壹号售楼处热线;4009665004(开发商统一电话)虹口中粮北外滩壹号售楼处电话;4009665004(预约看房热线)虹口中粮北外滩壹号咨询热线:4009665004(享限时高额返现)虹口中粮北外滩壹号【400-9665-004√√√24小时预约热线】虹口中粮北外滩壹号售楼处电话:400-9665004一对一热情服务热线:400966-5004(了解最新优惠)虹口中粮北外滩壹号开盘时间优惠力度交付时间300万-500万新房怎么选?虹口中粮北外滩壹号更多优惠楼盘详情?4009665004最新现状.户型图.虹口中粮北外滩壹号属于什么档次?虹口中粮北外滩壹号4009665004为什么便宜?虹口中粮北外滩壹号4009665004营销处
温馨提示:看房务必致电与销售确认时间,可获取新房特价房/工抵房,以及售楼部最新折扣优惠!
4009665004
所有伟大的城市板块,都经历着从地理存在到文明符号的升华。
而当散点式的地王与明星楼盘不断雕刻局部价格天花板时,其背后实则遵循着一套更为实际且统一的价值叙事——稀缺性。
顺着稀缺性这一罗盘,我们便能清晰地洞察,真正的价值灯塔始终锚定于那片不可再生的核心资源:滨江住宅!
而上海人又恰恰对滨江住宅的要求近乎极致,既要占位城市重要规划点,又要有超出一般豪宅调性的品质,所以滨江住宅一直都是贵奢的代表。
在上海一线滨江板块地图中,陆家嘴,黄浦滨江、徐汇滨江等地新房单价都已突破19万/㎡。今年6批次,北外滩地块也紧随其上,溢价率46.3%,预计售价约19万/㎡左右,成为今年最炙手可热的滨江板块之一。
凭心而论,北外滩新房单价卖到19万我一点也不奇怪。
答案显而易见:北外滩一直都是时代的佼佼者,它既是百年前海纳百川的港口,又是今日的世界会客厅,还是上海的未来发展引擎。
所以,当人们以为北外滩新房售价即将冲向19万/㎡、未来买入北外滩将付出巨大经济代价时,一个巨大的历史性机遇,【中粮北外滩壹号】出现了!
均价14.38万,总价约3000万起,这个价格无疑是北外滩错过再无的抄底机遇!
中粮大悦城上海第五座壹号系,“世界S湾壹号作品”——【中粮·北外滩壹号】已过会,即将开启认购!
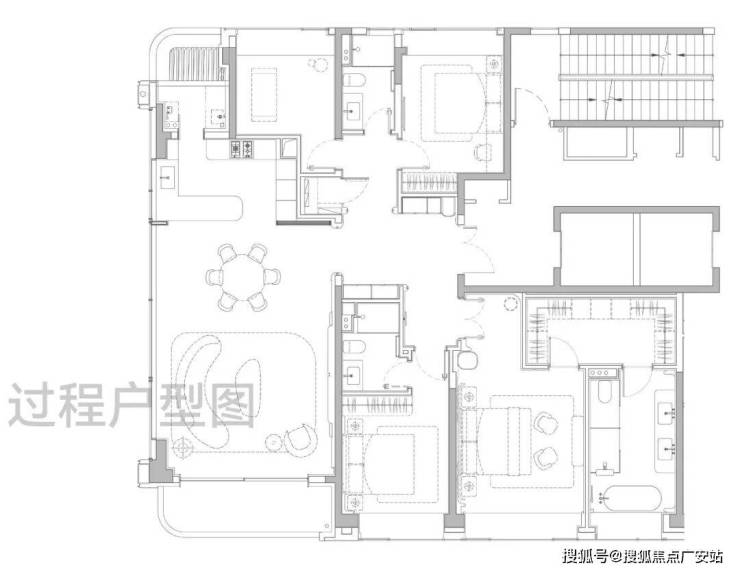
推售建面约185-228㎡天际大平层
过会均价143868元/m²
顶层地段+顶层社区+稀缺天际大平层价值,仅90席,错过再无!
售楼处及样板间持续开放中!

185㎡四房奢阔大宅
准1梯1户设计,私享电梯厅独立入户,经典飞机户型,三开间朝南,南北通透,动静分区,通风采光俱佳。
独立玄关做足私密性和仪式感;LDKB一体化设计的客餐厅面积达到约55㎡,方正大气。
主卧套房尺度豪奢,可供业主配置步入式衣帽间,卫生间做到双台盆+大浴缸+独立淋浴的顶配,尊崇感十足!
228㎡四房天际大宅
准1梯1户设计,私享电梯厅独立入户,户型尺度进一步升级,当今顶豪新盘中极为稀缺的四开间朝南。
边厅面积超过50㎡,给一家人提供了阔绰的交流空间;约270°环幕景观设计,带来极好的采光,并且高区可以直面陆家嘴城市天际线+黄浦江景观,视野相当震撼!
主卧大套房设计带超大主卫和衣帽间,面积约50㎡,尺度感与市面上近300㎡的顶豪拉平。
室内设计由中国现代室内设计领域的领军人物——梁志天亲自打造。
在材质选用上,延续了壹号系的高端标准,大量运用奢石、高难度弧形工艺以及国内外顶尖品牌。
如宝格丽大理石打造的西厨岛台、铂浪高的净水三合一水龙头和一体式大水槽、霍尼韦尔的前置过滤器、全屋软水以及末端净水器系统、来自意大利法罗力燃气热水器、德国唯宝卫浴、当代龙头及花洒......还有全屋华为智能家居系统配置。这一套组合,是真正意义上的顶豪序列配置!


「中粮北外滩壹号」作为中粮大悦城上海第五座“壹号系”标杆作品,堪称集万千优势于一身、上海高端住宅的典范。是有史以来第一个低密风貌壹号系,也是上海市中心12个历史风貌保护区中唯一一个成片风貌开发地块中的壹号系。
时间往前倒推15年,中粮大悦城围绕上海“一江一河”战略,布局5座壹号系豪宅作品,每一个都是板块标杆豪宅,拥有板块独立定价权!
全新壹号系低密风貌社区
「中粮北外滩壹号」容积率仅1.95,整个社区仅208户,包含90户云端大宅和118户风貌别墅,这样纯粹低密的居住社区在寸土寸金的市中心极为罕见,未来居住舒适度可想而知~
其中高层外立面昭示性十足!采用仿红砖陶板、优美柔和的设计元素、白色石材窗板以及古铜色金属线条设计,实现海派复古与现代建筑美学碰撞的艺术,颜值满分!

风貌别墅则复刻海派石库门的韵味,分成了三大组团,以当代设计笔法重构门头、放大窗墙比与院落尺度,提升居住舒适度;设计师更以石库门传统格局为骨架注入西洋新古典主义的精致魂魄,辅以Art Deco的现代锋芒,尽显传世级臻藏孤品的贵族基因。
顶豪御用设计天团打造调性十足!
「中粮北外滩壹号」承袭中粮大悦城壹号系顶豪基因,特邀全球豪宅设计天团打造,呈现出中粮壹号系顶豪力作!堪称当下顶豪品质社区匠心之选~

约1800㎡海派高奢立体景观会所
更难得的是,项目并未因地块规模而降低「壹号系」的顶豪标准,反而以突破性的“掘地三层”之魄力,专为业主打造约1800㎡的私享顶奢会所。
会所由全球顶奢酒店设计领域的标杆——CCD香港郑中设计事务所亲笔执笔。其精髓在于,将“酒店式的归家礼序”与“俱乐部式的圈层生活”融为一体,让每日“回家的路”,进阶为一场贯穿始终的、极具仪式感的生活体验。
为让公区真正成为业主家庭的延伸与生活聚场,设计团队针对高净值人群的真实生活轨迹,精准定制了全维功能场景:
活力健康区:配备恒温泳池、专业健身空间与静谧瑜伽室,满足全方位的身心滋养。
社交宴会区:打造了私宴厅、茶室与专属酒吧,从商务酬酢到亲友欢聚,皆能从容应对。
雅集共聚区:奢华的舞蹈录音室与学习阅读等多功能空间,为圈层交流与家庭娱乐提供了理想场域。
从目前已释出的效果图可见,其设计品位远超市场同类豪宅。CCD将其于顶级酒店中积淀的美学功力注入于此,在材质、光影与艺术的交织中,营造出一种不流于表象的、经得起时间品鉴的奢华气韵。
这方藏于地下的心奢之境,不仅是项目硬核实力的彰显,更是为中粮·北外滩壹号的业主,构建了一个真正属于他们的、静谧而尊贵的“第二客厅”。

都市隐奢宅邸的叙事园林
景观设计以「拾光映象」理念,用镜面水景、古木纹石材与艺术雕塑,重构源福里往昔的街巷记忆。
整体规划一横两纵三大轴线, 串联高层住区、文化保护别墅区、新海派风貌别墅区,通过不同设计语言形成“新旧交融”的空间节奏——高层区以现代简约线条演绎都市格调,别墅区则复刻历史肌理并注入现代美学。
特别设计了八大映象典藏场景景观节点,有百年梧桐下的静谧巷道串联各景观节点,还有充满文化积淀的海派艺术庭院等,营造出精致、典雅的高阶生活氛围。
归家仪式感打造上也可圈可点!
通过棋盘式巷弄布局串联公共与静谧区域,利用庭院,露台、下沉式花园等打造多层次空间,营造“建筑可阅读、城市可漫步 ”的高定体验,享受“进退有度”的海派私属生活。
归家社区大堂、大堂廊厅、以及入户大堂都彰显出社区高水准的海派高定设计语言,归家仪式感满满~
这一切共同构筑了一个将功能、美学与自然无界融合的高品质生活场域,更是都市精英人群未来的丰富生活剧场!
2023年9月5日,大悦城控股上海大区公司通过上海联交所成功竞得上海市虹口区北外滩116街坊地块(即中粮北外滩壹号)。地块位于北外滩红线内,靠近大连路地铁站,与外滩、陆家嘴共同构成上海“黄金三角”。

项目四至范围:东至保定路、hk367-02、hk367-05地块,南至昆明路,西至 hk367-03、hk367-04 地块,北至唐山路。
项目总用地面积约23849.2平方米,容积率1.95,总计容建面4.65万㎡,是上海市中心罕见的无商办、无15%自持住宅、无5%保障房的纯住宅项目。
整体由一栋24F高层住宅和风貌别墅组成。高层共90套、产品面积段约180-228m²,风貌别墅共118套,产品面积段约130-350m²,其中主力建面约203-205-230m²(占比约83%)
建筑立面,高层主体以仿红砖陶板+古铜色铝板+白色石材+玻璃幕墙的高标准结合,来完成建筑的美学表达。

风貌别墅则复刻海派石库门的韵味,但不同于大多数风貌别墅的格栅小花窗设计,「中粮·北外滩壹号」大幅增加窗墙比,赋予相对沉闷里的里弄建筑,更通透、更明亮的特质!

公区方面,从归家社区大堂、大堂序厅、以及入户单元大堂一路看过来,体现出一套脉络完整,层层递进的海派顶奢设计语言。
虽然项目仅有208户,仍然通过深挖三层,满配了高达约1800㎡的私享顶奢会所。按户均占有会所资源计来算,这在当今顶豪圈是顶尖的水平。
会所由全球顶奢酒店设计领域的标杆——CCD香港郑中设计事务所执笔。目前看到的效果图,体现出一股醇正的老钱世家风,设计品位远超市场同类豪宅。
社交宴会区内,私宴、茶室与专属酒吧一应俱全,满足业主商务应酬到亲友小聚的各种场景需求。
瑜伽健身区,大幅落地窗引入自然光线,天花的格栅造型,地面的复古拼花木地板,都透出浓厚的海派风情。
恒温泳池更是融入超级垂直花园庭院体系,直接在泳池中做出美轮美奂的景观。
雅集共聚区内,除了常规的阅读,棋牌等功能外,甚至设有一个舞蹈录音室,配置之高,沪上少见。
因为这是中粮大悦城的壹号系,珠玉在前,小编完全不担心会所未来兑现的效果,甚至已经很期待看到未来会所开放展示的那一刻。
景观方面,设计了「八大主题场景」,从百年梧桐下的静谧巷道,到充满未来感的艺术庭院,共同构成一个鲜活立体的生活剧场。
交通方面:项目周围环绕三条地铁,步行约360米到4、12号线大连路站,步行约560米到12、19号线(在建)提篮桥站。
地铁出行到人广和陆家嘴都只需要4站。未来,随着在建的南北大动脉19号线贯通,可以直达世博、前滩等多个核心滨江段。

自驾上,项目往北约300米就是北横通道,往南车行约1公里,就是新建路隧道和大连路隧道直达浦东。从项目到陆家嘴、北外滩和外滩都在10分钟左右。

商业方面:项目出门就是高浓度的国际生活主场,步行可达北外滩来福士(约600米)、瑞虹天地太阳宫(约350米)、白玉兰广场(约1公里),未来还将会兴建全球最火的时尚奢侈品商场之一的SKP。
半径3km内,还可以同时覆盖外滩、陆家嘴、苏河湾等“黄金三角”的繁华商业!

教育方面:周边学府众多,优质教育资源密集。北侧的长青学校是老牌的九年一贯制公办重点,南侧的上海中学国际部是知名民办名校,距离新华初级中学
(常年四校八大预录人数上百),新复兴初级中学,这两所虹口的顶尖民办学校也都在直线3KM内(新房不承诺对口学校,具体以实际为准)。
医疗方面:周边有复旦大学红房子妇产科医院,守护着每一个家庭的人生重要时刻。、以及三甲新华医院、上海市第一人民医院为健康生活保驾护航。

生态休闲:周边有22公顷无车漫步区、3.5万平方米航海公园与中央绿地相融,3.4公里滨江休闲岸线
虹口中粮北外滩壹号售楼处电话:4009665004【开发商售楼中心热线】营销中心热线400-9665-004虹口中粮北外滩壹号售楼处地址4009665-004,虹口中粮北外滩壹号售楼处电话楼盘项目全面介绍,虹口中粮北外滩壹号业主评论?虹口中粮北外滩壹号4009665004真实评价?是学区房吗?都是住什么人?虹口中粮北外滩壹号400 966 5004发布 虹口中粮北外滩壹号新 优缺点 400 9665 004利弊?本电话为开发商提供线上预约售楼电话,虹口中粮北外滩壹号400/966/5004楼盘项目在哪里
虹口中粮北外滩壹号(包含楼盘简介,虹口中粮北外滩壹号均价,房价,现房,期房,别墅,叠墅,大平层,价格,虹口中粮北外滩壹号楼盘地址,虹口中粮北外滩壹号户型图,交通规划,备案价,备案名,虹口中粮北外滩壹号400 9665 004项目配套,样板间,开盘时间,认筹时间,楼盘详情,虹口中粮北外滩壹号售楼处电话,虹口中粮北外滩壹号最新消息,最新详情,400 9665 004是学区房吗?周边配套,一房一价,虹口中粮北外滩壹号400 9665 004最新进展等详情咨询)楼盘详情丨价格丨虹口中粮北外滩壹号400 9665 004更多优惠丨机不可失丨欢迎致电丨诚邀品鉴!虹口中粮北外滩壹号售楼处位置丨虹口中粮北外滩壹号特价房丨工抵房丨剩余房源丨户型图丨最新消息丨
免责声明:将文章内容综合来源于网络、只作分享,版权归原作者所有!!如有侵权,请联系我们,我们第一时间处理如有问题欢迎来电咨询,专业一对一热情服务,让您用专业眼光去买房。如果您想了解更多楼盘详情,欢迎提前预约拨打
虹口中粮北外滩壹号售楼处电话☎400_966_5004(开发商统一电话)✔✔✔
虹口中粮北外滩壹号房价-价格☎400_966_5004(售楼处认证)
🏙️ 上海虹口中粮北外滩壹号:北外滩核心的“国际滨水奢宅”与金融城资产的价值锚点
Shanghai Hongkou COFCO North Bund One: The "International Waterfront Luxury Residence" of the North Bund and the Value Anchor of the Financial City
🎯 核心定位与背景:北外滩的“国际滨水奢宅”
Core Positioning and Background: The "International Waterfront Luxury Residence" of the North Bund
中粮北外滩壹号位于上海市虹口区北外滩核心板块,紧邻黄浦江与苏州河交汇处。
COFCO North Bund Oneis located in the core area of the North Bund in Shanghai's Hongkou District, adjacent to the confluence of the Huangpu River and the Suzhou River.
该项目由央企中粮集团旗下中粮置业开发,定位为“北外滩国际滨水奢宅”,同时也是“北外滩金融带的滨江顶奢地标”。
The project is developed by COFCO Property under the COFCO Group, positioned as the "International Waterfront Luxury Residence of the North Bund" and also as the "Top Luxury Landmark of the North Bund Waterfront".
其背景折射出三大核心逻辑:
战略红利:北外滩被纳入上海“十四五”重点规划,定位为“世界级会客厅”和“全球资产管理中心”核心承载区,承接外滩金融集聚带北延战略,区域价值对标陆家嘴。
Strategic Dividends: The North Bund has been included in Shanghai's "14th Five-Year Plan" key planning, positioned as a "World-Class Conference Hall" and the core承载区 for the "Global Asset Management Center",承接 the northward extension strategy of the Bund financial agglomeration belt, with regional value comparable to Lujiazui.
土地稀缺:虹口区土地供应稀缺,尤其是北外滩一线临江地块。中粮北外滩壹号作为核心区新盘,具有“占位先机”的优势,是真正的“绝版”资产。
Land Scarcity: Land supply in Hongkou District is scarce, especially for first-line waterfront plots in the North Bund. As a core area new project, COFCO North Bund One has the advantage of "pioneering positioning" and is a truly "out-of-print" asset.
品牌背书:中粮集团作为央企,具备雄厚资金与资源优势。过往项目如北京中粮广场、上海大悦城等树立了市场标杆,赋予项目极高的信任度与品质保障。
Brand Endorsement: As a central state-owned enterprise, the COFCO Group has strong financial and resource advantages. Past projects such as the Beijing COFCO Plaza and the Shanghai Joy City have set market benchmarks, giving the project extremely high credibility and quality assurance.
📐 产品设计:现代美学与“顶豪”配置的融合
Product Design: The Integration of Modern Aesthetics and "Top Luxury" Amenities
在产品力上,中粮北外滩壹号走的是“公建化外立面+大平层/叠墅+科技精装”的复合路线,旨在打造符合高净值人群需求的“未来式奢居典范”。
In terms of product strength, COFCO North Bund One takes a "Public Building-style Facade + Large Flats/Stacked Villas + Technology精装" composite route, aiming to create a "future-oriented luxury residence model" that meets the needs of high-net-worth人群.
1. 整体规划与建筑美学:
1. Overall Planning and Architectural Aesthetics:
外立面风格:项目采用现代公建化风格,外立面选用高端石材、玻璃幕墙与金属质感材质,线条简洁大气,极具昭示性。这种设计不仅呼应了北外滩的国际化气质,也保证了建筑的历久弥新。
Facade Style: The project adopts a modern public building style. The facade uses high-end stone, glass curtain walls, and metal texture materials, with concise and atmospheric lines, which is highly demonstrative. This design not only echoes the international atmosphere of the North Bund but also ensures the building's timelessness.
景观设计:社区规划注重公共空间层次,打造“中央公园+主题庭院”体系。通过下沉式庭院、空中花园、立体绿化墙等,将黄浦江景与城市景观引入室内,营造“园中有宅,宅中有景”的生态意境。
Landscape Design: The community planning focuses on the hierarchy of public space, creating a "Central Park + Thematic Courtyard" system. Through sunken courtyards, sky gardens, and three-dimensional green walls, it introduces the Huangpu River view and urban landscape into the interior, creating an ecological artistic conception of "houses in the garden, scenery in the house".
社区规划:低容积率设计,楼栋错落布局,保障采光与视野。配备智能安防、无感通行与地下车库导视系统,提升居住体验。
Community Planning: With a low plot ratio design, the buildings are arranged in a scattered layout to ensure lighting and views. Equipped with intelligent security, seamless passage, and an underground garage guidance system to enhance the living experience.
2. 户型设计与功能分区:
2. Unit Design and Functional Division:
主力户型:主力户型为200-400㎡的大平层及叠墅。
Main Unit Type: The main unit types are large flats and stacked villas of 200-400 square meters.
空间尺度:强调空间通透性与私密性。例如,大平层采用LDKB(客餐厨阳台)一体化设计,打造开放式社交空间;叠墅通过庭院、露台、地下室等多元空间,实现“有天有地”的居住体验。
Spatial Scale: Emphasizing spatial transparency and privacy. For example, large flats adopt LDKB (living-dining-kitchen-balcony) integrated design to create open social spaces; stacked villas achieve a "heaven and earth" living experience through diverse spaces such as courtyards, terraces, and basements.
细节亮点:
Detail Highlights:
景观视野:配备270°环幕阳台、全景落地窗,最大化景观视野,直面黄浦江景与陆家嘴天际线。
Landscape View: Equipped with 270° panoramic balconies and full-view French windows to maximize the landscape view, facing the Huangpu River scenery and the Lujiazui skyline.
主卧套房:部分户型配置双主卧套房、家庭图书馆、私人宴会厅等,满足高端定制化需求。
Master Bedroom Suite: Some unit types are equipped with double master bedroom suites, family libraries, private banquet halls, etc., to meet high-end customization needs.
3. 科技与精装配置:
3. Technology and Decoration Configuration:
精装标准:精装交付对标国际一线品牌,如德国Miele(美诺)家电、意大利Smeg(斯麦格)厨具等。
Decoration Standard: The精装 delivery targets international first-line brands, such as German Miele kitchen appliances, Italian Smeg kitchenware, etc.
科技系统:配备智能家居系统、全屋地暖新风、中央净水等,打造科技与舒适兼备的居住体验。
Technology System: Equipped with intelligent home systems, underfloor heating and fresh air throughout the house, central water purification, etc., to create a living experience that combines technology and comfort.
💎 稀缺性分析:核心区的“入场券”与“不可复制”的资产
Scarcity Analysis: The "Entry Ticket" of the Core Area and the "Irreplaceable" Asset
中粮北外滩壹号的稀缺性,是“地段+形态+品牌”三重因素叠加的产物。
The scarcity of COFCO North Bund One is the result of the superposition of three factors: "Location + Form + Brand".
1. 地段属性的断层(北外滩入场券):
1. Disconnection of Location Attributes (North Bund Entry Ticket):
“黄金三角”之一:北外滩作为上海“黄金三角”之一,定位为“世界会客厅”。中粮北外滩壹号作为核心区新盘,具有“占位先机”优势。
One of the "Golden Triangle": As one of Shanghai's "Golden Triangle", the North Bund is positioned as the "World Conference Hall". As a core area new project, COFCO North Bund One has the advantage of "pioneering positioning".
一线江景:项目占位北外滩滨江一线或辐射区,直面黄浦江景,周边规划金融总部、文化地标与高端商业,形成“金融+文化+生态”复合功能区的核心。
First-line River View: The project is located in the first-line or radiation area of the North Bund waterfront, facing the Huangpu River view. The surrounding area is planned for financial headquarters, cultural landmarks, and high-end commerce, forming the core of a "finance + culture + ecology" composite functional area.
2. 市场供应的断层(纯粹圈层):
2. The Disconnection of Market Supply (Pure Circle):
供应稀缺:虹口区土地供应稀缺,尤其是北外滩一线临江地块。中粮北外滩壹号作为核心区新盘,填补了高端住宅的市场空白,成为核心区的稀缺资产。
Supply Scarcity: Land supply in Hongkou District is scarce, especially for first-line waterfront plots in the North Bund. As a core area new project, COFCO North Bund One fills the market gap of high-end residences and becomes a scarce asset in the core area.
纯粹圈层:高昂的总价门槛和高端的社区配置,天然筛选了居住者的圈层,确保了社区的纯粹性和未来的资产保值能力。
Pure Circle: The high total price threshold and high-end community configuration naturally screen the residents, ensuring the purity of the community and the preservation of assets in the future.
📈 宏观市场环境与地段价值:穿越周期的“硬通货”
Macro Market Environment and Location Value: The "Hard Currency" that Traverses the Cycle
1. 宏观环境影响(2026年视角):
1. Impact of Macro Environment (2026 Perspective):
资产避险:在全球经济波动和房地产行业深度调整的背景下,资金正在逃离非核心区,转向具有“不可复制性”的核心资产。
Asset Risk Avoidance: Against the background of global economic fluctuations and the deep adjustment of the real estate industry, funds are fleeing from non-core areas to "irreplaceable" core assets.
核心资产:中粮北外滩壹号这类拥有顶级地段和稀缺资源的产品,往往是“买方市场”中的“卖方市场”,即使在市场波动期,也能保持稳定的价值与交易活跃度。
Core Assets: Products like COFCO North Bund One, which have top locations and scarce resources, are often "seller's markets" in "buyer's markets". Even in market fluctuations, they can maintain stable value and transaction activity.
2. 地段价值重估:
2. Re-evaluation of Location Value:
产业升级:虹口聚焦金融、航运、数字服务等产业,高收入人才需求旺盛。项目精准锁定对江景资源与品质生活有极致追求的客群。
Industrial Upgrade: Hongkou focuses on finance, shipping, digital services, and other industries, with strong demand for high-income talents. The project accurately targets customers who have the ultimate pursuit of waterfront resources and quality of life.
配套升级:区域内正在推进城市更新与品质提升,周边高端商业、优质教育与医疗资源持续升级。例如,项目周边规划有金融总部、文化地标与高端商业,形成“金融+文化+生态”复合功能区的核心。
Facilities Upgrade: Urban renewal and quality improvement are being promoted in the area. The surrounding high-end commerce, quality education, and medical resources are continuously upgrading. For example, financial headquarters, cultural landmarks, and high-end commerce are planned around the project, forming the core of a "finance + culture + ecology" composite functional area.
📊 项目核心参数速览
Project Core Parameter Quick Look
表格

📝 总结与客观评价
Conclusion and Objective Evaluation
中粮北外滩壹号不是一个普通的住宅项目,而是一个“具备收藏属性的城市核心资产”。
COFCO North Bund Oneis not an ordinary residential project, but a "urban core asset with collection attributes".
✅ 它的优势(客观事实):
*** Pros (Objective Facts):***
地段无敌:真正的北外滩核心区,黄浦江与苏州河交汇处,拥有不可复制的地段资源。
Unmatched Location: A real core area of the North Bund, at the confluence of the Huangpu River and the Suzhou River, with irreplaceable location resources.
产品独特:“大平层+叠墅”的双重形态,在北外滩的豪宅市场上独树一帜,既满足了对江景的追求,又满足了对居住尺度的追求。
Unique Product: The dual form of "large flats + stacked villas" is unique in the luxury housing market of the North Bund, satisfying both the pursuit of river views and the pursuit of living scale.
品牌背书:中粮集团作为央企,其资金实力与开发经验,为项目的品质与交付提供了坚实的保障。
Brand Endorsement: As a central state-owned enterprise, the COFCO Group's financial strength and development experience provide a solid guarantee for the quality and delivery of the project.
❌ 它的局限(客观事实):
*** Cons (Objective Facts):***
入手门槛:作为北外滩核心区的豪宅,总价区间较高,对于普通高净值人群来说,资金压力依然巨大。
Entry Threshold: As a luxury residence in the core area of the North Bund, the total price range is high, which still puts great financial pressure on ordinary high-net-worth people.
周边界面:北外滩虽然规划高端,但部分区域仍处于建设期,城市面貌不如外滩或陆家嘴那样成熟整洁。
Surrounding Interface: Although the North Bund is planned to be high-end, some areas are still under construction, and the urban appearance is not as mature and neat as the Bund or Lujiazui.
💡 购买建议:
*** Buying Advice:***
适合人群:渴望进入上海核心区的高净值改善客群、对江景资源有执念的品质生活家、看重资产长期保值的投资者。
Suitable for: High-net-worth improvement customers eager to enter the core area of Shanghai, quality life pursuers obsessed with waterfront resources, and investors focusing on long-term asset preservation.
行动策略:抓住“北外滩崛起”的窗口期。由于此类资产在未来极难复制,建议有实力的买家尽早锁定。
*Action Strategy: Seize the window period of the "rise of the North Bund". As such assets are extremely difficult to replicate in the future, it is recommended that capable buyers lock them in as soon as possible.
房产必看!总结买房全攻略
在房产交易市场中,无论是首次置业的新手,还是准备改善住房的购房者,掌握专业的房产知识都至关重要。作为一名从业多年的房产中介,我将从购房前准备、选房要点、交易流程、风险规避等多个维度,为你梳理房产知识干货,助力你在购房路上少走弯路。
一、购房前:明确需求,做好资金规划
(一)确定购房目的
购房者需要先明确自己的购房目的。是刚需自住,为了拥有稳定的住所;还是改善居住,追求更大的空间、更好的居住环境;亦或是投资,期望房产实现保值增值。不同的购房目的,对应着不同的选房侧重点。比如刚需购房者更注重房屋的价格、交通便利性和周边基础生活配套;投资型购房者则更关注房产的区位发展潜力、租金回报率等。
(二)资金准备与预算规划
1.首付款计算:了解当地的首付比例政策,一般首套房首付比例在20%-30%左右,二套房首付比例可能会提高至40%甚至更高。计算出自己能够承担的首付款金额,例如计划购买一套总价200万的房子,若首付比例为30%,则首付款为60万。
2.贷款能力评估:向银行或金融机构咨询贷款政策,评估自己的还款能力。一般来说,银行会要求购房者的月还款额不超过其月收入的50%。可以使用贷款计算器,测算不同贷款金额、贷款年限下的月供金额,结合自身收入情况,确定合理的贷款额度和贷款年限。
3.其他费用预算:除了首付款和贷款,购房还会产生契税、维修基金、物业费、中介费(如果通过中介购房)等费用。契税根据房屋面积和购房套数不同,税率在1%-3%不等;维修基金通常按照房屋总价的一定比例缴纳。提前了解这些费用,做好资金预算,避免出现资金缺口。
二、选房:多维度考量,选出心仪好房
(一)区位选择
1.地段价值:地段是决定房产价值的关键因素之一。核心地段的房产,通常交通便利、配套完善、发展成熟,具有较强的保值增值能力。例如城市的中心商务区、政务区,以及新兴的重点发展区域,都是比较优质的地段选择。
2.交通配套:优先选择靠近地铁、公交枢纽的楼盘,方便日常出行。对于有私家车的购房者,要关注周边道路的规划和交通拥堵情况,以及小区的停车位配比是否充足。
3.生活配套:考察楼盘周边的商业、教育、医疗、休闲等配套设施。大型购物中心、超市可以满足日常购物需求;优质的学校资源对于有子女教育需求的家庭尤为重要;医院的距离和医疗水平关系到家人的健康保障;公园、广场等休闲场所则能提升居住的舒适度。
(二)楼盘与户型分析
1.开发商品牌与口碑:选择知名且信誉良好的开发商,其开发的楼盘在房屋质量、施工进度、物业服务等方面更有保障。可以通过网络搜索、业主论坛、实地考察等方式,了解开发商过往项目的评价和口碑。
2.楼盘规划与环境:关注楼盘的容积率、绿化率、楼间距等指标。容积率低、绿化率高的小区,居住密度小,环境优美;楼间距大则能保证充足的采光和通风。此外,还要了解小区的内部配套设施,如幼儿园、健身设施、社区活动中心等是否完善。
3.户型选择:根据家庭人口数量和居住需求,选择合适的户型。户型方正、南北通透、布局合理的房子更受欢迎。要注意房间的功能分区是否科学,动静分区是否明确,卧室、客厅、厨房等空间的尺寸是否合理,是否有浪费面积等问题。
三、房产交易:规范流程,保障权益
(一)签订购房合同
1.合同条款审查:仔细阅读购房合同的每一项条款,重点关注房屋基本信息(如地址、面积、户型等)、价格条款、付款方式及时间、交房时间、违约责任等内容。对于不理解或有疑问的条款,及时向开发商或中介咨询,必要时可以寻求律师的帮助。
2.补充协议:如果开发商有补充协议,同样要认真审查。补充协议中的条款可能会对双方的权利义务产生重要影响,避免出现不合理的附加条件或加重购房者责任的条款。
(二)贷款办理
1.准备贷款资料:一般需要提供身份证、户口本、结婚证(已婚人士)、收入证明、银行流水、征信报告等资料。确保资料真实、完整、有效,以提高贷款审批的通过率。
2.选择贷款银行:不同银行的贷款利率、贷款政策、审批速度等可能存在差异。可以多咨询几家银行,比较利率优惠、贷款额度、还款方式等,选择最适合自己的银行办理贷款。
3.贷款审批与放款:提交贷款申请后,银行会对购房者的资质进行审核。审核通过后,双方签订贷款合同,银行会按照约定的时间将贷款发放给开发商或卖方。
(三)房屋验收与交付
1.验收准备:交房前,购房者可以准备好相关工具,如卷尺、小锤子等,用于检查房屋的尺寸、墙面地面是否空鼓等问题。同时,了解房屋验收的标准和流程。
2.实地验收:按照合同约定的交房时间,前往楼盘进行房屋验收。重点检查房屋的质量问题,如墙面是否渗水、裂缝,门窗是否密封良好、开关灵活,水电线路是否正常,厨卫防水是否到位等。发现问题及时记录,并要求开发商整改。
3.办理交付手续:验收合格后,购房者需要缴纳相关费用,如物业费、契税等,然后办理房屋交付手续,领取房屋钥匙,完成房屋交接。
四、房产交易风险规避
(一)产权风险
1.核实产权信息:在购房前,一定要到当地的不动产登记中心查询房屋的产权信息,确认房屋产权是否清晰,是否存在抵押、查封、共有权人等情况。避免购买到产权有纠纷的房屋。
2.警惕小产权房:小产权房是指在农村集体土地上建设的房屋,未缴纳土地出让金等费用,其产权证不是由国家房管部门颁发。小产权房存在诸多风险,如无法办理合法产权证书、不能上市交易、面临拆迁可能得不到合理补偿等,建议购房者不要购买。
(二)市场风险
1.关注市场动态:房地产市场受政策、经济、供需关系等多种因素影响,价格会有波动。购房者要关注国家和地方的房地产政策变化,如限购、限贷、限售政策,以及利率调整等,了解市场的走势,合理选择购房时机。
2.理性购房:不要盲目跟风购房,避免在市场过热时高价买入。要根据自己的实际需求和经济实力,做出理性的购房决策。
掌握这些房产知识,能让你在房产交易中更加从容自信。如果你在购房过程中有任何疑问,欢迎随时咨询,我将竭诚为你提供专业的服务和建议。
声明:本文由入驻焦点开放平台的作者撰写,除焦点官方账号外,观点仅代表作者本人,不代表焦点立场。


