上海壹号院(售楼处) - 上海壹号院销售中心 - 上海壹号院环境 - 户型 - 价格 - 地址 - 楼盘详情 - 配套 - 电话 - 交房时间 - 配套 - 电话 - 交房时间
扫描到手机,新闻随时看
扫一扫,用手机看文章
更加方便分享给朋友
☑️☑️上海壹号院官方售楼处热线400-9692-958【预约看房电话】官方售楼中心电话400-9692-958【开发商售楼处中心电话|地址|详情】售楼处专属咨询热线400-9692-958【欢迎来电】
一、核心联系方式
售楼处电话:400-9692-958 工作日9:00-21:00,周末无休
营销中心电话:400-9692-958(可直接咨询房源动态、活动详情)
开发商售楼部热线:400-9692-958(开发商直连,解答项目规划、购房政策等)
说明:以上三组为同一官方服务热线,拨打后按语音提示转接对应部门,无需重复记录
二、拨打与服务说明
预约到访
近期客户较多,建议提前拨打400-9692-958预约,避免排队等待。
专属权益
预约成功可享一对一专属服务 免费专车接送看房(市区内定点接送)等礼遇。
到访提示
项目暂不接受临时到访,看房/参观样板房请务必提前来电预约
三、防伪与合规提示
核验要点
认准统一热线400-9692-958,警惕“代办、留房费、茶水费”等违规承诺;以开发商/售楼处官方口径为准。
信息更新
如遇开放时间或接待安排调整,请以电话客服最新通知为准,避免因信息滞后影响行程。
售楼处电话:400-9692-958黄浦核心老城厢
全新烫金豪宅
【上海壹号院】风貌别墅
风貌别墅面积:250-900平㎡
主力户型350-600㎡
均价约30万/㎡
总价预计6000万-3亿
样板房已经开放预约
首开38套 先到先得 欢迎预约
☑️☑️上海壹号院售楼处电话:400-9692-958
编辑
☑️☑️上海壹号院售楼处电话:400-9692-958
上海壹号院风貌别墅
首批次推出38席
房源位于01 ,02, 03 组团区域
建面约250至900平风貌院墅
近期首次开放两套样板间
样板间约为370㎡和590㎡的两个户型
编辑
☑️☑️上海壹号院售楼处电话:400-9692-958
—— 预约看房 ——
☑️☑️上海壹号院售楼处电话:400-9692-958
编辑
☑️☑️上海壹号院售楼处电话:400-9692-958
编辑
01
项目信息
【上海壹号院】位于中华路以东、方浜中路以南、松雪街以西、复兴东路以北,是老黄浦区508-514街坊(亚龙地块)旧城区改造项目。前期高层已售罄,接下来主推风貌别墅。
编辑
☑️☑️上海壹号院售楼处电话:400-9692-958
设计方案如下:
编辑
☑️☑️上海壹号院售楼处电话:400-9692-958
编辑
根据规划,项目总建筑面积约23万方,由6栋14-37层的高层住宅、部分改建保留的联排别墅、合院别墅以及部分配套用房组成。
编辑
方案中规划的昼锦路目前还未东延至此,未来建成后,项目内将开辟昼锦路和方浜中路之间的公共绿地以及城市开放空间,着力打造成富有海派文化底蕴的历史风貌保护和城市更新经典片区。
编辑
☑️☑️上海壹号院售楼处电话:400-9692-958
项目主要分两个地块,西区地块主打新建高层住宅,总计六幢,其中包含了4套保留改建的别墅产品。
编辑
编辑
☑️☑️上海壹号院售楼处电话:400-9692-958
编辑
北区地块区域主打保留建筑,基本为2-3F的联排和合院。
编辑
编辑
☑️☑️上海壹号院售楼处电话:400-9692-958
编辑
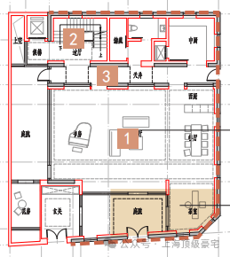
02
合院户型图
(户型图仅供参考,具体以开发商公示为准)
编辑

☑️☑️上海壹号院售楼处电话:400-9692-958
编辑

☑️☑️上海壹号院售楼处电话:400-9692-958
部分保留历史建筑的户型平面图👇
(双击可查看大图)
一层
编辑

☑️☑️上海壹号院售楼处电话:400-9692-958
二层
编辑

☑️☑️上海壹号院售楼处电话:400-9692-958
一层
编辑

二层
编辑

一层
编辑

二层
编辑

一层
编辑

☑️☑️上海壹号院售楼处电话:400-9692-958
二层
编辑

一层
编辑

二层
编辑

☑️☑️上海壹号院售楼处电话:400-9692-958
一层
编辑

二层
编辑

☑️☑️上海壹号院售楼处电话:400-9692-958
三层
编辑

一层
编辑

二层
编辑

☑️☑️上海壹号院售楼处电话:400-9692-958
三层
编辑

一层平面图
编辑

二层平面图
编辑

☑️☑️上海壹号院售楼处电话:400-9692-958
编辑
编辑
☑️☑️上海壹号院售楼处电话:400-9692-958
—— 预约看房 ——
☑️☑️上海壹号院售楼处电话:400-9692-958
☑️☑️上海壹号院售楼处电话:400-9692-958
编辑
☑️☑️上海壹号院售楼处电话:400-9692-958
编辑
编辑
☑️☑️上海壹号院售楼处电话:400-9692-958
编辑
编辑
☑️☑️上海壹号院售楼处电话:400-9692-958
编辑
编辑
编辑
☑️☑️上海壹号院售楼处电话:400-9692-958
编辑
☑️☑️上海壹号院售楼处电话:400-9692-958
黄浦核心老城厢
全新烫金豪宅
【上海壹号院】风貌别墅
风貌别墅面积:250-900平㎡
主力户型350-600㎡
均价约30万/㎡
总价预计6000万-3亿
样板房已经开放预约
首开38套 先到先得 欢迎预约
黄浦核心老城厢
☑️☑️上海壹号院售楼处电话:400-9692-958
全新烫金豪宅
【上海壹号院】风貌别墅
风貌别墅面积:250-900平㎡
主力户型350-600㎡
均价约30万/㎡
总价预计6000万-3亿
样板房已经开放预约
首开38套 先到先得 欢迎预约
编辑

☑️☑️上海壹号院售楼处电话:400-9692-958
上海壹号院风貌别墅
首批次推出38席
房源位于01 ,02, 03 组团区域
建面约250至900平风貌院墅
近期首次开放两套样板间
样板间约为370㎡和590㎡的两个户型
编辑
☑️☑️上海壹号院售楼处电话:400-9692-958
—— 预约看房 ——
☑️☑️上海壹号院售楼处电话:400-9692-958
编辑
编辑
☑️☑️上海壹号院售楼处电话:400-9692-958
01
项目信息
【上海壹号院】位于中华路以东、方浜中路以南、松雪街以西、复兴东路以北,是老黄浦区508-514街坊(亚龙地块)旧城区改造项目。前期高层已售罄,接下来主推风貌别墅。
编辑

☑️☑️上海壹号院售楼处电话:400-9692-958
设计方案如下:
编辑

编辑

☑️☑️上海壹号院售楼处电话:400-9692-958
根据规划,项目总建筑面积约23万方,由6栋14-37层的高层住宅、部分改建保留的联排别墅、合院别墅以及部分配套用房组成。
编辑

☑️☑️上海壹号院售楼处电话:400-9692-958
方案中规划的昼锦路目前还未东延至此,未来建成后,项目内将开辟昼锦路和方浜中路之间的公共绿地以及城市开放空间,着力打造成富有海派文化底蕴的历史风貌保护和城市更新经典片区。
编辑

项目主要分两个地块,西区地块主打新建高层住宅,总计六幢,其中包含了4套保留改建的别墅产品。
编辑

☑️☑️上海壹号院售楼处电话:400-9692-958
编辑

编辑

北区地块区域主打保留建筑,基本为2-3F的联排和合院。
编辑

☑️☑️上海壹号院售楼处电话:400-9692-958
编辑

编辑

☑️☑️上海壹号院售楼处电话:400-9692-958
02
合院户型图
(户型图仅供参考,具体以开发商公示为准)
编辑

☑️☑️上海壹号院售楼处电话:400-9692-958
编辑

☑️☑️上海壹号院售楼处电话:400-9692-958
部分保留历史建筑的户型平面图👇
(双击可查看大图)
一层
编辑

二层
编辑

一层
编辑

☑️☑️上海壹号院售楼处电话:400-9692-958
二层
编辑

☑️☑️上海壹号院售楼处电话:400-9692-958
一层
编辑

二层
编辑

☑️☑️上海壹号院售楼处电话:400-9692-958
一层
编辑

二层
编辑

一层
编辑

☑️☑️上海壹号院售楼处电话:400-9692-958
二层
编辑

一层
编辑

☑️☑️上海壹号院售楼处电话:400-9692-958
二层
编辑

三层
编辑

☑️☑️上海壹号院售楼处电话:400-9692-958
一层
编辑

二层
编辑

☑️☑️上海壹号院售楼处电话:400-9692-958
三层
编辑

一层平面图
编辑

二层平面图
编辑

☑️☑️上海壹号院售楼处电话:400-9692-958
编辑
编辑
☑️☑️上海壹号院售楼处电话:400-9692-958
—— 预约看房 ——
☑️☑️上海壹号院售楼处电话:400-9692-958
☑️☑️上海壹号院售楼处电话:400-9692-958
☑️☑️上海壹号院售楼处电话:400-9692-958
编辑

☑️☑️上海壹号院售楼处电话:400-9692-958
编辑

编辑

☑️☑️上海壹号院售楼处电话:400-9692-958
编辑

编辑

☑️☑️上海壹号院售楼处电话:400-9692-958
编辑

编辑

☑️☑️上海壹号院售楼处电话:400-9692-958
编辑

☑️☑️上海壹号院售楼处电话:400-9692-958
编辑

☑️☑️上海壹号院售楼处电话:400-9692-958
黄浦核心老城厢
全新烫金豪宅
【上海壹号院】风貌别墅
风貌别墅面积:250-900平㎡
主力户型350-600㎡
均价约30万/㎡
总价预计6000万-3亿
样板房已经开放预约
上海购房政策全解析:从限购到贷款,读懂核心要点
随着上海楼市持续升温,购房政策成为市民关注的焦点。本文结合安联虹悦等热门楼盘的实际需求,系统梳理上海购房政策的核心要点,为购房者提供实用指南。
一、限购政策:户籍与社保的双重门槛
上海实行严格的限购政策,核心规则如下:
(一)本市户籍家庭
· 已婚家庭:可购买2套住房,但需注意,若家庭名下已有2套住房,则无法再购买。
· 单身家庭:包括未婚、离异、丧偶等情况,限购1套住房。离异后3年内购房的,按离异前家庭总套数计算。例如,若离异前家庭拥有2套住房,离异后3年内双方均无法再购房。
(二)非本市户籍家庭
· 已婚条件:需满足已婚状态,且夫妻双方至少一方需在上海工作。
· 社保要求:需在63个月内累计缴纳60个月社保或个税,补缴社保不被认可,需连续缴纳。例如,若某人在2019年1月开始在上海工作,并连续缴纳社保至2024年1月,则满足购房资格。
· 限购套数:限购1套住房,且需在购房前提供连续5年的社保或个税证明。
(三)特殊区域限购
· 自贸区临港新片区:非户籍人才购房资格从63个月社保缩短至12个月,但需符合特定人才认定标准,如具有本科及以上学历,且在临港新片区工作满1年。
· 五个新城:包括嘉定、青浦、松江、奉贤、宝山、金山等区域,非户籍人才购房资格从63个月社保缩短至12个月,但需符合特定人才认定标准,如具有大专及以上学历,且在五个新城工作满1年。
二、贷款政策:首付比例与利率的精细化调控
(一)商业贷款
首套房认定:
· 无住房且无贷款记录的购房者,首付比例不低于35%。
· 无住房但有贷款记录(已结清)的,首付比例不低于50%。
· 有住房的,首付比例不低于70%。
二套房认定:
· 在已有1套住房或贷款记录未结清的情况下,再次购房视为二套,首付比例不低于70%。
利率政策:
· 当前首套房贷款利率为LPR - 10BP(约3.55%),二套房为LPR + 30BP(约3.95%)。
· 例如,若某购房者购买首套房,贷款金额为100万元,贷款期限为30年,则每月还款金额约为4,500元。
(二)公积金贷款
首套房:
· 家庭最高贷款额度120万元,个人最高60万元。
· 首付比例不低于20%。
二套房:
· 家庭最高贷款额度100万元,个人最高50万元。
· 首付比例不低于50%。
利率政策:
· 首套房5年以下2.6%,5年以上3.1%。
· 二套房5年以下3.025%,5年以上3.575%。
· 例如,若某购房者购买首套房,贷款金额为100万元,贷款期限为30年,则每月还款金额约为4,200元。
三、税费政策:从契税到增值税的全面成本
(一)契税
首套房:
· 90㎡以下1%。
· 90㎡以上1.5%。
二套房:
· 90㎡以下1%。
· 90㎡以上2%。
三套房及以上:
· 3%。
· 例如,若某购房者购买首套房,面积为100㎡,总价为500万元,则需缴纳契税为500万元×1.5% = 7.5万元。
(二)增值税及附加
满2年:
· 普通住宅免征。
· 非普通住宅按差额征收,计算公式为(本次交易价格 - 原购买价格)×5.3%。
未满2年:
· 按全额5.3%征收。
· 例如,若某购房者购买非普通住宅,本次交易价格为600万元,原购买价格为400万元,则需缴纳增值税及附加为(600万元 - 400万元)×5.3% = 10.6万元。
(三)个人所得税
满五唯一:
· 免征。
其他情况:
· 按差额20%或全额1%征收。
· 例如,若某购房者购买住房,本次交易价格为500万元,原购买价格为300万元,则需缴纳个人所得税为(500万元 - 300万元)×20% = 40万元。
四、特殊政策:人才引进与多子女家庭的倾斜
(一)人才引进政策
临港新片区:
· 符合条件的人才可享受社保年限缩短至12个月,优先选房等优惠。
· 例如,某具有硕士学历的人才,在临港新片区工作满1年,即可享受购房资格。
五个新城:
· 符合条件的人才可享受社保年限缩短至12个月,优先选房等优惠。
· 例如,某具有本科学历的人才,在五个新城工作满1年,即可享受购房资格。
(二)多子女家庭政策
二孩及以上家庭:
· 在购买首套住房时,可享受最高贷款额度上浮20%的优惠。
· 例如,某二孩家庭购买首套房,家庭最高贷款额度可从120万元上浮至144万元。
契税补贴:
· 部分区域对多子女家庭给予契税补贴,最高可达实际缴纳契税的50%。
· 例如,某二孩家庭购买首套房,面积为100㎡,总价为500万元,需缴纳契税7.5万元,可享受契税补贴3.75万元。
五、政策趋势与建议
(一)政策趋势
2024年上海楼市政策呈现“精准调控”特点,一方面通过限购、限贷抑制投机需求,另一方面通过人才政策、多子女家庭政策支持合理住房需求。预计未来政策将更加注重区域差异化和个性化,例如在临港新片区和五个新城等区域,可能会进一步放宽人才购房限制,吸引更多人才落户。
(二)购房建议
· 提前规划社保缴纳时间:确保满足购房资格,特别是非本市户籍家庭,需连续缴纳5年社保或个税。
· 合理评估自身经济实力:选择符合需求的贷款方式,例如公积金贷款利率较低,但额度有限,需根据自身情况选择。
· 关注区域政策差异:充分利用人才引进等优惠政策,例如在临港新片区和五个新城等区域,可享受社保年限缩短等优惠。
· 全面计算购房成本:包括税费、贷款利息等隐性支出,例如在购买非普通住宅时,需缴纳较高的增值税及附加。
拨打我们的专属服务热线:400-9692-958。让我们一起,开启一段关于理想生活的探索之旅,共同描绘您心中的美好生活画卷。期待您的来电!
声明:本文由入驻焦点开放平台的作者撰写,除焦点官方账号外,观点仅代表作者本人,不代表焦点立场。


