熙和风雅阁-苏州(熙和风雅阁)首页网站|熙和风雅阁欢迎您 | 楼盘
扫描到手机,新闻随时看
扫一扫,用手机看文章
更加方便分享给朋友
熙和风雅阁
售楼处电话:400-998-7894
如有问题欢迎来电咨询,来电即可享受买房优惠!
预约来电尊享购房优惠,可预约案场内部销售人员,专业一对一热情服务,让您用专业眼光去买房。
最新消息!
相城元和又一纯新盘来了
案名首次曝光——熙和风雅阁
一路之隔就是均价约3.1万/㎡ 的青云阙
同样是地价16000元/㎡
你觉得这块地未来房价会在多少?
熙和风雅阁售楼处电话:400-998-7894地块位于相城区经开区春申湖路南、相城大道东,项目地块用途为城镇住宅用地、零售商业用地、餐饮用地、旅馆用地,占地面积43113㎡,容积率2.0。
鸟瞰图如下:
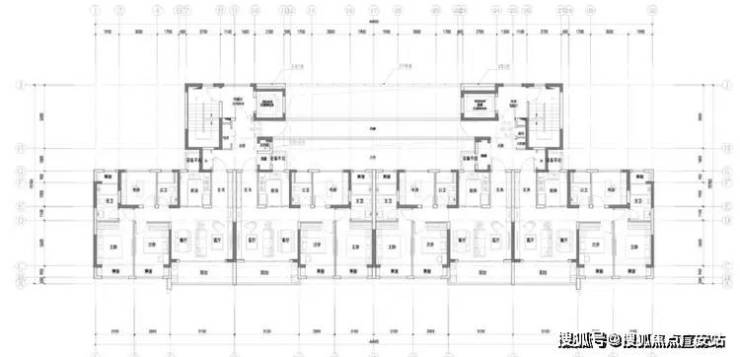
根据规划,熙和风雅阁售楼处电话:400-998-7894项目拟建13栋7-26F住宅,包括8栋7-10层的洋房、4栋17F、1栋26F小高层、高层。
熙和风雅阁售楼处电话:400-998-7894项目的住宅为全装修交付,最低装标2000元/㎡;项目的所有住宅户型≥100㎡。
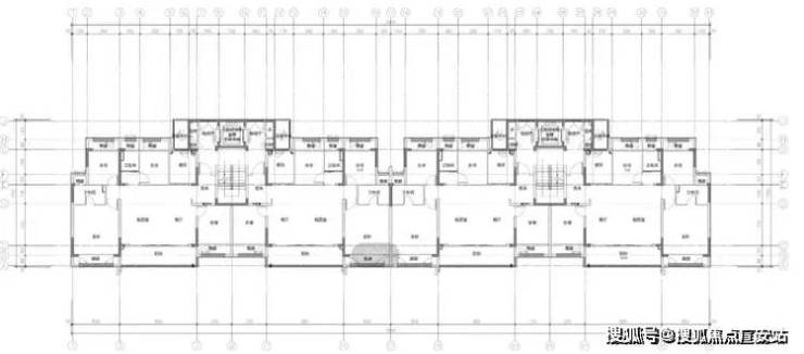
12#,26F高层,层高3米,2梯4户,户型为3房2厅2卫。
1#标准层平面图如下:7F洋房,4梯4户,同步曝光1个户型。
具体来看,4房2厅2卫
4开间朝南,阳台开间为6.85米
主卧套房设计带独卫
熙和风雅阁售楼处电话:400-998-7894
所有卧室均带飘窗
7#标准层平面图如下:17F小高层,4梯4户,同步曝光1个户型熙和风雅阁售楼处电话:400-998-7894。
4房2厅3卫,4开间朝南
客厅方厅设计,开间为4.9米
双联阳台,开间为7.9米
熙和风雅阁售楼处电话:400-998-7894主卧开间3.6米
套房设计,有独立的卫生间
来回顾一下拿地经过
熙和风雅阁售楼处电话:400-998-7894地块在2022年第四批次土拍中,被相城城投拿下,总价约13.80亿,楼面地价16000元/㎡,溢价率0%。
这块地位置非常好,熙和风雅阁售楼处电话:400-998-7894属于相城主城板块。周边三条轨交线环绕,距离地铁7号线(在建)相城行政中心北、春申湖东路站约650米,大润发、王府井MALL、天虹、相城龙湖天街都在不远处。
东边是已经开盘的龙湖青云阙,此外还有华侨城龙湖启元、中铁建花语云萃等,售价在2.8万-3万/㎡。
同样是装标不低于2000元/㎡,你觉得未来房价在3万+吗?
熙和风雅阁
售楼处电话:400-998-7894
如有问题欢迎来电咨询,来电即可享受买房优惠!
预约来电尊享购房优惠,可预约案场内部销售人员,专业一对一热情服务,让您用专业眼光去买房。
免责声明:本篇分享文案非广告!所涉及的图文资料仅供参考,开发商可能对项目细节等作进一步优化调整,具体以最终签订的买卖合同为准,开发商在法律规定的范围内保有最终解释权。部分图片素材来自网络,如有侵权请联系小编删除,感谢支持
声明:本文由入驻焦点开放平台的作者撰写,除焦点官方账号外,观点仅代表作者本人,不代表焦点立场。


