项目基础档案
项目名称:乐云庭(备案名:400-998-7894雅乐云庭)
地块信息:苏地2021-WG-74、75号地块
开发品牌:苏高新产城 X 朗诗地产
售楼处电话:400-998-7894欢迎来电咨询!
可预约销售人员,专业一对一热情服务,让您用专业眼光去买房。(来电尊享内部优惠活动)
项目地址:苏州高新区浒墅关大道与榆荫路交汇处
地块指标:商住用地,占地面积36.6万方,总建筑面积113万方
产品信息:拟建59栋17-26F高层住宅,共计3939户
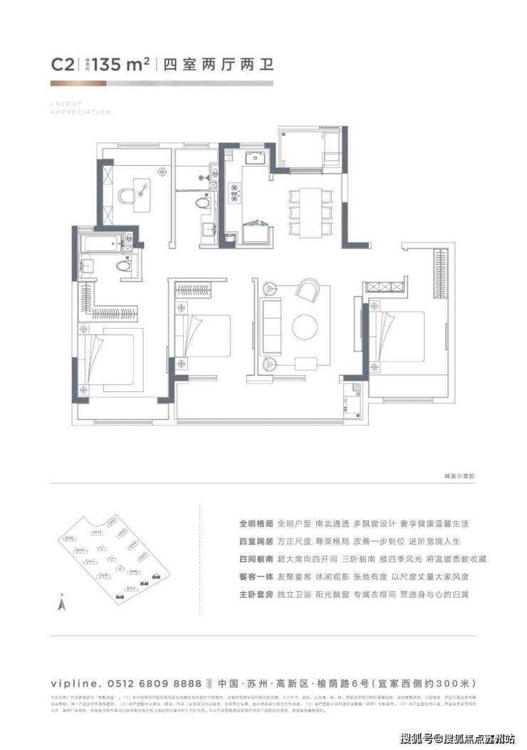
户型配置:建面约105、125、135、165、220㎡
精装装标:全装修交付,最低装标1500元/平
价格信息:楼面价8928-9044元/㎡,整体备案均价30200元/平
雅乐云庭
江苏省苏州市虎丘区浒墅关镇浒墅关大道与榆荫路交汇处

雅乐云庭售楼处电话:400-998-7894苏高新产城&朗诗地产,时代巨匠携手,与土地更契合,与城市更相容,为城市带来前沿的产品和理念同时,也更尊重苏州的人文精神和居住习惯,于运河之畔、新区新中心,打造超级产城作品。
苏高新产城
苏州新区高新技术产业股份有限公司(以下简称“苏高新股份”)由苏州国家高新技术产业开发区管理委员会于1994年发起成立,1996年于上交所挂牌上市,是苏州高新区首家、苏州市首批上市公司。截至今年6月,公司直接控股子公司14家,间接控股子公司64家,参股企业35家。
苏高新股份立足“高新技术产业培育与投资运营商”的战略定位,以创新地产、文旅商贸、节能环保和战略新兴产业作为主要发展方向,以非银金融与产业投资作为蓄能产业,赋能主业全面发展。
苏高新产城为苏高新股份下属公司,公司以发展产业为基础,推进产城融合开发,实现地产转型升级,驱动城市创新迭代。

朗诗地产
中国领先的绿色地产开发服务商,中国房地产百强企业。
雅乐云庭售楼处电话:400-998-7894朗诗地产成立于2001年,朗诗控股旗下核心业务。秉持“人本、阳光、绿色”的企业价值观和“为人造房”的使命,依托朗诗控股平台成熟的绿建科技及优质绿建资源,朗诗地产业务覆盖全国主要一二线城市及重点经济区域,基本实现全国化布局,开发超过150个项目,开发总面积逾2500万平方米,为50万用户打造“健康、舒适、节能、环保、智慧、人文”的优秀绿色住宅产品。


一、千年运河之滨 擎动世界繁华风向
雅乐云庭售楼处电话:400-998-7894天赋至贵,文脉源远流长。从尼罗河、幼发拉底河、底格里斯河、印度河到黄河,人类灿烂的文明,无不肇始于一条伟大的河流。一条大运河,半部中国史。总长1797公里的京杭大运河,是世界上里程最长、工程最大的古代运河,与长城、坎儿井并称为中国古代的三项伟大工程,是中国文化地位的象征之一。
蜿蜒流淌的大运河,承载着苏州的历史沉淀与国际活力;而今素有“江南要冲地,吴中活码头”之称的北新区·浒墅关,正展现“大运河”的底蕴,成就时代稀贵恒产。

二、苏州高新区 城市发展价值高地
苏州高新区,全称苏州高新技术产业开发区,位于苏州古城西侧,东临京杭大运河,南邻吴中区,北接相城区,西至太湖,交通十分便利。2013年4月苏州高新区下属苏州科技城(苏州浒墅关经济开发区)与高邮经济开发区实现南北共建园区。2018年6月,苏州高新区入选第四批“全国法治县(市、区)创建活动先进单位”。(相关信息来源苏州高新区官方词条)

雅乐云庭售楼处电话:400-998-7894苏州高新区城市规划紧紧围绕争创“一流园区”目标,全力打造“效益新区”、“活力新区”、“和谐新区”,全面提升“五个功能组团”建设。在协调发展规划指导下,把通浒片区建成集生产、生活和生态相配套的现代化产业区和北部新城,给落址于高新区城芯的乐云庭带来了区域政策利好,坐享时代发展红利。(相关信息来源苏州高新区官方词条)



·地铁:无缝对接地铁3号线惠昌路站、6号线(在建)
·主干道:毗邻中环北线、中环西线、浒墅关大道,直通高架,通达全城
雅乐云庭售楼处电话:400-998-7894机场/火车站:距离新区火车站约1km,乘地铁3号线约5min左右即可抵达;距苏州西站约3km,约35min即可抵达苏南硕放机场
·铁路:接轨长三角中轴枢纽——沪宁城际铁路,约40min可达上海虹桥,约90min直抵南京、杭州

·商业:1km内拥揽开市客、永旺梦乐城、宜家、迪卡侬四大巨头商业,与世界共享都会繁华。

雅乐云庭售楼处电话:400-998-7894教育:项目毗邻幼儿园(规划中);项目西北侧——苏州高新区实验初级中学(文昌校区)、文正小学。


·自然:毗邻绵延千年的京杭大运河,邻接总占地面积约50公顷的大白荡城市生态公园。


百万方 TOD 多功能综合体,超级大城擎领未来
————
雅乐云庭售楼处电话:400-998-7894巡礼全球都市中心,赋能苏州全新未来,驾接地铁三号线惠昌路站(地铁就在地块中心),苏高新产城联手朗诗地产打造百万方TOD多功能综合体——阅帆汇,以集约化、复合型、内外而合的“立体城市”形式,汇集“商业+枢纽+住宅”,并以四个下沉庭院为转换核心,实现地铁、办公、地下车库、住宅等之间的互联互通,板块内总部办公、商务集群、国际酒店、商业街区、品牌公寓、科技住宅汇聚,六大业态,先见TOD生活新场景,擎画城市未来蓝图。作为TOD之上的人居臻品,乐云庭更是以“科技住宅”之名,引领苏州绿色人居潮向。

·总部办公:引入两大省重大项目:“中国检验认证集团苏州检验检测基地”,为打造长三角地区检验认证产业基地奠定坚实的基础;“中软国际有限公司苏州软件开发及集成测试中心”,为打造长三角数字经济发展的“新坐标”实现苏州数字产业化和产业数字化双轮驱动。

雅乐云庭售楼处电话:400-998-7894商务集群:于运河畔,打造高端产业集群,全定制式高级商务空间、地标写字楼,释放国际商务的感召力,演绎企业雄心气度。

·国际酒店:规划引入洲际酒店旗下豪华酒店品牌,融东方文化与现代艺术,打造商务会晤、企业峰会城市会客厅,为城市精英敬献圈层资源社交场。

·商业街区:聚合国际都会商业风景,规划打造开放式、街区式、体验式商业区,承载商业文化、城市繁华的功能,近揽万象生活。

·品牌公寓:高品质公寓,为高端商务人士,提供全方位、国际化、个性化的服务,以高质量的国际标准满足商务精英的生活需求。
雅乐云庭售楼处电话:400-998-7894科技住宅:苏高新产城与朗诗地产强强联袂,汲取各家精粹,融合前沿国际美学,以大师手笔,匠造建面约105-220㎡国际滨水科技住区,乐云庭焕新城市人居。


世界美学住宅 国际健康人居典范
立面以经典高级灰色调,搭配高透low-E玻璃,融合中西在地风格,高窗比流线体,金属质感包边,超大窗墙比,彰显精致典雅,形成国际化与未来感的交错重叠,凸显国际恒贵人居质感,敬献圈层人物。

全龄化生活园林景观 雕琢生活大美
雅乐云庭售楼处电话:400-998-7894引入大公园概念,以“一带两轴多节点”的连接方式,打造公园社区,实现景观资源自有共享,营造满分“绿色公园街区”系统。并打造“社区公园——礼仪大堂——邻里花园——入户花园”四重归家礼序,创造最具有特色的全龄化、人性化的氧气社区。

乐云庭融合自然之意,以多重绿植组团效果,构建“一环二轴多亮点”的景观空间结构,中心康养漫步环,让健康生活在自然里发生;礼仪归家轴、尊享归家轴,铺排业主归家的仪式感;邻里环氧乐园、城市会客厅、儿童乐园、活力乐园、口袋公园,功能迥异却紧密相连,自然绿意,围合生活之美。

朗诗科技——硬核科技 迭变居住
雅乐云庭售楼处电话:400-998-7894住宅采用朗诗全新一代智控科技系统「自由方舟」,以“集中能源+户式末端”相结合的系统形式、八大自由主张,全方位覆盖绿色生活,迭代苏州奢适人居新体验。

八大自由主张:
·温度自由:不用空调,四季如春;温度均匀,无温差感。

雅乐云庭售楼处电话:400-998-7894
·湿度自由:告别梅雨潮湿,告别冬日干燥;加湿除湿,舒爽宜人。

·新风自由:置换式新风系统多档调节;全屋置换鲜氧,畅快“森”呼吸。

·声光自由:隔音高性能门窗,屏蔽声光干扰,整夜好眠。

雅乐云庭售楼处电话:400-998-7894
·智控自由:一键智控,轻松便捷;室内外空气质量监测,多模式调节。

·预约自由:手机APP可远程预约;一键定制舒适环境,预享安心。

·用能自由:用能可视化,支持用户行为节能;科学用量,绿色环保。

雅乐云庭售楼处电话:400-998-7894
·空间自由:解放住宅产品常规设计限制,提升居家使用空间,装修更多样。



雅乐云庭售楼处电话:400-998-7894


雅乐云庭售楼处电话:400-998-7894


项目基础档案
项目名称:乐云庭(备案名:雅乐云庭)
地块信息:苏地2021-WG-74、75号地块
开发品牌:苏高新产城 X 朗诗地产
雅乐云庭售楼处电话:400-998-7894欢迎来电咨询! 可预约销售人员,专业一对一热情服务,让您用专业眼光去买房。(来电尊享内部优惠活动)
注:(免责声明:本篇分享文案非广告,所涉及的图文资料仅供参考,项目可能对项目细节等做进一步优化调整,具体以最终签订的买卖合同为准,在法律规定的范围内保有最终解释权。部分图片素材来自网络,如有侵权请联系小编删除,感谢支持。)