虹盛里楼盘详情-(虹盛里)售楼处电话-虹盛里房价-虹盛里户型配套—虹盛里售楼处电话-虹盛里地址-虹盛里房价-在售户型
扫描到手机,新闻随时看
扫一扫,用手机看文章
更加方便分享给朋友
虹盛里售楼处电话☎:400-865-7114(预约看房热线√√)
虹盛里售楼处电话/地址☎:4008657114【售楼中心已认证√√】
售楼处电话☎:400-8657-114【售楼处预约热线】(一对一热情服务)
看房请务必提前致电销售确认时间,只有预约客户才能享受开发商提供的内部优惠以及专属的老客户推荐奖励!我们提供专业的一对一热情服务,助您以专业视角挑选理想的房产。

虹口老牌核心区中环旁江湾板块
7站达人民广场
地铁3号线江湾镇站与20号线环伺
江湾城投万安路【虹盛里】热销中
全户型:高层+洋房+联排精装交付
约83-180㎡瞰景高层约727万-1955万
约97-195㎡臻稀洋房约1023-2196万
约196㎡滨水墅居约2963-3058万
综合均价约9.96万/㎡
虹盛里售楼处电话☎:400-865-7114
如有问题欢迎来电咨询,来电即可享受买房优惠!
预约来电尊享购房优惠,可预约案场内部销售人员,专业一对一热情服务,让您用专业眼光去买房
【虹盛里】上海城投控股匠心倾筑。立于“虹口中环”稀缺坐标,同频北外滩盛世更新,打造集聚烟火气息的人文街区。七大人居地块,溯源当代复合建筑语境,为世界上海再展滨水新画卷。
虹盛里售楼处电话:400-8657-114
虹盛里营销中心热线400-865-7114(售楼处预约看房热线)
在当下的上海房地产市场,购房者对开发商品牌愈发看重。而在这一点上,虹盛里具备足够分量的话语权。
虹盛里营销中心热线400-865-7114(售楼处预约看房热线)
因为这是由上海本地国企上海城投控股倾力打造的项目,安全感满分!并且上海城投控股深入了解上海的脉落,对中心城市内的每一寸土地、居民的生活习性、居住环境都深入了解。
所以,其倾力打造的虹盛里,当然是如今上海更具价值和居住舒适度的产品。项目整体采用现代建筑风格,彰显海派潮流文化的特质与主人的身份品位。
更是邀请了上海中房建筑设计公司及知名景观设计公司泛亚国际景观设计共同合作打造,由此可见开发商对此项目的重视。
设计中将7个独立的地块与滨水空间相结合,通过对商业、绿化、广场界面的有机穿插、整合成为一个与景观河道交相辉映、有节奏的公共长廊,提升滨水区域的环境品质。
虹盛里售楼处电话☎:400-865-7114(预约看房热线√√)
虹盛里售楼处电话/地址☎:4008657114【售楼中心已认证√√】
并且,项目周边整体的城市界面也正在进行更新。未来周边以虹盛里为核心将组成全新的海派街区,迭代老虹口的生活场景。
而项目整体建筑布局随河蜿蜒,高低错落的建筑形态也契合了江南水乡的水韵特色。
加之建筑顶部的金冠起伏,与景观河交相辉映,串联成金色丝带东西贯通,更是凸显了本项目的高标准、高品质的居住体验。
虹盛里售楼处电话☎:400-865-7114(预约看房热线√√)
虹盛里售楼处电话/地址☎:4008657114【售楼中心已认证√√】
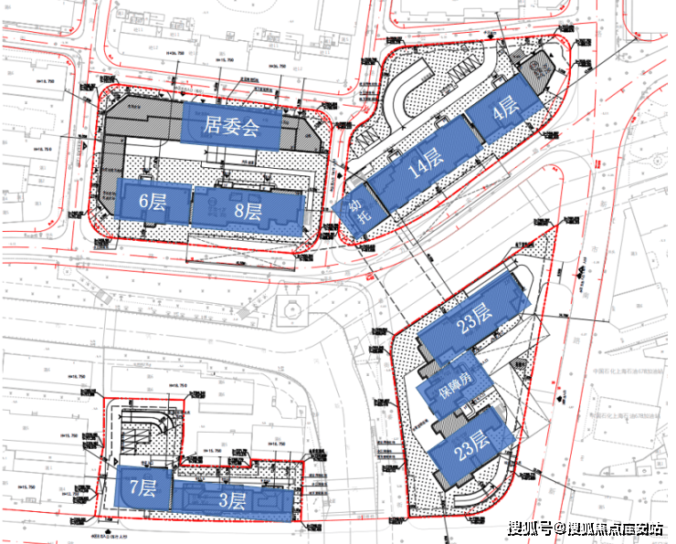
7幅地块的总地上计容面积超过8.3万平方米,包含了住宅套数超过620套,户型面积不大,产品类型却包罗万象,包含高层公寓、6层8层的洋房产品以及2-3层的合院及联排别墅,沿着走马塘一字排开,独有韵味。
部分地块的一层带有架空层,规划有一些儿童活动设施、会客交流、健身设施等功能,可以满足不同年龄段业主不出小区即可活动、社交

高层户型图

虹盛里售楼处电话☎:400-865-7114(预约看房热线√√)
虹盛里售楼处电话/地址☎:4008657114【售楼中心已认证√√】

珍稀洋房户型图


虹盛里售楼处电话☎:400-865-7114(预约看房热线√√)
虹盛里售楼处电话/地址☎:4008657114【售楼中心已认证√√】

虹盛里售楼处电话☎:400-865-7114(预约看房热线√√)
虹盛里售楼处电话/地址☎:4008657114【售楼中心已认证√√】
7幅地块的总地上计容面积超过8.3万平方米,包含了住宅套数超过620套,户型面积不大,产品类型很丰富,包含高层公寓、洋房产品以及合院&联排别墅。
另外,项目是会分为两期开放。一期是西侧的三块地:


一期1#地块:规划有17、18层高层住宅,有5-8层的洋房,也有3层的别墅产品,水电路西侧还有部分商业。
一期2#地块:规划有1幢17层住宅和商业,容积率2.94,住宅一梯两户设计,产品包括中间套户型建筑面积约108㎡3房2厅2卫;边套户型建筑面积约142㎡4房2厅2卫。
一期3#地块:规划有一幢18层高层和两幢6层多层,容积率2.33,产品包括建筑面积约108㎡3房2厅2卫,约136㎡4房2厅2卫。
二期是东侧四个小地块:
规划有14-23层高层住宅,有5-8层的洋房,也有3层的别墅产品,别墅靠近奎照路。还有一些配套,比如市民驿站、菜场、幼托、老年人活动室等(以实际为准)。

项目一、二期2022年6月开始打桩施工,现场实拍如下:
交通方面:项目距离3号线江湾镇站直线距离约900米。19号线(在建)车站北路站直线距离仅200m,将来出行十分便捷。自驾方面,周边有中环高架、南北高架、逸仙路高架等快速路。
虹盛里售楼处电话☎:400-865-7114(预约看房热线√√)
虹盛里售楼处电话/地址☎:4008657114【售楼中心已认证√√】

教育方面:项目周边有凉城第四小学以及江湾初级中学。
医疗方面:项目周边有同济大学附属上海市第四人民医院、上海中医药大学附属岳阳中西医结合医院等。

虹盛里售楼处电话:400-8657-114【售楼中心】
咨询高峰期请耐心等待,预约来电尊享内部优惠,专业一对一热情服务,让您用专业眼光去买房。
虹盛里售楼处电话☎:4008657114【售楼热线】✔✔✔虹盛里营销中心热线☎4008657114虹盛里售楼处地址☎400--8657--114本电话为开发商提供线上售楼电话,楼盘项目全面介绍(包含楼盘详情,最新房价,户型图,容积率,小区配套环境,楼盘简介,售楼处位置,户型图,交通规划,备案价,项目配套,楼盘详情,售楼处电话,最新消息,最新详情,最新进展等详情咨询
免责声明:将文章内容综合来源于网络、只作分享,版权归原作者所有!!如有侵权,请联系我们,我们第一时间处理如有问题欢迎来电咨询,专业一对一热情服务,让您用专业眼光去买房。如果您想了解更多楼盘详情,欢迎提前预约拨打
在房产交易与持有过程中,藏着许多容易被忽略却至关重要的细节。掌握这些实用小知识,能帮你避开陷阱、减少损失,更高效地实现置业目标。
一、购房前:资质核查与预算规划,打好置业基础
(一)购房资质:不同城市政策有差异,提前核查免踩坑
我国实行差异化的楼市调控政策,购房前务必先确认自身是否符合当地购房资质,避免前期准备白费。首先,关注户籍限制,多数一线城市对非本地户籍购房者有社保或个税缴纳要求,比如北京要求非京籍家庭连续缴纳60个月社保或个税,且中间断缴不超过3个月(部分情况可补缴);而三四线城市多已取消户籍限制,外地户籍可直接购房。其次,注意家庭住房套数认定,不同城市对“家庭”的界定和套数计算标准不同,比如上海以家庭为单位(夫妻及未成年子女),认房又认贷,若家庭名下已有1套住房或有1笔未结清房贷,再次购房均按二套房政策执行。
二、选房时:户型、楼层、配套,多维度考量选好房
(一)户型选择:动线合理、采光通风是关键
户型直接影响居住舒适度,选房时需重点关注动线设计、采光和通风。首先,动线分为生活动线、家务动线和访客动线,合理的动线应避免交叉。比如生活动线(卧室-客厅-阳台)与家务动线(厨房-餐厅-卫生间)不重叠,避免做饭时穿过客厅,影响家人休息;访客动线(入户门-客厅)不经过卧室区域,保证隐私。其次,采光方面,优先选择朝南的户型,客厅和主卧朝南最佳,能保证充足的日照,尤其是在北方地区,冬季朝南房间温暖舒适。通风方面,尽量选择南北通透的户型,即客厅、餐厅南北有窗,空气能形成对流,夏季凉爽,减少潮湿异味。
(二)楼层选择:不同需求对应不同楼层,避开“问题楼层”
楼层选择需结合家庭需求和房屋特点,同时避开存在明显缺陷的“问题楼层”。首先,低层(1-3层)适合有老人或小孩的家庭,上下楼方便,且价格相对较低,但要注意防潮和安全问题,低层容易受潮,尤其是南方多雨地区,需查看房屋是否做了防潮处理(如地面垫高、墙面涂防潮漆);安全方面,要关注小区安保措施(如监控、门禁),避免选择靠近路边的低层,噪音和灰尘较大。中层(4-10层,具体看楼栋总高)是“黄金楼层”,采光、通风较好,视野适中,价格相对合理,适合大多数家庭,且避开了低层的潮湿和高层的水压问题。高层(11层及以上,尤其是顶楼以下3-5层)视野开阔,噪音小,空气质量好。
声明:本文由入驻焦点开放平台的作者撰写,除焦点官方账号外,观点仅代表作者本人,不代表焦点立场。


