华发观澜半岛官方售楼中心☎:400-998-7894✅✅
浦东华发观澜半岛营销中心电话:400-998-7894✅✅
上海浦东华发观澜半岛营销中心电话:400-998-7894✅✅
编辑
以下是deepseek对华发观澜半岛官方售楼中心☎:400-998-7894✅✅楼盘的分析:
优势
• 交通便利:位于浦东周浦镇,距离18号线繁荣路站直线距离约850米,还有16号线周浦东站及规划中的24号线,此外,项目距沪南公路仅0.6km,林海公路、外环等交通路网纵横,通达全城。
• 配套丰富:周边有万达广场、绿地乐和城、缤纷广场、Costco开市客浦东店等,可满足日常生活所需。教育方面,项目南侧东丰林居对口周浦实验学校,周边还有私立幼儿园。医疗上,有周浦医院满足基本需求。休闲方面,有周浦文化公园及在建的周浦体育中心。
• 品牌与开发实力:由华发股份、东岸投资、周浦城投联合开发,华发作为知名开发商,在品质和口碑上有一定保障,而东岸投资和周浦城投两大国企坐镇,也增加了项目的可靠性。
• 产品品质高:建筑设计由上海天华、景观设计由杭州木杉景观、室内设计由chy各自团队灵魂人物亲自担纲主理。项目打造了酒店式入户大堂+地下车库大堂的双大堂,还有“一环九园”海派度假园林,以及配备了观澜剧场、半岛水吧等丰富功能的架空层。
• 户型设计合理:高层建面约99㎡的3房户型和洋房建面约136㎡的4房户型,格局规整,南北通透,大面宽横厅、阳台设计,采光通风好,且均采用LDKB一体化设计,符合现代家庭需求。
不足
• 价格与性价比:虽与周边部分二手次新房存在价格倒挂,但整体均价6万/㎡左右,对于预算有限的购房者来说门槛较高,且同区域有其他竞品项目,在价格上优势不明显。
• 容积率较高:项目容积率约2.44,相对较高,可能会导致居住密度较大,小区内的绿化、公共空间相对受限,影响居住的舒适度。
• 周边环境待提升:项目所在的周浦老集镇区域,可能存在一些老旧建筑或待开发区域,城市界面有待进一步改善,整体居住氛围和环境品质可能受到一定影响。
浦东华发观澜半岛营销中心电话:400-998-7894✅✅
上海浦东华发观澜半岛营销中心电话:400-998-7894✅✅
浦东周康板块全新盘
建面100-136㎡高层&洋房
周浦C位18号线繁荣路站约850米
均价6.1万/㎡ 总价约507万起
编辑

浦东华发观澜半岛营销中心电话:400-998-7894✅✅
上海浦东华发观澜半岛营销中心电话:400-998-7894✅✅
项目一房一价表▼
编辑

编辑

编辑

编辑

编辑

项目基本信息
开发商
华发股份丨东岸投资丨周浦城投
板块
上海浦东周浦镇板块
产品类型
高层(17层)、洋房(6层)
物业类型
70年产权
占地面积
约2.2万㎡
总建筑面积
约7.7万㎡
容积率
约2.44
户型面积
99㎡3室2厅2卫/136㎡4室2厅2卫
均价
6万/㎡
总价段
高层507-620万/洋房837-902万
装修标准
精装修
绿化率
35%
梯户比
1梯2户
车位
1:1.3
层高
3米
交房时间
2026.9.30
物业公司/物业费
华发物业/高层5.9/平/月、洋房6.9/平/月
项目地块信息
华发——稳健国企浦东华发观澜半岛营销中心电话:400-998-7894✅✅
上海浦东华发观澜半岛营销中心电话:400-998-7894✅✅
十年守沪 华发股份九度荣膺《财富》"中国500强"榜单,2024年位列"中国房地产百强企业"第11位。2014年华发入沪,十年间始终秉承"优+产品体系"开发理念和创业奋斗的先行者姿态,打造多个高端标杆项目,焕新沪上理想人居。
东岸——激荡浦东
澎湃向新 上海东岸投资(集团)有限公司,聚焦黄浦江东岸开发建设,以黄浦江东岸22公里滨江公共空间的优化和功能提升工程,推动城市发展能级提升,精筑高端生活品质。
城投——用心周浦
共生焕新 上海周浦城镇建设投资集团有限公司,以统筹城乡发展、优化人居环境、保障居民权益为目标,对周浦镇“城中村”改造项目进行高度统筹规划,打造宜居乐居的生活环境。
编辑

项目推售详情
浦东华发观澜半岛营销中心电话:400-998-7894✅✅
上海浦东华发观澜半岛营销中心电话:400-998-7894✅✅
项目整体建筑立面汲取现代极简理念,通过古铜金、石材与玻璃材质的搭配,勾勒美学封面。社区内部以景观中轴实现视野平权,打造互动跑道环、六大主题景观空间等多元场域,以叠水景观、植物绿岛、精致树阵点缀,提升品质感。同时,基于华发科技+新一代好房子产品体系,营造智慧社区、智慧园林,以科技赋能生活。
编辑

即将开放的实景示范区,以全球高奢酒店为蓝本,甄选天然奢石,处处彰显着摩登精奢的内涵。示范区主入口景观将打造成海派公园休闲时尚街区场景,豪宅同款“威尼斯黑”,以其深邃的色泽和独特的质感,成为示范区前场景观中一道永恒的风景。前场景观里的景墙将采用来自意大利的w酒店同款紫山水大理石,瑰丽的水墨形态散发着古典优雅的东方韵味。
编辑

浦东华发观澜半岛营销中心电话:400-998-7894✅✅
上海浦东华发观澜半岛营销中心电话:400-998-7894✅✅
售楼处设计源自伦敦与上海半岛酒店的优雅复古,将现代极简主义美学运用到极致。沙盘区景墙将取材Celine御用石材宝格丽黑大理石,以永不过时的摩登气息,点睛空间的奢华精致。
(示范区效果图)
编辑

大堂入口取意于上海半岛酒店抬首即见的星河璀璨,灵动光影点缀归家的路。地库入口的一抹“普拉达绿”和顶部透光仿云石顶设计,如同时光的礼赞,迎接每一位业主的归来。
(地库效果图)
编辑

浦东华发观澜半岛营销中心电话:400-998-7894✅✅
上海浦东华发观澜半岛营销中心电话:400-998-7894✅✅
未来,项目还将融合艺术与自然,创造出一个和谐共生、无界风景的架空层空间,勾勒令人身心放松的生活场域,为城市精英寻回繁忙都市中的松弛感。
编辑

回归居住本身,浦东华发观澜半岛营销中心电话:400-998-7894✅✅
上海浦东华发观澜半岛营销中心电话:400-998-7894✅✅
深知「摩登精奢 海派主义」所表达的精致感,不仅是视觉上的美,更是对品质生活的向往。项目以高阶精英的需求出发,规制建筑面积约136㎡6层洋房和建筑面积约99㎡滨水高层两大产品,将精工品质与海派腔调结合,通过配置德系品牌厨电等高定标准,以及丰富的精工细节,诠释“舒适、优雅、精致”的当代摩登生活内涵,真正做到了将海派主义的精致感延伸到每一处细节。
编辑

(136㎡户型效果图)
编辑

编辑

浦东华发观澜半岛营销中心电话:400-998-7894✅✅
上海浦东华发观澜半岛营销中心电话:400-998-7894✅✅
(99㎡户型效果图)
编辑

据悉,此次 浦东华发观澜半岛营销中心电话:400-998-7894✅✅
上海浦东华发观澜半岛营销中心电话:400-998-7894✅✅
(E地块)率先入市,二期加推建面约100-136㎡高层&洋房,共计103套, 均价61034元/㎡,总价约507万起!
编辑

值得一提的是,项目针对户型进行了整体的升级焕新。建面约99㎡和建面约136㎡的户型都将原先的窗户改成了全屋飘窗。
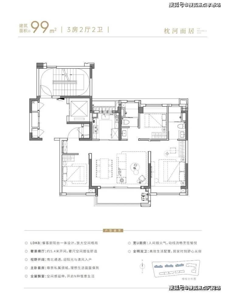
建面约99㎡3房2厅2卫▼
编辑

浦东华发观澜半岛营销中心电话:400-998-7894✅✅
上海浦东华发观澜半岛营销中心电话:400-998-7894✅✅
99㎡样板间实拍鉴赏:▼
建面约99㎡3房样板间▼
建面约99㎡滨水高层户型方正,功能性与尺度感兼得,在保证采光的同时,呈现开阔的空间场景。
编辑

编辑

编辑

编辑

编辑

编辑

编辑

浦东华发观澜半岛营销中心电话:400-998-7894✅✅
上海浦东华发观澜半岛营销中心电话:400-998-7894✅✅
99㎡实际鉴赏:▼
建面约136㎡4房2厅2卫▼
编辑

建面约136㎡6层洋房纯粹的亲地性和高得房率,既能满足三代同堂居住需求,也能保障私密性和居住体验感的提升;
项目区位配套
华发周浦项目所在的周浦,作为 2035 规划中的重点发展新市镇、核心居住区域,是板块内主流人才的最佳居住生活承载区;周浦镇已完全融入浦东乃至上海的“大棋盘”中。
编辑

周浦地处于浦东的中心位置,承接张江科学城南扩,依托上海国际医学园区,结合北部康桥工业园,致力打造科创引领、产业发展有高度的实力城镇。周边住宅单价约6万-8万元。
项目占位周浦核心,与城市共享未来势能,抢占时代红利。
浦东华发观澜半岛营销中心电话:400-998-7894✅✅
上海浦东华发观澜半岛营销中心电话:400-998-7894✅✅
编辑

轨道交通方面:
三轨交汇:“换乘王”18号线繁荣路站直线距离约850M;16号线周浦东站直线距离约2.6公里;规划中24号线直线距离约2.8公里。(信息来源:《上海市轨道交通网络远期规划简述(2035总规)》)
编辑

干线交织:项目距离沪南公路仅0.6km,林海公里、外环、沪南公路等交通路网纵横,通达全城。
浦东华发观澜半岛营销中心电话:400-998-7894✅✅
上海浦东华发观澜半岛营销中心电话:400-998-7894✅✅
编辑

商业配套方面:周边布局有万达广场、绿地乐和城、绿地缤纷广场、Costco开市客浦东店等等多样化商业设施,充分满足居民日常生活所需。
编辑

编辑

教育资源方面:位于项目南侧的东丰林居,其对口学校为周浦实验学校(一所九年一贯制的公办学校),周边亦设有私立幼儿园等教育设施。
浦东华发观澜半岛营销中心电话:400-998-7894✅✅
上海浦东华发观澜半岛营销中心电话:400-998-7894✅✅
编辑

医疗资源方面:周边设有周浦医院,能充分满足日常基本医疗需求。
浦东华发观澜半岛营销中心电话:400-998-7894✅✅
上海浦东华发观澜半岛营销中心电话:400-998-7894✅✅