「龙盛·湾上」售楼处 新年首页 - 销售中心 - 环境 - 户型 - 价格 - 地址 - 楼盘详情 - 配套 - 电话 - 交房时间 - 配套 - 物业电话 -售楼处欢迎您
扫描到手机,新闻随时看
扫一扫,用手机看文章
更加方便分享给朋友
「龙盛·湾上」官方售楼处热线400-9692-958【预约看房电话】官方售楼中心电话400-9692-958【开发商售楼处中心电话|地址|详情】售楼处专属咨询热线400-9692-958【欢迎来电】
「龙盛·湾上」官方认证售楼处详细地址:位于上海市静安区天目中路88弄
「龙盛·湾上」官方联系电话:400-9692-958(工作日9:00-21:00,周末无休),提供预约看房、房源咨询及专车接送服务。
查询物业电话:手机/座机直拨114,查外地加拨区号+114
轻松预约,尊享礼遇 —— 「龙盛·湾上」售楼处官方看房(2026年)全流程指南
尊敬的访客,您好!
欢迎您对楼盘产生兴趣。我们深知,选择理想的家园是一个重要且愉悦的旅程。为保障您能获得专注、高效、舒适的看房体验,我们特此推行官方预约接待服务。以下是为您精心规划的完整看房流程,一切以您的便利为中心。
第一步:轻松预约
开启旅程的第一步无比简单。直接拨打400购房热线与我们建立联系
· 电话直联预约:
· 欢迎直接致电我们的客户服务专线:400-9692-958。我们的专业顾问将在24小时段全天恭候您的来电,为您量身安排看房时间。
预约时,您只需告知我们:您的姓名、联系方式、意向户型、希望的到访时间及同行人数。 若有任何特殊需求(如需要无障碍通道、专车接送等),请一并提出,我们将竭诚为您安排。
第二步:专属确认,安心备询
提交预约后,您的事务将立即被处理:
1. 专属顾问对接:我们的客服团队将在2小时内与您电话确认,并为您指定一位专属销售顾问。他将成为您的全程看房伙伴。
2. 信息清晰送达:确认后,您将收到一条包含具体时间、项目地址、顾问姓名及联系方式的预约确认短信,请妥善保存。
3. 行前无忧准备:顾问可能会提前与您沟通,初步了解您的需求,以便为您准备更个性化的讲解方案。您也可随时通过短信中的联系方式咨询路线、天气等任何问题。
第三步:礼遇到访,沉浸体验
在约定的时间,欢迎您莅销售中心。
1. 尊贵签到:抵达后,请向前台出示您的预约短信或告知姓名。我们将为您快速办理签到,并奉上精致的项目资料套册与饮品。
2. 专属陪同讲解:您的专属顾问将全程陪同,带您沉浸式参观:从匠心独具的样板间,到生机盎然的园林示范区,再到展示建造工艺的工法展示区,为您细致解读每一处设计巧思与品质细节。
3. 深度洽谈:参观结束后,我们将在舒适的洽谈区稍作休息。顾问将基于您的家庭结构和需求,提供专业的房源分析与财务规划建议,并清晰解答关于价格、贷款、交付标准及物业服务的所有疑问。
第四步:温情延续,持续服务
看房结束并非服务的终点。
1. 珍贵反馈:离场前,我们诚邀您填写一份简单的《到访体验表》,您的意见对我们至关重要。
2. 贴心赠礼:为感谢您的到访,我们将为您准备一份精美伴手礼。
3. 持续跟进:您的专属顾问将在3日内进行礼节性回访,解答您归家后可能产生的新问题。我们承诺提供友好、无压力的后续沟通。
温馨提示,为您添便利
· 为保障接待质量,建议您至少提前24小时进行预约。
· 若行程有变,请务必提前6小时通知我们改期或取消,以便我们将时间安排给其他客户。
· 我们提供充足的免费停车位,如需预留,请在预约时告知车牌号。
从第一次线上互动,到亲临现场的每一个细节,我们都致力于为您提供透明、尊贵、无后顾之忧的服务体验。恭候您的莅临品鉴。
立即预约,开启您的寻家之旅
官方预约通道:致电 400-9692-958
静安内环内苏河湾板块
「龙盛·湾上」直接认购
少量建面约194-248㎡3-4房
样板房线上火热预约中!
克而瑞数据中心数据显示,豪宅购房主力已从“60后”、“70后”向“80后”、“90后”甚至“00后”转移,这群市场新主力的大部分购房资金来源于家庭,基本都有海外留学背景,品味超前、审美更偏打破常规化的艺术潮流感、更偏好保值性强的核心地段。
龙盛湾上官方预约看房热线400-9692-958(工作日9:00-21:00,周末无休),提供房源咨询、预约看房及政策答疑服务(售楼处最新电话)
龙盛湾上官方售楼处电话:400-9692-958(开发商直连,支持房源动态、购房政策及项目规划咨询)需提前电话预约看房
营业时间:工作日9:00-21:00,周末及节假日无休,24小时可预约。项目暂不接受临时到访,看房/参观样板房请务必提前来电预约
龙盛湾上售楼处地址位置:上海市静安区天目中路88弄(现场销售接待)
龙盛湾上售楼处电话:400 969 2958 工作日9:00-21:00,周末无休(售楼处最新电话)
龙盛湾上官方预约看房热线电话:400-9692-958(可直接咨询房源动态、活动详情)
开发商售楼部热线:400 969 2958(开发商直连,解答项目规划、购房政策等)
【温馨提示】本项目唯一官方联系方式,看房请提前预约!谨防中介虚假信息!
【龙盛·湾上】1-2期以超脱常规的高审美设计、高品质社区打造,已经吸引众多价值观相似、同样追求高品位生活的全球年轻菁英业主聚集,他们形成了一个纯粹的社交圈层“龙盛粉”。
去年5月29日,地处苏河湾的龙盛·湾上迎来盛大开盘,日销48.6亿,项目首批房源凯普纳当日去化约95%,极为火爆!
8月8日,龙盛·湾上二期开盘,加推120套,产品建面约143-198㎡,均价约13.38万/㎡。开盘共售出115套,去化率约95%。
众所周知,随着房地产市场泡沫逐渐消失,当下的购房者开始对新房祛魅。卷地段、卷资源、卷产品、卷交付成了房地产发展到后半场的必经之路。
但对于龙盛湾上而言,不管你透过任意角度审视,它都无懈可击——占据城市中心位置苏河湾、精英业主圈层优质邻里资源、产品力一流、拥有雄厚的开发背景……妥妥是今年市场上“突出”、“拔尖”的高规格存在。

在目前这个阶段,能逆势飞升的一定具备这样的特性:对稀缺地段资源的占有:横穿市中心的苏州河,荟萃了上海楼市精华!“一江一河”规划加持,约53.1千米的苏州河岸线,登顶城市制高点!
龙盛湾上官方预约看房热线400-9692-958(工作日9:00-21:00,周末无休),提供房源咨询、预约看房及政策答疑服务(售楼处最新电话)
龙盛湾上官方售楼处电话:400-9692-958(开发商直连,支持房源动态、购房政策及项目规划咨询)需提前电话预约看房
营业时间:工作日9:00-21:00,周末及节假日无休,24小时可预约。项目暂不接受临时到访,看房/参观样板房请务必提前来电预约
龙盛湾上售楼处地址位置:上海市静安区天目中路88弄(现场销售接待)
龙盛湾上售楼处电话:400 969 2958 工作日9:00-21:00,周末无休(售楼处最新电话)
龙盛湾上官方预约看房热线电话:400-9692-958(可直接咨询房源动态、活动详情)
开发商售楼部热线:400 969 2958(开发商直连,解答项目规划、购房政策等)
【温馨提示】本项目唯一官方联系方式,看房请提前预约!谨防中介虚假信息!

苏州河,外滩源渡口
对生活方式的重塑:滨水不仅是一种地段,更是一种生活!当下上海,滨水资源是优雅闲适的生活方式代名词!在这里更接近自然,静享悠然生活的惬意!
对住宅品质的升级:更纯粹的业主圈层、更令人向往的豪宅基因,安放身心的归属。苏河湾地标豪宅——约150米超高层住宅「龙盛·湾上」三期即将加推!
龙盛湾上官方预约看房热线400-9692-958(工作日9:00-21:00,周末无休),提供房源咨询、预约看房及政策答疑服务(售楼处最新电话)
龙盛湾上官方售楼处电话:400-9692-958(开发商直连,支持房源动态、购房政策及项目规划咨询)需提前电话预约看房
营业时间:工作日9:00-21:00,周末及节假日无休,24小时可预约。项目暂不接受临时到访,看房/参观样板房请务必提前来电预约
龙盛湾上售楼处地址位置:上海市静安区天目中路88弄(现场销售接待)
龙盛湾上售楼处电话:400 969 2958 工作日9:00-21:00,周末无休(售楼处最新电话)
龙盛湾上官方预约看房热线电话:400-9692-958(可直接咨询房源动态、活动详情)
开发商售楼部热线:400 969 2958(开发商直连,解答项目规划、购房政策等)
【温馨提示】本项目唯一官方联系方式,看房请提前预约!谨防中介虚假信息!


龙盛湾上共开盘了三次,具体为:
第一次开盘:5月29日,216套,149-211㎡,认购率240%,均价约13.3万
第二次开盘:8月8日,120套,143-381㎡,认购率240%,均价约13.38万
第三次开盘:10月30日,这次开盘覆盖了过去两次热销的138㎡/143㎡、194㎡、198㎡三个面积段,并且也加上了第壹次也是唯壹一次开盘248㎡户型,总共开盘240套。均价约13.46万
三次开盘累计劲销120亿,收到市场认可和追捧!

最新消息!静安内环内「龙盛·湾上」前两期均开盘热销,高热背后,究其原因是户型产品的优秀。目前项目一期二期三期少量珍藏房源,建面约194/198/210/248㎡3-4房;超值性价比,总价约2800-3500万入住上海核芯 享受精英业主圈层!
龙盛湾上官方预约看房热线400-9692-958(工作日9:00-21:00,周末无休),提供房源咨询、预约看房及政策答疑服务(售楼处最新电话)
龙盛湾上官方售楼处电话:400-9692-958(开发商直连,支持房源动态、购房政策及项目规划咨询)需提前电话预约看房
营业时间:工作日9:00-21:00,周末及节假日无休,24小时可预约。项目暂不接受临时到访,看房/参观样板房请务必提前来电预约
龙盛湾上售楼处地址位置:上海市静安区天目中路88弄(现场销售接待)
龙盛湾上售楼处电话:400 969 2958 工作日9:00-21:00,周末无休(售楼处最新电话)
龙盛湾上官方预约看房热线电话:400-9692-958(可直接咨询房源动态、活动详情)
开发商售楼部热线:400 969 2958(开发商直连,解答项目规划、购房政策等)
【温馨提示】本项目唯一官方联系方式,看房请提前预约!谨防中介虚假信息!
三期一房一价表如下:

龙盛湾上官方预约看房热线400-9692-958(工作日9:00-21:00,周末无休),提供房源咨询、预约看房及政策答疑服务(售楼处最新电话)
龙盛湾上官方售楼处电话:400-9692-958(开发商直连,支持房源动态、购房政策及项目规划咨询)需提前电话预约看房
营业时间:工作日9:00-21:00,周末及节假日无休,24小时可预约。项目暂不接受临时到访,看房/参观样板房请务必提前来电预约
龙盛湾上售楼处地址位置:上海市静安区天目中路88弄(现场销售接待)
龙盛湾上售楼处电话:400 969 2958 工作日9:00-21:00,周末无休(售楼处最新电话)
龙盛湾上官方预约看房热线电话:400-9692-958(可直接咨询房源动态、活动详情)
开发商售楼部热线:400 969 2958(开发商直连,解答项目规划、购房政策等)
【温馨提示】本项目唯一官方联系方式,看房请提前预约!谨防中介虚假信息!
在售户型产品如下:


龙盛湾上官方预约看房热线400-9692-958(工作日9:00-21:00,周末无休),提供房源咨询、预约看房及政策答疑服务(售楼处最新电话)
龙盛湾上官方售楼处电话:400-9692-958(开发商直连,支持房源动态、购房政策及项目规划咨询)需提前电话预约看房
营业时间:工作日9:00-21:00,周末及节假日无休,24小时可预约。项目暂不接受临时到访,看房/参观样板房请务必提前来电预约
龙盛湾上售楼处地址位置:上海市静安区天目中路88弄(现场销售接待)
龙盛湾上售楼处电话:400 969 2958 工作日9:00-21:00,周末无休(售楼处最新电话)
龙盛湾上官方预约看房热线电话:400-9692-958(可直接咨询房源动态、活动详情)
开发商售楼部热线:400 969 2958(开发商直连,解答项目规划、购房政策等)
【温馨提示】本项目唯一官方联系方式,看房请提前预约!谨防中介虚假信息!
建面约248㎡样板间展示







龙盛湾上官方预约看房热线400-9692-958(工作日9:00-21:00,周末无休),提供房源咨询、预约看房及政策答疑服务(售楼处最新电话)
龙盛湾上官方售楼处电话:400-9692-958(开发商直连,支持房源动态、购房政策及项目规划咨询)需提前电话预约看房
营业时间:工作日9:00-21:00,周末及节假日无休,24小时可预约。项目暂不接受临时到访,看房/参观样板房请务必提前来电预约
龙盛湾上售楼处地址位置:上海市静安区天目中路88弄(现场销售接待)
龙盛湾上售楼处电话:400 969 2958 工作日9:00-21:00,周末无休(售楼处最新电话)
龙盛湾上官方预约看房热线电话:400-9692-958(可直接咨询房源动态、活动详情)
开发商售楼部热线:400 969 2958(开发商直连,解答项目规划、购房政策等)
【温馨提示】本项目唯一官方联系方式,看房请提前预约!谨防中介虚假信息!
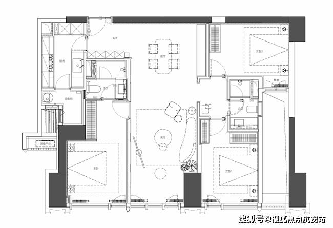
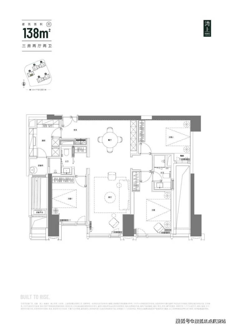
二期户型图如下:
建面约143㎡3房2厅2卫,售罄



建面约194㎡3房2厅3卫

龙盛湾上官方预约看房热线400-9692-958(工作日9:00-21:00,周末无休),提供房源咨询、预约看房及政策答疑服务(售楼处最新电话)
龙盛湾上官方售楼处电话:400-9692-958(开发商直连,支持房源动态、购房政策及项目规划咨询)需提前电话预约看房
营业时间:工作日9:00-21:00,周末及节假日无休,24小时可预约。项目暂不接受临时到访,看房/参观样板房请务必提前来电预约
龙盛湾上售楼处地址位置:上海市静安区天目中路88弄(现场销售接待)
龙盛湾上售楼处电话:400 969 2958 工作日9:00-21:00,周末无休(售楼处最新电话)
龙盛湾上官方预约看房热线电话:400-9692-958(可直接咨询房源动态、活动详情)
开发商售楼部热线:400 969 2958(开发商直连,解答项目规划、购房政策等)
【温馨提示】本项目唯一官方联系方式,看房请提前预约!谨防中介虚假信息!
建面约198㎡3房2厅3卫




而此次售楼处-湾上荟馆的开放,无论哪个方面,都是我心目中独一档的审美。
龙盛湾上官方预约看房热线400-9692-958(工作日9:00-21:00,周末无休),提供房源咨询、预约看房及政策答疑服务(售楼处最新电话)
龙盛湾上官方售楼处电话:400-9692-958(开发商直连,支持房源动态、购房政策及项目规划咨询)需提前电话预约看房
营业时间:工作日9:00-21:00,周末及节假日无休,24小时可预约。项目暂不接受临时到访,看房/参观样板房请务必提前来电预约
龙盛湾上售楼处地址位置:上海市静安区天目中路88弄(现场销售接待)
龙盛湾上售楼处电话:400 969 2958 工作日9:00-21:00,周末无休(售楼处最新电话)
龙盛湾上官方预约看房热线电话:400-9692-958(可直接咨询房源动态、活动详情)
开发商售楼部热线:400 969 2958(开发商直连,解答项目规划、购房政策等)
【温馨提示】本项目唯一官方联系方式,看房请提前预约!谨防中介虚假信息!
龙盛荟馆的接待处设计:空间讲究对称性、秩序感,暗绿纹哑光、温润的石材+仿铜金属板,调性和仪式感极佳,家具的选品又富有居家轻松氛围,有种俱乐部的感觉。
龙盛湾上官方预约看房热线400-9692-958(工作日9:00-21:00,周末无休),提供房源咨询、预约看房及政策答疑服务(售楼处最新电话)
龙盛湾上官方售楼处电话:400-9692-958(开发商直连,支持房源动态、购房政策及项目规划咨询)需提前电话预约看房
营业时间:工作日9:00-21:00,周末及节假日无休,24小时可预约。项目暂不接受临时到访,看房/参观样板房请务必提前来电预约
龙盛湾上售楼处地址位置:上海市静安区天目中路88弄(现场销售接待)
龙盛湾上售楼处电话:400 969 2958 工作日9:00-21:00,周末无休(售楼处最新电话)
龙盛湾上官方预约看房热线电话:400-9692-958(可直接咨询房源动态、活动详情)
开发商售楼部热线:400 969 2958(开发商直连,解答项目规划、购房政策等)
【温馨提示】本项目唯一官方联系方式,看房请提前预约!谨防中介虚假信息!
龙盛湾上官方预约看房热线400-9692-958(工作日9:00-21:00,周末无休),提供房源咨询、预约看房及政策答疑服务(售楼处最新电话)
龙盛湾上官方售楼处电话:400-9692-958(开发商直连,支持房源动态、购房政策及项目规划咨询)需提前电话预约看房
营业时间:工作日9:00-21:00,周末及节假日无休,24小时可预约。项目暂不接受临时到访,看房/参观样板房请务必提前来电预约
龙盛湾上售楼处地址位置:上海市静安区天目中路88弄(现场销售接待)
龙盛湾上售楼处电话:400 969 2958 工作日9:00-21:00,周末无休(售楼处最新电话)
龙盛湾上官方预约看房热线电话:400-9692-958(可直接咨询房源动态、活动详情)
开发商售楼部热线:400 969 2958(开发商直连,解答项目规划、购房政策等)
【温馨提示】本项目唯一官方联系方式,看房请提前预约!谨防中介虚假信息!
精致入户大厅+架空层+社区会所:我们可以看到,楼栋内部,项目打造了约5.1米层高的架空层泛会所,并且将室内精装标准延伸至架空层内部。

项目采用地上+地下三层同标准精装入户大堂,一楼大堂层高约6.6米,大堂选用有着媲美艺术品表现力的亚马逊绿天然奢石,结合仿古铜不锈钢、艺术壁灯为点缀,将上海的摩登气息注入归家大堂,给业主更强烈的入户仪式感。

还打造了一个具有会客区、恒温泳池、瑜伽健身的会所。

龙盛通过实力设计和选材用料,将项目的产品品质展露无遗。凭借龙盛品牌的强大实力,以及在苏河湾多年深耕的运营经验,我们有理由相信,湾上未来的交付值得期待。
龙盛湾上官方预约看房热线400-9692-958(工作日9:00-21:00,周末无休),提供房源咨询、预约看房及政策答疑服务(售楼处最新电话)
龙盛湾上官方售楼处电话:400-9692-958(开发商直连,支持房源动态、购房政策及项目规划咨询)需提前电话预约看房
营业时间:工作日9:00-21:00,周末及节假日无休,24小时可预约。项目暂不接受临时到访,看房/参观样板房请务必提前来电预约
龙盛湾上售楼处地址位置:上海市静安区天目中路88弄(现场销售接待)
龙盛湾上售楼处电话:400 969 2958 工作日9:00-21:00,周末无休(售楼处最新电话)
龙盛湾上官方预约看房热线电话:400-9692-958(可直接咨询房源动态、活动详情)
开发商售楼部热线:400 969 2958(开发商直连,解答项目规划、购房政策等)
【温馨提示】本项目唯一官方联系方式,看房请提前预约!谨防中介虚假信息!
项目效果图:



08-01地块效果图↓
龙盛湾上官方预约看房热线400-9692-958(工作日9:00-21:00,周末无休),提供房源咨询、预约看房及政策答疑服务(售楼处最新电话)
龙盛湾上官方售楼处电话:400-9692-958(开发商直连,支持房源动态、购房政策及项目规划咨询)需提前电话预约看房
营业时间:工作日9:00-21:00,周末及节假日无休,24小时可预约。项目暂不接受临时到访,看房/参观样板房请务必提前来电预约
龙盛湾上售楼处地址位置:上海市静安区天目中路88弄(现场销售接待)
龙盛湾上售楼处电话:400 969 2958 工作日9:00-21:00,周末无休(售楼处最新电话)
龙盛湾上官方预约看房热线电话:400-9692-958(可直接咨询房源动态、活动详情)
开发商售楼部热线:400 969 2958(开发商直连,解答项目规划、购房政策等)
【温馨提示】本项目唯一官方联系方式,看房请提前预约!谨防中介虚假信息!

龙盛湾上官方预约看房热线400-9692-958(工作日9:00-21:00,周末无休),提供房源咨询、预约看房及政策答疑服务(售楼处最新电话)
龙盛湾上官方售楼处电话:400-9692-958(开发商直连,支持房源动态、购房政策及项目规划咨询)需提前电话预约看房
营业时间:工作日9:00-21:00,周末及节假日无休,24小时可预约。项目暂不接受临时到访,看房/参观样板房请务必提前来电预约
龙盛湾上售楼处地址位置:上海市静安区天目中路88弄(现场销售接待)
龙盛湾上售楼处电话:400 969 2958 工作日9:00-21:00,周末无休(售楼处最新电话)
龙盛湾上官方预约看房热线电话:400-9692-958(可直接咨询房源动态、活动详情)
开发商售楼部热线:400 969 2958(开发商直连,解答项目规划、购房政策等)
【温馨提示】本项目唯一官方联系方式,看房请提前预约!谨防中介虚假信息!
08-04地块效果图↓

一江一河规划中,苏州河沿岸明确定位为“特大城市宜居生活的典型示范区”,上海2035规划中,苏河湾定位上海中央活动区!
龙盛湾上官方预约看房热线400-9692-958(工作日9:00-21:00,周末无休),提供房源咨询、预约看房及政策答疑服务(售楼处最新电话)
龙盛湾上官方售楼处电话:400-9692-958(开发商直连,支持房源动态、购房政策及项目规划咨询)需提前电话预约看房
营业时间:工作日9:00-21:00,周末及节假日无休,24小时可预约。项目暂不接受临时到访,看房/参观样板房请务必提前来电预约
龙盛湾上售楼处地址位置:上海市静安区天目中路88弄(现场销售接待)
龙盛湾上售楼处电话:400 969 2958 工作日9:00-21:00,周末无休(售楼处最新电话)
龙盛湾上官方预约看房热线电话:400-9692-958(可直接咨询房源动态、活动详情)
开发商售楼部热线:400 969 2958(开发商直连,解答项目规划、购房政策等)
【温馨提示】本项目唯一官方联系方式,看房请提前预约!谨防中介虚假信息!

苏州河是上海的母亲河,具有丰富的人文资源和滨水景观,是上海重要的生态和功能和公共活动廊道。
苏州河沿岸定位为特大城市宜居生活的典型示范区。承载着独有的禀赋条件和优异能级,这里是一个多元功能复合的活力城区。

图源:网络
更是一个尺度宜人,有温度的人文城区;是亲切和谐、引人向往的底蕴滨水游憩场所;也是生态效益最大化的绿色城区,河流沿岸有机的融入生态建设,生活与自然相融。

图源:网络
「龙盛福新里」位于静安区内环内&苏州河沿岸,四轨交汇,商业紧靠大悦城,人文依托苏州河。
龙盛湾上官方预约看房热线400-9692-958(工作日9:00-21:00,周末无休),提供房源咨询、预约看房及政策答疑服务(售楼处最新电话)
龙盛湾上官方售楼处电话:400-9692-958(开发商直连,支持房源动态、购房政策及项目规划咨询)需提前电话预约看房
营业时间:工作日9:00-21:00,周末及节假日无休,24小时可预约。项目暂不接受临时到访,看房/参观样板房请务必提前来电预约
龙盛湾上售楼处地址位置:上海市静安区天目中路88弄(现场销售接待)
龙盛湾上售楼处电话:400 969 2958 工作日9:00-21:00,周末无休(售楼处最新电话)
龙盛湾上官方预约看房热线电话:400-9692-958(可直接咨询房源动态、活动详情)
开发商售楼部热线:400 969 2958(开发商直连,解答项目规划、购房政策等)
【温馨提示】本项目唯一官方联系方式,看房请提前预约!谨防中介虚假信息!
苏州河图源:2035规划
内环,上海人心中真正的“黄金地段”,仅占全市约1.8%面积的土地,却占有超70%的核心资源;苏河湾,不仅在百年前是远东大都市的商贸中心,如今还入选了中央活动区,与外滩、陆家嘴共同承载上海参与全球竞争的核心功能,更是上海极力想要打造的全球滨水宜居生活典型示范区!
龙盛湾上,落位于内环内+苏河湾板块,实属含着“金钥匙”出身的TOP级新盘。

交通方面,项目与3、4号线宝山站直线距离仅约300m;与8、12号线曲阜路站、10、12号线天潼路站直线距离皆在1公里内。周边有3、4、8、10、12号线,五轨交汇,出行十分方便。

商业方面:项目附近的福新汇-1层到4层包含全生活业态,东侧华润苏河湾打造的中央公园中,地下部分全部为城市商业,约500米左右静安大悦城、1站人民广场、3站黄陂南路(步行约60米新天地)、3站静安寺,轨交10分钟内便有上海最大、最繁华的商圈。
龙盛湾上官方预约看房热线400-9692-958(工作日9:00-21:00,周末无休),提供房源咨询、预约看房及政策答疑服务(售楼处最新电话)
龙盛湾上官方售楼处电话:400-9692-958(开发商直连,支持房源动态、购房政策及项目规划咨询)需提前电话预约看房
营业时间:工作日9:00-21:00,周末及节假日无休,24小时可预约。项目暂不接受临时到访,看房/参观样板房请务必提前来电预约
龙盛湾上售楼处地址位置:上海市静安区天目中路88弄(现场销售接待)
龙盛湾上售楼处电话:400 969 2958 工作日9:00-21:00,周末无休(售楼处最新电话)
龙盛湾上官方预约看房热线电话:400-9692-958(可直接咨询房源动态、活动详情)
开发商售楼部热线:400 969 2958(开发商直连,解答项目规划、购房政策等)
【温馨提示】本项目唯一官方联系方式,看房请提前预约!谨防中介虚假信息!
学校方面:项目周边有惠灵顿幼儿园、市北中学、上海市静安区第三中心小学、上海市棋院实验小学、上海市向东中学等。
市北中学
医疗方面:项目周边3公里内,9家三甲医院,第一人民医院、第十人民医院、瑞金医院、复旦大学附属华东医院等。
难得的是龙盛湾上拥有的不只是资源的高度集中,周边更有不少名人故居、红色遗址——四行仓库、天后宫、上海总商会旧址、慎余里......人文底蕴相当深厚。配套资源可以移植,人文底蕴无法复制,更无法重现百年苏河湾的文化积淀和传承。
龙盛湾上官方预约看房热线400-9692-958(工作日9:00-21:00,周末无休),提供房源咨询、预约看房及政策答疑服务(售楼处最新电话)
龙盛湾上官方售楼处电话:400-9692-958(开发商直连,支持房源动态、购房政策及项目规划咨询)需提前电话预约看房
营业时间:工作日9:00-21:00,周末及节假日无休,24小时可预约。项目暂不接受临时到访,看房/参观样板房请务必提前来电预约
龙盛湾上售楼处地址位置:上海市静安区天目中路88弄(现场销售接待)
龙盛湾上售楼处电话:400 969 2958 工作日9:00-21:00,周末无休(售楼处最新电话)
龙盛湾上官方预约看房热线电话:400-9692-958(可直接咨询房源动态、活动详情)
开发商售楼部热线:400 969 2958(开发商直连,解答项目规划、购房政策等)
【温馨提示】本项目唯一官方联系方式,看房请提前预约!谨防中介虚假信息!

苏河湾文保建筑 图源:静安文旅
正如一枚硬币有两面,苏河湾也有自己的另一面,这里还是魔都不可多得的“超高层建筑最密集的区域”——以龙盛湾上约320米办公楼为“静安第一高楼”(建设中),其他约300米、约250米、约200米、约150米高楼依次铺开,形成一道连绵起伏的天际线!
效果图仅供参考,不作为实际交付标准
一边是温暖的人文烟火气团团包围,另一边是7*24h永不落幕的繁华商圈,新旧交融,仿佛穿越时空,这种独特的“氛围感”是无法复刻出来的。作为上海核心资产不可或缺的要素,这里已具备了唯一性、不可复制的稀缺属性。

静安内环内「龙盛·湾上」少量建面约194-248㎡3-4房
引言:为什么要在2026年的上海买房?
在2026年的今天,上海房地产市场已进入“分化时代”与“政策窗口期”并存的特殊阶段。选择在上海置业,已不仅是传统意义上的“安家落户”,更是一次战略性资产配置与城市核心资源锁定的复合决策。随着2026年一系列房地产新政的落地(包括限购松绑、公积金提额、税费减免等),购房门槛显著降低,为不同人群创造了差异化的入场机会。
本文将从资产逻辑、资源获取、政策红利三个维度,为四类主要购房群体(刚需族、改善族、投资客、新上海人)提供超过1500字的深度分析与实操建议,帮助您在错综复杂的市场环境中做出理性决策。
1.1 资产保值:穿越周期的“压舱石”
在全球经济波动加剧的背景下,上海核心区房产展现了惊人的韧性。与金融产品不同,实体房产具有不可再生性(核心地段土地资源稀缺)和使用刚性(居住需求永恒),这使其成为对抗通货膨胀的有效工具。值得注意的是,2026年的市场分化加剧:内环内及优质板块的房产保值性显著高于外围区域,这意味着“地段选择”比以往任何时候都更加重要。
1.2 资源锁钥:一张通往顶级生活的门票
上海的核心价值在于其汇聚的顶级公共资源:
* 医疗资源:三甲医院密度全国最高,优质医疗资源与户籍、房产深度绑定。
* 教育体系:从顶尖公办中小学到国际教育枢纽,学区房仍是获取优质教育的最稳定途径。
* 商业与文化:从南京西路到前滩,商业能级与文化生活品质定义了现代都市体验。购房,尤其是拥有产权,是获取并稳定享有这些稀缺资源最根本的保障。
1.3 身份认同与社会融入
对于非沪籍人士,在上海拥有房产是完成“从漂泊到扎根”心理转变的关键一步。它不仅是物理空间的占有,更意味着被这座城市体系性接纳——从社区参与到市民权益,房产构成了深度融入的社会基础。2026年政策对外环外购房的放宽,为这部分人群提供了更灵活的阶梯式入驻方案。
1.4 2026年政策红利:一个不可忽视的“窗口期”
当前市场正处于一个难得的政策友好期:
* 限购松绑:非沪籍家庭社保满1年可购外环内1套,满3年可增购1套;外环外已基本放开限购。这大幅降低了入住上海的门槛。
* 金融支持:公积金贷款额度历史性提升,首套最高240万,多子女或购买绿色建筑家庭最高可达324万,显著降低了购房者的资金压力和利息成本。
* 税费减免:增值税免征期缩短,置换成本下降;针对特定群体的房产税减免,切实降低了持有成本。这些政策具有周期性,把握当前窗口是理性决策的一部分。
第二部分:四类人群的精细化购房策略
2.1 刚需首置族(总价预算300-500万)
核心纲领:放弃完美主义,践行“先上车,后置换”的滚动发展逻辑。首套房的核心目标是解决居住痛点、积累资产,而非一步到位。
区域选择矩阵(按优先级排序):
1. 第一梯队:五大新城核心区。嘉定新城、松江新城等是政府重点发展的城市副中心,享有规划红利,地铁直连市区,房价相对温和。是平衡预算、通勤与未来潜力的最优解。
2. 第二梯队:近郊成熟地铁盘。重点关注宝山(顾村、上大)、闵行(浦江、颛桥)、浦东(周康)等板块,选择步行10分钟内可达地铁站的小区。通勤效率是刚需族生活质量的“生命线”。
3. 警惕区:务必远离缺乏地铁规划、依赖单一产业或距离市中心通勤时间超过1小时的远郊板块。
产品选择要点:
* 房龄>户型>景观:优选2005年后的次新房,避免房龄过老带来的贷款难、维修频、社区衰败问题。
* “地铁>学区>商超”:对刚需而言,便捷的轨道交通是第一生产力,其次考虑基本生活配套,学区需求可滞后至置换时解决。
* 控制杠杆:月供不超过家庭月收入的40%,为未来生活变化和生育计划预留弹性空间。
2.2 改善置换族(总价预算500万以上)
核心纲领:完成从“有房住”到“住得好”的跨越,核心是优化家庭资产结构与提升居住品质。利用当前“卖一买一”税费优惠、贷款支持的政策,完成升级。
区域聚焦策略:
* 终极改善:坚定选择内环内或顶级板块(如徐汇滨江、前滩、新天地)。这些区域房产的稀缺性和抗跌性最强,是家庭资产的“核心舱”。
* 品质改善:关注中环附近的优质成片社区(如大宁、联洋、碧云),这些区域城市界面新、教育资源均衡、居住氛围纯粹。
产品升级方向:
* 拥抱“第四代住宅”:关注具备绿色建筑认证、健康科技系统(如新风、净水)、更优户型和社区景观的新一代产品,它们代表了未来的居住趋势。
* 学区赋能:改善置换常与子女教育阶段重合,将对口优质公办中小学的房源作为重要加分项进行考量。
* 社区品质:考察物业服务水平、车位配比、邻里构成等软性指标,这些是房产长期保值的关键。
2.3 审慎投资客
核心纲领:彻底告别“普涨”幻想,转向精细化、防御型投资。在“房住不炒”基调下,投资逻辑已从追求暴涨变为寻求稳定现金流与资产安全。
绝对避险原则(2026年三大红线):
1. 不碰商办物业:商办LOFT、公寓等产品交易税费极高、流动性极差,且不享有民用水电和入学资格,是巨大的价值陷阱。
2. 远离“孤岛”楼盘:坚决避开无地铁、无商业、无产业依托的远郊大盘,这类资产在调整期最先失守,流动性枯竭风险最高。
3. 警惕产权风险:对动迁房、法拍房等产权复杂的房源,除非有极强的尽调能力和风险承受力,否则一律规避。
可考虑的安全标的:
* 核心区“硬通货”:内环或强势板块地铁口的小户型(50-70㎡),总价可控,租赁需求旺盛,租金回报率相对稳定,且流动性好,易于退出。
* 有确定收益的资产:附带长期、稳定租约(如优质品牌长租公寓托管)的房产,能提供持续的现金流。
2.4 新上海人与学区需求者
核心纲领:将购房决策与人生规划深度绑定,实现落户、安居、子女教育的“一盘棋”规划。
政策衔接行动指南:
* 落户与购房联动:了解最新人才引进、居转户政策。取得户口后,不仅购房资格放宽,贷款条件也更优。可规划先在外环外置业“上车”,落户后再行置换。
* 学区房“防坑”全攻略:
* 核实“五年一户”:这是上海公办小学普遍执行的政策,购房前必须赴对口学校或教育局查询该房址5年内是否已有适龄儿童入学。
* 确认入户年限:热门学校学位紧张,需满足一定的户口迁入年限。务必提前数年规划,并向学校、街道、已入学家长等多方核实。
* 关注“学区化集团化”趋势:随着教育均衡化推进,单一“学区房”概念在弱化,可关注教育集团内性价比更高的成员校对口房源。
第三部分:2026年购房全流程关键节点提醒
1. 资格预审:利用“随申办”APP中的“购房资格查询”服务,在签约前确认自身具备购房资格,避免合同纠纷。
2. 资金方案:最大化利用公积金新政,组合使用商业贷款。比较不同银行贷款利率和放款速度。
3. 税费精算:在签约前,与中介或专业人士详细计算契税、增值税、个人所得税等全部费用,确保预算充足。
4. 产权调查:通过不动产登记中心,彻底查清房屋的产权人、抵押、查封状态,确保交易安全。
结语
在上海买房,本质上是在为家庭的未来购买一个确定性的锚点。2026年的市场,机会与风险并存。对于刚需,它是通往城市生活的门票;对于改善者,它是提升生活品质的阶梯;对于投资者,它是需要精挑细选的防御性资产;对于新上海人,它是完成融入的最后一步。
最终决策,务必回归家庭的核心需求与长期财务健康,利用好政策窗口,在正确的区域,选择那个能伴随家庭共同成长的“家”。在这个分化的时代,买对,远比买早或买晚更重要。
官方售楼处热线400-9692-958【预约看房电话】官方售楼中心电话400-9692-958【开发商售楼处中心电话|地址|详情】售楼处专属咨询热线400-9692-958【欢迎来电】
官方售楼处唯一咨询电话:400-9692-958(官方认证)
声明:本文由入驻焦点开放平台的作者撰写,除焦点官方账号外,观点仅代表作者本人,不代表焦点立场。


