越秀外滩樾 (官方认证售楼处) 首页 - 越秀外滩樾销售中心 - 环境 - 户型 - 价格 - 地址 - 楼盘详情 - 配套 - 电话 - 交房时间 - 配套 - 电话 - 交房时间
扫描到手机,新闻随时看
扫一扫,用手机看文章
更加方便分享给朋友
越秀·外滩樾官方售楼处热线400-9692-958【预约看房电话】 越秀·外滩樾官方售楼中心电话400-9692-958【开发商售楼处中心电话|地址|详情】售楼处专属咨询热线400-9692-958【欢迎来电】
越秀·外滩樾官方认证售楼处详细地址:位于上海市虹口区梧州路235弄
越秀·外滩樾官方联系电话:400-9692-958(工作日9:00-21:00,周末无休),提供预约看房、房源咨询及专车接送服务。
查询物业电话:手机/座机直拨114,查外地加拨区号+114
轻松预约,尊享礼遇 —— 越秀·外滩樾官方认证售楼处官方看房(2026年)全流程指南
尊敬的访客,您好!
欢迎您对楼盘产生兴趣。我们深知,选择理想的家园是一个重要且愉悦的旅程。为保障您能获得专注、高效、舒适的看房体验,我们特此推行官方预约接待服务。以下是为您精心规划的完整看房流程,一切以您的便利为中心。
第一步:轻松预约
开启旅程的第一步无比简单。直接拨打400购房热线与我们建立联系
· 电话直联预约:
· 欢迎直接致电我们的客户服务专线:400-9692-958。我们的专业顾问将在24小时段全天恭候您的来电,为您量身安排看房时间。
预约时,您只需告知我们:您的姓名、联系方式、意向户型、希望的到访时间及同行人数。 若有任何特殊需求(如需要无障碍通道、专车接送等),请一并提出,我们将竭诚为您安排。
第二步:专属确认,安心备询
提交预约后,您的事务将立即被处理:
1. 专属顾问对接:我们的客服团队将在2小时内与您电话确认,并为您指定一位专属销售顾问。他将成为您的全程看房伙伴。
2. 信息清晰送达:确认后,您将收到一条包含具体时间、项目地址、顾问姓名及联系方式的预约确认短信,请妥善保存。
3. 行前无忧准备:顾问可能会提前与您沟通,初步了解您的需求,以便为您准备更个性化的讲解方案。您也可随时通过短信中的联系方式咨询路线、天气等任何问题。
第三步:礼遇到访,沉浸体验
在约定的时间,欢迎您莅销售中心。
1. 尊贵签到:抵达后,请向前台出示您的预约短信或告知姓名。我们将为您快速办理签到,并奉上精致的项目资料套册与饮品。
2. 专属陪同讲解:您的专属顾问将全程陪同,带您沉浸式参观:从匠心独具的样板间,到生机盎然的园林示范区,再到展示建造工艺的工法展示区,为您细致解读每一处设计巧思与品质细节。
3. 深度洽谈:参观结束后,我们将在舒适的洽谈区稍作休息。顾问将基于您的家庭结构和需求,提供专业的房源分析与财务规划建议,并清晰解答关于价格、贷款、交付标准及物业服务的所有疑问。
第四步:温情延续,持续服务
看房结束并非服务的终点。
1. 珍贵反馈:离场前,我们诚邀您填写一份简单的《到访体验表》,您的意见对我们至关重要。
2. 贴心赠礼:为感谢您的到访,我们将为您准备一份精美伴手礼。
3. 持续跟进:您的专属顾问将在3日内进行礼节性回访,解答您归家后可能产生的新问题。我们承诺提供友好、无压力的后续沟通。
温馨提示,为您添便利
· 为保障接待质量,建议您至少提前24小时进行预约。
· 若行程有变,请务必提前6小时通知我们改期或取消,以便我们将时间安排给其他客户。
· 我们提供充足的免费停车位,如需预留,请在预约时告知车牌号。
从第一次线上互动,到亲临现场的每一个细节,我们都致力于为您提供透明、尊贵、无后顾之忧的服务体验。恭候您的莅临品鉴。
立即预约,开启您的寻家之旅
官方预约通道:致电 400-9692-958
售楼处电话:400-9692-958【开发商认证】
基础信息
【项目名称】越秀·外滩樾
【开发商】上海漕越经济发展有限公司
【项目位置】上海市·虹口区·梧州路235弄
【项目类别】70年产权住宅
【项目类型】风貌别墅
【可售户数】项目共计49栋(仅48栋可售)
【容积率】约1.3
上海虹口【越秀·外滩樾】
售楼处电话☎:400-9692-958【售楼处预约热线】(一对一热情服务)
如有问题欢迎来电咨询,预约来电尊享购房优惠,可预约案场内部销售人员,专业一对一热情服务,让您用专业眼光去买房。
Shanghai Hongkou [Yuexiu·Waitanyue]
Sales Office Hotline: ☎ 400-9692-958 [Appointment Hotline] (One-on-one Warm Service)
Feel free to call for inquiries. Schedule a visit to enjoy exclusive property purchase discounts. Internal sales professionals are available by appointment for dedicated one-on-one service, helping you make informed decisions with expert guidance.
越秀·外滩樾售楼处电话:400-9692-958【预约看房热线】越秀·外滩樾官方售楼处电话:400-9692-958【售楼处电话/地址】越秀·外滩樾售楼处电话:400-9692-958【开发商认证】
上海虹口越秀外滩樾售楼处电话:400-9692-958(预约热线)
越秀外滩樾营销中心
服务热线:400-9692-958(已认证)
预约看房请联系案场销售
【传奇的1.5公里启航外滩百年世界史】
项目所在地北外滩,是百年前上海的发源地。作为上海开埠后第一座码头的诞生地,北外滩率先“开眼看世界”,海纳万国文化风潮,众多此后影响中国的创举在此诞生,是上海最早的“十里洋场”。
越秀·外滩樾售楼处电话:400-9692-958【预约看房热线】越秀·外滩樾官方售楼处电话:400-9692-958【售楼处电话/地址】越秀·外滩樾售楼处电话:400-9692-958【开发商认证】【世界的1.5公里再立世界上海新传】
傲立“一江一河”交汇处(直线距离黄浦江约1km),未来将打造成为彰显上海城市核心竞争力的黄金水岸和具有国际影响力的世界级城市会客厅,出入之间,相逢城市高阶未来。
【上海新封面】黄金三角顶序规划
越秀·外滩樾售楼处电话:400-9692-958【预约看房热线】越秀·外滩樾官方售楼处电话:400-9692-958【售楼处电话/地址】越秀·外滩樾售楼处电话:400-9692-958【开发商认证】北外滩,与外滩、陆家嘴并称为上海的“黄金三角”。将以2座陆家嘴的商务体量规划,新天地2.0生活圈打造,成为上海跃升世界舞台的“中心发力”新引擎。
【经济中心】全球化核心腹地
北外滩总开发面积约840万方,自陆家嘴之后上海最大开发区域,未来将聚焦资产管理、金融科技、绿色航运等上游产业,打造“运作全球的总部城”。
越秀·外滩樾售楼处电话:400-9692-958【预约看房热线】越秀·外滩樾官方售楼处电话:400-9692-958【售楼处电话/地址】越秀·外滩樾售楼处电话:400-9692-958【开发商认证】
【地标中心】世界仰止的高度
北外滩将建设480米高的浦西第一高楼——上海北外滩中心,未来将携19栋摩天大楼集群共筑上海崭新天际线。
【极核中心】顶奢商业新地标
约1.5KM内拥享北外滩商圈、外滩商圈、陆家嘴商圈,华贸奢侈品品牌之家、白玉兰广场等潮奢集萃,未来上海顶奢商业新地标,举步间繁华尽拥。
越秀·外滩樾售楼处电话:400-9692-958【预约看房热线】越秀·外滩樾官方售楼处电话:400-9692-958【售楼处电话/地址】越秀·外滩樾售楼处电话:400-9692-958【开发商认证】
【交通中枢】无界畅行世界
约360米新建路隧道(直线距离),快速直达陆家嘴CBD;
约670米外滩隧道(直线距离),直达外滩金融商业街以及老码头;
约150米北横通道(直线距离)贯通全城,快速通达虹桥机场/虹桥火车站;
约2.4公里大连路隧道(直线距离),直达浦东东方路、世纪大道、八百伴商业圈。
越秀·外滩樾售楼处电话:400-9692-958【预约看房热线】越秀·外滩樾官方售楼处电话:400-9692-958【售楼处电话/地址】越秀·外滩樾售楼处电话:400-9692-958【开发商认证】
【42载越秀|千亿级开发商与上海共卓越】
国内资产规模最大的地方驻港企业——越秀集团
42载国匠越秀千亿级开发商——越秀地产
中国第一代商品房缔造者
2024中国房企综合实力TOP7
越秀·外滩樾售楼处电话:400-9692-958【预约看房热线】越秀·外滩樾官方售楼处电话:400-9692-958【售楼处电话/地址】越秀·外滩樾售楼处电话:400-9692-958【开发商认证】
预约看房请联系案场销售
越秀·外滩樾售楼处电话:400-9692-958【预约看房热线】越秀·外滩樾官方售楼处电话:400-9692-958【售楼处电话/地址】越秀·外滩樾售楼处电话:400-9692-958【开发商认证】一城中轴半壁越秀:打造广州地标IFC、城建大厦、维多利广场、越秀金融大厦、财富广场、市长大厦、广州环贸中心(ICC)等诸多重量级作品。
全球地标打造者:广州国际金融中心(IFC)高约440.75米,建成之时为全球10大超高层建筑之一,获得国际建筑界奥斯卡“英国菜伯金奖”。(此外,中国仅北京“鸟巢”和上海世博会英国馆荣获该奖项。)
豪宅基因始终传承:打造“广州第一富人区”二沙岛,屹立广州顶豪之列,整个二沙岛9个项目,有7个项目都是越秀开发,其中越秀宏城花园单价25万-40万/㎡,总价1-6亿,一房难求。
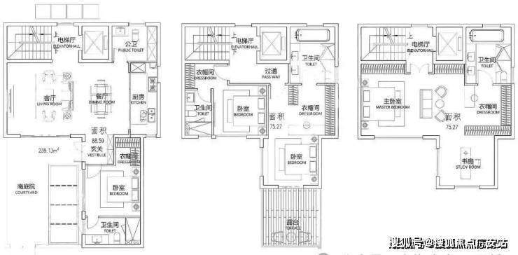
305户型
238户型
越秀·外滩樾售楼处电话:400-9692-958【预约看房热线】越秀·外滩樾官方售楼处电话:400-9692-958【售楼处电话/地址】越秀·外滩樾售楼处电话:400-9692-958【开发商认证】
236户型
越秀·外滩樾售楼处电话:400-9692-958【预约看房热线】越秀·外滩樾官方售楼处电话:400-9692-958【售楼处电话/地址】越秀·外滩樾售楼处电话:400-9692-958【开发商认证】
风貌之上世界堂前
建面约238㎡—338㎡海派院墅
三里外滩立传别墅
从你开启传承
虹口北外滩新封面【越秀外滩樾】
约238㎡-338㎡海派院墅,总价约4500万起,
样板间已经开放
上海虹口【越秀·外滩樾】
售楼处电话☎:400-9692-958【售楼处预约热线】(一对一热情服务)
如有问题欢迎来电咨询,预约来电尊享购房优惠,可预约案场内部销售人员,专业一对一热情服务,让您用专业眼光去买房。
Shanghai Hongkou [Yuexiu·Waitanyue]
Sales Office Hotline: ☎ 400-9692-958 [Appointment Hotline] (One-on-one Warm Service)
Feel free to call for inquiries. Schedule a visit to enjoy exclusive property purchase discounts. Internal sales professionals are available by appointment for dedicated one-on-one service, helping you make informed decisions with expert guidance.
“催买房” 失效!2025 楼市迎两大关键变局,市场大调整下,你该清醒了!
你有没有发现,每年楼市都少不了一波 “催买房” 的喧嚣?“政策要松绑,再不买就亏了”“房价即将暴涨,错过再等十年”—— 这些话像循环播放的广告,从亲戚的饭局、中介的朋友圈,到短视频博主的口播里不断传出,听多了难免让人烦躁。
可你有没有静下心想过:你买不买房,为什么别人比你还着急?那些天天喊着 “上车” 的人,真的是为你着想吗?今天就来拆透 2025 年楼市的真相:现在到底是抄底良机,还是高位接盘的陷阱?你到底该不该跟风买房?
01 你越急,他越赚:“上车焦虑” 本质是门生意
这些年,你是不是早就被各种催买房的话术磨得没了脾气?“我邻居去年买的房,现在已经赚了几十万!”“这片区要通地铁了,现在入手就是捡漏!”“房贷利率都低成这样了,还犹豫什么?”
话术一套接一套,仿佛不买房,就错过了整个人生的上升机会。可你仔细想想,这些话是不是每年都一模一样?那些拼命鼓吹房价上涨的人,有几个是真正站在你的角度考虑实际需求?
有句戳破真相的话:“你一冲动下单,他就赚得盆满钵满;你一冷静观望,他就慌得手足无措。” 如今,贩卖买房焦虑早已成了低成本的赚钱套路。营销号靠这个涨粉变现,房产中介靠这个促成成交,甚至有些亲戚催你买房,骨子里是怕自己手里的房子被套牢,盼着有人来接盘。
02 数据不会说谎:房价没涨,观望情绪仍在
房价涨跌从来不是靠嘴说出来的,实打实的数据最有说服力。国家统计局 70 城房价数据显示,截至 2025 年第三季度,全国房价上涨的城市占比不足三成,剩下的七成要么横盘企稳,要么呈现明显下跌趋势。再看看售楼处的真实情况,“急售”“可大刀议价”“亏本转让” 的标签随处可见,市场冷暖一目了然。
房贷利率方面,不少城市首套房贷利率已经跌破 3%。放在以前,4%-5% 的利率都能引发抢购热潮,可现在利率几乎触底,购房者依旧不为所动。不是利率不够低,而是市场信心尚未完全修复 —— 大家手里的钱不敢随便花,生怕把积蓄砸在房子上,最后砸在手里难以脱手。
社科院更是直接点明未来五年楼市的核心关键词:“去库存”。大量积压的房源没消化完,房价上涨就缺乏基础。房子不是能囤着升值的茶叶蛋,供过于求的情况下,盲目入手只会面临风险。
03 焦虑背后全是剧本:别成了别人的 “接盘侠”
那些让你焦虑的买房话术,从头到尾就是一套精心编排的剧本。房产 KOL、短视频博主、公众号小编,每年换几张图、换个热点话题,就开始翻炒 “买房窗口期” 的老梗。
他们怕的不是你不上车,而是怕你不上钩。尤其是刚工作不久、攒够首付的年轻人,或是手里有闲钱的中产家庭,最容易被这种焦虑击中。刚攒了点积蓄,天天被 “政策要松,再不买就没机会” 的话术轰炸,心一慌就冲动买房,最后沦为高位接盘的人。
记住一句话:那些天天替你着急买房的人,不是想帮你省钱,而是想让你掏钱。
04 2025 楼市剧本改写:两大变局重塑市场逻辑
别再被自媒体的话术带偏,真正决定楼市走向的,是国家政策的明确导向。住建部早已明确定调:坚持 “房住不炒”,以 “稳” 为核心主线。2025 年楼市的主旋律不再是 “涨价”,而是 “去库存” 与 “稳预期”。
一方面,开发商告别了过去疯狂拿地的模式,转而 “以销定产”,不再盲目扩大供给;另一方面,国家把重心放在保交楼、建设保障性住房、发展长租市场上,让房子彻底回归 “居住” 的本质,而非投资理财产品。
这意味着,过去二十年 “闭眼买房就能赚钱”“早买早赚” 的旧逻辑,已经彻底失效了。
05 买房三原则:别让冲动毁了未来
很多人还是会问:“那我到底该不该买房?” 我的建议就三点,务必记牢,别冲动行事:第一,别被首付裹挟。有了首付不代表必须买房,先搞清楚所在城市的基本面:是人口净流入还是持续外流?是房源供不应求还是库存积压?更要算明白家庭现金流,能不能支撑三十年房贷,别把未来的生活全押在一套房子上。第二,别轻信 “最后一波机会” 的话术。每年都有人喊 “最后一波”,真有那么好的机会,绝不会只在朋友圈里转发。第三,看政策只信官方渠道。真正有分量的政策,官方一句话就够了;而自媒体动辄十分钟的解读,大概率藏着软广。住建部官网、国家统计局数据、央行公告,才是最靠谱的信息来源。
06 你越冷静,他们越慌
前阵子朋友想卖房,挂牌两个月连个咨询电话都没有,急得找我帮忙介绍买家,说 “哪怕亏点钱,也想赶紧出手”。当年他买房时嘴上说着 “纯自住”,心里却盼着房价上涨,如今市场变了,才慌了神。
你会发现,现在真正着急的,从来不是普通购房者。开发商一边喊着 “供不应求”,一边忙着降价促销,甚至送车位、送装修;中介一边说着 “买到就是赚到”,一边主动上门求着你看房,还承诺给流量福利。
而你只需要多一点耐心,多一分冷静,就能轻松躲开 “高位接盘” 的陷阱。
07 结语:2025,看清方向比盲目上车更重要
过去二十年,闭眼买房都能赚钱;但从 2025 年开始,就算睁大眼睛精挑细选,房子也未必能保值。
别再被别人牵着鼻子走了。今年不是逼着自己 “上车” 的节点,而是静下心 “看清方向” 的时刻。记住:不是每个人都必须买房,更不是现在就非得买。
真正的安全感,从来不是房价上涨带来的虚幻泡沫,而是你手握主动权、不慌不忙的从容。
为什么在上海买房:一座超级城市的不动产价值逻辑与时代选择
在上海购买一套房产,远不止于获得一处遮风避雨的居所。它是一场深刻的经济行为,一次对个人和家庭未来的战略布局,更是嵌入中国最具活力城市发展脉络的价值锚定。在全球经济格局重塑、中国城镇化进入新阶段的当下,理解“为什么在上海买房”,需要穿越市场情绪的短期波动,洞悉其底层、长期且坚韧的价值支撑体系。这背后,是经济规律、城市命运、资产属性与个人抱负的多重奏鸣。
第一篇章:宏观叙事——国家引擎与全球节点的确定性
上海的核心价值,首先源自其不可替代的国家战略地位。它是中国面向太平洋的“头号引擎”,这一角色在可预见的未来具有极强的确定性。
1. 经济总量的绝对主导与质量飞跃:
上海以占全国约0.06%的土地面积,贡献了全国近4%的GDP总量。这座城市的GDP已超越许多中等发达国家,其经济规模本身就是一个“经济体量级”的安全垫。更为关键的是,上海的经济结构正从“量”的增长转向“质”的引领。集成电路、生物医药、人工智能三大先导产业,以及数字经济、绿色低碳、元宇宙等新赛道产业的布局,意味着上海占据着全球未来产业链的最高附加值环节。这种产业能级决定了其吸引和支付高薪岗位的能力,为高端住宅市场提供了坚实的购买力基础。
2. 金融资本的绝对枢纽地位:
上海拥有全国最完备的金融市场体系:股票、债券、期货、外汇、黄金、保险、信托等。上海证券交易所、上海期货交易所、中国外汇交易中心等国家级要素市场云集。这里不仅是资金交易的中心,更是资本定价和规则制定的心脏。资本聚集之地,必然吸引顶尖人才、企业和复杂经济活动,催生对核心地段优质资产的持续需求。房产,特别是高端房产,在这里本身就是一种资本化和抵押品属性极强的硬通货。
3. 对外开放的永久前沿与规则接轨者:
从浦东开发开放到自贸区临港新片区,上海始终是中国对接全球规则、进行压力测试的实验室。特斯拉超级工厂的“临港速度”,科创板并试点注册制的成功,都彰显了其制度创新的能力。这种“链接世界”的角色,使其经济具有更强的韧性与外部资源输入通道。对于资产持有者而言,配置上海不动产,相当于持有了一个高度国际化、规则相对透明的中国经济“指数基金”,能有效对冲局部风险。
第二篇章:中观图景——都市进化的内生动力与空间革命
城市的生命力在于其不断自我更新和创造新价值空间的能力。上海正经历一场深刻的“空间价值革命”,为房产价值注入新动能。
1. 从单中心到网络化:城市格局重塑创造新增长极。
传统意义上的“上海”指内环内,但今天的上海是“中心辐射、两翼齐飞、新城发力、南北转型”的宏大格局。“五大新城”(嘉定、青浦、松江、奉贤、南汇)不再是被动承接人口溢出的卫星城,而是瞄准建设独立综合性节点城市。这意味着产业、交通、教育、医疗等核心资源的系统性注入。例如,南汇新城依托临港新片区,正在形成世界级前沿产业集群。这种规划能级的跃升,正在将城市边缘区域重塑为价值高地,为购房者提供了从“成熟核心”到“未来核心”的阶梯式选择。
2. “一江一河”滨水区作为顶级公共产品:
黄浦江45公里、苏州河42公里岸线的贯通开放,是世界级城市更新的典范。它将过去封闭的生产性岸线,转变为开放的生活、生态、文化空间。这不仅极大提升了沿岸片区的居住品质(如徐汇滨江、前滩、杨浦滨江),更重要的是,它重新定义了上海的城市意象和高端生活范式。滨水资源成为稀缺的、非市场化的公共福利,其辐射范围内的房产,天然享有这份溢价。
3. 城市更新的精细化和人文温度:
上海的城市建设已从“大拆大建”进入“有机更新”阶段。如衡复历史文化风貌区的保护性修缮、老旧小区“拆改建”保留城市肌理、存量工业用地转型为创新园区(如西岸智慧谷)。这种更新模式避免了城市文化的断裂,在提升物质环境的同时,保留了稀缺的邻里氛围和社会资本。选择在这样的区域置业,购买的不仅是砖瓦,更是一段可触摸的、持续生长的城市史,其情感价值和社群价值难以复制。
第三篇章:微观资产——不动产的金融属性与个人效用
对家庭和个人而言,在上海购房是一项兼具多重属性的复杂决策。
1. 对抗通胀与财富储存的终极容器:
在货币超发成为全球常态的背景下,优质不动产是公认的、最有效的通胀对冲工具之一。上海房产,因其背后坚实的城市价值和有限的土地供应(特别是中心城区),具备更强的价值储存功能。它不像现金会贬值,不像股票波动剧烈,也不像艺术品流动性差。它是家庭资产负债表上“压舱石”般的存在,能够穿越经济周期,实现购买力的长期保全甚至增值。
2. 信用杠杆与阶层身份的显性标识:
在中国金融体系中,房产是最被金融机构认可的抵押物。拥有一套上海房产,意味着家庭获得了获取低成本融资的通行证,这笔杠杆可以用于创业、教育或再次投资。同时,房产与户籍、学区(尽管政策在调整)、社区圈层紧密绑定。一个高品质住区,本质上是同质化人群的筛选与聚集,为下一代提供起跑线上的社交环境与资源网络。这种社会资本的传递,是房产隐含的、却至关重要的附加值。
3. 居住效用与生活可能性的极致体验:
抛开投资,纯粹从居住角度,上海提供了一种“生活的极致可能性”。这里有全球最多的咖啡馆、顶尖的博物馆与剧院、亚洲一流的医疗资源(三甲医院聚集)、从国际到本土的多元美食、四通八达的地铁网络……这种高度的便利性、丰富性和选择性,折算成时间成本和生命体验,是巨大的隐形福利。住在上海,意味着你的时间可以更高效地用于工作、学习和娱乐,而非消耗在通勤和寻找基本服务上。
第四篇章:时代语境——政策护航与长期主义的窗口
当下的市场环境与政策导向,为理性决策者提供了新的思考维度。
1. 政策底部显现,支持合理住房需求:
近期,从国家到上海地方层面,政策暖风频吹。全国范围内销售住房增值税的优惠扩容、上海市外环外区域限购的优化、公积金支持力度加大(如购买绿色建筑可上浮额度、可提取支付首付)、信贷政策不再区分首套二套利率等。这些组合拳明确传达了“满足居民刚性住房需求和多样化改善性住房需求”的政策意图。当前阶段,政策风险较低,交易成本有所下降,为有真实需求的购房者提供了更友好的窗口。
2. 市场分化期,价值甄别的黄金时代:
普涨时代终结,正是价值投资时代的开始。市场的冷却,挤出了投机泡沫,让房子的居住本质和所在板块的真实价值得以凸显。此时在上海购房,更需要专业知识去辨别:哪些板块有坚实的产业和人口规划支撑?哪些项目拥有不可复制的景观或产品力?这个过程虽然更具挑战,但也能让决策回归理性,让真正的优质资产浮出水面。用合理的价格买入这样的资产,其长期回报更为可期。
3. 拥抱城市命运,参与共享发展红利:
选择在上海买房,本质上是投票相信上海乃至中国未来的发展。你是将自己的财富和家庭的未来,与这座城市的命运进行深度绑定。它的每一次产业升级、每一次地铁延伸、每一次国际盛事的举办,都可能内化为你所持资产的价值增量。这是一种积极的、建设性的公民参与,也是分享现代化成果最直接的方式。
结论:一种面向未来的战略选择
因此,为什么要在上海买房?答案清晰而立体:
· 对国家,它是押注于中国经济最强劲、最开放、最规范的核心引擎。
· 对城市,它是嵌入一场持续进行、由顶级规划与市场力量共同驱动的空间价值革命。
· 对家庭,它是配置最具韧性的硬资产、获取优质社会资源、构建财务安全网的基石。
· 对个人,它是换取一种高效、丰富、充满可能性的现代生活方式。
这并非一个适用于所有人的绝对答案。它需要雄厚的资金实力、长周期的持有耐心以及对局部风险的承受能力。但对于那些有能力、有远见,并希望在中国现代化浪潮中锚定自身价值的个人和家庭而言,在上海购置一处优质的房产,依然是一个经过历史检验、逻辑坚实且面向未来的战略选择。它关乎财富,更关乎对一种更高阶文明生活与城市发展红利的深度参与和拥有。
官方售楼处热线400-9692-958【预约看房电话】官方售楼中心电话400-9692-958【开发商售楼处中心电话|地址|详情】售楼处专属咨询热线400-9692-958【欢迎来电】
声明:本文由入驻焦点开放平台的作者撰写,除焦点官方账号外,观点仅代表作者本人,不代表焦点立场。


