前滩滨江道(营销中心)首页网站-前滩滨江道销售中心(售楼处)-前滩滨江道售楼处电话-电话地址-价格-户型-小区环境-楼盘详情-交房时间-周边配套

搜狐焦点广安站 2025-10-14 11:32:56
用手机看
扫描到手机,新闻随时看

扫一扫,用手机看文章
更加方便分享给朋友

前滩滨江道售楼处电话:400-8657-114,提供预约看房,推售86-249㎡房源,主打海派风格与生态宜居。

前滩滨江道售楼处电话☎:400-865-7114(预约看房热线√√)

前滩滨江道售楼处电话/地址☎:4008657114【售楼中心已认证√√】

售楼处电话☎:400-8657-114【售楼处预约热线】(一对一热情服务)

看房请务必提前致电销售确认时间,只有预约客户才能享受开发商提供的内部优惠以及专属的老客户推荐奖励!我们提供专业的一对一热情服务,助您以专业视角挑选理想的房产。

浦东三林滨江板块12单元案名正式公布户型曝光!浦东三林滨江【前滩滨江道】将推86-249㎡房源!

前滩滨江道

将推86-249㎡房源

目前销售已到岗

首批房源有望年内入市

上海浦东【前滩滨江道】

售楼处电话☎:400-8657-114【售楼处预约热线】(一对一热情服务)

如有问题欢迎来电咨询,预约来电尊享购房优惠,可预约案场内部销售人员,专业一对一热情服务,让您用专业眼光去买房。

前滩滨江道售楼处电话:400-8657-114【预约看房热线】前滩滨江道售楼处电话:4008657114【售楼处电话/地址】前滩滨江道售楼处电话:400-865-7114【开发商认证】

海派腔调聆听东西文化的交响

前滩滨江国际住区致力于打造最生态、最海派、最未来的"21世纪海派生活实践区"。

从经典海派、摩登海派再到现代海派,不同时期的建筑语言均在这里得以延续和演绎,置身其中,仿佛一部全景的海派建筑史在眼前徐徐

与此同时,这里还延续了上海梧桐区经典的"小街区、密路网"规划理念,将边界融合,将城市的烟火气引入每一个角落。

当你流连于充满国际化与新潮味的前滩滨江时,亦品味着扑面而来的海派从容城市态度。

前滩滨江道售楼处电话:400-8657-114【预约看房热线】前滩滨江道售楼处电话:4008657114【售楼处电话/地址】前滩滨江道售楼处电话:400-865-7114【开发商认证】

预计推售建面约86-249m²3-4房

展厅持续开放中!

江风为宴,邀世界入座水岸。【前滩滨江道】城市展厅开放,亦是一场全球卓越滨水生活的首映式。世界公民、层峰精英相会于此,共鉴前滩滨江生活。

前滩滨江道售楼处电话:400-8657-114【预约看房热线】前滩滨江道售楼处电话:4008657114【售楼处电话/地址】前滩滨江道售楼处电话:400-865-7114【开发商认证】

感兴趣的朋友赶紧来看

避免大客流影响服务质量、影响到您的参观体验

仅接受预约参观,感谢您的理解与支持!

✅前滩滨江道售楼处电话:400-8657-114

✅前滩滨江道营销中心热线400-8657-114(预约看房热线)

目前仅接待预约客

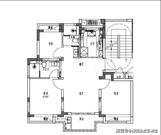
户型图赏鉴

建面约86m²3房2厅2卫:

一梯两户,层高3.05米,相当于99竖厅户型的缩小版。南北直通,全卧飘窗,南白整体面宽约9.75米,其中客厅面宽约3.55米,主卧面宽约3.2米

前滩滨江道售楼处电话:400-8657-114【预约看房热线】前滩滨江道售楼处电话:4008657114【售楼处电话/地址】前滩滨江道售楼处电话:400-865-7114【开发商认证】

建面约99m²3房2厅2卫:

一梯两户,层高3.05米,经典飞机式户型;LDK一体化,南北直通,全卧飘窗,南向整体面宽约9.9米,其中客厅面宽约3.6米,主卧面宽约3.3米!

✅前滩滨江道售楼处电话:400-8657-114

✅前滩滨江道营销中心热线400-8657-114(预约看房热线)

建面约130m²4房2厅2卫

一梯两户,层高3.05米,三开间朝南,全卧飘窗,LDK一体化设计,南北直通,南向整体面宽约11.1米,其中客厅面宽约4.4米,主卧面宽约8.6米!

项目信息

项目位于浦东新区三林镇,东至皓川南路,南至浩昌路,西至皓明路,北至涓清路,紧临湾区水岸、轨交站点等标志性节点。规划总建筑面积15.5万平方米,建设周期3.5年。

✅前滩滨江道售楼处电话:400-8657-114

✅前滩滨江道营销中心热线400-8657-114(预约看房热线)

其中:

22-01地块占地面积1.1万平方米,总建筑面积5万平方米,包括4栋住宅楼、2栋商业。

22-03地块占地面积1.6万平方米,总建筑面积6.7万平方米,包括7栋住宅楼、2栋商业。

22-04地块占地面积0.9万平方米,总建筑面积3.8万平方米,包括3栋住宅楼、2栋商业。

前滩滨江道售楼处电话:400-8657-114【预约看房热线】前滩滨江道售楼处电话:4008657114【售楼处电话/地址】前滩滨江道售楼处电话:400-865-7114【开发商认证】2023年12月28日,项目正式开工。作为区域项目开发主体之一的陆家嘴集团在三林滨江南片地区的开发建设正如火如荼推进中,目前销售已到岗,首批房源年内入市!

✅前滩滨江道售楼处电话:400-8657-114

✅前滩滨江道营销中心热线400-8657-114(预约看房热线)

如今近两年过去了,项目已经有了全面的进展。8月27日,三林滨江南片区12单元项目7#住宅17框(屋面)混凝土顺利浇筑完成。

至此,项目01地块已全部完成结构封顶。04地块21#住宅结构已施工至20框,预计10月初结构封顶;03地块各单体一框结构已相继完成。01、04地块二结构已同步施工至11层。01地块幕墙及样板间精装预计9月底完成。

✅前滩滨江道售楼处电话:400-8657-114

✅前滩滨江道营销中心热线400-8657-114(预约看房热线)

9月17日施工现场实拍

项目整体定位为“高品质的海派风貌小镇”“滨江开放空间”和“居住社区”,具备功能复合、开放有趣、安宁宜人的特点。

✅前滩滨江道售楼处电话:400-8657-114

✅前滩滨江道营销中心热线400-8657-114(预约看房热线)

陆家嘴集团特邀国内外设计大师天团,共同打造涵盖亲水商业、水上运动、滨水商务海派社区等多元场景的城市滨水综合体。

有别于传统滨江住宅只能透过窗棂、阳台远眺水景,【前滩滨江道】——推门即水岸!将江水引入社区,形成上海滨江岸线上唯一的、全新的城市亲水空间,真正实现从“瞰江”到“住江”的国际领先生活方式。

在【前滩滨江道】,楼下的亲水平台是家庭聚会的天然客厅,滨江不再是“打卡点”,而是真实的生活切片。

顺着江岸漫步、观察江鸥的飞行轨迹、周末的家庭日、在皮筏艇上来一场水上亲子互动、不定期举行的滨江市集,即享全球潮流生活。

【前滩滨江道】以全球资本坐标、生态繁华水岸、大师联袂美学、海派滨水生活,重新定义全球卓越滨水生活方式,启幕世界潮向的滨江封面住区。

✅前滩滨江道售楼处电话:400-8657-114

✅前滩滨江道营销中心热线400-8657-114(预约看房热线)

✅前滩滨江道售楼处电话:400-8657-114

✅前滩滨江道营销中心热线400-8657-114(预约看房热线)

生活配套

交通方面:三线换乘:轨交8号线(凌兆新村站),19号线和26号线规划中。

自驾上,可通过南北高架,两桥三隧(龙耀路隧道、上中路隧道、卢浦大桥)等交通要道快速通达全城。

✅前滩滨江道售楼处电话:400-8657-114

✅前滩滨江道营销中心热线400-8657-114(预约看房热线)

商业方面:3公里范围内,承接约350万宜业前滩配套、体育、休闲、商业繁华荟萃;太古里、晶耀前滩、太古汇(在建中),信德文化中心(在建中)香格里拉、四方城(在建中)莱佛士国际医院,高浓度生活圈。

✅前滩滨江道售楼处电话:400-8657-114

✅前滩滨江道营销中心热线400-8657-114(预约看房热线)

医疗方面:项目周边有莱佛士医院、上海徐浦中医医院、同济大学附属东方医院(南院)、上海市第八人民医院、上海中医药大学附属龙华医院(上南院区)等一众医疗机构,为您及家人的健康保驾护航。

生态休闲:东方体育中心、西岸艺术中心等便捷可达,人文艺术,体育休闲兼具;三林滨江规划环慢行步道,地下环路穿越森林,社区绿地与森林之间的森林道。

前滩滨江道售楼处电话:400-8657-114【售楼中心】

咨询高峰期请耐心等待,预约来电尊享内部优惠,专业一对一热情服务,让您用专业眼光去买房。

前滩滨江道售楼处电话☎:4008657114【售楼热线】✔✔✔前滩滨江道营销中心热线☎4008657114前滩滨江道售楼处地址☎400--8657--114本电话为开发商提供线上售楼电话,楼盘项目全面介绍(包含楼盘详情,最新房价,户型图,容积率,小区配套环境,楼盘简介,售楼处位置,户型图,交通规划,备案价,项目配套,楼盘详情,售楼处电话,最新消息,最新详情,最新进展等详情咨询

免责声明:将文章内容综合来源于网络、只作分享,版权归原作者所有!!如有侵权,请联系我们,我们第一时间处理如有问题欢迎来电咨询,专业一对一热情服务,让您用专业眼光去买房。如果您想了解更多楼盘详情,欢迎提前预约拨打

买房是大多数人一生中最重要的消费决策之一,涉及金额大、流程复杂,且关联政策、法律、市场等多方面因素。不少人因缺乏专业知识,在购房过程中踩坑,轻则多花冤枉钱,重则面临产权纠纷、房屋质量问题等风险。本文将从购房全流程出发,梳理关键知识要点,帮助大家理性买房、避开陷阱。

一、买房前:明确需求与做好预算,避免盲目跟风

1.精准定位购房需求:自住与投资差异显著

买房前首先要明确核心需求——是自住还是投资,二者的选择逻辑截然不同。

自住需求:以“适配生活”为核心

需结合家庭结构、通勤半径、生活配套等实际需求决策。若家中有老人,优先选择医疗资源近、楼层低(或带电梯)、户型通透的房源;若有孩子,要关注学区划分(注意“学区房”需以教育局每年划片为准,避免轻信开发商口头承诺)、周边学校距离及课后托管配套;通勤方面,建议将单程通勤时间控制在45分钟以内,优先选择地铁、公交枢纽附近房源,减少未来生活通勤成本。

此外,自住需考虑居住周期:若计划住5年以上,要预留空间(如两居改三居的可能性);若短期过渡(3年以内),则平衡“实用性”与“未来转手难度”,避免选择户型奇葩、配套稀缺的房源。

投资需求:以“资产保值增值”为核心

重点关注区域发展潜力、租金回报率、流通性三大指标。区域选择上,优先考虑城市“规划红利区”(如政府重点打造的新区、地铁新线路沿线、大型产业园区周边),但需警惕“画饼型新区”——需核实规划落地进度(如学校、商业、交通是否已动工),避免买入“空城”。

租金回报率可通过“月租金×12÷总房款”计算,一线城市优质房源回报率通常在1.5%-2.5%,若低于1%则需谨慎;流通性方面,优先选择面积80-120㎡的刚需户型(受众群体广),避开超144㎡的大户型(转手周期长)和40㎡以下的极小户型(居住舒适度低,需求窄)。

2.科学规划预算:不止首付,还要算清“隐性成本”

很多人误以为“凑够首付就能买房”,实则购房需承担多笔费用,预算规划需覆盖“全周期成本”:

核心成本:首付与月供

首付比例需结合当地政策:目前多数城市首套房首付比例为20%-30%,二套房为30%-50%(具体以城市政策为准,如一线城市二套首付可能达60%)。需注意“首套房认定标准”——通常以“家庭为单位(夫妻+未成年子女)的无房无贷记录”为准,部分城市认房又认贷(有房贷记录即使无房也算二套)。

月供压力需合理控制:建议月供金额不超过家庭月收入的30%,最高不超过50%,避免因月供过高影响生活质量。例如,家庭月收入2万元,月供最好控制在6000元以内,若选择30年等额本息贷款,按当前LPR(贷款市场报价利率)4.2%计算,可承受的贷款额度约120万元。

隐性成本:税费、装修、物业等不可忽视

①税费:新房主要有契税(首套90㎡以下1%,90-144㎡1.5%,144㎡以上3%;二套普遍3%)、维修基金(约80-120元/㎡,用于房屋公共部位维修);二手房额外有个人所得税(满五唯一免征,不满五或非唯一按1%或差额20%缴纳)、增值税(满两年免征,不满两年按5.3%缴纳),且二手房税费常由买方承担,需提前与卖方协商明确。

②装修费:若买毛坯房,简装约800-1200元/㎡,精装约1500-2500元/㎡,100㎡房屋简装需8-12万元,需纳入预算。

③其他费用:物业费(每月2-5元/㎡)、取暖费(北方城市每年20-30元/㎡)、房产证办理费(约1000元)等,虽单月/单次金额不高,但长期需持续支出,需提前规划。

二、选房时:避开三大误区,聚焦核心价值

1.区域选择:不盲目追“热门”,优先“成熟+潜力”

很多人买房只看“热门板块”,却忽视区域的“真实适配性”。选择区域时,可从以下维度判断:

成熟区域:配套完善,风险低

成熟区域的优势是“即买即享”——商业(超市、商场)、教育(学校已开学)、医疗(医院运营中)、交通(公交线路密集、地铁已通车)配套齐全,居住便利性高,且房价相对稳定,适合自住需求。但缺点是房价较高,增值空间有限,需权衡“便利性”与“预算”。

潜力区域:规划落地是关键,避开“伪潜力”

潜力区域(如城市新区、近郊板块)房价较低,增值空间大,但风险也高。判断是否为“真潜力”,需核查三大指标:

①政府规划文件:查看城市总体规划(如“十四五”规划),确认该区域是否为政府重点发展方向(如“城市副中心”“产业园区”),避免轻信开发商宣传的“规划”。

②基建落地进度:交通(地铁、公路)、教育(学校建设进度)、商业(大型商超签约情况)等基建是否已动工,若仅停留在“规划图”阶段,需谨慎。例如,某新区宣传“地铁3年内通车”,但查询政府官网发现仅处于“规划公示”阶段,落地时间不确定,此类区域风险较高。

③人口导入能力:区域是否有产业支撑(如高新技术园区、企业总部),产业能吸引人口流入,而人口是房价的核心支撑。若某新区仅规划住宅,无产业导入,未来可能面临“空城”风险,房价难上涨。

2.户型选择:避开“奇葩户型”,聚焦“实用性”

户型直接影响居住舒适度,很多人被“赠送面积”“网红户型”吸引,却忽视户型的“实际使用价值”。选择户型时,需牢记以下原则:

核心指标:通透、动线合理、空间利用率高

①通透:优先选择“南北通透”户型(客厅、餐厅南北有窗,空气可对流),其次是“南向通透”(客厅、主卧朝南,有窗户),避免“纯北向”或“东西向”户型(采光差、夏季西晒严重)。

②动线合理:户型动线分为“居住动线”(卧室、卫生间)、“家务动线”(厨房、阳台)、“访客动线”(客厅、餐厅),三者需区分开,避免交叉。例如,厨房紧邻客厅,访客动线与家务动线交叉,会导致做饭时油烟扩散到客厅,影响居住体验;卧室紧邻入户门,访客动线穿过卧室,隐私性差。

③空间利用率:避免“异形户型”(如三角形、多边形房间),此类户型家具难摆放,空间浪费严重;优先选择“方正户型”(房间长宽比接近1:1.5,如卧室宽3.3米、长4.5米,方正且实用)。此外,注意“赠送面积”的实用性——如“赠送露台”若无法封闭,雨天易积水,实际使用价值低;“赠送飘窗”若高度超过0.45米,无法作为座椅或储物空间,仅为“装饰性”,需理性看待。

常见户型误区:这些户型尽量避开

①暗厨暗卫:厨房、卫生间无窗户,通风差,易滋生细菌、产生异味,长期居住影响健康。

②客厅开间过小:客厅开间(宽度)低于3.5米,摆放沙发、茶几、电视柜后,空间拥挤,舒适度低;100㎡左右户型,客厅开间建议在3.8-4.2米。

③卧室面积失衡:主卧过大(超过25㎡)、次卧过小(低于8㎡),会导致空间浪费。主卧建议15-20㎡(可放下床、衣柜、梳妆台),次卧建议10-12㎡(可作为儿童房或客房)。

3.房源类型:新房vs二手房,公寓vs住宅,差异大

不同房源类型的优缺点、适用人群差异显著,需根据需求选择:

新房:优势是“全新”,缺点是“风险高、配套差”

新房的优势是房屋全新、无历史居住痕迹,且开发商可能提供精装修(省去装修麻烦),部分新房有“期房价格优势”(期房比现房便宜5%-10%)。但缺点也明显:

①期房风险:若开发商资金链断裂,可能面临“烂尾”(房屋无法交付);部分开发商存在“货不对板”问题(实际交付户型、装修标准与宣传不符)。

②配套滞后:新房多位于新区,商业、教育、医疗配套需3-5年才能成熟,短期内居住便利性低。

购买新房时,需核查开发商“五证二书”(《国有土地使用证》《建设用地规划许可证》《建设工程规划许可证》《建筑工程施工许可证》《商品房预售许可证》,及《住宅质量保证书》《住宅使用说明书》),无《商品房预售许可证》的房源禁止销售,避免买入“无证房”。

二手房:优势是“配套成熟、风险低”,缺点是“房屋老化、流程复杂”

二手房的优势是“即买即住”,配套(学校、商业、交通)已成熟,且房屋质量、户型实际情况可现场查看,风险较低;此外,二手房可“议价”,若卖方急售,可能以低于市场价5%-10%成交。但缺点是:

①房屋老化:房龄超过10年的二手房,可能存在水管生锈、电路老化、墙体开裂等问题,需额外投入维修费用。

②流程复杂:二手房涉及卖方、买方、中介、银行、税务局等多方,需办理产权过户、贷款审批、税费缴纳等手续,周期较长(约2-3个月),且易出现“产权纠纷”(如房屋有抵押、查封,或卖方并非产权人)。

购买二手房时,需先到不动产登记中心查询“房屋产权信息”,确认房屋无抵押、无查封、产权人清晰;同时,实地查看房屋时,需检查墙面(有无空鼓、渗水痕迹)、水电(打开水龙头看水压,测试插座是否通电)、防水(卫生间、阳台地面是否有渗水,可询问邻居是否有漏水情况)。

公寓vs住宅:产权、费用差异大,谨慎选择公寓

很多人因公寓“价格低”入手,却忽视二者的核心差异:

①产权年限:住宅产权70年,公寓多为40年或50年(商业用地或工业用地),产权到期后,住宅可自动续期(需缴纳少量费用),公寓续期政策尚不明确。

②生活成本:公寓水电费按“商业标准”收取(水费约5元/吨,电费约1元/度),是住宅的1.5-2倍;多数公寓无天然气,需使用电磁炉做饭,长期成本高。

③流通性:公寓转让时,税费远高于住宅(增值税按差额5.3%、土地增值税按3%-6%、契税3%等),且首付比例高(多数城市公寓首付50%,贷款年限最长10年),导致流通性差,未来难转手。

因此,公寓仅适合“短期过渡”或“纯投资出租”(若租金回报率高),不建议自住或长期持有;自住优先选择70年产权住宅。

三、购房流程:避开合同陷阱,确保权益

1.签约环节:细看合同条款,避免“霸王条款”

购房合同是保障权益的核心文件,很多开发商或卖方会在合同中设置“霸王条款”,需重点关注以下内容:

新房合同:聚焦“交付标准、延期交房责任”

①交付标准:明确房屋装修标准(如墙面涂料品牌、地板材质、卫浴品牌)、配套设施(如电梯品牌、停车位数量),避免使用“同等档次品牌”“优质材料”等模糊表述,若与宣传不符,可依据合同维权。

②延期交房责任:约定延期交房的违约金(通常按日计算,如总房款的0.01%-0.05%/日),及延期超过一定时间(如90天)的处理方式(买方有权解除合同并要求赔偿),避免开发商“无限延期”却无责任。

③面积误差处理:约定房屋实测面积与合同面积的误差范围(通常±3%),误差在3%以内的,多退少补;误差超过3%的,买方有权解除合同或要求开发商赔偿。

二手房合同:明确“付款方式、过户时间、房屋瑕疵责任”

①付款方式:分阶段付款(如定金、首付、尾款),并约定每笔款项的支付时间及条件(如首付在过户前3天支付,尾款在交房后10天支付),避免“一次性付款后卖方不配合过户”。

②过户时间:明确过户的具体时间(如签约后30天内),及逾期过户的责任(如卖方逾期,需按日支付违约金,超过15天买方有权解除合同)。

③房屋瑕疵责任:若卖方隐瞒房屋瑕疵(如漏水、墙体开裂),需约定赔偿方式(如卖方承担维修费用,或减少房款);可在合同中加入“交房前由第三方验房,若发现瑕疵,卖方需整改后再交房”条款。

2.贷款环节:选择合适贷款方式,降低利息成本

购房贷款主要有“商业贷款”“公积金贷款”“组合贷款”(商业+公积金)三种,需根据自身情况选择:

公积金贷款:利率低,优先使用

公积金贷款年利率通常比商业贷款低1-2个百分点(如当前公积金贷款5年以上利率3.1%,商业贷款LPR4.2%),100万元贷款30年,公积金贷款比商业贷款少还约20万元利息。

但公积金贷款有额度限制(如个人最高贷50万元,家庭最高贷80万元,具体以城市为准),若贷款额度不足,可选择“组合贷款”(公积金贷满额度,剩余部分用商业贷款)。

注意:公积金贷款需连续缴纳6个月以上(部分城市12个月),且申请贷款时处于正常缴纳状态;若此前使用过公积金贷款,需结清后才能再次申请。

商业贷款:灵活度高,需关注利率与还款方式

商业贷款额度无上限(只要符合银行审批要求),但利率较高。选择商业贷款时,需注意:

①利率类型:分为“固定利率”和“浮动利率”。固定利率在贷款期限内不变,适合预期未来利率上涨的情况;浮动利率随LPR调整(每年调整一次),适合预期未来利率下降的情况,目前多数人选择浮动利率。

②还款方式:“等额本息”(每月还款额固定,前期还利息多、本金少)和“等额本金”(每月还款额递减,前期还款压力大,总利息少)。若收入稳定,优先选等额本息;若收入较高且未来收入可能减少(如临近退休),可选等额本金。

③提前还款:部分银行对提前还款收取违约金(如还款满1年免违约金,不满1年收1%违约金),需在贷款合同中明确,避免未来提前还款时多花费用。

四、验房与收房:细致核查,避免“收房即维权”

很多人认为“拿到钥匙就万事大吉”,实则收房时若不细致验房,可能面临“房屋质量问题”“配套缺失”等隐患,需做好以下工作:

1.验房重点:从“墙面地面”到“水电防水”,逐一核查

建议聘请专业验房师(费用约300-800元),或自行按以下步骤核查:

墙面与地面:检查空鼓、开裂、渗水

①空鼓:用小锤子轻敲墙面、地面,若声音清脆(“咚咚”声),则为空鼓,空鼓面积超过200cm²需开发商整改(空鼓易导致墙面脱落、地面开裂)。

②开裂:查看墙面、地面是否有裂缝,尤其是窗边、门边(易因沉降导致开裂),若裂缝宽度超过0.3mm,需开发商进行加固处理。

③渗水:查看天花板、墙面(尤其是卫生间、阳台上方)是否有渗水痕迹(如霉斑、水印),可要求开发商做“闭水试验”(卫生间地面放水,24小时后查看楼下是否漏水)。

水电与门窗:确保正常使用

①水电:打开所有水龙头,检查水压是否正常(水流均匀无断流);测试所有插座(用验电笔检测是否通电),查看配电箱是否有漏电保护器(按测试按钮,跳闸则正常);检查燃气管道是否有漏气(可闻气味,或用肥皂水涂抹管道接口,若冒泡则漏气)。

②门窗:开关门窗,检查是否顺畅(无卡顿、异响);关闭门窗后,查看密封是否良好(可在缝隙处塞纸条,拉动纸条若有阻力则密封好);检查玻璃是否有划痕、破损,五金件(如合页、把手)是否牢固。

2.收房必备:确认“三书一证一表”,避免“强制收房”

开发商交付房屋时,需提供“三书一证一表”——《住宅质量保证书》《住宅使用说明书》《建筑工程质量认定书》《房地产开发建设项目竣工综合验收合格证》《竣工验收备案表》,其中《竣工验收备案表》是核心,若开发商无法提供,说明房屋未通过政府验收,不符合交付条件,买方有权拒绝收房,且不算违约。

部分开发商会以“先签字收房,再验房”为由强制收房,此时需明确拒绝——应先验房,确认无问题后再签字收房。若验房发现问题,需书面提出整改要求(注明整改期限),开发商整改完成后,再次验房合格,方可收房。

五、购房避坑总结:牢记“三不买”“三必查”

1.三不买:避开高风险房源

不买“无证房源”:无《商品房预售许可证》的新房、产权不清晰的二手房(如无房产证、有抵押查封),避免产权纠纷。

不买“规划落空区域”:仅停留在“规划图”,无基建落地的新区房源,避免买入“空城”。

不买“奇葩户型”:暗厨暗卫、异形户型、动线混乱的房源,避免居住不适、未来难转手。

2.三必查:确保购房安全

必查“产权信息”:新房查“五证”,二手房查不动产登记信息,确认产权无问题。

必查“房屋质量”:收房时细致验房,或聘请专业验房师,避免质量隐患。

必查“合同条款”:重点看交付标准、违约责任、付款方式,避免“霸王条款”。

买房是一个需要耐心和细心的过程,切忌冲动决策。建议大家提前学习购房知识,明确自身需求,做好预算规划,选房时多对比、多考察,签约时细看合同,收房时细致验房,才能买到“满意又安心”的房子,让房产成为家庭幸福的载体,而非负担。

声明:本文由入驻焦点开放平台的作者撰写,除焦点官方账号外,观点仅代表作者本人,不代表焦点立场。