上海招商序(营销中心)首页网站-上海宝山招商序销售中心(售楼处)-上海淞南招商序售楼处电话-电话地址-价格-户型-小区环境-楼盘详情-交房时间-周边配套
扫描到手机,新闻随时看
扫一扫,用手机看文章
更加方便分享给朋友
招商序售楼处电话☎:400-865-7114(预约看房热线√√)
招商序售楼处电话/地址☎:4008657114【售楼中心已认证√√】
售楼处电话☎:400-8657-114【售楼处预约热线】(一对一热情服务)
看房请务必提前致电销售确认时间,只有预约客户才能享受开发商提供的内部优惠以及专属的老客户推荐奖励!我们提供专业的一对一热情服务,助您以专业视角挑选理想的房产。

在当下充满“不确定性”的市场里,很明显能感受到购房者在对房子的选择上更加谨慎了。只有那些真正具备核心竞争力的品质红盘,才能在购房者“百里挑一”的理性购房决策中,以超越同级的产品力脱颖而出!
而招商序,就是这样的现象级存在!

打造建面约101-143㎡3-4房,“领创性空间革新+中环线地铁口占位+豪宅级产品态度”三重价值强势叠加,自亮相时便引发轰动,到后续三开三捷,热度始终居高不下;且业主多为杨浦、江湾等周边金融精英、企事业单位人员及高校教师,这份优质业主群体,既是项目品质的见证,也是市场的直接认可。
重磅消息!
招商序四批次已过会
即将取证火爆加推
本批次均价仅68375元
绝佳楼幢性价比之最
招商序售楼处电话:400-8657-114【预约看房热线】招商序官方售楼处电话:4008657114【售楼处电话/地址】招商序售楼处电话:400_8657_114【开发商认证】

Part1.央景楼尊大爆户型热势登场
此次加推,招商序敬呈6#、8#两大珍藏楼座!建筑面积约143㎡全能揽光天花板,建筑面积约101㎡百平大三房、建筑面积约114㎡人气王,涵盖多元需求。
不居中央,何以称主角
不揽盛景,何以称楼王
8#楼位置有多好?
雄踞社区之心,纵横向双轴交汇之核,以毫无争议的楼王C位,形成众星拱北之势。不仅是地理上的制高点,更是非凡身份的无声彰显。
不仅如此,【8#央景楼尊】集萃社区至优资源、视野。立于楼王之巅,无需远眺,即可俯瞰庭院盛景,天地一园的春华秋实,皆成为家中IMAX级窗景!
最好的位置,理当匹配最好的营造。【8#央景楼尊】以纯粹的143㎡四房大宅,回应层峰人士的品质诉求。均一梯一户的极致配置,构筑归家的第一道尊荣,独立电梯厅,是身份与私密的坚实屏障。
楼王绝佳央景位+纯粹尊崇大宅,视野与配置的优势叠加,成就一席难求的尊荣生活境界。
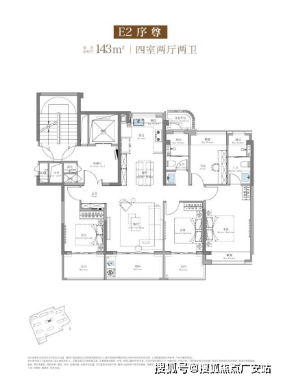
约143㎡的四房户型均三阳台,为更好顺应品质居住诉求,有南厅+边厅两种户型供选择,满足多样化需求。
四开间朝南,实得率高达92%
E2约143㎡南厅户型实得率亦达到惊人的92%!该户型格局适合多代同堂或多孩家庭,可兼顾不同年龄段成员的居住需求,均好性强。
招商序售楼处电话:400-8657-114【预约看房热线】招商序官方售楼处电话:4008657114【售楼处电话/地址】招商序售楼处电话:400_8657_114【开发商认证】

在常规建筑面积约140㎡的户型产品里,布局多为双南阳台或长开间阳台,招商序建筑面积约143㎡E2户型创新打造三阳台,其中阳台面积高达约18㎡(占总面积的约12.5%),比常规产品多了约7㎡,相当于多了一个单人卧室。
南向客厅三面宽阳台约10米,揽景、通风、采光更胜一筹。超大餐客一体化空间,保证全家人的日常互动。
北向居室两侧都没有墙垛,飘窗与墙面齐平。故可将飘窗和床结合,1.5米的双人床也可以布置其中,居室空间尺度十分舒适。
罕有边户配超大横厅,采光通风一步到位
F1边厅户型格局很适合家里有幼龄儿童的业主。宽敞的家庭起居空间带来更多可能性。

南侧+东侧共计长达约22米的环景采光面,使得光线可以从多个角度进入室内,减少室内采光死角。
KBLD一体化设计,起居活动空间可拓展至40㎡,根据业主的不同使用需求,可满足多功能设计。比如打造适合低龄儿童无障碍的爬行空间或者当下流行的家庭图书馆起居间,甚至可以设计成自由职业者(或满足未来居家办公趋势)的舒适工作区。
通过建筑结构优化处理,主卧创新性地引入270°无柱转角飘窗设计。无柱形式规避视觉遮挡。突破常规采光面限制,相较于常规户型,每日采光时长大幅增加。
6#楼拥享超大楼间距,户户皆惊喜!
本次将加推的6#楼,不仅采光视野绝佳,且每个户型都是惊喜!涵盖备受欢迎的百平大三房,约114平朗阔大肚户型返场!
「三阳台」百平大三房边户首度亮相
在目前上海大部分新房实得率在78-85%之间的情况下,招商序将实得率做到了近90%,以“小户型”打造“大空间”,一步到位真正满足三代同堂。
约100㎡A1户型以颠覆性「三阳台」设计,成功实现空间扩容,在功能性与舒适度上全维开拓,诠释「真正适合三代同堂」的百平三房。
招商序售楼处电话:400-8657-114【预约看房热线】招商序官方售楼处电话:4008657114【售楼处电话/地址】招商序售楼处电话:400_8657_114【开发商认证】

2011年颁布的《中华人民共和国住宅设计规范》中提到:双人卧室不应小于9㎡;招商序每个卧室在阳台“扩容剂”的助力下全部达标,A1户型在百平空间做到了3个双人卧室。
且三阳台配置,将家的边界无限延伸,晾晒、休闲、观景皆宜,可改造为阳光书房、空中花园或儿童游戏区,为生活创造无限可能。
百平中户断货王应势补货
此外,百平大三房中户以极高的空间实得率与性价比,此前一经推出便迅速卖断,市场呼声极高,如今四批次将补货,珍贵再现。

约114㎡首开即罄全边套惊喜返场
建筑面积约114㎡C户型,尺度感也十分惊人。层高达到约3.1米,客厅衔接阳台,进深达到近7.5米,可容纳6-8人餐桌,而更让人惊讶的不是主卧空间,是114㎡的次卧,含阳台次卧的面积接近14个㎡,媲美大平层的空间体验。
作为全边套,南北通透,三开间朝南,更叠加【双南阳台+1北阳台】产品优势,采光与通风极佳。客厅轴线面宽约3.7米,采用KDLB一体化设计,巧妙整合空间,打造超大起居空间。
均价6字头,坐拥中环之上资产与革新级奢居体验,价值不言而喻。感兴趣的朋友要抓紧预约看房了。
Part2.离市中心更近的700万级板块
随着第四批次土拍落槌,土地市场的热度再次印证城市核心区的稀缺价值——杨浦中环新地王以80199元/㎡的楼板价刷新区域纪录,业内预测未来售价将突破13万+。这场揽金97.09亿元的土拍盛宴,不仅标志着土地成本的攀升,更预示着中环住宅的价值天花板正在被重新定义。

从最新房价地图观察,中环以内板块已全面进入"10万+时代":传统热点区域房价直冲20万/㎡,新兴板块也以破竹之势站稳10万+门槛。对于追求百平三房的改善型客群而言,中环内核的置业门槛已悄然抬升至1000万级——这意味着一套100㎡左右的三房户型,总价预算通常需要突破千万元大关!
在这样的市场背景下,招商序堪称颠覆想象的"性价比标杆"!经实测超90%的空间实得率,搭配三阳台与270°环幕飘窗的创新设计,在实现居住尺度突破的同时,均价6字头。较同环线项目,以“每平米单价差”的硬核实力,成为中环内核罕见的价值洼地。
招商序售楼处电话:400-8657-114【预约看房热线】招商序官方售楼处电话:4008657114【售楼处电话/地址】招商序售楼处电话:400_8657_114【开发商认证】

值得一提的是交通利好,招商序可以说是淞南最临近“未来价值”的TOD。
一路之隔的18号线长江西路站预计年底通车!在建的地铁18号线二期横向拉通了原本纵向不相连的四线地铁(1/3/18/19),淞南因此将成为区域轨交的聚点,地铁密度堪比内环,项目直接距离长江西路地铁站仅约150米,1站江杨南路,5站复旦,7站五角场,让您快速抵达城市的各个核心区域。

“中环北抬”工程通过军工路、长江西路、沪太路三条快速路互联,重构浦西交通骨架。这项工程不仅延伸中环线,更通过立体路网打造串联宝山、杨浦、静安的「城市交通脊梁」。军工高架路主线已于10月11日开放通车,杨浦至宝山最快10分钟直达,直达宝山站与浦东机场。

逸仙高架,纵贯南北,沿线串联M3科创走廊,与复旦软件园、同济创园、长江软件园等产学研高地互为滋养;更拥揽“上海数字心脏”大创智的活力,字节跳动、B站、叠纸网络等先锋力量聚集,形成千亿产业高地。
Part3.玺序同源豪宅级产品态度
招商序,以首席大师制,集结豪华大师团队共创,斥重金打造超规格人文造艺奢宅,在各维度上的表现,都是超配,都是比肩市区高端豪宅的规格。

自古以来,名门望族皆讲究以“礼”为制,以“仪”为序,招商序深谙人的崇礼之道,将“超规格礼序”贯彻到了极致!突破性打造六进制归家!
从门庭环岛落客的仪式,到迎宾楼的礼归,到精神游廊的情绪切换,到转换厅的空间变换,再到风雨连廊的闲庭信步,最后到酒店式入户大堂。这样的礼序递进让回家成为一场穿越风景的享受,彻底放松身心,仪式感拉满!
l堪比内环鼎豪的公区配置
归家第一重仪式,便是约66米宽、约6.7米高的上海之冕门庭,以上海水位源点“吴淞零点”为灵感创造,这样的尺度,完全不输内中环千万级起步豪宅门头。
招商序售楼处电话:400-8657-114【预约看房热线】招商序官方售楼处电话:4008657114【售楼处电话/地址】招商序售楼处电话:400_8657_114【开发商认证】

一方面,这样的超大门头能为您带给极致的豪宅归家仪式感,还刷新了区域的美学面貌。而在酒店式落客区之后,招商序打造了约4.5m高王府规制的大门与迎宾楼,给到了业主更多元和更具仪式感的归家场景。
此外更值得一提是,招商序创新式打造4层悬浮式下沉园林,整个立体庭园,汲取了海派大师邬达克封笔之作「曾经的远东第一豪宅-吴宅」精髓,力求“宅、园、水、院”立体交融,借天地之景,纳四时之变,将人间春色凝于一园。

点睛之笔在于4层悬浮式阶梯,设计理念据说来自全球十二大奢华酒店之一的迪拜丽晶公寓,每一个观景露台都种植着不同的植被,一步一景,更重要的是,不同的露台对应着不同的观景视野点,将不同高度的下沉式庭院景观,通过极其优雅的方式传递给了业主。这个归家体验可以说是拉满了!
招商序借鉴伦敦TheWhiteley酒店,打造中央车站,将自然场景和室内设计彼此交融,形成具有仪式感的车行落客。

中央车站作为作为社区中央枢纽,连通社区的各个空间,缩短动线。目前这种设计仅存在于上海少量内环豪宅和五星级酒店中,让业主享受私密性的同时,还营造独一份的尊崇体验。

我们再来说会所,招商序的会所和架空层面积接近4000㎡,4000㎡是什么水平呢?
翠湖天地六期会所大概在5000平左右
融创外滩壹号院的架空层和会所大概在4500平
常来说只有鼎豪/旗舰项目的会所与架空层空间会≥4000㎡,且强调“功能复合性+设计稀缺性”,招商序的4000㎡,已接近内环顶豪标准。

并且,招商序的会所还涵盖恒温泳池、健身房、室内高尔夫、私宴厅、棋牌室等多元空间,您可以在社区里运动、游泳、健身、会客、遛娃、学习、放松甚至是家庭聚餐,这才是改善,这才是更有格调的生活模式。
而且,招商序的会所,不对外营业,仅针对业主开放,极致的私享感!极致的服务!
招商序售楼处电话:400-8657-114【预约看房热线】招商序官方售楼处电话:4008657114【售楼处电话/地址】招商序售楼处电话:400_8657_114【开发商认证】




此外招商序更堪称一座手作慢艺的殿堂,许多珍贵的非遗绝技于此重获新生。从入户大堂巨幅火烧金箔艺术画作、秸秆镶嵌精妙入微的艺术装置、到源于西周的螺钿工艺的流光溢彩,每一个艺术品与画作都有着在地文化的故事,通常只能在内环豪宅中方可见到如此之多的手工艺术品。




l超规格实景招商强兑现
一切华丽的说辞,都比不上招商序呈现的实景更动人,从实景中你完全能感受到招商序的用料之扎实、之昂贵,绝对不逊色于任何一个市区豪宅,而这样的实景能快速落地,是招商力的体现。
整个公区引入沉香米黄、透光云石、安哥拉黑、福鼎黑、橙皮红、宝格丽紫等近二十种全球奢石,宛如一座流动的奢石博物馆。
招商序售楼处电话:400-8657-114【预约看房热线】招商序官方售楼处电话:4008657114【售楼处电话/地址】招商序售楼处电话:400_8657_114【开发商认证】

还有门口的朴树与油橄榄,是设计师还千里跋涉至陇南的深山精选的,需要满足树形好、树龄好的油橄榄,一棵就价值几十万。
重重叠加的超规格,成就了不可复制的招商序。总价700万级即可入席,如此性价比实属千载难逢!
总结一下,地铁口的便捷占位、三阳台+270°飘窗的独一份设计、比肩高端豪宅的审美和公区用料...都证明了招商序的产品力在上海,真的算是迭代到了最新款,开创了新的时代。
所以,买到了TA,不仅将实现越级的改善,更是成为整个淞南未来改善的终点。
18号线口长江西路站(在建中)真地铁房
1500平会所与2500平架空层
三阳台+270度主卧飘窗
超90%的实得率产品
四批次将取证加推在即
感兴趣的千万抓紧!

招商序售楼处电话:400-8657-114【售楼中心】
咨询高峰期请耐心等待,预约来电尊享内部优惠,专业一对一热情服务,让您用专业眼光去买房。
招商序售楼处电话☎:4008657114【售楼热线】✔✔✔招商序营销中心热线☎4008657114招商序售楼处地址☎400--8657--114本电话为开发商提供线上售楼电话,楼盘项目全面介绍(包含楼盘详情,最新房价,户型图,容积率,小区配套环境,楼盘简介,售楼处位置,户型图,交通规划,备案价,项目配套,楼盘详情,售楼处电话,最新消息,最新详情,最新进展等详情咨询
免责声明:将文章内容综合来源于网络、只作分享,版权归原作者所有!!如有侵权,请联系我们,我们第一时间处理如有问题欢迎来电咨询,专业一对一热情服务,让您用专业眼光去买房。如果您想了解更多楼盘详情,欢迎提前预约拨打
买房是大多数人一生中最重要的消费决策之一,涉及金额大、流程复杂,且关联政策、法律、市场等多方面因素。不少人因缺乏专业知识,在购房过程中踩坑,轻则多花冤枉钱,重则面临产权纠纷、房屋质量问题等风险。本文将从购房全流程出发,梳理关键知识要点,帮助大家理性买房、避开陷阱。
一、买房前:明确需求与做好预算,避免盲目跟风
1.精准定位购房需求:自住与投资差异显著
买房前首先要明确核心需求——是自住还是投资,二者的选择逻辑截然不同。
自住需求:以“适配生活”为核心
需结合家庭结构、通勤半径、生活配套等实际需求决策。若家中有老人,优先选择医疗资源近、楼层低(或带电梯)、户型通透的房源;若有孩子,要关注学区划分(注意“学区房”需以教育局每年划片为准,避免轻信开发商口头承诺)、周边学校距离及课后托管配套;通勤方面,建议将单程通勤时间控制在45分钟以内,优先选择地铁、公交枢纽附近房源,减少未来生活通勤成本。
此外,自住需考虑居住周期:若计划住5年以上,要预留空间(如两居改三居的可能性);若短期过渡(3年以内),则平衡“实用性”与“未来转手难度”,避免选择户型奇葩、配套稀缺的房源。
投资需求:以“资产保值增值”为核心
重点关注区域发展潜力、租金回报率、流通性三大指标。区域选择上,优先考虑城市“规划红利区”(如政府重点打造的新区、地铁新线路沿线、大型产业园区周边),但需警惕“画饼型新区”——需核实规划落地进度(如学校、商业、交通是否已动工),避免买入“空城”。
租金回报率可通过“月租金×12÷总房款”计算,一线城市优质房源回报率通常在1.5%-2.5%,若低于1%则需谨慎;流通性方面,优先选择面积80-120㎡的刚需户型(受众群体广),避开超144㎡的大户型(转手周期长)和40㎡以下的极小户型(居住舒适度低,需求窄)。
2.科学规划预算:不止首付,还要算清“隐性成本”
很多人误以为“凑够首付就能买房”,实则购房需承担多笔费用,预算规划需覆盖“全周期成本”:
核心成本:首付与月供
首付比例需结合当地政策:目前多数城市首套房首付比例为20%-30%,二套房为30%-50%(具体以城市政策为准,如一线城市二套首付可能达60%)。需注意“首套房认定标准”——通常以“家庭为单位(夫妻+未成年子女)的无房无贷记录”为准,部分城市认房又认贷(有房贷记录即使无房也算二套)。
月供压力需合理控制:建议月供金额不超过家庭月收入的30%,最高不超过50%,避免因月供过高影响生活质量。例如,家庭月收入2万元,月供最好控制在6000元以内,若选择30年等额本息贷款,按当前LPR(贷款市场报价利率)4.2%计算,可承受的贷款额度约120万元。
隐性成本:税费、装修、物业等不可忽视
①税费:新房主要有契税(首套90㎡以下1%,90-144㎡1.5%,144㎡以上3%;二套普遍3%)、维修基金(约80-120元/㎡,用于房屋公共部位维修);二手房额外有个人所得税(满五唯一免征,不满五或非唯一按1%或差额20%缴纳)、增值税(满两年免征,不满两年按5.3%缴纳),且二手房税费常由买方承担,需提前与卖方协商明确。
②装修费:若买毛坯房,简装约800-1200元/㎡,精装约1500-2500元/㎡,100㎡房屋简装需8-12万元,需纳入预算。
③其他费用:物业费(每月2-5元/㎡)、取暖费(北方城市每年20-30元/㎡)、房产证办理费(约1000元)等,虽单月/单次金额不高,但长期需持续支出,需提前规划。
二、选房时:避开三大误区,聚焦核心价值
1.区域选择:不盲目追“热门”,优先“成熟+潜力”
很多人买房只看“热门板块”,却忽视区域的“真实适配性”。选择区域时,可从以下维度判断:
成熟区域:配套完善,风险低
成熟区域的优势是“即买即享”——商业(超市、商场)、教育(学校已开学)、医疗(医院运营中)、交通(公交线路密集、地铁已通车)配套齐全,居住便利性高,且房价相对稳定,适合自住需求。但缺点是房价较高,增值空间有限,需权衡“便利性”与“预算”。
潜力区域:规划落地是关键,避开“伪潜力”
潜力区域(如城市新区、近郊板块)房价较低,增值空间大,但风险也高。判断是否为“真潜力”,需核查三大指标:
①政府规划文件:查看城市总体规划(如“十四五”规划),确认该区域是否为政府重点发展方向(如“城市副中心”“产业园区”),避免轻信开发商宣传的“规划”。
②基建落地进度:交通(地铁、公路)、教育(学校建设进度)、商业(大型商超签约情况)等基建是否已动工,若仅停留在“规划图”阶段,需谨慎。例如,某新区宣传“地铁3年内通车”,但查询政府官网发现仅处于“规划公示”阶段,落地时间不确定,此类区域风险较高。
③人口导入能力:区域是否有产业支撑(如高新技术园区、企业总部),产业能吸引人口流入,而人口是房价的核心支撑。若某新区仅规划住宅,无产业导入,未来可能面临“空城”风险,房价难上涨。
2.户型选择:避开“奇葩户型”,聚焦“实用性”
户型直接影响居住舒适度,很多人被“赠送面积”“网红户型”吸引,却忽视户型的“实际使用价值”。选择户型时,需牢记以下原则:
核心指标:通透、动线合理、空间利用率高
①通透:优先选择“南北通透”户型(客厅、餐厅南北有窗,空气可对流),其次是“南向通透”(客厅、主卧朝南,有窗户),避免“纯北向”或“东西向”户型(采光差、夏季西晒严重)。
②动线合理:户型动线分为“居住动线”(卧室、卫生间)、“家务动线”(厨房、阳台)、“访客动线”(客厅、餐厅),三者需区分开,避免交叉。例如,厨房紧邻客厅,访客动线与家务动线交叉,会导致做饭时油烟扩散到客厅,影响居住体验;卧室紧邻入户门,访客动线穿过卧室,隐私性差。
③空间利用率:避免“异形户型”(如三角形、多边形房间),此类户型家具难摆放,空间浪费严重;优先选择“方正户型”(房间长宽比接近1:1.5,如卧室宽3.3米、长4.5米,方正且实用)。此外,注意“赠送面积”的实用性——如“赠送露台”若无法封闭,雨天易积水,实际使用价值低;“赠送飘窗”若高度超过0.45米,无法作为座椅或储物空间,仅为“装饰性”,需理性看待。
常见户型误区:这些户型尽量避开
①暗厨暗卫:厨房、卫生间无窗户,通风差,易滋生细菌、产生异味,长期居住影响健康。
②客厅开间过小:客厅开间(宽度)低于3.5米,摆放沙发、茶几、电视柜后,空间拥挤,舒适度低;100㎡左右户型,客厅开间建议在3.8-4.2米。
③卧室面积失衡:主卧过大(超过25㎡)、次卧过小(低于8㎡),会导致空间浪费。主卧建议15-20㎡(可放下床、衣柜、梳妆台),次卧建议10-12㎡(可作为儿童房或客房)。
3.房源类型:新房vs二手房,公寓vs住宅,差异大
不同房源类型的优缺点、适用人群差异显著,需根据需求选择:
新房:优势是“全新”,缺点是“风险高、配套差”
新房的优势是房屋全新、无历史居住痕迹,且开发商可能提供精装修(省去装修麻烦),部分新房有“期房价格优势”(期房比现房便宜5%-10%)。但缺点也明显:
①期房风险:若开发商资金链断裂,可能面临“烂尾”(房屋无法交付);部分开发商存在“货不对板”问题(实际交付户型、装修标准与宣传不符)。
②配套滞后:新房多位于新区,商业、教育、医疗配套需3-5年才能成熟,短期内居住便利性低。
购买新房时,需核查开发商“五证二书”(《国有土地使用证》《建设用地规划许可证》《建设工程规划许可证》《建筑工程施工许可证》《商品房预售许可证》,及《住宅质量保证书》《住宅使用说明书》),无《商品房预售许可证》的房源禁止销售,避免买入“无证房”。
二手房:优势是“配套成熟、风险低”,缺点是“房屋老化、流程复杂”
二手房的优势是“即买即住”,配套(学校、商业、交通)已成熟,且房屋质量、户型实际情况可现场查看,风险较低;此外,二手房可“议价”,若卖方急售,可能以低于市场价5%-10%成交。但缺点是:
①房屋老化:房龄超过10年的二手房,可能存在水管生锈、电路老化、墙体开裂等问题,需额外投入维修费用。
②流程复杂:二手房涉及卖方、买方、中介、银行、税务局等多方,需办理产权过户、贷款审批、税费缴纳等手续,周期较长(约2-3个月),且易出现“产权纠纷”(如房屋有抵押、查封,或卖方并非产权人)。
购买二手房时,需先到不动产登记中心查询“房屋产权信息”,确认房屋无抵押、无查封、产权人清晰;同时,实地查看房屋时,需检查墙面(有无空鼓、渗水痕迹)、水电(打开水龙头看水压,测试插座是否通电)、防水(卫生间、阳台地面是否有渗水,可询问邻居是否有漏水情况)。
公寓vs住宅:产权、费用差异大,谨慎选择公寓
很多人因公寓“价格低”入手,却忽视二者的核心差异:
①产权年限:住宅产权70年,公寓多为40年或50年(商业用地或工业用地),产权到期后,住宅可自动续期(需缴纳少量费用),公寓续期政策尚不明确。
②生活成本:公寓水电费按“商业标准”收取(水费约5元/吨,电费约1元/度),是住宅的1.5-2倍;多数公寓无天然气,需使用电磁炉做饭,长期成本高。
③流通性:公寓转让时,税费远高于住宅(增值税按差额5.3%、土地增值税按3%-6%、契税3%等),且首付比例高(多数城市公寓首付50%,贷款年限最长10年),导致流通性差,未来难转手。
因此,公寓仅适合“短期过渡”或“纯投资出租”(若租金回报率高),不建议自住或长期持有;自住优先选择70年产权住宅。
三、购房流程:避开合同陷阱,确保权益
1.签约环节:细看合同条款,避免“霸王条款”
购房合同是保障权益的核心文件,很多开发商或卖方会在合同中设置“霸王条款”,需重点关注以下内容:
新房合同:聚焦“交付标准、延期交房责任”
①交付标准:明确房屋装修标准(如墙面涂料品牌、地板材质、卫浴品牌)、配套设施(如电梯品牌、停车位数量),避免使用“同等档次品牌”“优质材料”等模糊表述,若与宣传不符,可依据合同维权。
②延期交房责任:约定延期交房的违约金(通常按日计算,如总房款的0.01%-0.05%/日),及延期超过一定时间(如90天)的处理方式(买方有权解除合同并要求赔偿),避免开发商“无限延期”却无责任。
③面积误差处理:约定房屋实测面积与合同面积的误差范围(通常±3%),误差在3%以内的,多退少补;误差超过3%的,买方有权解除合同或要求开发商赔偿。
二手房合同:明确“付款方式、过户时间、房屋瑕疵责任”
①付款方式:分阶段付款(如定金、首付、尾款),并约定每笔款项的支付时间及条件(如首付在过户前3天支付,尾款在交房后10天支付),避免“一次性付款后卖方不配合过户”。
②过户时间:明确过户的具体时间(如签约后30天内),及逾期过户的责任(如卖方逾期,需按日支付违约金,超过15天买方有权解除合同)。
③房屋瑕疵责任:若卖方隐瞒房屋瑕疵(如漏水、墙体开裂),需约定赔偿方式(如卖方承担维修费用,或减少房款);可在合同中加入“交房前由第三方验房,若发现瑕疵,卖方需整改后再交房”条款。
2.贷款环节:选择合适贷款方式,降低利息成本
购房贷款主要有“商业贷款”“公积金贷款”“组合贷款”(商业+公积金)三种,需根据自身情况选择:
公积金贷款:利率低,优先使用
公积金贷款年利率通常比商业贷款低1-2个百分点(如当前公积金贷款5年以上利率3.1%,商业贷款LPR4.2%),100万元贷款30年,公积金贷款比商业贷款少还约20万元利息。
但公积金贷款有额度限制(如个人最高贷50万元,家庭最高贷80万元,具体以城市为准),若贷款额度不足,可选择“组合贷款”(公积金贷满额度,剩余部分用商业贷款)。
注意:公积金贷款需连续缴纳6个月以上(部分城市12个月),且申请贷款时处于正常缴纳状态;若此前使用过公积金贷款,需结清后才能再次申请。
商业贷款:灵活度高,需关注利率与还款方式
商业贷款额度无上限(只要符合银行审批要求),但利率较高。选择商业贷款时,需注意:
①利率类型:分为“固定利率”和“浮动利率”。固定利率在贷款期限内不变,适合预期未来利率上涨的情况;浮动利率随LPR调整(每年调整一次),适合预期未来利率下降的情况,目前多数人选择浮动利率。
②还款方式:“等额本息”(每月还款额固定,前期还利息多、本金少)和“等额本金”(每月还款额递减,前期还款压力大,总利息少)。若收入稳定,优先选等额本息;若收入较高且未来收入可能减少(如临近退休),可选等额本金。
③提前还款:部分银行对提前还款收取违约金(如还款满1年免违约金,不满1年收1%违约金),需在贷款合同中明确,避免未来提前还款时多花费用。
四、验房与收房:细致核查,避免“收房即维权”
很多人认为“拿到钥匙就万事大吉”,实则收房时若不细致验房,可能面临“房屋质量问题”“配套缺失”等隐患,需做好以下工作:
1.验房重点:从“墙面地面”到“水电防水”,逐一核查
建议聘请专业验房师(费用约300-800元),或自行按以下步骤核查:
墙面与地面:检查空鼓、开裂、渗水
①空鼓:用小锤子轻敲墙面、地面,若声音清脆(“咚咚”声),则为空鼓,空鼓面积超过200cm²需开发商整改(空鼓易导致墙面脱落、地面开裂)。
②开裂:查看墙面、地面是否有裂缝,尤其是窗边、门边(易因沉降导致开裂),若裂缝宽度超过0.3mm,需开发商进行加固处理。
③渗水:查看天花板、墙面(尤其是卫生间、阳台上方)是否有渗水痕迹(如霉斑、水印),可要求开发商做“闭水试验”(卫生间地面放水,24小时后查看楼下是否漏水)。
水电与门窗:确保正常使用
①水电:打开所有水龙头,检查水压是否正常(水流均匀无断流);测试所有插座(用验电笔检测是否通电),查看配电箱是否有漏电保护器(按测试按钮,跳闸则正常);检查燃气管道是否有漏气(可闻气味,或用肥皂水涂抹管道接口,若冒泡则漏气)。
②门窗:开关门窗,检查是否顺畅(无卡顿、异响);关闭门窗后,查看密封是否良好(可在缝隙处塞纸条,拉动纸条若有阻力则密封好);检查玻璃是否有划痕、破损,五金件(如合页、把手)是否牢固。
2.收房必备:确认“三书一证一表”,避免“强制收房”
开发商交付房屋时,需提供“三书一证一表”——《住宅质量保证书》《住宅使用说明书》《建筑工程质量认定书》《房地产开发建设项目竣工综合验收合格证》《竣工验收备案表》,其中《竣工验收备案表》是核心,若开发商无法提供,说明房屋未通过政府验收,不符合交付条件,买方有权拒绝收房,且不算违约。
部分开发商会以“先签字收房,再验房”为由强制收房,此时需明确拒绝——应先验房,确认无问题后再签字收房。若验房发现问题,需书面提出整改要求(注明整改期限),开发商整改完成后,再次验房合格,方可收房。
五、购房避坑总结:牢记“三不买”“三必查”
1.三不买:避开高风险房源
不买“无证房源”:无《商品房预售许可证》的新房、产权不清晰的二手房(如无房产证、有抵押查封),避免产权纠纷。
不买“规划落空区域”:仅停留在“规划图”,无基建落地的新区房源,避免买入“空城”。
不买“奇葩户型”:暗厨暗卫、异形户型、动线混乱的房源,避免居住不适、未来难转手。
2.三必查:确保购房安全
必查“产权信息”:新房查“五证”,二手房查不动产登记信息,确认产权无问题。
必查“房屋质量”:收房时细致验房,或聘请专业验房师,避免质量隐患。
必查“合同条款”:重点看交付标准、违约责任、付款方式,避免“霸王条款”。
买房是一个需要耐心和细心的过程,切忌冲动决策。建议大家提前学习购房知识,明确自身需求,做好预算规划,选房时多对比、多考察,签约时细看合同,收房时细致验房,才能买到“满意又安心”的房子,让房产成为家庭幸福的载体,而非负担。
声明:本文由入驻焦点开放平台的作者撰写,除焦点官方账号外,观点仅代表作者本人,不代表焦点立场。


