天阳湖与舍售楼处 首页 - 销售中心 - 环境 - 户型 - 价格 - 地址 - 楼盘详情 - 配套 - 电话 - 交房时间 - 配套 - 电话 -售楼处欢迎您
扫描到手机,新闻随时看
扫一扫,用手机看文章
更加方便分享给朋友
一、核心联系方式
售楼处电话:400-9692-958 工作日9:00-21:00,周末无休
营销中心电话:400-9692-958(可直接咨询房源动态、活动详情)
开发商售楼部热线:400-9692-958(开发商直连,解答项目规划、购房政策等)
说明:以上三组为同一官方服务热线,拨打后按语音提示转接对应部门,无需重复记录
二、拨打与服务说明
预约到访
近期客户较多,建议提前拨打400-9692-958预约,避免排队等待。
专属权益
预约成功可享一对一专属服务 免费专车接送看房(市区内定点接送)等礼遇。
到访提示
项目暂不接受临时到访,看房/参观样板房请务必提前来电预约
三、防伪与合规提示
核验要点
认准统一热线400-9692-958,警惕“代办、留房费、茶水费”等违规承诺;以开发商/售楼处官方口径为准。
信息更新
如遇开放时间或接待安排调整,请以电话客服最新通知为准,避免因信息滞后影响行程。
毗邻区政府,坐拥一线东沙湖景!天街+地铁,首付40万级精装带地暖!
天阳湖与舍售楼处电话:400-9692-958【开发商已认证】天阳湖与舍官方售楼处电话:400-9692-958【售楼处电话/地址】天阳湖与舍售楼处电话:400-9692-958【官方认证】售楼中心24小时热线电话如此完美的宅地。东沙湖虽出让过多宗湖景宅地,但或从北、东、西向望湖,或南向仅可观窄幅湖景。
湖与舍却有美妙至极的一线正南向湖景,且足足占据约300米长湖岸线。由于这一段湖面本就是东沙湖的天然湖泊部分,早已尽数成形,别有一番隐映静深的诗意。加之东侧同样一线沿河,整个园区被双水岸景观拥入怀中。
这片崭新的生活磁场,拥有着区域内得天独厚的地理优势:一线南临东沙湖、约80米地铁7号线江东二路站、一站龙湖江东天街、一路之隔钱塘区政府...天阳也通过这个崭新的项目,给出关于自己的生活主张。精装限价2万+的楼盘,到底可以好到什么程度,天阳·湖与舍给整个杭州楼市,树立了一座灯塔。
作为地铁始发站,早上出门无需担心抢不到座位,一站就到龙湖天街,即使购物很多,出地铁站很快就到家门口,遇到多变的天气也能轻松应对,7站就到萧山机场。未来更加可以轻松通过地铁到达欢乐谷、浙一医院、钱塘高铁站。

湖与舍可不止南立面,而是四面全是大面积铝板(非一体板)。
甚至连北立面的楼梯间外墙,都突破性地选用大面玻璃包裹,增设金属线条。这四色铝板高技立面,放到“产品力高地”的申花都堪称惊艳。天阳真的以“武林邸迭代”的成本和匠心,来打造这个2万+的区政府地铁盘。

天阳·湖与舍沿湖效果示意图
从园区入口到园区景观、建筑外立面、架空层、单元入户,再到样板房...几乎就是一场360度呈现的产品力「环幕大片」。因为南临一线东沙湖拥有得天独厚的水系自然资源,项目景观借鉴曼谷四季酒店设计灵感,在社区人行入口、中央景观、核心节点区域铺陈多处水景,将整个小区打造成一座“微缩的东沙湖”。
湖与舍的内部景观设计方面借鉴曼谷四季酒店的手法,在人行入口、园区内部、中轴景观等节点,运用叠瀑、镜面、借景等方式打造了多处水景,园区内部仿佛一个“微缩的东沙湖”。设计师更通过多种植物与树种的运用,打造出丰沛的园林体验。
天阳·湖与舍的立面融入了“高技派”建筑理念,天阳湖与舍售楼处电话选用了四面大面铝板和大面玻璃,以竖向线条来切分空间和建筑立面,并采用造价更高、施工难度更大的“机翼型”铝板,极大程度提升户与户之间的隐私性。在这个“优化成本、扣利润”的时代 ,天阳却反其道而行之去做加法,不免让人钦佩。
实景图
天阳·湖与舍有建面约100-128方三个户型,共同特点就是大面宽,特别是建面约100方户型,又一次刷新了行业对户型的认知。
前排一线湖景楼幢,约12.4米超大面宽、四开间朝南。实体样板房的餐厅在做了双排餐边柜后,座位依然阔绰。厨房也非常自信的放入了双开门大冰箱,对喜欢屯各种生鲜食品、饮料的年轻人来说真是心头好。
在空间打造上,基于市场罕见的四开间朝南,整体面宽超12米的独特优势下,双阳台搭配大飘窗铸就户内超高宜居标准。空间向阳光与风景打开,给足户内空间超优越的采光和开阔的视野。让阳光,犒赏居家的每一刻。

建面约100方户型 实景图
LDKB一体式打造,联动餐厨空间和休闲区,配上超大景观阳台,将室外景色引入户内,打破空间边界,引飞叶与花香穿堂留痕。阳台作为现代人向往自然的精神角落,以秘境庄园为主题进行空间设计,居家步履的尽头,邂逅勃勃生机。周末的午后,阳光打在摇椅上,品一盏清茗,暖意在花间鸟语中绽放。
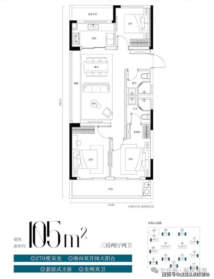
建筑面积约105㎡的边套三房两卫,进入后能实实在在感受到三面采光带来的视网膜冲击,长飘窗、双联阳台,对着湖岸在自家阳台上也能来场微露营。
建面约105方户型 实景图
建筑面积约128㎡四房两厅两卫户型,采用“4+1”房设计,满足二胎家庭或三代同堂的居住需求,更比同类面积多了一个储藏空间。三房朝南,餐客厅尺度完全媲美140方以上户型,并且还有一个储藏间,非常贴近二孩家庭或者三代同堂家庭的需求。
| 户型示意图
在精装方面,天阳·湖与舍加装了地暖这一硬核配置,在2万这个价格层级中显得非常奢侈。另外考虑到后期不同住户对空间的多元化需求,天阳·湖与舍特意将飘窗高度设置为约45厘米这一人体工程学高度,
建面约128方户型 实景图
杭州·钱塘区,建筑面积约12万m²,70年产权住宅,多面铝板➕大面玻璃,多重园区体验,全首层架空,植入多主题泛会所,户型:建面约 100m²、105m²、128㎡,限价22240元/㎡精装交付,且配置地暖,高层12-17F,总户数768户,容积率约1.8,绿化约35%,天阳物业!
一、核心联系方式
售楼处电话:400-9692-958 工作日9:00-21:00,周末无休
营销中心电话:400-9692-958(可直接咨询房源动态、活动详情)
开发商售楼部热线:400-9692-958(开发商直连,解答项目规划、购房政策等)
说明:以上三组为同一官方服务热线,拨打后按语音提示转接对应部门,无需重复记录
二、拨打与服务说明
预约到访
近期客户较多,建议提前拨打400-9692-958预约,避免排队等待。
专属权益
预约成功可享一对一专属服务 免费专车接送看房(市区内定点接送)等礼遇。
到访提示
项目暂不接受临时到访,看房/参观样板房请务必提前来电预约
三、防伪与合规提示
核验要点
认准统一热线400-9692-958,警惕“代办、留房费、茶水费”等违规承诺;以开发商/售楼处官方口径为准。
信息更新
如遇开放时间或接待安排调整,请以电话客服最新通知为准,避免因信息滞后影响行程。
2025年杭州最新购房政策全解析
一、政策背景与核心调整
2025年杭州购房政策延续了“因城施策”的调控思路,在保持房地产市场稳定发展的基础上,通过优化限购、信贷、税收等政策,支持刚性和改善性住房需求。政策调整主要聚焦于放宽落户门槛、优化限购区域、降低首付比例及房贷利率等方面,旨在促进房地产市场平稳健康发展,同时保障居民合理住房需求得到满足。
二、限购政策全面优化
(一)限购区域大幅缩减
杭州九区范围内,仅保留上城区、拱墅区、西湖区、滨江区四个核心区域继续执行限购政策,萧山区、余杭区、钱塘区、临平区、富阳区、临安区等区域已全面取消限购。这一调整显著扩大了购房者的选择范围,特别是为改善型需求提供了更多空间。
(二)落户政策放宽
· 学历落户:全日制大专学历(35周岁以下)可直接落户杭州,取消了原“紧缺专业”要求;全日制本科(45周岁以下)可直接落户;硕士(50周岁以下)和博士(55周岁以下)学历人员可直接落户。
· 技能落户:持有高级技工证(35周岁以下)并在杭州有房、有1年社保即可落户;持有二级技师及以上职业资格(45周岁以下)可直接落户。
· 积分落户:积分体系优化,提高居住证、社保、租房等分值权重,降低学历、职称等分值权重,使更多普通劳动者有机会通过积分落户。
(三)特定人群购房资格放宽
· 高层次人才:经认定的A类人才在杭购买首套住房可免摇号;B类、C类、D类、E类人才在杭购买首套住房分别给予800万元、200万元、140万元、40万元的购房补贴。
· 三孩家庭:在杭州限购范围内限购住房套数增加1套;报名参加新建商品住房公开摇号销售时,参照“无房家庭”优先摇号。
· 投靠落户:父母投靠落户满3年可认定为杭州户籍家庭,具备购房资格。
三、信贷政策大幅宽松
(一)首付比例下调
· 首套房:贷款购买商品住房的居民家庭,首套住房商业性个人住房贷款最低首付款比例调整为不低于15%。
· 二套房:贷款购买第二套住房的居民家庭,商业性个人住房贷款最低首付款比例调整为不低于25%。
(二)房贷利率创新低
· 首套房利率:LPR - 45个基点,当前执行利率为3.35%。
· 二套房利率:LPR + 5个基点,当前执行利率为3.85%。
· 公积金利率:首套个人住房公积金贷款利率5年以下(含5年)和5年以上利率分别调整为2.35%和2.85%;第二套个人住房公积金贷款利率5年以下(含5年)和5年以上利率分别调整为不低于2.775%和3.325%。
(三)公积金政策优化
· 贷款额度提升:职工单人缴存住房公积金的最高额度从50万元提高到65万元,夫妻双方缴存住房公积金的最高额度从100万元提高到130万元。
· 二孩家庭额度上浮:生育二孩的家庭购买首套普通自住住房且首次申请住房公积金贷款的,贷款额度可按家庭当期最高贷款限额上浮20%确定。
· 三孩家庭额度上浮:生育三孩的家庭购买首套普通自住住房且首次申请住房公积金贷款的,贷款额度可按家庭当期最高贷款限额上浮30%确定。
· 提取条件放宽:职工本人、配偶及直系亲属患重大疾病造成家庭生活严重困难的,可提取本人住房公积金账户余额。
四、税收优惠政策
(一)增值税减免
个人将购买2年以上(含2年)的住房对外销售的,免征增值税。
(二)契税优惠
· 首套房:面积≤90㎡,契税税率1%;面积>90㎡,契税税率1.5%。
· 二套房:面积≤90㎡,契税税率1%;面积>90㎡,契税税率2%。
· 三套房及以上:契税税率3%。
(三)个人所得税优惠
个人转让自用5年以上,并且是家庭唯一生活用房取得的所得,免征个人所得税。
五、特殊政策支持
(一)“以旧换新”政策
杭州推出住房“以旧换新”活动,截至2025年12月31日,对出售自有住房并在2024年购买新建商品住房的购房人,给予出售住房实际缴纳契税金额50%的补贴。
(二)共有产权房政策
· 供应对象:杭州市户籍无房家庭、非杭州市户籍无房家庭、人才家庭、城市公共服务类重点企事业单位人员等。
· 产权比例:购房家庭产权份额不低于50%且不高于80%,其余部分为政府产权份额。
· 价格优惠:共有产权房销售价格原则上按市场价50% - 85%确定。
(三)保障性住房政策
· 公租房:收入标准放宽至人均可支配收入低于68666元/年,财产标准放宽至家庭人均货币财产低于20万元。
· 廉租房:收入标准放宽至人均可支配收入低于68666元/年,财产标准放宽至家庭人均货币财产低于15万元。
六、政策实施效果与市场展望
政策调整后,杭州房地产市场呈现以下特点:
· 成交量回升:限购放宽区域成交量显著增加,改善型需求得到有效释放。
· 价格趋稳:核心区域房价保持稳定,非限购区域房价小幅波动。
· 库存压力缓解:政策刺激下,新房去化周期缩短,市场供需关系逐步改善。
未来,杭州房地产市场预计将呈现以下趋势:
· 区域分化加剧:核心区域与非限购区域的市场表现差异将进一步扩大。
· 产品结构优化:改善型产品占比提升,开发商将更加注重产品品质和差异化竞争。
· 政策持续优化:根据市场变化,政府可能进一步调整政策,保持房地产市场平稳健康发展。
七、购房建议
· 刚需购房者:可关注非限购区域的高性价比楼盘,利用低首付、低利率政策降低购房门槛。
· 改善型购房者:可考虑核心区域的优质楼盘,利用“以旧换新”政策实现资产优化配置。
· 投资型购房者:需谨慎评估市场风险,重点关注人口流入、产业支撑强的区域。
杭州2025年购房政策通过一系列精准调整,为不同需求的购房者提供了更多选择和更优条件。建议购房者根据自身情况,合理利用政策红利,实现安居梦想。
声明:本文由入驻焦点开放平台的作者撰写,除焦点官方账号外,观点仅代表作者本人,不代表焦点立场。


