越秀外滩樾 (售楼处) 官方网站 - 越秀外滩樾销售中心 - 环境 - 户型 - 价格 - 地址 - 楼盘详情 - 配套 - 电话 - 交房时间 - 配套 - 电话 - 交房时间
扫描到手机,新闻随时看
扫一扫,用手机看文章
更加方便分享给朋友
🔥越秀外滩樾🔥
越秀外滩樾售楼处电话☎️400-8657-114【售楼中心】【已认证】
越秀外滩樾营销中心电话☎️400-8657-114【营销中心】【已认证】
越秀外滩樾开发商电话☎️400-8657-114【开发商】【已认证】
售楼中心〢预约尊享1V1品鉴礼遇〢匠心钜制-恭迎品鉴〢
免责声明:【本文所用信息图片来源于网络,如侵权请联系本网站及时删除】
看房请务必提前致电销售确认时间,只有预约客户才能享受开发商提供的内部优惠以及专属的老客户推荐奖励!我们提供专业的一对一热情服务,助您以专业视角挑选理想的房产。

营业时间:日常营业时间为9:30-18:30,便于您提前规划到访行程,避免空跑。
预约方式:可提前拨打官方热线✅越秀外滩樾售楼处电话:400-865-7114✅︎✅︎✅,预约好专属销售及具体到访时间;预约时可同步告知意向户型、置业需求,我们将提前做好服务准备,减少您的等待。
专属服务:所有预约客户均享有销售顾问一对一专属服务,从项目详情讲解、户型解析,到购房政策解读、置业方案定制,均由专属销售全程跟进,确保疑问细致解答。
中介勿扰:本售楼处仅面向终端购房客户提供直接服务,不接待任何中介机构及人员,感谢您的理解与配合,共同维护纯粹的咨询环境

越秀外滩樾
外滩源仅约1.2公里
属于家族传承的风貌
越秀外滩樾别墅
约238-338㎡双拼、三拼
越秀外滩樾售楼处电话:400-8657-114【预约看房热线】越秀外滩樾官方售楼处电话:4008657114【售楼处电话/地址】越秀外滩樾售楼处电话:400_8657_114【开发商认证】
01
PART
区域介绍
越秀外滩樾直线距离外滩源仅约1.2公里,直线距离北外滩商圈约500米,直线距离瑞虹商圈约900米,直线距离陆家嘴商圈约1500米!
这样的地段天赋,保证了业主能在世界都心享全球封面级生活!
越秀外滩樾售楼处电话:400-8657-114【预约看房热线】越秀外滩樾官方售楼处电话:4008657114【售楼处电话/地址】越秀外滩樾售楼处电话:400_8657_114【开发商认证】
地理位置示意图,仅供参考
自驾出行方面,项目直线距离新建路隧道约360米,可快速直达陆家嘴CBD;直线距离外滩隧道约670米,直达外滩金融商业街以及老码头;直线距离北横通道约150米,贯穿浦西重要节点全城,快速通达虹桥机场/虹桥火车站。
公共交通方面,项目周边4、10、12、19号线(在建中)四轨交汇。其中直线距离轨交4/10号线海伦路站约850m,进站后3站可达南京东路,6站可达新天地。
越秀外滩樾售楼处电话:400-8657-114【预约看房热线】越秀外滩樾官方售楼处电话:4008657114【售楼处电话/地址】越秀外滩樾售楼处电话:400_8657_114【开发商认证】
地理位置示意图,仅供参考
医疗资源方面,项目直线距离3公里范围内有新华医院(儿科专长)、复旦大学附属妇产医院、上海市第一人民医院、上海东方医院(血管外科专长)4所三甲医院。
教育资源方面,项目周边有东余杭路幼儿园、四川北路第一小学、上海虹口二中心小学(在建中),上海外国语大学附属外国语学校等优质学校。
免责声明:以上教育资源整理仅代表楼盘与学校的距离,该房屋所在项目暂未划分学区,开发商不对项目交房后所属学区、学校做任何承诺。教育资源分配或学校/学区划分以及学校的具体招生规则等请以政府相关主管部门、教育机构公开的最新信息为准。
越秀外滩樾售楼处电话:400-8657-114【预约看房热线】越秀外滩樾官方售楼处电话:4008657114【售楼处电话/地址】越秀外滩樾售楼处电话:400_8657_114【开发商认证】
示意图,图片来源于网络
尤其值得一提的是生态休闲资源。
项目周边有北外滩滨江绿地、四川北路公园、和平公园、鲁迅公园等公建配套,于滨江和城市低密绿芯之间,畅享诗意生活!
示意图,图片来源于网络
当然,当下显然并非项目的价值顶点,因为项目还坐拥北外滩的世纪红利!
要知道,作为滨江黄金三角的一部分,外滩、陆家嘴已臻成熟增量有限。而北外滩正处于价值大爆发的阶段。
据统计,北外滩规划了约650万方商办!对比几大当红炸子鸡板块,北外滩的商办体量几乎是徐汇滨江的2倍、前滩的3倍、世博的5倍!
★上海越秀外滩樾官方售楼处电话:400-865-7114「预约看房专线」越秀外滩樾营销中心预约热线/售楼电话:400-8657-114√√(官网已认证)

示意图,图片来源于网络
另外,作为与外滩陆家嘴平起平坐的世纪规划,北外滩商办地标兑现的速度简直史无前例!
·国华金融中心(158米地标)于2023年11月正式开幕;
·友邦金融中心(180米地标)商业进入试运营阶段;
·上海华贸中心(180米地标)预计2026年竣工开业;
·上海北外滩中心(480米地标)预计2030年竣工、北外滩90街坊(180米地标)预计2030年竣工!
一旦北外滩的规划全部兑现,这股时代能量迸发,整个一江一河谁是对手?
在这样的背景下,越秀外滩樾无疑是这个时代的馈赠,且买且珍惜!
★上海越秀外滩樾官方售楼处电话:400-865-7114「预约看房专线」越秀外滩樾营销中心预约热线/售楼电话:400-8657-114√√(官网已认证)
北外滩实景图
02
PART
楼盘介绍
去年开始,上海顶豪圈层出现了一个新物种,那就是地段与产品均位列塔尖序列的风貌别墅,这是天生的藏品级住宅。
但是,随着风貌别墅供应量的井喷,风貌别墅好像变的也没有那么稀缺。
同时,受制于保护规制,里弄风貌居住舒适度偏低成为此类建筑较为显著的居住感受。
比如黄浦等区域,风貌以保留改造与更新改建为主,需要沿袭之前的结构与风格。这些旧里发展出来的风貌,传承了海派文化精髓,但也继承了石库门旧里宽面小进深长,且窗墙比低的“缺点”。
正是因为以上2点,风貌别墅的藏品价值受到了一定质疑!
如今,打破质疑的破局者来了!
越秀外滩樾占位直线距离外滩约1.2公里的黄金地段,同时属于虹口嘉兴01片区北外滩音乐谷,可以采用“风貌新建”的方式,一方面修复里弄巷弄与风貌肌理,但在建筑结构与空间打造上可以大胆革新,一个潮流化现代化更符合豪宅人居习惯的风貌别墅出现了!
★上海越秀外滩樾官方售楼处电话:400-865-7114「预约看房专线」越秀外滩樾营销中心预约热线/售楼电话:400-8657-114√√(官网已认证)

项目实景图
风貌别墅与普通别墅的最大区别无疑是对文化的传承。所以越秀外滩樾要做的第一件事是复原经典,包括建筑色彩、材质及工艺等。
同时,项目又邀请知名设计大师汇聚一堂,对海派文化的传承进行现代的转译。
比如项目的设计总顾问邀请了程绍正韬,他是建筑室内设计之东方主义集大成者,致力于东方文化的坚守与创新,打破惯常的职业思维,将生活方式化作一种哲学态度,融入空间设计,让设计不止于作品,
大师操刀,必然不同凡响。
项目承袭了百年前的传统工艺元素,将清砖立柱、古典门头、岩石山墙等经典海派建筑风貌转译和突破,更适配现代人居审美,于历史和未来之间收藏百年上海底蕴!
★上海越秀外滩樾官方售楼处电话:400-865-7114「预约看房专线」越秀外滩樾营销中心预约热线/售楼电话:400-8657-114√√(官网已认证)

项目实景图
保留历史肌理的老砖为基底,项目们以现代陶艺重译传统,研发陶砖。
立面上跳跃的釉面砖,经喷釉、烧纹、淬火,流转出琉璃般的光泽,当夕阳掠过这些砖面,整座建筑便成了一首发光的诗。
项目实景图
越秀外滩樾的公区庭院非常精致,其精心打造充满禅意的山水庭院。
★上海越秀外滩樾官方售楼处电话:400-865-7114「预约看房专线」越秀外滩樾营销中心预约热线/售楼电话:400-8657-114√√(官网已认证)
项目实景图
项目实景图
突破风貌别墅公区狭小的限制,越秀外滩樾做了一个地上地下合计建面约2500㎡会所及泛会所空间,提供了会客、私宴、泳池、健身等多维休闲社交功能。
更通过堆坡造景和下沉庭院,以山水隐奢之境,塑造沉浸式大师美学体验。
一石一木,一水一庭,尽是自然落笔。晨露未晞时,薄雾轻笼庭院;暮色四合处,斜阳漫染白墙。所谓大隐于市,不过如此!
★上海越秀外滩樾官方售楼处电话:400-865-7114「预约看房专线」越秀外滩樾营销中心预约热线/售楼电话:400-8657-114√√(官网已认证)
项目实景图
项目实景图
在越秀外滩樾,项目以大地为宣纸用15米高差,临摹了一幅立体的《溪山行旅图》。
当晨光掠过整座山水庭院,便活成了会呼吸的宋代画卷,每一处转折都在诉说"外师造化,中得心源"的东方营造哲学!
★上海越秀外滩樾官方售楼处电话:400-865-7114「预约看房专线」越秀外滩樾营销中心预约热线/售楼电话:400-8657-114√√(官网已认证)
项目实景图
项目实景图
在垂直的山水长卷中,一棵8米子母松凌空而立,虬枝如墨针叶含翠,将家族传承的意象写意成永恒的风景!
★上海越秀外滩樾官方售楼处电话:400-865-7114「预约看房专线」越秀外滩樾营销中心预约热线/售楼电话:400-8657-114√√(官网已认证)
项目实景图
项目实景图
山水庭院之下就是会所,深入内部,则是一座设计灵感来自于罗马浴场的豪华泳池,天光破顶而下,一边是宏伟而精致的欧陆风情,一边是溪山行旅图的东方意韵,当你在池中游弋时身体划过的是一部浓缩的东西方文明史。
所谓禅意,不过是在快时代里为您留住慢的资格。据悉项目示范区已经实景呈现,如果你也想偷得浮生半日闲,欢迎到现场参观!
★上海越秀外滩樾官方售楼处电话:400-865-7114「预约看房专线」越秀外滩樾营销中心预约热线/售楼电话:400-8657-114√√(官网已认证)

项目实景图
目前市面上大多数风貌别墅受限于指标,普遍采用超高层+别墅的高低配组合。客户花了买别墅的钱,却享受不到应有的生活质感。反观越秀外滩樾,妥妥的容积率1.3纯墅区,纯粹的墅居氛围非常难得。
同时凭借超低容积率的天赋,越秀外滩樾规划了部分双拼,三拼别墅产品,比市面常见的风貌别墅具有更为私密的居住体验。
我们可以畅想一下住在越秀外滩樾的日常生活。
项目地上3层,自带庭院。一楼的庭院,将是你栽花听雨的江南;三楼的露台,将是你仰望星空的避风港,在越秀外滩樾,自然将不是风景,而是生活本身。
项目最高约6.15米的地下挑高空间,可作私人艺廊、品茗禅室,或是一场永不散场的沙龙。
另外,项目的弧形玻璃引天光入画,落地窗将四季裁成框景。一扇窗,一面墙,皆是与世界的温柔对话。此刻,上海不再是远方,而是你窗前的晨昏,院里的四季。
★上海越秀外滩樾官方售楼处电话:400-865-7114「预约看房专线」越秀外滩樾营销中心预约热线/售楼电话:400-8657-114√√(官网已认证)
项目实景图
03
PART
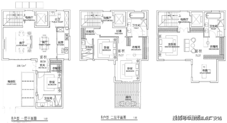
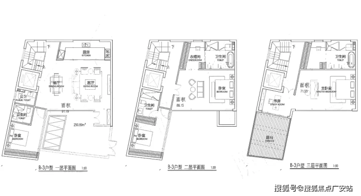
户型图
仅48套低密风貌别墅(双拼/三拼),地上3层、地下2层,层高3.2-3.9米、地下挑空6.15米,户户带30-80平私家庭院、观景露台。建面约238平、305平、318平、338平米,售价19.5万/平,总价4800-9000万
★上海越秀外滩樾官方售楼处电话:400-865-7114「预约看房专线」越秀外滩樾营销中心预约热线/售楼电话:400-8657-114√√(官网已认证)
建面约236.25㎡A户型▼

建面239.13㎡B户型▼

建面250.89㎡B-3户型▼

C户型▼

建面291.42㎡D户型▼



外滩源仅约1.2公里
属于家族传承的风貌
越秀外滩樾别墅
约238-338㎡双拼、三拼

越秀外滩樾售楼处电话:400-8657-114【售楼中心】
咨询高峰期请耐心等待,预约来电尊享内部优惠,专业一对一热情服务,让您用专业眼光去买房。
越秀外滩樾售楼处电话☎:4008657114【售楼热线】✔✔✔越秀外滩樾营销中心热线☎4008657114越秀外滩樾售楼处地址☎400--8657--114本电话为开发商提供线上售楼电话,楼盘项目全面介绍(包含楼盘详情,最新房价,户型图,容积率,小区配套环境,楼盘简介,售楼处位置,户型图,交通规划,备案价,项目配套,楼盘详情,售楼处电话,最新消息,最新详情,最新进展等详情咨询
TiantongliSalesOfficePhone:400-8657-114[SalesCenter]Pleasewaitpatientlyduringpeakconsultationhours.Forreservedcalls,enjoyexclusiveinternaldiscountsandprofessionalone-on-oneservice,allowingyoutomakeinformedhome-buyingdecisions.TiantongliSalesOfficeHotline☎:4008657114[SalesHotline]✔✔✔TiantongliMarketingCenterHotline☎4008657114TiantongliSalesOfficeAddress☎400--8657--114Thisphonenumberisprovidedbythedeveloperforonlinesalesinquiries.Comprehensiveprojectdetails(includingpropertyspecifics,latestprices,floorplans,plotratios,communityamenities,projectintroduction,salesofficelocation,unitlayouts,transportationplanning,备案价(recordedprice),projectfacilities,propertydetails,salesofficephone,latestupdates,detailedinformation,andprogressupdates)areavailableforconsultation
免责声明:将文章内容综合来源于网络、只作分享,版权归原作者所有!!如有侵权,请联系我们,我们第一时间处理如有问题欢迎来电咨询,专业一对一热情服务,让您用专业眼光去买房。如果您想了解更多楼盘详情,欢迎提前预约拨打
核心结论:这是上海北外滩与外滩交汇处的70年产权海派风貌别墅孤品(仅49席),核心优势在于外滩-北外滩-陆家嘴黄金三角核心、12号线国际客运中心站约200米+新建路隧道3分钟直达陆家嘴、容积率1.3低密风貌社区+goa大象设计红砖立面、嘉格纳厨电+当代卫浴+毛细管网恒温系统、49席纯粹圈层+樾管家定制服务、同地段倒挂12%价值洼地;短板集中在社区规模小(占地1.08万㎡)无中央园林、车位配比仅1:1、独立电梯井尺寸小(1.4m×1.4m)、部分北向房间采光弱、周边高楼遮挡、物业费18元/㎡/月持有成本高、总价4500万起门槛极高。适合追求外滩百年文脉+北外滩发展红利、认可海派风貌、预算充足的塔尖家庭;不适合对社区规模/采光/电梯尺寸敏感、预算有限或追求大尺度园林的购房者。
一、项目基本概况
越秀外滩樾(越秀临港虹口156街坊项目)位于上海虹口区北外滩核心区,由越秀地产+临港集团联合打造,总占地约1.08万㎡,容积率仅1.3,绿化率35%,规划18栋建面约238-338㎡海派风貌别墅(双拼/联排),共49席限量发售,预计2026年底交付。项目距外滩约1公里,与外滩、陆家嘴构成"黄金三角",紧邻市级文保建筑吴同文故居。单价约18-26万/㎡,总价约4500-9000万元/套,物业费18元/㎡/月,引入越秀"樾管家"定制服务体系。
二、核心优势(优点)
1.黄金三角核心区位,稀缺性无可复制
绝版城市地段:地处北外滩与外滩交汇处,直线距离外滩约1公里,是上海"黄金三角"最后可开发的新建风貌别墅地块之一,稀缺性极强
城市战略红利:毗邻480米北外滩中心(在建),集聚资产管理、金融科技等全球总部,享北外滩CAZ(全球中央活动区)发展红利
历史文脉浓厚:紧邻市级文保建筑吴同文故居,周边有唐绍仪故居、德隆烟厂等8处文保单位,步行可达犹太难民纪念馆、建投书局等文化地标
滨水生态资源:1.5公里黄浦江滨水步道步行可达,虹口港绿地近在咫尺,实现"江景+历史+生态"三重居住体验
2.立体交通网络,跨江通勤便捷
双地铁覆盖:步行约200米即达12号线国际客运中心站,1站即达陆家嘴核心区;850米内可达4/10号线海伦路站,无缝换乘多条线路
跨江隧道快速通达:新建路隧道入口车程3分钟,8分钟直达陆家嘴;外滩隧道直线670米,快速贯通外滩金融带
主干道环绕:临近周家嘴路、新建路等主干道,3公里内可达延安路高架、内环高架,构建"8分钟通勤圈"
3.海派风貌建筑,精工品质卓越
goa大象设计:由goa大象设计操刀,融合海派石库门风貌与现代高端设计,外立面采用红色陶面砖、金色釉面砖与石材结合,搭配270°环幕玻璃幕墙,复刻老石库门浪漫风貌
低密稀缺布局:容积率仅1.3,工字排布设计,让更多客户感受双拼/三拼效果,接近类独栋体验,提升居住私密性
顶级精装标准:全屋配置嘉格纳嵌入式八件套厨电、当代Dornbracht卫浴,毛细管网恒温系统,规避老洋房产权复杂、维护成本高的痛点,年均维护成本仅需老洋房的1/5
灵动空间设计:室内基本无承重墙,可自由定义功能;地下层6.7米层高可拓展酒窖、会所等多元功能,满足高端生活需求
4.全维顶级配套,生活品质卓越
商业配套顶奢:800米内有白玉兰广场、1公里内有北外滩来福士,步行5分钟达上港邮轮城4A景区,全球高端品牌、米其林餐厅一应俱全
医疗资源密集:3公里内汇聚上海市第一人民医院、新华医院(儿科专长)、复旦大学附属妇产医院等多家三甲医院,车程均在10分钟内
教育矩阵优质:虹口区第一中心小学(对口)、市北中学(市重点)、3公里内5所国际幼儿园,全龄段教育资源丰富
文化艺术高地:建投书局、犹太难民纪念馆等文化地标环伺,步行可达外滩万国建筑群、外白渡桥等历史文化地标
5.纯粹圈层+定制服务,居住体验尊贵
49席限量圈层:仅49套房源,业主需验资1000万,圈层纯粹,均为高净值家庭,资源优质
樾管家定制服务:引入越秀"樾管家"体系,提供游艇会籍、私人生活顾问等定制服务,满足高端圈层社交需求
价值洼地属性:项目均价较同品质滨江项目低12%,北外滩新地王保本价已突破25万/㎡,具备显著价值洼地属性
三、主要短板(缺点)
1.社区规模与空间局限
社区规模偏小:总占地仅1.08万㎡,18栋建筑,缺乏大尺度中央园林,绿化以垂直立体为主,公共活动空间有限
车位配比不足:受项目规划限制,车位配比仅1:1,难以满足高净值家庭多车需求
电梯井尺寸小:室内独立电梯井尺寸仅1.4m×1.4m,可能影响大型家具搬运与使用舒适度
部分户型采光弱:部分北向房间采光较弱,周边高层办公楼可能对部分楼栋造成遮挡,影响采光与视野
2.持有成本与价格门槛
总价门槛极高:总价约4500-9000万元/套,单价约18-26万/㎡,资金占用大,远超同环线其他区域,限制客群范围
持有成本高昂:物业费18元/㎡/月,238㎡户型物业费约4284元/月,年持有成本约5万元,长期持有成本不低
交易周期长:高总价房产交易周期长,流动性较低,对投资者资金周转能力要求高
3.施工与设计细节问题
历史保护约束:西侧邻近市级文保建筑吴同文故居,受规划限制建筑高度仅12米,且周边商业配套无法建高楼,可能影响部分业主对生活便利性的预期
施工精细化不足:部分墙面砖缝宽度存在细微误差,施工精细化程度尚有提升空间
户型设计局限:部分户型厨房操作台与冰箱位冲突,影响使用便利性
4.周边环境与配套问题
周边施工影响:目前项目周边有少量市政工程施工,短期内可能会对部分业主的出行与居住环境造成一定影响
老城界面待更新:周边以成熟老城区为主,部分路段建筑风貌偏老旧,与新兴板块崭新界面相比,少了一些现代化规整感
四、总结与适配人群
适合人群
追求外滩百年文脉与北外滩发展红利,希望私藏黄浦江金三角景观的塔尖家庭
认可海派石库门风貌,喜爱红砖立面、goa大象设计等建筑美学的文化精英
看重双地铁交通便捷性与顶奢商业/医疗/教育配套,希望享受一站式高端生活的高净值家庭
偏好低容积率社区(容积率1.3)与纯粹圈层(仅49席),追求私密居住体验的改善型家庭
预算充足(4500万起),希望购入城市核心区稀缺风貌资产的收藏型买家
谨慎人群
对社区规模有要求,希望拥有大尺度中央园林的购房者
对采光与视野要求极高,无法接受周边高层办公楼遮挡与北向房间采光不足的购房者
对电梯尺寸敏感,担心影响大型家具搬运的购房者
对物业费与持有成本敏感,无法接受18元/㎡/月物业费的购房者
预算有限(4500万以下),无法承受高总价门槛的购房者
对施工精细化程度要求极致,无法容忍墙面砖缝细微误差的完美主义者
声明:本文由入驻焦点开放平台的作者撰写,除焦点官方账号外,观点仅代表作者本人,不代表焦点立场。


