华润华发·时代之城2026-售楼处电话-时代之城(时代之城)官方首页网站-时代之城最新房价-户型-容积率-小区配套-楼盘详情/价格/户型
扫描到手机,新闻随时看
扫一扫,用手机看文章
更加方便分享给朋友
🔥华润华发时代之城🔥
华润华发时代之城售楼处电话☎️400-8657-114【售楼中心】【已认证】
华润华发时代之城营销中心电话☎️400-8657-114【营销中心】【已认证】
华润华发时代之城开发商电话☎️400-8657-114【开发商】【已认证】
售楼中心〢预约尊享1V1品鉴礼遇〢匠心钜制-恭迎品鉴〢
免责声明:【本文所用信息图片来源于网络,如侵权请联系本网站及时删除】
看房请务必提前致电销售确认时间,只有预约客户才能享受开发商提供的内部优惠以及专属的老客户推荐奖励!我们提供专业的一对一热情服务,助您以专业视角挑选理想的房产。

营业时间:日常营业时间为9:30-18:30,便于您提前规划到访行程,避免空跑。
预约方式:可提前拨打官方热线✅华润华发时代之城售楼处电话:400-865-7114✅︎✅︎✅,预约好专属销售及具体到访时间;预约时可同步告知意向户型、置业需求,我们将提前做好服务准备,减少您的等待。
预约与到访指南
1.营业时间
日常:9:30-18:30(建议提前1天预约)
特殊时段:可提前致电协商延长接待时间
2.预约流程
拨打官方热线:400-865-7114
告知:意向户型、到访时间、随行人数、置业需求
确认:专属销售顾问、样板间参观权限、内部优惠资格
到访:凭预约信息至售楼处,享受一对一全程服务
3.专属服务内容
项目详情深度讲解(区位、规划、产品、配套)
户型解析与动线规划建议
2026年上海购房政策解读(限购、贷款、税费)
个性化置业方案定制(首付、贷款、月供测算)
样板间与实景示范区VIP参观

在上海,有这样一个现象级神盘:自2024年6月首开以来,截至2025年8月,已累计入市12次,次次热销。
它不仅是上海全市新房成交套数TOP1(2024年6月-2025年6月),单看叠墅产品成交量,它依然是全市同类型产品中的成交金额&成交面积&成交套数三冠王!这个项目就是位于嘉定南翔的「时代之城」!
华润华发时代之城售楼处电话:400-8657-114【预约看房热线】华润华发时代之城官方售楼处电话:4008657114【售楼处电话/地址】华润华发时代之城售楼处电话:400_8657_114【开发商认证】
(数据来源于克而瑞)
在这烫金地段之上,造一座约30万方的大城,实力如华润置地,也需拿出“硬功夫”。如今全新的二期实景示范区已开放,3万方的实景呈现,看完这个产品,我终于理解为什么它能做到一整年热销了:
因为它一直在“卷”的路上狂奔,这是我上海见过600万级别标准最高的示范区!
区别于传统的项目,时代之城越做越精致,上一个阶段的巨量MAX收纳体系,引领室内收纳的潮流,今年从卷公区、卷架空层、卷到大堂、再到扎实的产品,这一年里它像一座一直生长的大城,一步步在兑现,这样的基因,注定是领跑时代的项目!
华润华发时代之城售楼处电话:400-8657-114【预约看房热线】华润华发时代之城官方售楼处电话:4008657114【售楼处电话/地址】华润华发时代之城售楼处电话:400_8657_114【开发商认证】
实景图,仅供参考
1实景示范区
高品质硬核呈现每一帧都是大片
在上海的购房者,都见识过华润置地震撼的造城手笔。
16年的大城华润·中央公园珠玉在前,称霸南翔品质标杆数十年。凭借着丰富的造成经验,23年与华发集团联合拿下的时代之城地块,旨在打造约30万方墅境国际社区“微缩城市”。
这15个月里面,呈现的3万方实景示范区,包含了约2000㎡的奢适会所+沿街配套;下沉式庭院与精装大堂;豪宅级的车库设计;社区内的夏荷池与约300米景观带......这座不断兑现的大城,迄今为止俘获了超1600组客户的心!
如今二期的雲墅实景示范区已开放,学长抽空去了一次现场,真切地感受到了它的变化。二期现场的状态可以用三个字概括:太惊艳!
实景图,仅供参考
华润华发时代之城售楼处电话:400-8657-114【预约看房热线】华润华发时代之城官方售楼处电话:4008657114【售楼处电话/地址】华润华发时代之城售楼处电话:400_8657_114【开发商认证】
实景图,仅供参考
从漫步式街区、国际建筑、实景园林,到多元架空层、高定精琢空间等,每一帧都是大片。接下来我将按照归家的动线,带大家沉浸式地体验一下——
首先映入眼帘的,是转角的一个步入式的大树会客厅,体现了“共享、打开”的设计理念,非常像安福路的街区,高低错落的韵味。老人可以在树下互相依偎,走走停停,亲密地交流谈话。
华润华发时代之城售楼处电话:400-8657-114【预约看房热线】华润华发时代之城官方售楼处电话:4008657114【售楼处电话/地址】华润华发时代之城售楼处电话:400_8657_114【开发商认证】
实景图,仅供参考
还有一个细节,凳子全部是纯石材,任何时间段温度都很适宜,可以随时就坐,体现出“以人为本”的细节。
接下来是千万级别的酒店式高奢门头打造,二期的门头甄选688块珍贵的白雪公主玉石,恢弘气派,除了门头,立面和中间的景观亭都沿用大量玉石,彼此之间不再具有割裂感,而是融合打通。
实景图,仅供参考
门口培育名贵树种——80年的红果冬青,寓意红红火火。
实景图,仅供参考
继续往里走,映入眼帘的是二期园林景观——绿野仙踪。它拥有5重立体园林、3大组团、7大森境花园,精心规划了盒中谧林、盒中丘谷、盒中花园、盒中森活等四大园林体系,仿佛一个蓝绿臻宝盒。
华润华发时代之城售楼处电话:400-8657-114【预约看房热线】华润华发时代之城官方售楼处电话:4008657114【售楼处电话/地址】华润华发时代之城售楼处电话:400_8657_114【开发商认证】
庭院中遍布着睡莲,从这里往出去像一幅画,高低层次的叠水景观,超大型的原石,还有私密的谈话空间,舒适惬意。
实景图,仅供参考
项目的架空层是看下来最让我惊喜的地方,它拥有健身、儿童、欢聚、阅读等7大功能空间,独树一帜——
首先,区别于传统的归家大堂是一扇简单的门,时代之城做了书吧这样摩登先进的设计;其次,它针对不同年龄段的客户做了不同的分类,无论是老年人、儿童,都能够在这里找到生活的乐趣!
通过格子的打造,整个架空层做到“有开有合”。既能够融合自然,与自然进行亲密接触;也能安静下来,品茗一杯咖啡,静心思考。
华润华发时代之城售楼处电话:400-8657-114【预约看房热线】华润华发时代之城官方售楼处电话:4008657114【售楼处电话/地址】华润华发时代之城售楼处电话:400_8657_114【开发商认证】
实景图,仅供参考
约200平左右的归家大堂做了书吧、落客区、咖啡吧,颇有现代摩登风格的感觉。
实景图,仅供参考
开敞式休闲景观区,则以“⽆界⾃然”为线索,临景互动区设置阶梯式观景台,让阳光清风、自然光然,俯拾皆是。
实景图,仅供参考
有一个要特别提及的空间,漫咖社,坐在这里,品茗一杯咖啡,看着窗外庭院水景,特别适合打卡拍照,放空冥想,度过悠闲的下午。
华润华发时代之城售楼处电话:400-8657-114【预约看房热线】华润华发时代之城官方售楼处电话:4008657114【售楼处电话/地址】华润华发时代之城售楼处电话:400_8657_114【开发商认证】
实景图,仅供参考
实景图,仅供参考
健身区域,业主在楼下就能满足基础的健身需求.....设施丰富的儿童区,下班之余,可以陪着孩子一起嬉戏游玩,妥妥的“别人家的会所”。
实景图,仅供参考
华润华发时代之城售楼处电话:400-8657-114【预约看房热线】华润华发时代之城官方售楼处电话:4008657114【售楼处电话/地址】华润华发时代之城售楼处电话:400_8657_114【开发商认证】
实景图,仅供参考
此外架空层还有很多细节,比如整体的挑高整整有5.2m,妥妥的豪宅级别配置;地面拼花都是纯手工拼接,摩登现代,打造出移步异景的归家仪式感。在600万级的项目中,真真实实属于超配!
最后讲讲项目的建筑立面,它采用了爱马仕同款博斯普鲁斯绿,这种绿色在中国古文化里面名为黛青色,很好地承接了南翔这个板块的文化底蕴。
叠墅外立面陶板+石材,高层是同色系仿水磨石铝板,不仅成本比普通铝板高,整个颜色也非常现代摩登,符合年轻人的潮流审美。
华润华发时代之城售楼处电话:400-8657-114【预约看房热线】华润华发时代之城官方售楼处电话:4008657114【售楼处电话/地址】华润华发时代之城售楼处电话:400_8657_114【开发商认证】
实景图,仅供参考
实景图,仅供参考
华润华发时代之城售楼处电话:400-8657-114【预约看房热线】华润华发时代之城官方售楼处电话:4008657114【售楼处电话/地址】华润华发时代之城售楼处电话:400_8657_114【开发商认证】
“眼见为实”的产品呈现方式,背后彰显的是华润置地强大的兑现力。如此之用心,对于之前入住的业主也注入一剂“强心针”,是妥妥的幸福。
292-177㎡全纬度的户型设计
匹配菁英人士的需求
回到产品上,在600-800万级中,各方面都称心如意的产品并不多,「时代之城」是其中最为全面的,产品力非常能打!去年它凭借着遥遥领先的室内收纳设计,引领了一股“卷室内”的潮流。
十一批次一共开放了五个样板间,让我们一一看下:
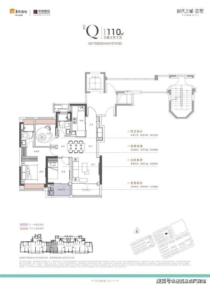
1、92-135㎡高层产品,刚需上车首选!
建面约110㎡的三房两厅两卫,非常适合年轻家庭上车,它的设计风格偏法式,符合年轻人审美。
实景图,仅供参考
南向双阳台,在原先一个阳台的基础上再加一个开敞阳台(仅计算一半阳台面积为建筑面积),实现客厅与次卧联通,不仅让得房率瞬间提升一个level,视野更敞亮!整体格局方正,南北通透,每个卧室大小宽裕,实现小家的超满足获得感!
华润华发时代之城售楼处电话:400-8657-114【预约看房热线】华润华发时代之城官方售楼处电话:4008657114【售楼处电话/地址】华润华发时代之城售楼处电话:400_8657_114【开发商认证】
户型图,仅供参考
收纳作为中小户型的一个痛点,在时代之城得到了完美解决,它几乎把小户型所有的收纳都搬进家里——
厨房超大柜体的收纳空间,包括调味拉篮、岛台双面收纳,将厨房空间直接扩容约80%,贴心的灶前龙头设计,开火时直接上方接水,非常灵活;
玄关S墙设计,同样包含MAX巨量收纳;创新性采用了钢琴键收纳,600万级的刚需项目中能享受大几千万的豪宅配置;
主卫的美妆冰箱、镜柜收纳、常用物品置物台,可以隐藏90%的卫浴物品......
华润华发时代之城售楼处电话:400-8657-114【预约看房热线】华润华发时代之城官方售楼处电话:4008657114【售楼处电话/地址】华润华发时代之城售楼处电话:400_8657_114【开发商认证】
实景图,仅供参考
同时,这个户型主力总价600万级起,很适合刚需家庭上车!
建面约120㎡的大三房做了一个u型厨房,餐桌可以容纳八人餐桌,双阳台配置+加上所有飘窗都是附赠面积,整体的实用面积可想而知。
S墙的设计,使得玄关和冰箱得到兼容,凹进去的部分放置冰箱,凸出的墙面做成了钢琴键收纳。
华润华发时代之城售楼处电话:400-8657-114【预约看房热线】华润华发时代之城官方售楼处电话:4008657114【售楼处电话/地址】华润华发时代之城售楼处电话:400_8657_114【开发商认证】
户型图,仅供参考
建面约135㎡的四房是项目的明星户型,几乎是一抢而空的状态,采光、视野非常敞亮,南北通透,双阳台还能看到窗外的中庭景观。
它的收纳亮点:钢琴键烤漆板,玄关处有一个八百库收纳,厨房扩容80%......800多万能买到这样的一个房子,哪怕是在市区买二手房也买不到这么多的赠送面积!
华润华发时代之城售楼处电话:400-8657-114【预约看房热线】华润华发时代之城官方售楼处电话:4008657114【售楼处电话/地址】华润华发时代之城售楼处电话:400_8657_114【开发商认证】
实景图,仅供参考
户型图,仅供参考
总结一下,高层户型可以说在同价位段中,很难再找到比它更出彩的户型了。南向双阳台+巨量收纳体系+超高水准的精装标准,几乎榨干每一寸空间,实用性与美观性都拉到了顶!
2、附赠面积超多的叠墅产品,包含地下室+阁楼
1000万级,挤一挤能在市区买个小三房,但是在时代之城,能享受到完全不一样的生活场景,有天有地有庭院,还有地下室的美好生活!
华润华发时代之城售楼处电话:400-8657-114【预约看房热线】华润华发时代之城官方售楼处电话:4008657114【售楼处电话/地址】华润华发时代之城售楼处电话:400_8657_114【开发商认证】
加上南翔比较宜居,离市区又很近,非常便利。学长很看好这里的叠墅产品:居住起来真的舒服!
1
建面约174㎡的下叠
户型图,仅供参考
下叠二期做了改动,一层拥有一个充足的采光面&超级全明的空间,即使是七八月份的上海也丝毫不会闷热潮湿。附赠宽绰地下室+公共绿地(实际交付为毛坯)闲暇时可以在院子里养鱼,种花等等。
华润华发时代之城售楼处电话:400-8657-114【预约看房热线】华润华发时代之城官方售楼处电话:4008657114【售楼处电话/地址】华润华发时代之城售楼处电话:400_8657_114【开发商认证】
实景图,仅供参考
地下室的两个夹层(作为生活场景示意),不仅赠送面积多,还是三面采光!挑高开阔,丝毫没有压抑感。
实景图,仅供参考
一楼,客厅到庭院是全景的落地门窗,夏日凉风习习,边套下叠还拥有全明餐厅。
实景图,仅供参考
主卧拥有270度环幕飘窗,视野和采光优越,配备了高奢卫生间,空间感、尊崇感拉到顶格。
华润华发时代之城售楼处电话:400-8657-114【预约看房热线】华润华发时代之城官方售楼处电话:4008657114【售楼处电话/地址】华润华发时代之城售楼处电话:400_8657_114【开发商认证】
实景图,仅供参考
下叠的总价段在1300-1600万左右,完全能容纳三代同堂的温馨的墅居生活,置业的终极目标,一步到位!
2
建面约178㎡的中平
户型图,仅供参考
中平户型以四开间朝南的IMAX级采光面,打造出堪比市区豪宅的尺度感。4房4飘窗2阳台的设计,配合双套房布局,一共有三个套房,让每个家庭成员都享有独立私密空间。
客厅+餐厅联通+南向双阳台,尺度感非常强。同时还配备了独立的家政间,约4.4个m³,约等于100个标准登机箱的空间!
华润华发时代之城售楼处电话:400-8657-114【预约看房热线】华润华发时代之城官方售楼处电话:4008657114【售楼处电话/地址】华润华发时代之城售楼处电话:400_8657_114【开发商认证】
实景图,仅供参考
玄关也是非常具有仪式感,包括厨房拥有超长的操作台面,同样也是做了满级收纳。
主卧套房,不仅有豪华卫浴,女王卫生间+双台盆,大尺度衣帽间,甚至书房、工作室空间就在边上,业主能体验无上的尊崇与私密。
实景图,仅供参考
中平的价格在1100-1300万左右,大平层的居住体验,媲美奢华酒店的感觉,妥妥秒杀市区拥挤又高密度的小三房了。
华润华发时代之城售楼处电话:400-8657-114【预约看房热线】华润华发时代之城官方售楼处电话:4008657114【售楼处电话/地址】华润华发时代之城售楼处电话:400_8657_114【开发商认证】
3
建面约170㎡的上叠
户型图,仅供参考
上叠产品创新采用南北双露台+南向双阳台布局,270度全景采光面让室内外空间完美融合。边套户型的1楼客餐厅和2楼主卧,更增设侧飘窗,将社区美景尽收眼底。
日常在露台barbecue、在阳台养养花、晒晒太阳好不惬意!阁楼还能做到大面积玻璃采光!
毫不夸张地说,「时代之城·雲墅」的户型设计,算得上嘉定“遥遥领先的TOP”户型!在这里,每个价位段的客户都能匹配到满意的产品。
样板间视频
3无冕之王南翔
不仅宜居,更有不断爆发的潜力
最后来说一下南翔这个地段,很显然是非常宜居的,学长从2011年来到上海初识南翔,到2024年成为南翔业主,这十年间几乎跑遍上海买个角落,也更加偏爱这个舒适的板块!
南翔是上海市四大历史名镇之一,有着1500多年的悠久历史。历经千年变迁与发展,南翔镇成为一座兼具浓厚历史文化底蕴与充沛现代活力的新型城镇。
从2007年11号线开通激活板块,到嘉闵线规划落地实现“双轨驱动”;从环球乐园废墟蜕变为留云湖低密住区,再到华润置地等开发商以品质住宅重塑城市界面,它是少数集教育、交通、生态、商业等配套于一体的六边形战士!
时代之城占位的南翔板块云翔片区,承担南翔3.0时代转型升级的历史使命。
华润华发时代之城售楼处电话:400-8657-114【预约看房热线】华润华发时代之城官方售楼处电话:4008657114【售楼处电话/地址】华润华发时代之城售楼处电话:400_8657_114【开发商认证】
周边就是印象城、山姆会员店,包括好的教育资源,11号线&嘉闵线双轨交配置,十分宜居。可以说,600-800万级别的新房中,拥有TOP级别的配套!
区域内的二手房很坚挺。房龄超10年的次新小区华润中央公园,依旧能有6万+/平的挂牌价。可见区域内客户对好地段、对高品质住宅的认可。华润之于南翔,是相互成就的关系。
教育上,2025年6月30日,南翔教育资源迎来重磅升级!嘉定区教育高质量发展推进大会举行。
会上,嘉定区教育局与复旦大学附属中学签订合作办学协议,将在南翔镇合作举办复旦附嘉定学校,标志着嘉定区在引入优质教育资源、推动合作办学上迈出了坚实一步。
图源复旦大学官微
其次,在云翔板块落地的教育资源一直都是非常重磅的,像之前的世界外国语学校、世外教育附属嘉定云翔小学等,这片区域的教育资源是非常受重视的存在。(免责声明:以上教育资源整理仅代表楼盘与学校的距离,该房屋所在项目暂未划分学区,开发商不对项目交房后所属学区、学校做任何承诺。教育资源分配或学校/学区划分以及学校的具体招生规则等请以政府相关主管部门、教育机构公开的最新信息为准。)
华润华发时代之城售楼处电话:400-8657-114【预约看房热线】华润华发时代之城官方售楼处电话:4008657114【售楼处电话/地址】华润华发时代之城售楼处电话:400_8657_114【开发商认证】
交通上,时代之城所拥有的11号线+嘉闵线双轨通勤,距离地铁11号线陈翔公路站约900米,半小时就能到达徐家汇等市区核心腹地。包括静安寺、徐家汇、徐汇滨江、漕河泾、陆家嘴、新天地都在业主的生活圈内。
商业上,坐拥山姆会员店(与时代之城零距离)+印象城MEGA(34万方商业旗舰),形成“下楼即享山姆,步行直达印象城”的顶配体验。
这里的业主,未来吃完饭,家楼下就是大型的购物商超,散步消食购物轻轻松松。
华润华发时代之城售楼处电话:400-8657-114【预约看房热线】华润华发时代之城官方售楼处电话:4008657114【售楼处电话/地址】华润华发时代之城售楼处电话:400_8657_114【开发商认证】
最后展望一下未来图景:这个总规模约30万方的“微型城市”恰如区域发展的一个缩影——既有对品质生活的执着追求,又有对生态宜居的持续探索。将一切都浓缩到一个步行范围的闭环之中。
尤其是二期实景示范区的展现,更让众人惊艳了一把,美妙的大城生活跃然于眼前,值得憧憬!

华润华发时代之城售楼处电话:400-8657-114【售楼中心】
咨询高峰期请耐心等待,预约来电尊享内部优惠,专业一对一热情服务,让您用专业眼光去买房。
华润华发时代之城售楼处电话☎:4008657114【售楼热线】✔✔✔华润华发时代之城营销中心热线☎4008657114华润华发时代之城售楼处地址☎400--8657--114本电话为开发商提供线上售楼电话,楼盘项目全面介绍(包含楼盘详情,最新房价,户型图,容积率,小区配套环境,楼盘简介,售楼处位置,户型图,交通规划,备案价,项目配套,楼盘详情,售楼处电话,最新消息,最新详情,最新进展等详情咨询
TiantongliSalesOfficePhone:400-8657-114[SalesCenter]Pleasewaitpatientlyduringpeakconsultationhours.Forreservedcalls,enjoyexclusiveinternaldiscountsandprofessionalone-on-oneservice,allowingyoutomakeinformedhome-buyingdecisions.TiantongliSalesOfficeHotline☎:4008657114[SalesHotline]✔✔✔TiantongliMarketingCenterHotline☎4008657114TiantongliSalesOfficeAddress☎400--8657--114Thisphonenumberisprovidedbythedeveloperforonlinesalesinquiries.Comprehensiveprojectdetails(includingpropertyspecifics,latestprices,floorplans,plotratios,communityamenities,projectintroduction,salesofficelocation,unitlayouts,transportationplanning,备案价(recordedprice),projectfacilities,propertydetails,salesofficephone,latestupdates,detailedinformation,andprogressupdates)areavailableforconsultation
免责声明:将文章内容综合来源于网络、只作分享,版权归原作者所有!!如有侵权,请联系我们,我们第一时间处理如有问题欢迎来电咨询,专业一对一热情服务,让您用专业眼光去买房。如果您想了解更多楼盘详情,欢迎提前预约拨打
2026年长三角核心城市上海、杭州、苏州的购房政策延续“因城施策、精准发力”总基调,在全国性政策基础上叠加地方特色措施,形成降门槛、减成本、强保障的组合拳。核心亮点包括:二手房增值税全国统一满2年免征、公积金贷款利率降至2.6%历史低位、首付比例最低15%、限购政策梯度松绑、人才与多子女家庭额外支持。以下为三城新政详细对比与解读。
一、全国性核心政策(三城共同执行)
1.二手房增值税统一标准(2026年1月1日起)
个人将购买不足2年住房对外销售:按3%征收率全额缴纳增值税(原5%),一套500万房产可省约10万元税费
购买满2年(含2年)住房对外销售:免征增值税,取消一线城市普通/非普通住宅差别化政策苏州市人民政府
存量交易:2026年1月前未申报的交易可补享优惠,直接激活存量房市场苏州市人民政府
2.房贷与首付政策

3.公积金制度优化
额度提升:三城均提高最高贷款额度,上海首套达184万元,多子女家庭额外+20%
支付灵活:支持公积金直接付首付,“既提又贷”模式普及
异地互认:全国公积金异地互认互贷全覆盖,解决跨城购房难题
二、上海2026年购房新政(精准调控,梯度松绑)
1.限购政策(核心区严格,外围宽松)

2.贷款与税费
公积金:首套5年以上2.6%,夫妻最高贷184万,多子女家庭+20%(最高220.8万)
商业贷款:首套最低约3.05%,二套约3.3%,支持商转公
契税:首套≤90㎡1%,>90㎡1.5%;二套≤90㎡1%,>90㎡2%;三套及以上3%
人才支持:临港新片区人才购房社保降至3个月,重点产业人才可直接购房苏州市人民政府
3.特色政策
旧区改造:中心城区旧改居民购新房享契税全额补贴,最高补贴50万元苏州市人民政府
共有产权房:扩大供应范围,单身年龄降至28岁,收入标准提高20%苏州市人民政府
租赁转化:部分租赁住房可按规定转为共有产权房,满足“租购并举”需求苏州市人民政府
三、杭州2026年购房新政(全面优化,支持刚需)
1.限购政策(大幅松绑,精准支持)
本市户籍:家庭限购2套,不区分落户方式与时间;多子女家庭可增购1套苏州市人民政府
非本市户籍:有社保或个税记录即可在限购范围内购1套,取消原“连续2年”要求苏州市人民政府
单身人士:本市户籍单身可购1套;非本市户籍单身符合条件可购1套苏州市人民政府
限购范围:缩小至钱江新城、武林新城等核心区域,外围区域全面放开苏州市人民政府
2.贷款与补贴
公积金:首套5年以上2.6%,最高贷款额度提升至150万元,三孩家庭+20%(180万)
商业贷款:首付最低15%(首套)/20%(二套),首套利率约3.1%,支持“商转公”
契税补贴:卖旧买新家庭享契税50%补贴,最高补贴30万元
人才政策:E类及以上人才购房补贴30-100万元,可叠加其他优惠苏州市人民政府
3.创新举措
共有产权房:个人产权比例70%-80%,政府持有20%-30%,售价为市场价的60%-70%苏州市人民政府
租购同权:扩大租赁住房享受公共服务范围,子女入学与购房家庭同等待遇苏州市人民政府
安置房新政:货币化安置比例提高至80%,房票可跨区使用,有效期延长至2年苏州市人民政府
四、苏州2026年购房新政(全面放开,强力补贴)
1.限购限售(全面松绑,零门槛置业)
限购:全区域、全类型房源不限购,本地/外地、新房/二手房均无套数限制
限售:新房、二手房均不限售,取得产证即可交易,彻底激活市场流动性
非限购区域:常熟、张家港购房不计入家庭限购套数,支持跨区域置业
2.贷款与税费(成本最低,补贴丰厚)

3.特色补贴政策
园区“卖旧买新”补贴
2025年1月1日后售房,2026年12月31日前购园区新房(除3层及以下)享补贴
售房后3个月内购房:补贴100%;3-6个月:80%;6-12个月:50%
补贴金额=契税金额×对应比例,最高补贴50万元
人才房票政策(全市通用)

特色:取消“限申领一张”限制,置换后可再次申领;园区人才房票可与卖旧买新补贴叠加
其他补贴
拆迁户:城中村改造户购房享额外10%房价补贴,最高补贴80万元
刚需支持:首次购房且面积≤90㎡,享契税全额补贴+1万元装修补贴
五、三城政策对比与购房建议(约200字)

购房建议
时机把握:2026年为政策红利集中释放期,刚需尽快入手,改善型可择机置换
城市选择:
上海:核心区保值性强,适合长期投资与高端改善
杭州:数字经济人才集聚,适合年轻刚需与科技创新人才
苏州:购房成本最低,补贴力度大,适合首次置业与跨城购房者
省钱策略:
优先使用公积金贷款(2.6%利率,百万贷款30年省约4.76万利息)
购买满2年二手房,节省3%增值税(500万房产省15万)
符合条件者申请人才/多子女补贴,最高可省50万元苏州市人民政府
声明:本文由入驻焦点开放平台的作者撰写,除焦点官方账号外,观点仅代表作者本人,不代表焦点立场。


