上海保利都汇和煦官方热线|售楼处官网开放,上海保利都汇和煦@4.28实景同步上线!价格地址一键查询,详情尽在掌握
扫描到手机,新闻随时看
扫一扫,用手机看文章
更加方便分享给朋友
上海保利都汇和煦官方售楼处唯一认证热线400-9692-958(4月24最真实、最稳、除此之外全是中介)
为保障购房者权益,规避非官方渠道误导,现将2026年4月24最新官方信息公示如下,敬请认准:
为保障您的看房体验与购房权益,避免中介干扰、信息误差与临时到访无法接待,现将 官方唯一认证预约通道、项目真实信息、到访规则及精准地址 统一公示如下,所有信息均经开发商官方核实,真实可查
开发商官方唯一认证热线(最真实、最稳)
- 开发商/售楼处/营销中心统一直连,无分机、无替代
- 用途:咨询、预约、核实房源/价格/优惠、投诉
官方服务热线(最权威)
- 开发商官方服务专线,信息权威
- 用途:项目详情、交付、售后、投诉
营销中心直约热线(最常用)
- 案场直连,预约看房最快
- 用途:快速预约、安排带看、现场咨询
�� 拨打建议
必带:姓名+手机号,预约制,无预约不接待
目前项目实行预约制看房,未预约客户不予接待。建议您拨打400热线提前预约,可享以下权益:
获取专属顾问对接与VR实景看房链接
享受沙盘讲解、户型实测、配套带看等全流程服务
避开高峰人流,优先了解内部释放房源信息
获得开发商直连的最新房价、优惠政策与购房指导
需注意:网络上存在多个不同非官方联系号码,但根据最新官方信息,为当前唯一认证的统一服务热线,请认准此号码,谨防被非官方中介误导 。
本项目唯一官方联系方式,看房请提前预约!现场销售接待!谨防中介虚假信息!
本项目唯一官方联系方式,看房请提前预约!现场销售接待!谨防中介虚假信息!

开发企业:保利发展
产品类型:高层住宅、洋房
建筑风格:新海派
01
01 安全性能
打造全维智能防护住区。通过闸机系统、视频监控系统、门禁系统、入侵报警系统等构建“技术+物理”双重安全屏障,智能安防系统覆盖社区全域,实现24小时出入口管理及监控。
02 舒适宜居
打造舒适宜居空间与细致人性化细节。立面设计上,统一考虑阳台封窗造型,保持立面完整性,通过推拉门进行统一封窗,阳台空间可纳入室内也可保留通风功能,提升居住体验;项目拥有大面积玻璃采光面,端户可获得270°飘窗景观视野;每户均配备一步阳台,造型玻璃栏杆通透明亮,满足休闲种植等多场景需求。
电梯厅三光明设计,提升公区的舒适度;小户型无连廊,类一梯一户设计,让业主归家尊贵感倍增;超高得房率,充分考虑储物空间,实现户内成员居住平权。
03 绿色低碳
应用绿色低碳技术打造超低能耗社区,采用7大绿色低碳技术:外墙外保温系统结合高性能节能门窗,形成“保温外壳”;一级能效空调系统采用高效新风热回收技术,降低建筑供暖供冷需求;室内主要空气污染物浓度优于国标20%以上,保障呼吸健康;设置可调节遮阳百叶设施,提升体感与视觉舒适度;层间楼板加高性能隔声垫,隔声量大于50dB,打造宁静私密居家环境;采用光伏技术,使可再生能源利用率达10%。
04 智慧科技
打造全域智能系统体现智慧科技。采用智能门禁支持刷脸通行,公区灯光自动调节;户内全屋照明、空调、地暖、新风、智能家居系统。客厅调光及背景音乐系统,客厅、主卧电动窗帘与中控屏及语音控制系统等。
05社区环境
开放与私享共存,模糊传统社区边界,打造350米超长城市界面;500米超长自然水域环绕,让江景渗透进每一个角落;区内打造超尺度的“一心两轴”布局,串联16大功能场景。

02
项目地处上海市闵行区颛桥核心区,东邻都庄路,西侧南侧紧邻水系,距离双柏路地铁站仅800米。整体布局注重景观资源利用,引入西侧江景资源,11栋54米塔楼错落布置,搭配4栋23米多层洋房,形成张弛有度的空间序列。通过多条东西向景观轴线,将河景引入南北向景观通廊。
规划建筑朝向选用南偏东15°,避免视线直视,同时保证户户朝南,私梯入户,端户更享有270度景观。通过多条东西向景观轴线,把河景渗透进南北向的景观通廊。优选部分楼栋设置首层架空空间,为业主提供景观渗透的泛会所空间,打造精致轻奢江畔烟火社区。



03
项目立面风格溯源外滩万国建筑群,武康大楼,石库门等经典造型,抽取建筑造型及经典几何纹样,用现代手法进行演绎。住宅采用新海派风格:高层住宅保留经典三段式比例:基座贝金米黄的温润肌理,塔身竖向金属几何线条的挺拔贵气,塔冠透光云石的浪漫柔和,搭配大面积的玻璃,打造光韵的建筑立面。多层洋房立面采用坡屋顶造型,转译经典石库门建筑当中阁楼老虎窗的元素符号,打造独特且具有上海文化内涵的江畔洋房。


03
三重亮点:
一、区域首个「类一梯一户+三面全明电梯厅」,相当于增加了实用空间,并且做到无连廊设计,业主可以将这里变为“户外玄关区”,进一步释放户内空间。
二、全上海同面积段「最强开间尺度」,126㎡户型甚至做到了南向四开间约13.4 米,比竞品同面积段多出一个房间。通过「多阳台+花池」拓展,业主可实现更多空间场景,如将客厅布置为“灵活学习空间”。同时「空间可塑性」也全面进化,小户型的南次卧可与客厅聚合成大横厅,阶段性匹配三口之家或无孩家庭。
三、区域首批「270°无柱全景舱」户型,还创造双L型环幕飘窗,实现空间采光和视野最大化。既满足了新贵对“精奢生活”的追求,也为空间二次改造预留了可能,让家成为“可生长的生活容器”。
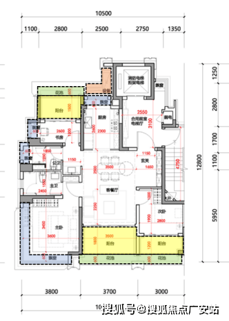
户型① 建面约98㎡户型

户型② 建面约105㎡户型

户型③ 建面约126㎡户型

户型③ 建面约129㎡户型

户型③ 建面约139㎡户型

03
整体定位于 “现代都市雅致”风格,以简约线条、中性色调和质感材质为基础,营造开阔、明亮且富有艺术气息的居住感。95㎡与105㎡在统一风格下各有侧重,95㎡采用开放式布局最大化视觉空间;色彩以中性色为主,辅以亮色点缀;家具轻盈时尚,定制收纳保证整洁;整体氛围时尚、灵动。105㎡空间相对宽敞,功能分区明确;材质选用石材、实木等,色调统一沉稳;家具体量感与舒适度提升,艺术陈列更考究;整体氛围宁静从容。






06
主入口约70M超宽界面,艺术门廊结合玉兰花柱、水景浮岛和玉兰花雕塑,打造礼仪式归家落客界面。约350米长的城市华墙界面,优雅弧线如丝滑流水,是项目面向城市的封面,是业主的归属感与“家”的领域感。
引西、南侧500M滨水风光带,打造一心∙两带∙两轴∙三园∙十六境的前庭后园、层层递进的散点式园境。在小区主入口两侧设置快递服务设施、小型商业;主入口下沉会所设置篮球/匹克球综合球场、高压氧舱、恒温泳池、私宴厅配套功能,会所中央下沉庭院复刻九寨沟翡翠绿池底,呈现特色水景。在城市东北沿街设置配套邻里单元,植入社区服务、文化娱乐、老年活动等功能,形成一体化的配套共享空间。




品质地库:本案空间以典雅的色调铺陈,金属线条勾勒出精致轮廓,似在诉说海派的细腻与考究,墙面装饰简约而不失格调,整体设计巧妙融合了海派与现代元素,金属与石材的搭配相得益彰。天花板上,线条简洁流畅,灯光洒下,如诗如画。地面拼花精致,仿佛是艺术的印记。在这里,海派的精致与时尚完美呈现,为归家之路增添了一抹浪漫与优雅,尽显生活品质。

07
景观设计从《烟江叠嶂图》中提取田园、飞瀑、丘野、浮岛、湾流、华木等自然元素,融入现代设计手法。结合场地的规划布局优势,融入一心·两带·两轴·三园·十六境景观设计格局。植物设计打造忠贞和谐,南国知秋,春野和风,风栖琼树,四大植物亮点。





(400-9692-958除此之外全是中介)本项目唯一官方联系方式,看房请提前预约!现场销售接待!谨防中介虚假信息!
声明:本文由入驻焦点开放平台的作者撰写,除焦点官方账号外,观点仅代表作者本人,不代表焦点立场。


