全面评测:金众柏悦公馆,一个优缺点都很明显的楼盘,价值几何?
扫描到手机,新闻随时看
扫一扫,用手机看文章
更加方便分享给朋友
东莞塘厦金众柏悦公馆售楼处热线:400-8123-554(来电尊享内部优惠活动)
信步转场之间,由山野归林间,是一方返璞归真的自然禅境,开阔的绿野有悠闲的雕塑,似踱步于浮洲,如停驻于绿波,写意舒朗的自然景观通过景窗、转角、格栅变幻出更多的层次和感受,且将这份适意融入眼前的自然风物中,随心去畅游。
项目基础信息东莞塘厦金众柏悦公馆售楼处热线:400-8123-554
占地面积:77001.4平方米
建筑面积:255108平方米
容积率:2.0-2.5
总户数:1529户
停车位:停车位1013个
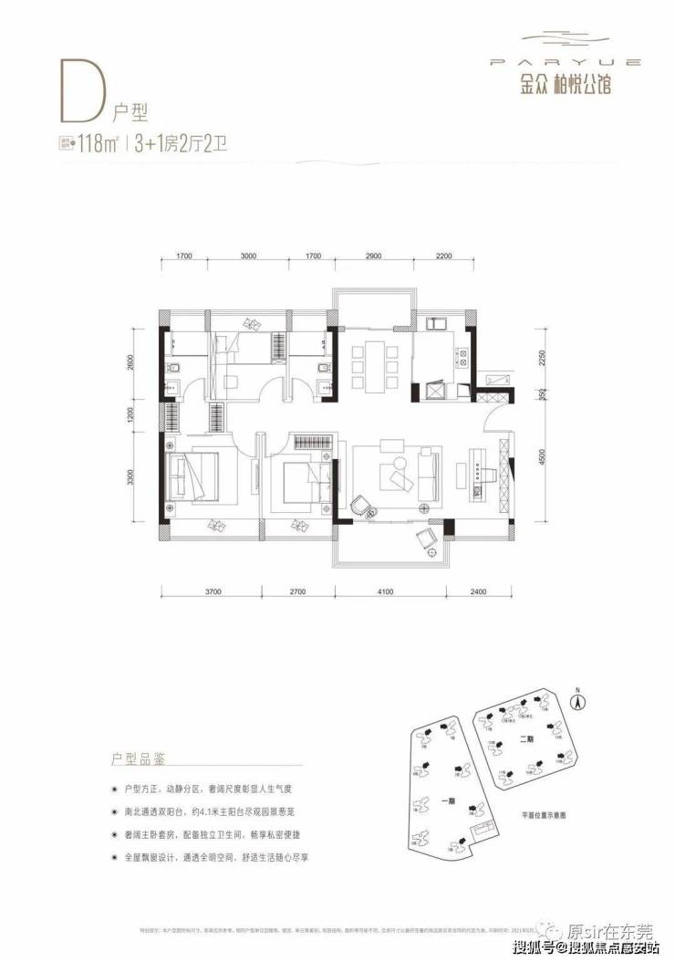
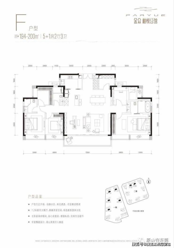
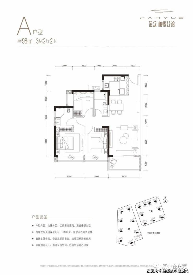
户型面积:约98-200㎡3-6房
项目特色:品牌开发商、一线湖景、带德系装修,低密社区、纯粹洋房
项目配套:架空层泛会所、公立幼儿园、分龄段无边界泳池、滨水公园
山水之间,万物生。内在山水隔而不断,设计将内湖私藏于中庭,涌泉、镜面池水,涟漪阵阵,清虚曼妙,临湖而照、微风而立,令喧嚣与嘈杂逐渐归于宁静,让身心回归山湖的清和。
中国造园哲学讲求自然而至,设计师在“山湖”的题眼基础之上,将自然艺术与东方文化植入景观空间,既注重礼序人文,更不失自然趣味,隔而不断,气韵流动。
百万旧改
周边品牌开发商汇聚,区域价值蝶变升级,潜力无限
项目所在区域为塘厦旧改最快得以兑现的138片区,138片区更新总用地面积约172公顷,将采取“三心、四轴、一环、多片区”的空间布局,三横四纵交通路网,星城上午空间,休闲空间,商贸空间三大重要城市节点,

交通便捷
1枢纽:东莞南站已开通,距离项目仅3公里,汇聚赣深高铁(已开通)、中虎龙城际轨道(规划中)、东莞R1线支线(规划中)。
2高铁:赣深高铁(已开通)、中虎龙城际轻轨(规划中)。其中赣深高铁(已开通)将直通深圳北站。
4地铁:东莞R1线支线(规划中)、东莞R4线(规划中)、东莞15号线(规划中)、东莞16号线(规划中)。其中东莞R1线支线(规划中)未来接驳深圳22号线,直达深圳龙华、福田。
4高速:珠三角环线、从莞深高速、惠塘高速、深外环高速。本项目距离高速收费站仅约3公里。
东莞南站 1 站抵达深圳,10 分钟通勤莞深

坐拥 6 水库 5 公园 1 球会资源, 背靠 26.3 平方公里大屏障森林公园,空气中负离子含量在 7500/cm3以上,抱山揽水宜居典范,置身天然氧吧。

户型鉴赏
东莞塘厦金众柏悦公馆售楼处热线:400-8123-554(来电尊享内部优惠活动)
声明:本文由入驻焦点开放平台的作者撰写,除焦点官方账号外,观点仅代表作者本人,不代表焦点立场。


