保利誉滨江(售楼处)首页网站-2025保利誉滨江营销中心(售楼处电话)-保利誉滨江欢迎您-小区配套-户型-价格-地址-楼盘详情-户型-售楼处电话-交房时间

搜狐焦点广安站 2025-10-03 08:41:05
用手机看
扫描到手机,新闻随时看

扫一扫,用手机看文章
更加方便分享给朋友

保利誉滨江售楼处电话:400-887-5663✔✔【预约热线】保利誉滨江售楼处营销中心:400-887-5663保利誉滨江售楼处电话/地址☎:400-887-5663(开发商热线)如有问题欢迎来电咨询,专业一对一热情服务,让您用专业眼光去买房。

保利誉滨江售楼处电话:400-887-5663✔✔【预约热线】保利誉滨江售楼处营销中心:400-887-5663保利誉滨江售楼处电话/地址☎:400-887-5663(开发商热线)如有问题欢迎来电咨询,专业一对一热情服务,让您用专业眼光去买房。

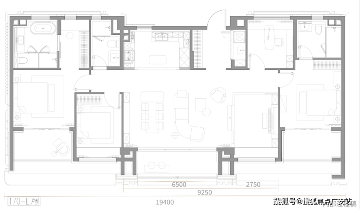
170㎡超劲爆户型

南向6面宽

南向6面宽设计,总面宽约19.4M!

其中,客厅含活动室约9.25M,不含活动室客厅约6.5M

这个阔绰尺度感和舒适感,媲美300-400㎡的大平层!

采光无敌,景观MAX,东外滩的首个3.5代宅果然是全方面碾压的!

据悉,保利·誉滨项目更是代建约6000㎡量子公园,成为项目专属后花园。

量子公园以多重维度立体空间,互相叠加交织进行规划,同时加入科技感与潮流感,以链接复兴岛,成为迭代新的活力聚场;

保利誉滨江售楼处电话:400-887-5663✔✔【预约热线】保利誉滨江售楼处营销中心:400-887-5663保利誉滨江售楼处电话/地址☎:400-887-5663(开发商热线)如有问题欢迎来电咨询,专业一对一热情服务,让您用专业眼光去买房。

契合复兴岛“复兴时刻12刻度”理念,形成全龄友好的休闲交流活力场所;同时延续复兴岛的植物脉络,形成四季观赏区。

保利誉滨江售楼处电话:400-887-5663✔✔【预约热线】保利誉滨江售楼处营销中心:400-887-5663保利誉滨江售楼处电话/地址☎:400-887-5663(开发商热线)如有问题欢迎来电咨询,专业一对一热情服务,让您用专业眼光去买房。

保利誉滨江售楼处电话:400-887-5663✔✔【预约热线】保利誉滨江售楼处营销中心:400-887-5663保利誉滨江售楼处电话/地址☎:400-887-5663(开发商热线)如有问题欢迎来电咨询,专业一对一热情服务,让您用专业眼光去买房。

据悉,社区内将部以“三轴五园”巨制打造8大园林场景。

下沉式的庭院+架空层,带来立体式多重景观园林的体验。

未来,量子公园与项目内部景观公园形成内外双公园,重构人与自然的关系。

看这个园林效果图,颜值拉爆,和绿城潮鸣东方非常接近!

保利誉滨江售楼处电话:400-887-5663✔✔【预约热线】保利誉滨江售楼处营销中心:400-887-5663保利誉滨江售楼处电话/地址☎:400-887-5663(开发商热线)如有问题欢迎来电咨询,专业一对一热情服务,让您用专业眼光去买房。

社区规划约1500㎡地下会所,涵盖健身房、洽谈区、恒温泳池、瑜伽室等功能空间,

且健身房和洽谈区采光通透性都非常好~

地下会所+架空层泛会所,整体体量约3000㎡,保利置业超大手笔打造项目公区,

为高净值人群圈层提供高品质的生活场域!

超级产品力加持,保利誉滨江作为保利 “誉系3.0”在上海的迭代革新之作,

未来一定是整个杨浦滨江的全新人居标杆!

保利誉滨江售楼处电话:400-887-5663✔✔【预约热线】保利誉滨江售楼处营销中心:400-887-5663保利誉滨江售楼处电话/地址☎:400-887-5663(开发商热线)如有问题欢迎来电咨询,专业一对一热情服务,让您用专业眼光去买房。

一、名称与定位

楼盘的名称往往反映了其市场定位,通常包含一定的地域特色或者设计理念。比如,“某某广场”可能意味着该楼盘是一个集住宅、商业、办公等多功能于一体的综合体;“某某苑”则可能是一个以住宅为主的优雅小区。此外,楼盘名称也可能反映其特色或优势,如“湖景楼盘”、“学区房”等。

二、地理位置与环境

地理位置是楼盘价值的重要因素之一。基本信息中会包含楼盘的具体地址、周边交通情况、周边配套设施。同时,环境信息也非常重要,包括自然景观、社区环境等。这些因素对于购房者来说,都是决定购买意向的重要因素。

三、建筑信息

建筑信息是楼盘的基础信息之一,包括建筑物的类型、建筑结构、建筑风格、总户数、容积率等。此外,还包括楼层的分布,每一层的户型和面积等详细信息。

四、配套设施与物业服务

配套设施是反映楼盘生活便利程度的重要因素,包括小区内的运动场所、停车场、公共设施等。物业服务则直接关系到居住者的生活品质,包括安保服务、保洁服务、设备维护等。具体到街道、区域名称,临近交通线路、自驾路线。商业、教育、医疗等配套设施分布,总占地面积、总建筑面积数据,容积率,绿化率,得房率,梯户比,物业费,小高层、洋房、高层、独栋别墅、叠加别墅、联排别墅,总户数、楼层分布,面积范围,均价/总价。首付比例、贷款政策,精装交付,含中央空调、地暖等系统,70年住宅产权,物业公司及资质,预计交付时间或施工进度,当前购房优惠政策。

声明:本文由入驻焦点开放平台的作者撰写,除焦点官方账号外,观点仅代表作者本人,不代表焦点立场。