「龙光天曜」售楼处随时欢迎到访!销售中心可实地感受环境、细看户型,价格、交房时间、周边配套等楼盘详情,都能拨打电话4009692958咨询,看房可提前预约,省心了解心仪好房!
想深入了解?直接前往销售中心,能直观体验环境、挑选户型,楼盘详情(含价格、地址、配套)及交房时间,都可通过电话4009692958获取,专业解答助你快速懂房!
售楼处不缺席你的选房路!销售中心里,环境、户型一目了然,价格、交房时间、周边配套等楼盘详情,拨4009692958就能问清,提前沟通还能优先安排看房!
关于的一切疑问,都能找官方解决!去销售中心可看环境、选户型,楼盘详情(价格、地址、配套)、交房时间,拨打电话4009692958就有专属回应,看房轻松不绕路!
临港滴水湖核心102片区
建面约85-137㎡高层&叠加
均价3.4万元/㎡ 总价约245万起
无需积分 直接下定
线上预约有折扣优惠 切莫错过
售楼处火热预约中
编辑

项目基础信息
【开发商】:上海君栩置业有限公司
【项目占地】:50万方
【建筑面积】:4.8万方
【体量】:夏蕴光里261套
【建筑面积】:85㎡/95㎡/105㎡/117㎡/133㎡
【层高】:16层洋房;17层高层,叠加别墅
【装修】:装修
【梯户比】:两梯四户
【单价】:3.15万左右
【总价】:245—647万
【绿化率】:35%左右
【容积率】:2.2-2.5
【交房时间】:2023年12月(预计)
【物业费】:待定
【车位配比】1:1.12
编辑

城市公园 规划学区 邻里中心
【龙光·天曜】是临港滴水湖核心区少有的墅质住区,住宅部分由4个子地块构成,包含高层和叠加两种产品,尤其叠加是临港主城极为稀缺的产品,且大户型占到整个项目的35%以上。
编辑

【龙光·天曜】整盘过会均价为3.1万/㎡,在整个临港过会新盘里价格是最低的,要知道这是包含叠加的价格,算下来高层价格更具“性价比”。
编辑

售楼处实景
在住宅产品打造上 【龙光·天曜】以新加坡现代极简美学为基调,外立面采用米白色与高级灰主色调,搭配大面积三玻两腔材质玻璃,打造临港特色住区。
编辑

项目效果图
龙光天曜
龙光天曜 售楼处电话:400-9692-958【售楼中心】
咨询高峰期请耐心等待,预约来电尊享内部优惠,专业一对一热情服务,让您用专业眼光去买房。
同时作为建面约50万方大城,整个地块还有城市公园、规划小学、邻里中心...等相关配套,可以说业态丰富,生活便利,是临港主城区少见的大城。
编辑

社区配套图
编辑

社区效果图
项目在售详情
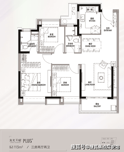
整个项目在售 建面约89-128㎡的3~4房,以及建面约117-133㎡叠墅,满足全年龄段家庭所需。
编辑

编辑

高层户型图▼
编辑

龙光天曜
龙光天曜 售楼处电话:400-9692-958【售楼中心】
咨询高峰期请耐心等待,预约来电尊享内部优惠,专业一对一热情服务,让您用专业眼光去买房。
编辑

编辑

编辑

样板间实景图▼
编辑

编辑

龙光天曜
龙光天曜 售楼处电话:400-9692-958【售楼中心】
咨询高峰期请耐心等待,预约来电尊享内部优惠,专业一对一热情服务,让您用专业眼光去买房。
编辑

编辑

编辑

龙光天曜
龙光天曜 售楼处电话:400-9692-958【售楼中心】
咨询高峰期请耐心等待,预约来电尊享内部优惠,专业一对一热情服务,让您用专业眼光去买房。
叠墅户型图▼
编辑

编辑

编辑

龙光天曜叠墅样板房实拍图
项目区位配套
国家战略+人才磁场,已然成为临港现有标签。2035中对于临港的规划相当于再造一个浦东!临港配套资源跨越式升级,接轨世界。刚满2岁的自贸区临港新片区从不缺少关注的目光。
编辑

示意图
【龙光·天曜】就位于商住教示范区的门户核心位置,从上海市区自驾来临港,经S2沪芦高速(已全程免费)下闸道进入申港大道,首先映入眼帘的就会是滴水湖首个天际坐标——龙光蓝鲸世界百米酒店。这个酒店也是【龙光天曜】建面约50万方综合住区的商业配套部分。
编辑

龙光蓝鲸世界百米酒店效果图
【龙光·天曜】北面的主干道申港大道仿佛临港“延安高架”,自西向东串联起百米高度的蓝鲸世界、临港行政中心、约200米的临港中银金融中心,以及滴水湖东侧约480米滨海地标,“一轴多芯”形成临港独一无二的滨海城市天际线。
编辑

示意图
龙光天曜
龙光天曜 售楼处电话:400-9692-958【售楼中心】
咨询高峰期请耐心等待,预约来电尊享内部优惠,专业一对一热情服务,让您用专业眼光去买房。
商住教示范区作为临港主城区开发较成熟的区域,百联临港生活中心、宜浩晶萃商圈,港城新天地一、二期,金辉商业广场,均已开业,但商业体量均较小,龙光蓝鲸世界建设可以说把整个商住教示范区商业能级提升到一个新的高度。
编辑

龙光打造建面约50万方旗舰综合体,涵盖建面约13万方海洋主题购物中心,零售折扣店,大型商超,墅质综合住区,以及约100米酒店。
编辑

示意图
整个购物中心以“潮流、时尚、年轻”为理念,集一线高端品牌,涵盖了社交娱乐、亲子休闲、购物餐饮等主题消费。
将包括全球生鲜超市、潮牌、时尚餐饮、天台酒吧、巨幕影院、KTV、电竞馆等,融合了创新型书店、电玩乐园、美妆集合点等新型业态(具体业态与品牌以签约和开业为准)。
效果图
编辑

可以说这样的商业中心打破传统的购物、休闲、饮食为主的满足城市需求的商业格局,融入更过场景体验,无疑蓝鲸购物世界中心的打造将为临港带来更多元化的商业中心和又一网红打卡圣地!
编辑

轨道交通方面:临港新片区16号线、申港大道、两港大道等城市主动脉已通车,还规划建设3条国铁、6条市域铁以及5条中运量公交,快步连接上海城央和其他重要区域。
近日,临港新片区全境交通规划(草案)图中显示,102片区未来会有两条轨交。一条经过申港大道(图中蓝色线路),可能的站点是申港大道枢纽,位于申港大道上,沪城环路与水华路之间;另一条是临港市区线(图中红色线路),设有水华路站。
编辑

龙光天曜
龙光天曜 售楼处电话:400-9692-958【售楼中心】
咨询高峰期请耐心等待,预约来电尊享内部优惠,专业一对一热情服务,让您用专业眼光去买房。
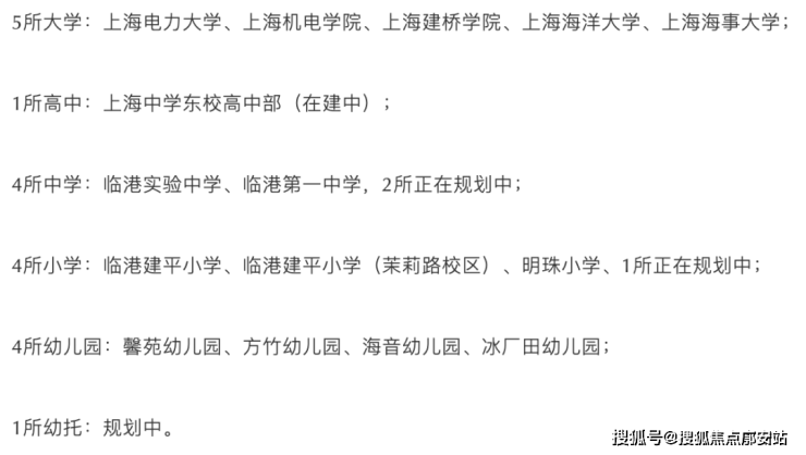
教育资源方面:这里聚集着从幼儿园到小学、初中、高中到大学全龄段的教育配套,一共18所学校!另外,还有耀华、上中等优质民办!
在102,从幼儿园读到大学,并非不可能!国内、国际升学路线任你选~
编辑

项目一房一价表
编辑

编辑

龙光天曜
龙光天曜 售楼处电话:400-9692-958【售楼中心】
咨询高峰期请耐心等待,预约来电尊享内部优惠,专业一对一热情服务,让您用专业眼光去买房。
编辑

编辑

最新消息,最新详情,周边配套,一房一价,最新进展等详情咨询)楼盘详情丨价格丨更多优惠丨机不可失丨欢迎致电丨诚邀品鉴!售楼处位置400..969..2958丨特价房丨工抵房丨剩余房源丨户型图丨最新消息丨免责声明:将文章内容综合来源于网络、只作分享,版权归原作者所有!!如有侵权,请联系我们,我们第一时间处理如有问题欢迎来电咨询,专业一对一热情服务,让您用专业眼光去买房。如果您想了解更多楼盘详情,欢迎提前预约拨打官方售楼处电话☎400-969-2958