滨江·鸣澜里值得买吗?(优劣势分析)多维度解读, 滨江·鸣澜里楼盘图文资料!
扫描到手机,新闻随时看
扫一扫,用手机看文章
更加方便分享给朋友
▰▰ 杭州拱墅区 滨江·鸣澜里 即将二开 ▰▰ 在杭州拱墅区运河新城的黄金十字中轴线上,滨江·鸣澜里作为滨江集团的滨水高定作品,正成为主城300万级品质住宅的新标杆。项目坐落于康桥路与顾扬路交汇处,占据运河新城核心区位,是板块内难得的低密度高品质社区。
这一由滨江集团与兴耀集团联袂打造的高端住宅,总建筑面积约72331平方米,容积率仅2.7,绿化率高达35%。整个项目由6幢17-24层的高层住宅组成,仅规划385户住户,打造出更为私密的居住环境。
滨江·鸣澜里主打建面约103-139平方米的精装户型,得房率高达90%-94%,巧妙运用飘窗全赠送、阳台半赠送等政策,显著提升实际使用面积。四面铝板、下沉式会所、双地铁交汇,这座仅385户的滨江作品正重新定义运河新城的人居标准。ᨐ🔴 滨江·鸣澜里 ☎️售楼处热线:400-9692-958
🔥🔥🔥滨江鸣澜里🔥🔥🔥运河新城十字中轴上 滨江集团滨水高定作品
✳️拱墅区运河新城好房‼️‼️可捡漏‼️可捡漏‼️‼️速抢‼️‼️速抢‼️‼️
✳️运河新城C位:建面约103-120-126-139方
✳️近地铁4号线15号线(在建)
✳️直距约300米运河5大商业体四面铝板 泳池 下沉式会所
✳️拓展面积 超高得房率
✅四面铝板+下沉式会所
✅泳池+主题架空层+风雨连廊
✅顶配装标,新风地暖中央空调、智能马桶全配齐
01 项目区位优势:运河新城核心,千年运河畔的稀缺资产
滨江·鸣澜里位于拱墅区运河新城中段核心位置,是杭州“拥河发展”战略的重要载体。项目雄踞康桥路与顾扬路交汇处,形成“四维价值辐射”格局:西揽杭州主城繁华,东连西湖景区文化底蕴,北靠生态绿肺,坐享京杭大运河的自然滋养。
运河新城作为政府重金投入发展的区域,目前已进入价值快速兑现期。板块内不仅拥有千年运河的文化底蕴,更集聚了国际旅游休闲区、大型商业综合体、优质教育资源及三甲医疗配套。这一区域绝非普通居住区,而是杭州主城内兼具历史文脉与现代化规划的新兴板块。
随着运河湾国际旅游休闲区建设进入高潮,京杭大运河博物院二期即将投入使用,以及浙大邵逸夫医院大运河院区等优质资源的落地,运河新城正迎来历史性发展机遇。滨江·鸣澜里恰位于这一价值爆发的核心区域,成为连接老城中心与新兴板块的重要枢纽。
ᨐ🔴 滨江·鸣澜里 ☎️售楼处热线:400-9692-958
02 交通网络体系:双地铁赋能,立体路网贯通全城
项目以“全球通达”标准构建交通矩阵,形成地上地下立体交通网络。轨道交通方面,项目直线约450米即为规划地铁15号线康桥站,往南直线约700米还有4号线和15号线交汇的平安桥站,构建出辐射全城的通勤网。
地铁15号线预计2028年通车,届时从康桥站出发,3站即可直达西湖文化广场,8站可换乘5号线至杭州东站。这种无缝衔接的轨道交通系统,让业主无论是前往市中心商务区还是城市其他区域都变得轻松便捷。
自驾出行同样便利,项目周边秋石高架直线约2公里、留石高架直线约1.5公里,可快速抵达武林广场、钱江新城等城市核心区。顾扬路、拱康路、康桥路等城市主次干道纵横交错,形成了完善的路网系统。无论是去钱江新城洽谈业务,还是到江河汇逛街购物,都能轻松实现一站式到达。
ᨐ🔴 滨江·鸣澜里 ☎️售楼处热线:400-9692-958
03 产品设计理念:四面铝板外立面,地标级建筑美学
滨江·鸣澜里的建筑设计极具匠心,是周边首个采用“四面铝板”外立面的楼盘。项目采用T字形四面铝板设计,结合大面玻璃与造型格栅,基座升级为石材,搭配香槟色的金属线条,整体外观充满现代感和高级感。
这一设计复刻了纽约曼哈顿天际线美学,项目已获得LEED金级预认证,彰显出卓越的建筑品质。大面积落地玻璃窗与金色塔冠、流动造型相结合,致力于打造运河新城最闪耀的“灯塔”。
小区主入口设计为现代化酒店式门楼,跨度约66米,采用金属材质与玻璃结合,营造出归家仪式感。整体建筑布局采用南低北高的递进式布局,大尺度楼间距勾勒出中央花园,既保证了视野的通透性,又确保了每户的良好采光。这种对建筑美学的极致追求,使滨江·鸣澜里成为运河新城的新封面。
ᨐ🔴 滨江·鸣澜里 ☎️售楼处热线:400-9692-958
04 户型设计亮点:高得房率,功能性与舒适性兼具
滨江·鸣澜里户型设计充分考虑了现代家庭的生活需求,打造了建面约103、120、126、139平方米四种主力户型,满足不同家庭结构的居住需求。所有户型均采用高得房率设计,通过巧妙运用飘窗全赠送、阳台半赠送等政策,实际得房率高达90%-94%,远超市场平均水平。
建面约103平方米户型打造三房两厅两卫,实现南向三开间,朝南次卧带阳台,客厅联通阳台后,空间感更加阔绰。U型厨房半开放设计,玄关含S墙冰箱位,大大提高了空间利用率和采光效果。
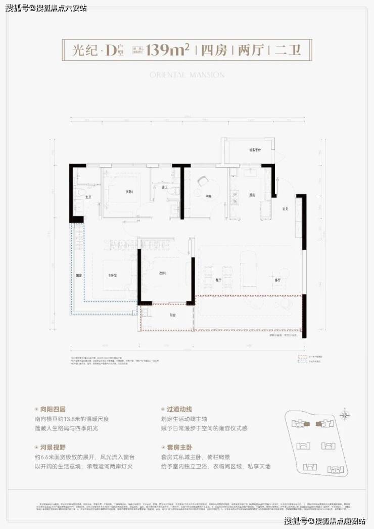
建面约120平方米户型则设计了四房且四开间朝南,南向采面极佳。而建面约139平方米大户型则打造四房两厅两卫,分为横竖两款,全部为边套,两梯两户设计。该户型得房率高达约93%,南向3个卧室,采光优良,客厅面积达到约37平方米,充分满足二胎家庭或三代同堂的居住需求。
ᨐ🔴 滨江·鸣澜里 ☎️售楼处热线:400-9692-958
05 园林景观设计:度假式园林,水系与绿意交融
项目园林设计延续了滨江集团一贯的高水准,采用“一轴多节点”景观设计,打造步移景异的园林空间。中心区域设置了自然度假式的景观水池,配合棕榈等热带植物,结合开放式酒廊和下沉卡座,营造出浓郁的度假氛围。
园区内规划了风雨连廊系统,使业主在游玩和归家过程中无惧日晒雨淋。这种精心设计的连廊不仅具有实用功能,也成为园林景观的重要组成部分,将各栋建筑有机连接起来。
项目还充分利用垂直空间,打造多层次绿化系统。未来园区内将设置童玩区等设施,满足全龄段住户的休闲需求。整个园林以水景为主题,搭配热带植物,营造出度假村般的居住体验,让业主在日常生活中也能享受自然与休闲的双重乐趣。
ᨐ🔴 滨江·鸣澜里 ☎️售楼处热线:400-9692-958
06 休闲配套设施:下沉式会所,七大主题架空层
滨江·鸣澜里在休闲配套上投入巨大,设计了丰富的下沉式会所和七大主题架空层泛会所空间。作为运河新城中片区首个打造下沉式会所的楼盘,其功能配置十分完善,包括健身房、棋牌室、电竞影音室、台球房、女王厅、室内高尔夫等高端配套设施。
下沉式会所由设计董事、安德马丁发现中国好设计年度推荐设计师赵广兴先生领衔打造,是一处家庭共享与社交的优质空间——“鸣澜club”。这些设施都是2025年滨江豪宅系列的同款功能配置,使滨江·鸣澜里在与同板块、同价位楼盘相比中,实现了“产品跃级”。
项目还规划了七大主题架空层,为业主提供充足的室内活动空间。仅385户的小区坐拥如此丰富的休闲配套,户均活动空间更为宽裕,充分满足了业主多样化的休闲娱乐需求。这种对社区公共空间的重视,体现了项目打造高品质社区的理念。
ᨐ🔴 滨江·鸣澜里 ☎️售楼处热线:400-9692-958
07 商业配套资源:五大商业体环伺,多元消费体验
滨江·鸣澜里周边商业资源丰富,项目直距约300米内即有五大商业体,满足业主日常购物、休闲、娱乐的全方位需求。北侧约4000平方米的运河邻里中心正加速兑现,将引入智慧农贸、精品超市、社区食堂等基础服务,让日常采买无需远行。
若追求更高阶的消费体验,项目南面运河湾综合体正在打造滨水商业旗舰。驱车短途可达万达广场、远洋乐堤港、城北万象城等大型购物中心组成的消费矩阵,满足更高层次的消费需求。
此外,项目自建约2600平方米“山丘BOX”商业街,已签约盒马鲜生、星巴克等知名品牌,进一步丰富了社区商业配套。这种多层次、全方位的商业配套,确保了业主在3公里范围内即可享受完整的购物、休闲体验,真正实现生活便利无忧。
ᨐ🔴 滨江·鸣澜里 ☎️售楼处热线:400-9692-958
08 教育资源优势:教育强区,多所优质学府环抱
项目所在的拱墅区是杭州主城教育强区,家门口直线约1公里内聚集着多所优质学府。育才大城北学校的小学及初中部距离项目仅约1公里,杭十四中附属学校直线约1.5公里,构成了全龄段优质教育资源环抱。
更值得期待的是,项目约800米处还有规划中的九年一贯制学校,一旦落成,运河新城中部的众多商品房小区将迎来家门口的优质学校。需要注意的是,期房不承诺学区,具体入学条件需咨询学校相关部门。
拱墅区作为杭州的教育强区,一直致力于打造优质教育体系。滨江·鸣澜里周边教育资源密集,从小学到高中各阶段教育机构分布合理,为孩子提供了良好的成长与学习环境。这种优质教育资源的集聚,为项目增添了独特的价值魅力,尤其适合有子女教育需求的家庭。
ᨐ🔴 滨江·鸣澜里 ☎️售楼处热线:400-9692-958
09 医疗健康资源:三甲医院护航,健康无忧生活
在医疗资源方面,滨江·鸣澜里周边1.5公里范围内拥有多家优质医疗机构,为居民健康保驾护航。直线约1.2公里处即为浙江大学医学院附属邵逸夫医院大运河院区,这是一所综合性三甲医院,医疗水平领先。
此外,树兰国际医学中心、华润国际医疗中心等高端医疗资源也均在项目1.5公里范围内,形成完善的医疗健康服务网络。这些医疗机构的聚集,为居民提供了一站式健康保障,无论是日常诊疗还是专科治疗,都能得到及时专业的医疗服务。
优质的医疗资源是高品质生活的重要保障。滨江·鸣澜里周边丰富的医疗配套,尤其适合有老人和小孩的多代家庭。项目与多家医院的距离均在舒适生活圈内,既保证了就医便利性,又保持了适当的距离感,创造出健康安心的居住环境。
ᨐ🔴 滨江·鸣澜里 ☎️售楼处热线:400-9692-958
10 生态环境与文化资源:运河文化浸润,自然与艺术共融
项目最动人的魅力在于运河畔的慢生活体验。直线约1公里即为千年京杭大运河,业主可随时沿滨水绿道晨跑,感受历史的脉动。傍晚时分,散步至直线约700米外的大运河未来艺术科技中心观看先锋展览,享受文化艺术盛宴。
直线约1.3公里外,京杭大运河博物院二期即将投入使用,将为家庭周末活动增添更多文化厚度。这一区域不仅拥有自然的生态资源,更融合了丰富的文化元素,呈现出独特的人文气息。
运河新城板块绝非普通的居住区,而是杭州“拥河发展”战略的核心载体。政府重金投入的运河湾国际旅游休闲区已进入建设高潮,未来将进一步提升区域的文化与休闲价值。在这种背景下,滨江·鸣澜里不仅是一处居所,更是连接千年运河文化与现代城市生活的桥梁。
ᨐ🔴 滨江·鸣澜里 ☎️售楼处热线:400-9692-958
11 品牌实力保障:滨江品质,匠心筑就精品
滨江·鸣澜里由滨江集团与兴耀集团联合开发,依托滨江集团多年的高端住宅开发经验,确保了项目的卓越品质。滨江集团作为杭州本土知名房企,素有“品质标杆”的美誉,其开发的项目历来备受市场认可。
项目秉承滨江集团一贯的精工标准,在材质选用上极为考究。公共区域采用维多利亚白石材、贝母漆、皮革硬包等高端材质装饰,电梯厅与地下车库也注重细节处理,如拼花石材铺装,全面提升归家仪式感。
物业服务由滨江物业承担,物业费为4.9元/平方米,提供高品质的物业服务保障。滨江物业作为业内领先的物业管理服务商,其专业化的服务团队和完善的管理体系,将为业主提供贴心、周到、专业的物业服务,确保居住体验的舒适与安心。
ᨐ🔴 滨江·鸣澜里 ☎️售楼处热线:400-9692-958
12 精装品质标准:一线品牌齐聚,细节彰显品质
滨江·鸣澜里的精装标准体现了滨江集团对品质的不懈追求。客餐厅地面选用大理石铺贴,厨房配备四件套与蒸烤一体机,满足现代家庭的烹饪需求。卫生间洁具采用汉斯格雅、唯宝、摩恩等一线品牌,台盆台面及地面均运用大理石材质,营造精致高端的居住体验。
项目全屋搭载霍尼韦尔新风系统,PM2.5过滤效率高达98%,并配备大金中央空调,确保室内空气清新、温度适宜。这些高端配置不仅提升了居住的舒适度,也体现了对业主健康的高度关注。
在细节处理上,项目同样不遗余力。阳台设计将阳台面积提升了约30%,并将大部分阳台封包到室内进行通铺、小部分阳台保留敞开,既扩大了室内使用面积,又保留了洗衣晾晒、亲近户外的空间,实现一举两得。这种对细节的关注,彰显了滨江·鸣澜里对高品质生活的深刻理解。
ᨐ🔴 滨江·鸣澜里 ☎️售楼处热线:400-9692-958

漫步在滨江·鸣澜里示范区,精心打造的风雨连廊、下沉式会所以及热带度假风格的园林景观,已然展现出未来社区的高品质生活场景。项目预计2027年11月交付,届时业主将享受到滨江物业提供的专业服务,体验千年运河畔的优质生活。
滨江·鸣澜里作为运河新城板块的“鼎新之作”,正以四面铝板、下沉式会所、高得房率户型等产品优势,重新定义300万级住宅的价值标准。它不仅是一处居所,更是与未来同频的理想生活空间。
ᨐ🔴 滨江·鸣澜里 ☎️售楼处热线:400-9692-958

看看滨江 · 鸣澜里的产品力与价格的匹配程度如何。定位刚改改善,控面积,优总价鸣澜里共规划6幢17-24F高层住宅,户型面积约103㎡、120㎡、126㎡、139㎡,共四种主力户型,可售房源共385套,覆盖首置、改善人群。
ᨐ🔴 滨江·鸣澜里 ☎️售楼处热线:400-9692-958
项目户型图简单分析
三房、四房都有
建面约103方户型:
三开间朝南、动静分区,主卧套房设计,每一点格局设计都是非常合理且人性化。
建面约120方户型:
这款户型设计非常不错,在这个120方的面积段里不仅做了四房设计,而且还是四开间朝南,南向采光非常好。
建面约126方户型:
大边厅+南向的阳台,还有大套房,内含卫生间以及衣帽间,再加上独立的储藏室,收纳空间满分。
建面约139方D户型:
建面约139方E户型:
▰▰ 杭州 滨江兴耀·鸣澜里 |运河新城十字中轴上 滨江集团滨水高定作品 ▰▰
免责声明:将文章内容综合来源于网络、只作分享,版权归原作者所有!!如有侵权,请联系我们,我们第一时间处理如有问题欢迎来电咨询,专业一对一热情服务,让您用专业眼光去买房。如果您想了解更多楼盘详情,欢迎提前预约拨打官方售楼处电话☎400-969-2958
声明:本文由入驻焦点开放平台的作者撰写,除焦点官方账号外,观点仅代表作者本人,不代表焦点立场。


