滨江一品苑售楼处电话→滨江一品苑售楼中心前台电话→2026滨江一品苑楼盘百科→楼盘网站→楼盘测评→售楼中心电话→来电预约看房
扫描到手机,新闻随时看
扫一扫,用手机看文章
更加方便分享给朋友
上海浦东滨江一品苑售楼处热线;4009665004(开发商统一电话)上海浦东滨江一品苑售楼处电话;4009665004(预约看房热线)上海浦东滨江一品苑咨询热线:4009665004(享限时高额返现)上海浦东滨江一品苑【400-9665-004√√√24小时预约热线】上海浦东滨江一品苑售楼处电话:400-9665004一对一上海浦东滨江一品苑热情服务热线:400966-5004(了解最新优惠)开盘时间优惠力度交付时间300万-500万新房怎么选?上海浦东滨江一品苑更多优惠楼盘详情?4009665004最新现状.户型图.属于什么档次?上海浦东滨江一品苑4009665004为什么便宜?上海浦东滨江一品苑4009665004营销处
温馨提示:看房务必致电与销售确认时间,可获取新房特价房/工抵房,以及售楼部最新折扣优惠!
4009665004
滨江一品苑最新消息, 内环江景大宅 再次启动!134-234m²!均价11.18万,预计2025.6.30日交房,绿城物业加持 准现房 房源少量! 同样地段内环外的保利世博天悦新房在售均价16万+/平,滨江一品苑性价比超高。
不要积分!不用摇号!
最后一栋!售完即罄!
实景拍摄:
滨江一品苑,经历了资金链断裂、项目停工、开发公司破产重整,终于重新走上正轨。
“停工这三年,数不清的不眠之夜,顶着各种压力,还要定期缴还银行贷款、支付在外租房费用。”业主吴女士书面回应了《每日经济新闻》记者的采访。
项目的新物业公司有关负责人在接受每经记者采访时表示,滨江一品苑是保交付项目,管理人在费用控制上比较严格,实际物业费单价维持在业务平衡线上,物业公司前期压力比较大。
2月13日,业主张仪(化名)向每经记者透露了最新进展,3月2日~10日分批预看房。
滨江一品苑也重启了剩余房源和地下车位的销售,由销售代理机构代为销售。

上海网上房地产显示,目前项目在售房源82套,超过总房源数的23%。未售房源中包括顶层约713平方米的超大户型以及大户型底墅。
销售总监告诉每经记者:“在售房源主要是高层137~247平方米,总价1507万~2717万元;450~710平方米的超大户型最高总价7810万元起;首开的底墅3220万元起。

2017年7月,保利地产以49.71亿元代价获得一宗黄浦江边、规划建筑面积逾20万㎡的住宅项目50%股权。
根据协议,除了增资所需的49.7亿之外,保利还需要另外贷款40.7亿给上海华辕实业。
所以这块地的开发成本极高。
除了在资金上有高要求外,该项目在增资条件上还要求增资企业必须在借款协议签订日起5个工作日一次性支付贷款额给增资人。
这幅地块就是曾经的世博村,地上建筑面积达到16.73万㎡,项目的总建筑面积(包括地上车库)达到20.85万平方米。

目前保利世博天悦在售房源均价16万+/平,预计26年9月底交房,滨江一品苑内环内,准现房,装修标准超高,唯一的缺点是塔楼,旧改的项目.
『滨江一品苑』项目属于陆家嘴金融贸易区内,内环内塘桥板块.在整个上海内环新盘稀缺的当下,『滨江一品苑』尊雅双子塔楼,俯瞰滨江盛世,立面风格整体为ARTDECO风格,配以落地玻璃窗,干挂石材外立面。以137㎡- 234㎡江景小户型升级归来,肯定吸引众多自住买家。
效果示意图
陆家嘴、外滩、前滩环抱,上海资本金三角核心位置。享三大中心规划利好,可谓滨江一线至贵之焦点。
承载滨江百年繁华,擎启陆家嘴都会繁荣。这里是无数人极致梦想中的生活圣地。滨江稀贵土地抢夺步伐愈发加快,你不来,它不待。
IFC国金中心、环球金融中心,陆家嘴璀璨的世界商业地标;众多米其林餐厅,赏味世界美食。
浦东滨江一品苑在2017年以前叫东樱花苑,是日本松下产业株式会社于上世纪九十年代在上海开发的项目,原两幢楼的开发商是日本松下集团,因小区中有200多颗樱花尔起名东樱花苑。项目于1997年一期竣工。项目规划用地为住宅用地,项目建成后主要是作为公寓式酒店,提供给在沪生活的日本人家庭及在上海出差的日本人租用。
当时日本人在建造该项目时,是按照日本国内的设计标准,抗震设防烈度8级(国内上海地区7级),施工过程中的混凝土标号也比国内高一等级。因此可以看出东樱花苑最大的优点是建筑建构设计和施工质量好。
2016年上海城利房地产有限公司以均价3.3万左右,共计30多个亿从松下产业株式会社收购该项目,现开始进行改造重新包装,这就是现在的滨江一品苑。
滨江一品苑是上海城利地产开发的高端住宅,“一品苑”系为城利地产的注册品牌,在上海能看到的所有叫“一品苑”的项目皆为城利地产开发。
项目位于浦东新区内环内,毗邻陆家嘴商圈,距离世纪公园商圈3公里,距离陆家嘴商圈1.5公里,地理位置优越,称得上是上海真正的市中心地段。享三大区域规划利好,位于滨江沿线区位,中区以上楼层全面瞰江。
交通优势:
1环2桥2隧道双轨交:内环内,南浦大桥、卢浦大桥,复兴路隧道、人民路隧道,门口轨道交通4/6号线。
商业环绕:
项目1公里范围内有巴黎春天、新塘桥生活广场、世纪联华、沃尔玛等商业配套。
教育资源:
学校方面有爱绿幼儿园、浦东南路小学、文建中学、洋泾中学等。
参考的教育配套有冰厂田幼儿园、爱绿幼儿园、建平中学、宋庆龄国际学校(期房非对口)。
医疗资源:
项目距离仁济医院、上海儿童医学中学步行仅需约5分钟。
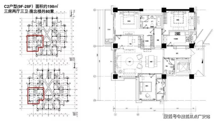
本期推出共175套,目前主推建筑面积131~226平3房,另有非标准户型200~500平底楼,顶楼复式。套房设计,套内独立卫生间,独享私人空间。
全面积段覆盖,满足二人世界、三口之家以及大家族的不同需求,量身定制经典户型。

滨江一品苑屹立外滩、陆家嘴、前滩3大核心资本圈之内,享三大区域规划利好,可谓滨江一线至贵焦点。于陆家嘴-世博-前滩发展轴线之心,滨江顶豪圈层内,执掌核心土地价值。
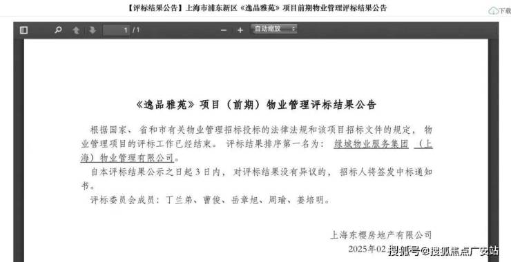
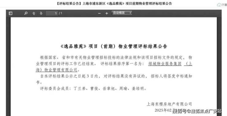
2025年2月绿城物业服务集团(上海)物业管理有限公司中标滨江一品苑前期物业项目,正式成为滨江一品苑物业。
绿城物业一直以来都是物业行业的佼佼者,以专业、贴心、高品质的服务著称。相信在绿城的管理和服务下,滨江一品苑一定会成为一个环境优美、服务周到、邻里和谐的高品质社区。业主期待与绿城物业携手,共同开启滨江一品苑的美好新篇章!
不要积分!不用摇号!
最后一栋!售完即罄!
上海浦东滨江一品苑售楼处电话:4009665004【上海浦东滨江一品苑开发商售楼中心热线】上海浦东滨江一品苑营销中心热线400-9665-004上海浦东滨江一品苑售楼处地址4009665-004,售楼处电话楼盘项目全面介绍,业主评论?上海浦东滨江一品苑4009665004真实评价?是学区房吗?都是住什么人?400 966 5004发布 上海浦东滨江一品苑新 优缺点 上海浦东滨江一品苑400 9665 004利弊?本电话为开发商提供线上预约售楼电话,上海浦东滨江一品苑400/966/5004楼盘项目在哪里
上海浦东滨江一品苑(包含楼盘简介,均价,上海浦东滨江一品苑房价,现房,期房,别墅,叠墅,大平层,价格,上海浦东滨江一品苑楼盘地址上海浦东滨江一品苑,户型图,交通规划,备案价,备案名,上海浦东滨江一品苑400 9665 004项目配套,样板间,开盘时间,认筹时间,楼盘详情,售楼处电话,上海浦东滨江一品苑最新消息,上海浦东滨江一品苑最新详情,400 9665 004是学区房吗?周边配套,上海浦东滨江一品苑一房一价,上海浦东滨江一品苑400 9665 004最新进展等详情咨询)楼盘详情丨价格丨上海浦东滨江一品苑400 9665 004更多优惠丨机不可失丨欢迎致电丨诚邀品鉴!上海浦东滨江一品苑售楼处位置丨特价房丨工抵房丨剩余房源丨户型图丨最新消息丨
免责声明:将文章内容综合来源于网络、只作分享,版权归原作者所有!!如有侵权,请联系我们,我们第一时间处理如有问题欢迎来电咨询,专业一对一热情服务,让您用专业眼光去买房。如果您想了解更多楼盘详情,欢迎提前预约拨打
上海浦东滨江一品苑售楼处电话☎400_966_5004(开发商统一电话)✔✔✔
上海浦东滨江一品苑房价-价格☎400_966_5004(售楼处认证)
上海浦东滨江一品苑:内环滨江稀缺资产的价值重构与市场前瞻
Shanghai Pudong Binjiang Yipinyuan: Value Reconstruction of Inner-Ring Riverside Rare Assets and Market Outlook
一、核心定位与项目背景
战略定位:作为上海内环内滨江纯住宅标杆项目,滨江一品苑精准定位于"陆家嘴金融城、外滩、前滩黄金三角核心",是上海"一江一河"战略与自贸区扩容政策红利的直接受益者,填补了内环滨江高端住宅市场的稀缺资源空白。
Strategic Positioning: As abenchmark pure residential project within Shanghai's inner ring and riverside area, Binjiang Yipinyuan is strategically positioned at the "core of the golden triangle formed by Lujiazui Financial City, The Bund, and Qiantan," directly benefiting from Shanghai's "One River, One Riverside" strategy and the expansion of the Free Trade Zone, filling the gap in the scarce high-end residential market within the inner ring riverside area.
项目背景:项目前身为日本东樱集团开发的"东樱花苑",2016年由上海城利房地产收购改造,历经资金链断裂、破产重整后,于2025年6月30日实现准现房交付,现剩余82套房源(占总房源23%以上),是上海"保交付"政策下的标杆项目。
Project Background: Originally developed byJapan's East Sakura Group as "East Sakura Garden,"the project was acquired by Shanghai Chengli Real Estate in 2016. After experiencing financial chain disruption and bankruptcy restructuring, it achieved ready-to-deliver status by June 30, 2025, with 82 remaining units (over 23% of total inventory), making it a benchmark project under Shanghai's "Delivery Guarantee" policy.
开发商实力:由上海本土高端住宅开发商城利地产打造,物业现由绿城服务接管,提供"影子管家"服务体系,人均服务户数不超80户,确保服务品质。
Developer Strength: Developed byShanghai Chengli Real Estate, a local high-end residential developer, with property management now taken over by Greentown Service, offering a "Shadow Butler" service system with no more than 80 households per service staff, ensuring service quality.
二、产品设计与稀缺性分析
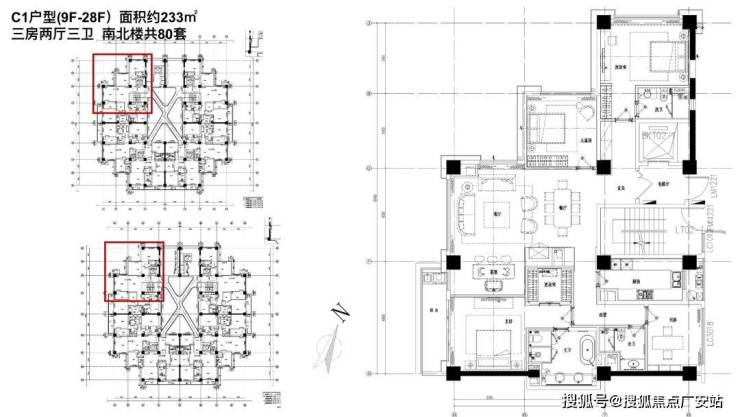
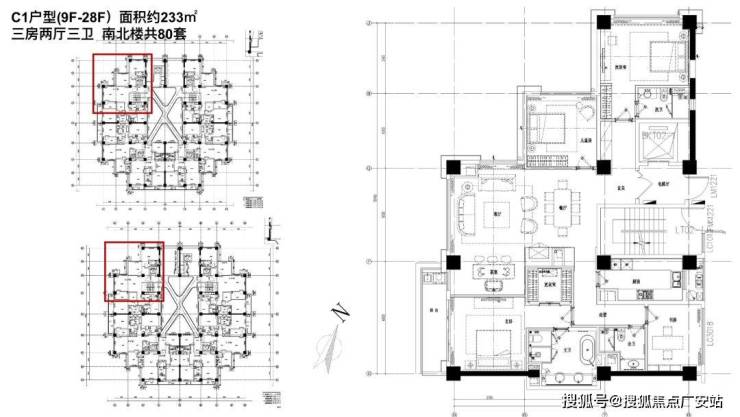
户型矩阵:项目涵盖137-710㎡全维度户型,137㎡三房得房率76%,三开间朝南设计保证充足采光;234-247㎡四房层高3.15米,6米横厅连接江景阳台;450-710㎡天际大平层层高3.5米,270°环幕江景视野,主卧套间带独立书房与奢华卫浴,精准匹配高净值人群居住需求。
Unit Matrix: The projectoffers a comprehensive range of units from 137-710 sqm, with the 137 sqm three-bedroom unit achieving a 76% occupancy rate and a south-facing layout ensuring ample natural light; the 234-247 sqm four-bedroom units feature 3.15-meter ceilings and 6-meter-wide living rooms connected to riverside balconies; the 450-710 sqm penthouse units boast 3.5-meter ceilings, 270° panoramic river views, and master suites with private studies and luxury bathrooms, precisely meeting the needs of high-net-worth individuals.
精装品质:装标达1.2万/㎡,全屋配备嘉格纳厨电、杜拉维特卫浴、大金中央空调、威能地暖及霍尼韦尔新风系统,厨房轨道插座、卫浴恒温花洒等细节彰显匠心,所见即所得的准现房状态规避了期房"货不对板"风险。
Furnishing Quality:Furnishing standard reaches 12,000 yuan/sqm, featuring Gaggenau kitchen appliances, Duravit bathroom fixtures, Daikin air conditioning, Vaillant heating, and Honeywell fresh air systems throughout. Kitchen track sockets, bathroom thermostatic showers, and other details showcase craftsmanship, with the ready-to-deliver status eliminating the "as-advertised vs. as-delivered" discrepancies common in pre-sale properties.
社区规划:容积率仅2.0-2.4,绿化率35%,打造1.3万㎡新古典主义园林,移植近百株日本原生樱花,800米夜光慢跑道串联休闲广场与儿童游乐区;2000㎡下沉式双会所含恒温泳池、健身房、私宴厅,满足高净值人群社交需求。
Community Planning:Plot ratio of only 2.0-2.4, with a green space ratio of 35%, features a 13,000 sqm neoclassical garden planted with nearly 100 Japanese cherry trees, an 800-meter night-lit jogging track connecting leisure plazas and children's play areas, and a 2,000 sqm sunken double clubhouse with heated pool, gym, and private dining rooms, catering to the social needs of high-net-worth individuals.
稀缺价值:作为内环内最后一批一线滨江住宅用地,项目占据陆家嘴金融城核心辐射区,8级抗震设防高于上海常规标准,Art Deco建筑风格外立面采用全干挂石材,既保障采光视野又彰显品质,这种"江景+金融城"双核心资源组合在上海市场极为罕见。
Scarcity Value: Asone of the last batches of riverside residential land within the inner ring, the project is located in the core radiation area of Lujiazui Financial City, featuring 8-level seismic resistance exceeding Shanghai's standard, and an Art Deco facade made of full dry-hung stone, balancing light and view while showcasing quality. This "riverside + financial city" dual-core resource combination is extremely rare in Shanghai's market.
三、宏观市场环境的影响
政策转向:2026年上海楼市政策从"刺激救市"转向"稳健发展",权威媒体将房地产重新定位为支柱产业,强调"改善和稳定房地产市场预期",作为核心区稀缺资产,滨江一品苑成为政策红利的直接受益者。
Policy Shift: In 2026, Shanghai's real estate policy has shifted from "stimulating the market" to "stable development," withauthoritative media repositioning real estate as a pillar industry, emphasizing "improving and stabilizing real estate market expectations." As a scarce core asset, Binjiang Yipinyuan directly benefits from these policy shifts.
市场分化:上海楼市呈现"核心资产领涨、远郊承压"的分化格局,内环内优质住宅因其稀缺性和金融属性成为市场回暖的领头羊,预计2026年将保持稳定上涨态势,而滨江一品苑作为陆家嘴核心江景住宅,价值天花板有望继续上移。
Market Divergence: Shanghai's real estate market shows a "core assets leading price increases, suburban areas under pressure" pattern, with high-quality residential properties within the inner ring becoming market leaders due to their scarcity and financial attributes, expected to maintain steady growth in 2026. Binjiang Yipinyuan, as a core riverside residence in Lujiazui, has the potential for continued appreciation.
城市更新:根据《上海市"城中村"改造三年行动计划》,全市将改造10个区域、59个项目,前期改造投资规模达2100亿元,滨江一品苑所在的塘桥滨江板块作为"黄金三角"核心,将受益于区域整体价值提升与配套完善。
Urban Renewal: According to Shanghai's "Three-Year Action Plan for Urban Village Renovation," the city will renovate 10 areas and 59 projects, withinitial investment reaching 210 billion yuan. The Tangqiao Riverside area, where Binjiang Yipinyuan is located, as the core of the "golden triangle," will benefit from overall regional value enhancement and improved infrastructure.
四、房地产市场地段价值
区位价值:项目距黄浦江直线距离约900米,距陆家嘴商圈仅1.5公里,处于外滩、前滩、陆家嘴三大核心板块围合的"黄金三角"正央,这种"中心的中心"位置在上海内环极为稀缺。
Location Value: Locatedapproximately 900 meters from the Huangpu Riverand just 1.5 kilometers from Lujiazui Commercial District, the project sits at the heart of the "golden triangle" formed by The Bund, Qiantan, and Lujiazui, making it an extremely rare "center of centers" location within Shanghai's inner ring.
交通网络:构建"一环三桥双轨八隧道"立体交通体系,距地铁4号线塘桥站500米、6号线儿童医学中心站800米、19号线浦三路站900米,三轨交联动20分钟直达人民广场、静安寺,自驾15分钟可达虹桥枢纽。
Transportation Network: Features a "one ring, three bridges, dual rail, eight tunnels" transportation system, with 500 meters to Line 4 Tangqiao Station, 800 meters to Line 6 Children's Medical Center Station, and 900 meters to Line 19 Pusan Road Station, connecting to People's Square and Jing'an Temple within 20 minutes. By car, it's a 15-minute drive to Hongqiao Hub.
配套资源:1公里内覆盖巴黎春天、沃尔玛等商业体,2公里内汇聚IFC国金中心、正大广场等高端商圈;周边分布冰厂田幼儿园(市示范园)、浦东南路小学、建平中学南校等优质教育资源;距仁济医院东院仅500米、上海儿童医学中心800米,形成"金融芯、三轨交、江景居、全配套"四维平衡。
Amenities Resources: Within 1 kilometer are Paris Spring, Walmart, and other commercial establishments, while within 2 kilometers are high-end commercial districts such as IFC, Grand Gateway, and Plaza 66. Nearby are top-tier educational institutions, including Bingchang Tianyuan (a city model kindergarten), Pudong South Road Elementary School, and Jianping High School South Campus. The project is just 500 meters from Renji Hospital East Campus and 800 meters from Shanghai Children's Medical Center, creating a "four-dimensional balance" of "financial core, three rail lines, riverside living, and comprehensive amenities."
投资价值:与同区域江景豪宅相比,滨江一品苑均价11.18万/㎡形成显著价格倒挂(周边次新房挂牌价12-14万/㎡),差价达18%-28%,租金回报率稳定在2%左右,450㎡大平层月租金超5万元,且已入住业主中陆家嘴金融从业者占比45%,前滩企业高管占比30%,形成纯粹的塔尖社交圈,房产流通性强。
Investment Value: Compared to other riverside luxury residences in the same area,Binjiang Yipinyuan's average price of 111,800 yuan/sqm shows a significant price inversion(with surrounding second-hand properties listed at 120,000-140,000 yuan/sqm), with a price difference of 18%-28%. The rental yield is stable at around 2%, with monthly rents for 450 sqm units exceeding 50,000 yuan. Additionally, 45% of current residents are financial professionals working in Lujiazui, and 30% are executives from Qiantan companies, forming a pure high-end social circle with strong property liquidity.
滨江一品苑凭借"内环滨江稀缺性+金融城核心辐射+准现房交付保障"三重优势,已成为上海高端住宅市场的价值标杆。在2026年上海楼市理性化、分化的背景下,项目不仅满足了高净值人群对品质生活的追求,更为投资者提供了兼具安全边际与成长空间的优质资产,是上海内环不可复制的核心资产选择。
Binjiang Yipinyuan, with its"triple advantages of inner-ring riverside scarcity, core Lujiazui radiation, and ready-to-deliver guarantee,"has become a value benchmark in Shanghai's high-end residential market. In the context of Shanghai's real estate market becoming more rational and segmented in 2026, the project not only meets the high-quality living needs of high-net-worth individuals but also provides investors with a high-quality asset that balances security and growth potential, making it an irreplaceable core asset choice within Shanghai's inner ring.
房产必看!总结买房全攻略
在房产交易市场中,无论是首次置业的新手,还是准备改善住房的购房者,掌握专业的房产知识都至关重要。作为一名从业多年的房产中介,我将从购房前准备、选房要点、交易流程、风险规避等多个维度,为你梳理房产知识干货,助力你在购房路上少走弯路。
一、购房前:明确需求,做好资金规划
(一)确定购房目的
购房者需要先明确自己的购房目的。是刚需自住,为了拥有稳定的住所;还是改善居住,追求更大的空间、更好的居住环境;亦或是投资,期望房产实现保值增值。不同的购房目的,对应着不同的选房侧重点。比如刚需购房者更注重房屋的价格、交通便利性和周边基础生活配套;投资型购房者则更关注房产的区位发展潜力、租金回报率等。
(二)资金准备与预算规划
1.首付款计算:了解当地的首付比例政策,一般首套房首付比例在20%-30%左右,二套房首付比例可能会提高至40%甚至更高。计算出自己能够承担的首付款金额,例如计划购买一套总价200万的房子,若首付比例为30%,则首付款为60万。
2.贷款能力评估:向银行或金融机构咨询贷款政策,评估自己的还款能力。一般来说,银行会要求购房者的月还款额不超过其月收入的50%。可以使用贷款计算器,测算不同贷款金额、贷款年限下的月供金额,结合自身收入情况,确定合理的贷款额度和贷款年限。
3.其他费用预算:除了首付款和贷款,购房还会产生契税、维修基金、物业费、中介费(如果通过中介购房)等费用。契税根据房屋面积和购房套数不同,税率在1%-3%不等;维修基金通常按照房屋总价的一定比例缴纳。提前了解这些费用,做好资金预算,避免出现资金缺口。
二、选房:多维度考量,选出心仪好房
(一)区位选择
1.地段价值:地段是决定房产价值的关键因素之一。核心地段的房产,通常交通便利、配套完善、发展成熟,具有较强的保值增值能力。例如城市的中心商务区、政务区,以及新兴的重点发展区域,都是比较优质的地段选择。
2.交通配套:优先选择靠近地铁、公交枢纽的楼盘,方便日常出行。对于有私家车的购房者,要关注周边道路的规划和交通拥堵情况,以及小区的停车位配比是否充足。
3.生活配套:考察楼盘周边的商业、教育、医疗、休闲等配套设施。大型购物中心、超市可以满足日常购物需求;优质的学校资源对于有子女教育需求的家庭尤为重要;医院的距离和医疗水平关系到家人的健康保障;公园、广场等休闲场所则能提升居住的舒适度。
(二)楼盘与户型分析
1.开发商品牌与口碑:选择知名且信誉良好的开发商,其开发的楼盘在房屋质量、施工进度、物业服务等方面更有保障。可以通过网络搜索、业主论坛、实地考察等方式,了解开发商过往项目的评价和口碑。
2.楼盘规划与环境:关注楼盘的容积率、绿化率、楼间距等指标。容积率低、绿化率高的小区,居住密度小,环境优美;楼间距大则能保证充足的采光和通风。此外,还要了解小区的内部配套设施,如幼儿园、健身设施、社区活动中心等是否完善。
3.户型选择:根据家庭人口数量和居住需求,选择合适的户型。户型方正、南北通透、布局合理的房子更受欢迎。要注意房间的功能分区是否科学,动静分区是否明确,卧室、客厅、厨房等空间的尺寸是否合理,是否有浪费面积等问题。
三、房产交易:规范流程,保障权益
(一)签订购房合同
1.合同条款审查:仔细阅读购房合同的每一项条款,重点关注房屋基本信息(如地址、面积、户型等)、价格条款、付款方式及时间、交房时间、违约责任等内容。对于不理解或有疑问的条款,及时向开发商或中介咨询,必要时可以寻求律师的帮助。
2.补充协议:如果开发商有补充协议,同样要认真审查。补充协议中的条款可能会对双方的权利义务产生重要影响,避免出现不合理的附加条件或加重购房者责任的条款。
(二)贷款办理
1.准备贷款资料:一般需要提供身份证、户口本、结婚证(已婚人士)、收入证明、银行流水、征信报告等资料。确保资料真实、完整、有效,以提高贷款审批的通过率。
2.选择贷款银行:不同银行的贷款利率、贷款政策、审批速度等可能存在差异。可以多咨询几家银行,比较利率优惠、贷款额度、还款方式等,选择最适合自己的银行办理贷款。
3.贷款审批与放款:提交贷款申请后,银行会对购房者的资质进行审核。审核通过后,双方签订贷款合同,银行会按照约定的时间将贷款发放给开发商或卖方。
(三)房屋验收与交付
1.验收准备:交房前,购房者可以准备好相关工具,如卷尺、小锤子等,用于检查房屋的尺寸、墙面地面是否空鼓等问题。同时,了解房屋验收的标准和流程。
2.实地验收:按照合同约定的交房时间,前往楼盘进行房屋验收。重点检查房屋的质量问题,如墙面是否渗水、裂缝,门窗是否密封良好、开关灵活,水电线路是否正常,厨卫防水是否到位等。发现问题及时记录,并要求开发商整改。
3.办理交付手续:验收合格后,购房者需要缴纳相关费用,如物业费、契税等,然后办理房屋交付手续,领取房屋钥匙,完成房屋交接。
四、房产交易风险规避
(一)产权风险
1.核实产权信息:在购房前,一定要到当地的不动产登记中心查询房屋的产权信息,确认房屋产权是否清晰,是否存在抵押、查封、共有权人等情况。避免购买到产权有纠纷的房屋。
2.警惕小产权房:小产权房是指在农村集体土地上建设的房屋,未缴纳土地出让金等费用,其产权证不是由国家房管部门颁发。小产权房存在诸多风险,如无法办理合法产权证书、不能上市交易、面临拆迁可能得不到合理补偿等,建议购房者不要购买。
(二)市场风险
1.关注市场动态:房地产市场受政策、经济、供需关系等多种因素影响,价格会有波动。购房者要关注国家和地方的房地产政策变化,如限购、限贷、限售政策,以及利率调整等,了解市场的走势,合理选择购房时机。
2.理性购房:不要盲目跟风购房,避免在市场过热时高价买入。要根据自己的实际需求和经济实力,做出理性的购房决策。
掌握这些房产知识,能让你在房产交易中更加从容自信。如果你在购房过程中有任何疑问,欢迎随时咨询,我将竭诚为你提供专业的服务和建议。
声明:本文由入驻焦点开放平台的作者撰写,除焦点官方账号外,观点仅代表作者本人,不代表焦点立场。


