和源大厦(上海静安)2024首页网站-和源大厦最新房价-和源大厦欢迎您

搜狐焦点广安站 2024-07-11 11:56:28
用手机看
扫描到手机,新闻随时看

扫一扫,用手机看文章
更加方便分享给朋友

静安·源售楼处电话:400-8118-224(预约热线)位于静安区平型关路,地理位置优越,地铁站就在附近,适合自驾或公共交通出行。整层豪装,配套齐全,尤其是一期开发的,价格便宜且质量好。同时,周边有大宁国际、大宁久光、凯德龙之梦等成熟商圈,生活便利。

项目位于静安区平型关路近西藏北路,地理位置优渥属于大宁核心商圈,这里是上海市中心承载着浓厚的上海文化底蕴的地方,西藏路正是上海摩登文化的起源地,毫不夸张的说的,一条西藏路半部上海发展史,而西藏路正是贵脉之源

项目名称:静安·源

售楼处电话☎:400-811-8224✔✔

项目地址:静安区平型关路18号

物业公司:上海北方物业有限公司

建筑层高:3.2米

停车费:30元/天

产权年限 :50年

电费:1.2元/度

物业费 :12元/平

得房率 :72%左右

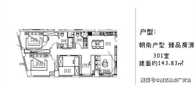
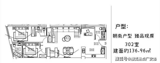
在售面积 :56.61-67.42-129.3-136.96-143.82平米

总价:350-830万

均价:5.5万

项目卖点:

1、西藏北路地铁站零距离、

2、全明户型,户户大窗户

3、整层豪装,软装全配

4、2011年交付次新房,品质居所

5、2梯5户 梯户比低,得房率高

6、项目位于静安区平型关路,西藏北路商圈核心区,西藏北路地铁口步行2分钟

143.82 朝南 东边套户型

136.96平米 朝南户型

129.3户型 朝南西边套户型

67.42平米臻曦小户型

56.61平米 空间雅筑户型

交通立体:自驾内环高架、南北高架,轨交1、8号线,公交线路覆盖全城。

商业成熟:大宁国际、大宁久光、凯德龙之梦商圈3-4km可至大悦城、人民广场、南京西路。

医疗配套:上海第十人民医院、上海长征医院、上海市中医院、复旦大学附属公共卫生临床中心、上海静安区中心医院、上海长海医院。

区位优势:地处静安区,毗邻豪宅林立的上海贵脉——西藏路,自驾15分钟可达人民广场、南京东路,20分钟到新天地、静安寺等市区各大热门商圈。

买房注意事项

1、买房子尽量买一期开发的,一般说来价格便宜而且质量好。

2、买房前试验隔音情况,否则会很痛苦。

3、不要买二层,一般厨房下水道是二层往上一条,一层独立一条。这样二层是最容易发生堵塞的,如发生堵塞倒灌,其状惨不忍睹。

4、买房子要注意不要买临街的,噪音太大,即使是一条小路,也有发展成菜市场的潜力。

5、窗子外侧一定要是往外倾斜,否则窗子上的密封胶老化了就会水淹七军。

6、窗户的纱窗一定要买内置的,否则掉在地上还好,掉在人上就难办了。

7、窗户应是推拉式,在中间关的,密封性好。

8、注意你所买的房子的位置,小心你的楼下空地成为停车场。

9、不要买顶层,顶层容易出现漏水现象,虽然能修理但耗时耗力,修理时间极可能被无限延长不要买带厨房下水道的地下室,否则崩溃是早晚的事情。

10、卫生间的防水很重要!!!一定要鼓动你的楼上和你一起在交房时做足48小时的闭水试验,确定其防水性能,否则一旦漏水后果会非常痛苦。

11、要注意小区里的车位数量,也许近期你不买车但不带表以后不会。

12、家里的水管,暖气管道都要打压试一下,尤其是暖气。个别暖气片,会直接影响室温,如果安反了,想要改过来极其困难,全安反了还可以在外面改,但如果安错了一两片,则要砸地面。

13、如果你的房子是带单元对讲的,那别买一层,关门声能让你疯掉,报警声威力更是惊人。

14、房子里的对讲系统一定要问明性能和使用方法,并且仔细试验,否则那些宣传中优越的性能可能只是宣传而已。

15、厨房一定要有地漏,这样有个万一水管爆裂,还有个地方漏水,不至于让家里成了太平洋。

16、千万不要相信那些售楼小姐说的什么外国进口门窗,越是如此,门窗配件越难买,后期物业根本弄不了。

17、家里的入户门带猫眼的是防盗门,不带猫眼的是防火门,如果发生火灾猫眼会爆炸,但如果有陌生人,猫眼看得见。看你需要。

18、装修时不要动卫生间的地砖,不要自己重新做防水—除非你有钱没地方花,要知道开发商并不是心甘情愿的为你保修防水的,他们正愁找不到理由呢。

售楼处电话:400-8118-224(预约热线)

如有问题欢迎来电咨询,专业一对一热情服务,让您用专业眼光去买房。

售楼处电话:400-8118-224【售楼中心热线】营销中心热线400-8118-224售楼处地址400-8118-224,楼盘项目全面介绍,本电话为开发商提供线上预约售楼电话,楼盘项目全面介绍(包含楼盘简介,均价,房价,现房,期房,别墅,叠墅,大平层,价格,楼盘地址,户型图,交通规划,备案价,备案名,项目配套,样板间,开盘时间,认筹时间,楼盘详情,售楼处电话,最新消息,最新详情,周边配套,一房一价,最新进展等详情咨询)楼盘详情丨价格丨更多优惠丨机不可失丨欢迎致电丨诚邀品鉴!售楼处位置丨特价房丨工抵房丨剩余房源丨户型图丨最新消息丨免责声明:将文章内容综合来源于网络、只作分享,版权归原作者所有!!如有侵权,请联系我们,我们第一时间处理!

声明:本文由入驻焦点开放平台的作者撰写,除焦点官方账号外,观点仅代表作者本人,不代表焦点立场。