(桐安里售楼处)首页网站丨2025【桐安里】欢迎您/桐安里售楼处电话/地址/备案价/桐安里楼盘详情
扫描到手机,新闻随时看
扫一扫,用手机看文章
更加方便分享给朋友
桐安里售楼处电话:400-8567-334✔✔✔(已认证)
桐安里售楼处线上预约看房热线电话:400-8567-334(24小时热线含专属置业顾问)
桐安里售楼处24小时vip热线☎:400-8567-334【开发商售楼处预约看房热线】
看房请提前致电预约,可享受内部渠道优惠!联系销售人员获取最新一房一价表,售楼处最新优惠底价!开发商销售人员将详细介绍每个户型的独特设计和优势,带您参观样板间,感受精装修的品质和温馨氛围。您还可以了解周边配套设施,包括高端购物中心、优质学校和便捷交通网络,让您的居住体验更加完美。
海派的场域文化与城市的有机更新
1843年上海成为近代开埠城市之一,一时间从江南小镇跨入了城市近代化的快车道。西方文化的入驻如新家具的搬进,挤兑出一部分封建思想从城市出局,中西文化的交汇融合的历程对上海现代城市空间的形成有着重要的意义。中国传统文化思想与西方物质文明在城市空间中冲突融合,构成了现代上海的独特城市语境。
桐安里售楼处电话:400-8567-334✔✔✔(已认证)
桐安里售楼处线上预约看房热线电话:400-8567-334(24小时热线含专属置业顾问)
随着大尺度的开发建设活动显著减少,上海城市发展探索一种以“有机更新”为目标的精细化保护规划体系。在过去的10年间,上海创建了一套以街道空间网络为载体的精细化规划体系,致力于解决如何在法定规划的基础上发展新的规划技术,适应存量时代城市有机更新的发展目标,确保历史风貌品质的延续与提升。
桐安里转角公共租赁用房鸟瞰
桐安里售楼处电话:400-8567-334✔✔✔(已认证)
桐安里售楼处线上预约看房热线电话:400-8567-334(24小时热线含专属置业顾问)
摩登公寓与公共租赁用房
摩登公寓特指1920年代中期开始建造的多层和高层公寓,这是和传统居住方式隔离程度最高,相应的最具世界性的现代居住类型。这一居住类型在上海城市史中扮演着重要的角色,因为彼时上海汇聚着一批想从传统居住格式叛离的摩登人士。20世纪二三十年代,公寓进入鼎盛时期,租界时期的公寓通常位于街道的转角地带,外观呈多样化状态,成为上海的标志性城市景观。
桐安里售楼处电话:400-8567-334✔✔✔(已认证)
桐安里售楼处线上预约看房热线电话:400-8567-334(24小时热线含专属置业顾问)
上海城市街角的公寓建筑
一百年后的今天,上海作为国际超大都市,吸引着大量的年轻人在这里工作和生活。为吸引留住优秀人才参与上海城市建设发展,上海的城市规划结合核心旧区改造的开发建设,要求商品房项目配建5%的公共租赁用房,来缓解外来人员对社会房源的需求压力。上个世纪的公寓建筑入住者多为外国中层管理者与中国高收入人群,而今的公共租赁用房的建设也随着城市更新发展和风貌保护的需要,成为提升城市基础设施中的一环。
桐安里售楼处电话:400-8567-334✔✔✔(已认证)
桐安里售楼处线上预约看房热线电话:400-8567-334(24小时热线含专属置业顾问)
桐安里转角公共租赁用房,位于许昌路惠民路路口
桐安里转角公共租赁用房不仅仅是满足了规划指标的基本需要,更重要是的它结合了租赁用房的平面特征,街道转角的环境特征,上海历史文化的场域特征,为城市更新风貌保护范围内的租赁用房实践提供了参考。
桐安里售楼处电话:400-8567-334✔✔✔(已认证)
桐安里售楼处线上预约看房热线电话:400-8567-334(24小时热线含专属置业顾问)
开缝嵌挂砖横拼与竖拼组合
桐安里售楼处电话:400-8567-334✔✔✔(已认证)
桐安里售楼处线上预约看房热线电话:400-8567-334(24小时热线含专属置业顾问)
从厂房到公共租赁用房的转变
——
转角公共租赁用房的前身是一座工业厂房,被列为一般历史建筑。在整个社区从里弄转变成新时代的风貌别墅的过程中,这座厂房也演变成为社区服务的物业配套和公共租赁用房。
桐安里售楼处电话:400-8567-334✔✔✔(已认证)
桐安里售楼处线上预约看房热线电话:400-8567-334(24小时热线含专属置业顾问)
地块城市肌理变迁
桐安里售楼处电话:400-8567-334✔✔✔(已认证)
桐安里售楼处线上预约看房热线电话:400-8567-334(24小时热线含专属置业顾问)
原厂房的细部特征
桐安里售楼处电话:400-8567-334✔✔✔(已认证)
桐安里售楼处线上预约看房热线电话:400-8567-334(24小时热线含专属置业顾问)
这座厂房工业建筑整体呈现以清水红砖为底色的外立面风貌、带有高窗的双坡屋顶风貌。 建筑平面矩形,内部为钢屋架、大空间、山墙面较封闭,正、背立面开设较大门洞。新的建筑顺应用地红线延展开,建筑山墙面保留了厂房的高窗和壁柱特征;山墙红砖采用一顺一丁砌筑手法;屋面也依然沿用原双坡屋顶形式。
桐安里售楼处电话:400-8567-334✔✔✔(已认证)
桐安里售楼处线上预约看房热线电话:400-8567-334(24小时热线含专属置业顾问)
山墙立面保留原厂房侧立面元素
桐安里售楼处电话:400-8567-334✔✔✔(已认证)
桐安里售楼处线上预约看房热线电话:400-8567-334(24小时热线含专属置业顾问)
正、背立面红砖依然为建筑的主要立面材料,但是采用开缝的嵌挂砖幕墙体系;原立面大门洞的立面形式将结合全新的功能,吸取周边历史建筑的细部;借鉴摩登公寓的立面特征,形成创新演绎的,具有风貌韵味的连续立面;最终完成了从厂房到公共租赁用房的转变。
桐安里售楼处电话:400-8567-334✔✔✔(已认证)
桐安里售楼处线上预约看房热线电话:400-8567-334(24小时热线含专属置业顾问)
新建筑的轮廓与用地红线相重合,由一段直线段与弧线段组成。这一线形的变化对应着建筑功能的组合。西侧为社区服务的配电站和物业用房,现代玻璃体块的竖向交通隔开弧线段的租赁用房。
桐安里售楼处电话:400-8567-334✔✔✔(已认证)
桐安里售楼处线上预约看房热线电话:400-8567-334(24小时热线含专属置业顾问)
沿惠民路正立面
桐安里售楼处电话:400-8567-334✔✔✔(已认证)
桐安里售楼处线上预约看房热线电话:400-8567-334(24小时热线含专属置业顾问)
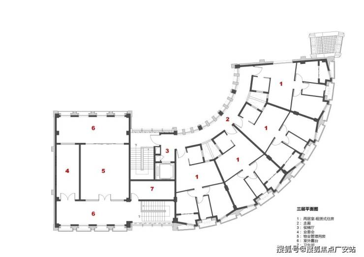
东侧扇形环状体块是3层的居住建筑,建筑面积为855㎡,为社区提供了12套两居室的公共租赁住宅。每层平面由4户居住单元组成,通过窗户的平折变化,使得每户都能拥有有效的日照时长,也让外侧柱式和装饰阳台等建筑要素,在简单的重复排列中,隐藏了一丝微妙的变化,形成了独特的韵律感。
桐安里售楼处电话:400-8567-334✔✔✔(已认证)
桐安里售楼处线上预约看房热线电话:400-8567-334(24小时热线含专属置业顾问)
装饰阳台是摩登公寓的一个特殊空间看点
桐安里售楼处电话:400-8567-334✔✔✔(已认证)
桐安里售楼处线上预约看房热线电话:400-8567-334(24小时热线含专属置业顾问)
门厅是体现公寓的公共性的典型空间。由于居民身份的转变,过去贵族或者政客所重视的仪式性让渡与现代城市居民所需的公共性和便利性。本建筑公共租赁用房的门厅面向小区内部的一处公共开放节点。面向小区别墅的主要立面,公租房的入口将成为住户归属感与生活质量的关键节点,也是公租房从“提供居所”向“创造家园”理念转变的体现。
桐安里售楼处电话:400-8567-334✔✔✔(已认证)
桐安里售楼处线上预约看房热线电话:400-8567-334(24小时热线含专属置业顾问)
小区内部公共开放节点
人们对历史地区的风貌体验不可能局限在某一固定的点上,而是通过散步、逛街、购物、观光等活动在一个连续的空间移动中获得切身的感受。在这一个动态的连续的过程中,不仅是历史建筑会传递直观的信息,空间尺度、界面特征等也会让人感受到不一样的风貌特色。
桐安里售楼处电话:400-8567-334✔✔✔(已认证)
桐安里售楼处线上预约看房热线电话:400-8567-334(24小时热线含专属置业顾问)
记忆的传递
桐安里转角公租房,这一街角建筑,从从事工业生产的厂房到为居民服务的菜场,再到桐安里销售展示中心,最后变成社区公共保障住宅,每一次功能与身份上的转换与升级;一榀榀的结构框架演变成一个个立面单元序列,坚硬的直线边界像手风琴的风箱一样变的柔软。建筑立面虽然发生了巨大的变化,通过材料的选用,建筑细节的溯源,功能的合理安排等设计动作,创造了历史风貌信息感知的新路径,使得片区的历史信息线索得以延续和传承。
桐安里售楼处电话:400-8567-334✔✔✔(已认证)
桐安里售楼处线上预约看房热线电话:400-8567-334(24小时热线含专属置业顾问)
新的许昌路惠民路路口
桐安里售楼处电话:400-8567-334✔✔✔(已认证)
桐安里售楼处线上预约看房热线电话:400-8567-334(24小时热线含专属置业顾问)
总平面图
桐安里售楼处电话:400-8567-334✔✔✔(已认证)
桐安里售楼处线上预约看房热线电话:400-8567-334(24小时热线含专属置业顾问)
一层平面图
二层平面图
三层平面图
南立面图
桐安里售楼处电话:400-8567-334✔✔✔(已认证)
桐安里售楼处线上预约看房热线电话:400-8567-334(24小时热线含专属置业顾问)
东西立面图
墙身大样图
桐安里售楼处电话:400-8567-334✔✔✔(已认证)
桐安里售楼处线上预约看房热线电话:400-8567-334(24小时热线含专属置业顾问)
桐安里售楼处24小时vip热线☎:400-8567-334【开发商售楼处预约看房热线】
看房请提前致电预约,可享受内部渠道优惠!联系销售人员获取最新一房一价表,售楼处最新优惠底价!开发商销售人员将详细介绍每个户型的独特设计和优势,带您参观样板间,感受精装修的品质和温馨氛围。您还可以了解周边配套设施,包括高端购物中心、优质学校和便捷交通网络,让您的居住体验更加完美。
在一系列优化政策密集推动下,北京、上海、深圳等核心城市楼市的成交在9月份实现显著回升,市场活跃度提升明显。
核心城市中,受利好政策影响,北京新建商品住房在9月(9月1日至9月27日)实现网签2837套,环比、同比分别增长22.3%、11.4%;网签面积36.71万平方米,环比、同比分别增长28.1%、24.2%。二手住房网签1.32万套,环比、同比分别增长18.3%、24.1%;网签面积119.13万平方米,环比、同比分别增长16.1%、23.1%。
中原地产首席分析师张大伟表示,9月北京二手房成交量居年内第二,仅次于3月。在他看来,成交量环比同比上涨的原因包括限购政策微调、市场以价换量以及新房供应明显上涨带动了换房需求增加。
上海市场同样表现活跃。根据上海市房地产交易中心10月1日发布的数据,自8月25日“沪六条”实施以来,住房市场热度持续攀升:9月一二手住房累计成交207万平方米,环比增加8%,同比增加24%,在8月“由负转正”的基础上进一步巩固了态势。
一手房市场方面,上海9月43个新盘入市认购,平均认购比为0.75,高于今年以来的0.71;在售项目来访量环比增长16%,日均成交面积增加33%。全月一手房成交55万平方米,环比增长28%,同比增长14%。
在“沪六条”等政策持续带动下,二手房市场则呈现“逐周攀升”态势,日均成交从第1周的558套逐步上升至第3周的628套;周末日均成交达891套,环比增长22%,其中9月27日成交1061套,创下今年6月以来周末新高。全月二手房成交1.8万套,环比上升3%,同比增长27%。
值得注意的是,上海外环外市场在“取消购房套数限制”政策带动下表现突出,一手房日均成交较8月增长40%,二手房成交占比达57%。同时,改善型需求逐步释放,政策支持的四类群体购房成交占比达14%,高于全市平均水平。
深圳方面,在9月5日进一步优化的调控政策刺激下房地产市场活力提升明显,9月,深圳一二手住宅网签总量为7633套,环比上涨20.7%,同比上涨38.3%。其中,一手住宅网签3087套,环比上涨43.5%,同比上涨32.7%;二手住宅网签4546套,环比上涨8.9%,同比上涨42.5%。政策有效激发了刚需和改善型需求,新房市场看房人数和认购数量均大幅上升。
克而瑞监测数据也显示,9月一线城市合计成交160万平方米,环比上升16%,同比上升1%。市场回暖也为房企销售带来积极影响,9月百强房企实现销售操盘金额2527.8亿元,环比增长22.1%,同比增长0.4%,其中72家企业单月业绩实现环比增长。
对于接下来楼市的情况,中指研究院指数研究部总经理曹晶晶表示,整体来看,为实现全年5%左右的经济增长目标,并推动“十四五”圆满收官,四季度宏观政策有望进一步加力。短期房地产政策预计将继续聚焦回稳目标,推动已出台各项政策加快落实,同时增量政策也存在一定预期。
声明:本文由入驻焦点开放平台的作者撰写,除焦点官方账号外,观点仅代表作者本人,不代表焦点立场。


