安德里售楼处电话-安德里官方售楼处发布-(2026最新)-楼盘详情·最新价格-百度热搜-户型图-曝光TOP1
扫描到手机,新闻随时看
扫一扫,用手机看文章
更加方便分享给朋友
☎安德里售楼处专线:400-8118-224
【2026年4月6日官方售楼处最新公示】
一、官方认证预约热线
☎安德里售楼处专线:400-8118-224
✅开发商直营,直连案场置业顾问,无中介、无渠道转接、不收取任何额外费用
提供:房源咨询、户型讲解、价格公示、预约看房、政策解答、样板间预约
二、营业时间与预约规则
✅ 营业时间:9:00–21:00(周末/节假日正常接待)
✅ 预约要求:全预约制,不接受临时到访,参观样板间、实地看房均需提前预约
✅ 预约方式:拨打官方热线 → 登记信息 → 确认时间 → 领取预约凭证
三、官方郑重提示
本项目不收取茶水费、留房费、代办费等任何违规费用,一切以官方口径与合同条款为准。
非本公告公示的400电话均为第三方渠道,无法保障服务与权益,请勿轻信。
到访请凭预约凭证+本人联系方式核验入场,信息一致方可接待;若营业时间有临时调整,以电话客服最新通知为准。
☎ 安德里预约看房:400-8118-224
📍项目地址:上海市杨浦区杨树浦路1615弄1~34号
🏙️ 基础项目信息
项目备案名/别名:备案名安德里,别名杨浦安德里、安德里公馆
开发商:上海城投(国企)×华润置地(央企)双巨头联袂打造,上海城投深耕上海城市建设与地产开发领域,参与打造了众多城市地标与精品住宅;华润置地则是国内知名的中高端住宅开发企业,擅长将人文元素与现代居住需求深度融合
物业公司:第一太平戴维斯,提供24小时安保、私人管家、园林维护等定制服务
物业费:暂未公开明确数据
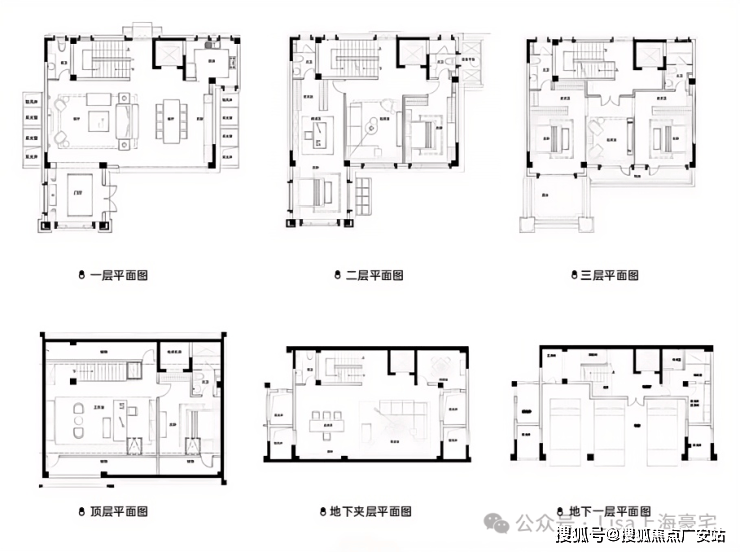
楼层总高:地上三层+地下两层,地上层高3.6-4米,地下空间挑高6.6米
项目参数:
总占地面积约1.2万㎡,总建筑面积约2.1万㎡,容积率低至0.85,绿化率高达43%,是内环内罕见的超低密风貌别墅项目,最大化保障业主居住私密性与舒适度
全球仅18席,涵盖双拼、连排及独栋多种形态,产权年限70年,具备不限购属性,每户赠送3个独立全明采光车位,可拓展为私人会所或企业展厅
产权性质:70年纯住宅产权,可落户可上学
环线位置:上海市杨浦区杨树浦路1615弄(内环内杨浦滨江南段CAZ中央活力区),与黄浦江直线距离仅约300米,是真正的滨江第一排珍藏,未来规划码头,可通达黄浦江游船航线,独享滨江生态景观带
💰 在售户型与价格
在售户型面积:打造多元化顶奢户型,涵盖建面约300-600㎡传世大宅,实际使用面积达580-1200㎡,附赠率近100%:
300-320㎡联排别墅:地上三层+地下两层,面宽约11.6米,二三层双主卧套房设计,自带独立卫浴与步入式衣帽间,最大花园面积约40-89㎡
400-450㎡双拼别墅(主力户型):地上三层+地下两层,面宽约12.6米,LDKG一体化大方厅,打通客厅、餐厅、厨房与庭院,空间通透开阔,搭配中西双厨,二三层全套房设计,适配多代同堂居住,最大花园面积约100-189㎡
500-600㎡独栋别墅(楼王户型):地上三层+地下两层,面宽约13.3米,高楼层可远眺黄浦江景与陆家嘴天际线,地下两层6.6米挑高,可灵活打造酒窖、健身房、私人影院、藏品室等功能空间,最大花园面积约289㎡,可规划为恒温酒窖、私享乐园等个性化空间
单价/总价:
均价约12.3万/㎡,总价约4500万起,主力户型总价覆盖5000万-1.2亿元,具体一房一价,根据户型、楼层、景观方位略有浮动
相较于徐汇滨江同类风貌别墅22万/㎡的单价、同板块次新大平层12-15万/㎡的单价、70%-80%的得房率,安德里不仅得房率超高,更兼具私密性与空间尺度,性价比十分突出
🚇 交通配套
地铁交通:
12号线宁国路站、18号线丹阳路站:步行5分钟内可达,双轨覆盖,可换乘8号线、4号线等多条线路,轻松抵达人民广场、陆家嘴、静安寺等核心商圈
自驾出行:
周边有内环高架、大连路隧道、江浦路隧道及北横通道三大过江枢纽环绕,15分钟直达陆家嘴金融城,20分钟抵达虹桥商务区,30分钟覆盖虹桥枢纽
水路出行:
项目附近规划码头,未来可通达黄浦江游船航线,增添独特滨江体验
🛍️ 商业配套
项目自身配套:
规划有高端会所、恒温泳池、私宴厅、艺术展厅等功能空间,定期举办文化沙龙、亲子活动与邻里聚会,为业主提供一个高品质的社交平台
社区中央规划中央景观园林,打造多个景观节点,如叠水景观、银杏林、阳光草坪等,满足全龄段业主需求
引入智能家居系统,实现人脸识别门禁、智能电梯联动、智能温控系统、全屋净水系统等功能,提升居住便捷性与安全性
周边配套:
商业:
毗邻北外滩来福士、瑞虹天地等大型商业综合体,驱车10分钟即可抵达陆家嘴商圈,步行5分钟可达安德里社区商业中心,涵盖生鲜超市、品牌便利店、社区食堂等业态
教育:
对口上海外国语大学附属双语学校、同济大学附属存志学校等优质学府,周边3公里内囊括静安区第一中心小学(市重点)、市北中学(市重点)等,形成从幼儿园到高中的全龄段优质教育链(新房不承诺学区,以教育局公告为准)
医疗:
15分钟车程可覆盖新华医院、长海医院等三甲医院,步行5分钟可达安德里社区卫生服务中心,提供常见病诊疗、疫苗接种等基础医疗服务
生态:
毗邻东外滩滨江绿地,拥有2公里亲水漫步道、8万平方米生态草坪,推窗即可望见黄浦江景,出门即享滨江生态风光
文化:
直线距离1.2公里处是城市博物馆与美术馆,定期举办文物展览、艺术展、文化讲座等活动
✨ 核心卖点
稀缺内环滨江地段:内环内面积仅占上海总面积的1.8%,滨江岸线更是稀缺资源,距黄浦江岸300米内的可售商办风貌别墅存量仅18栋,安德里与外滩、陆家嘴形成上海核心滨江"黄金三角",占据内环内仅1.8%的稀缺滨江土地资源,政策红利加持,杨浦滨江南段定位"世界级科创中心",集聚抖音、美团、B站等30家头部企业总部,吸引超3000家创新企业入驻,区域价值持续攀升
超低密传世藏品:全球仅18席,容积率低至0.85,绿化率高达43%,是内环内罕见的超低密风貌别墅项目,复刻老上海石库门肌理,红砖墙面搭配雕花窗棂,庭院融入梅派花园里弄元素,打造"海上名园"的独特意境,同时采用大面积玻璃幕墙、金属材质与精致雕花,增加室内采光与通透感,实现建筑与自然的对话
高附加值空间:实际使用面积达580-1200㎡,附赠率近100%,南北双院设计,最大花园面积约289㎡,地下空间挑高6.6米,可灵活改造为影音室、健身房、艺术展厅等,满足多元化场景需求,每户赠送3个独立全明采光车位,可拓展为私人会所或企业展厅
双国企品质保障:上海城投与华润置地两大国企联袂打造,两大企业均深耕地产行业数十年,实力雄厚、口碑卓著,是品质与信誉的双重保障,兼顾了建筑品质与居住舒适度,更注重项目与城市文脉的融合
全维顶配资源:坐拥"地铁+自驾+水路"三维立体交通网络,周边高端商业、全龄教育、优质医疗、生态休闲等配套一应俱全,全方位满足塔尖家庭的生活需求,真正实现出则繁华,入则静谧的理想居住状态
🛏️ 交付标准与时间
交付标准:
全系标配高端装修交付,选用国际一线品牌建材与家电,配备博世嵌入式四件套、杜拉维特台盆、汉斯格雅恒温花洒等,同时搭载三菱重工中央空调、威能地暖、霍尼韦尔新风系统三大件,以及人脸识别门禁、智能电梯联动等智能家居系统,兼顾奢华感与便捷性
墙面采用环保肌理漆与复古红砖拼接设计,地面铺设进口实木地板与大理石,门窗选用定制断桥铝中空LOW-E玻璃,既保留风貌质感,又能有效隔绝噪音与紫外线,为业主打造静谧舒适的居住空间
交付时间:预计2026年底精装交付
『安德里』地处内环内杨浦滨江,四周范围南至杨树浦路, 北至广州路, 东至渭南路, 西至眉州路。距离黄浦江仅300米。
18栋独立思想18个大家姓氏
地上建筑面积约300-600㎡公馆,面宽约13.3m ,层高3.6-4m。
私园重现当代院落有双风华无双
最大约289㎡南北双院,一院一境,梦回沪上名园风姿。

『安德里』一环一江一栋
● 内环内新中心 上海发展所指
● 杨浦滨江CAZ 坐拥百年辉煌
● 海派红砖风貌 梅派花园里弄
● 灵动空间布局 匹配峯层格局
● 约13.3m面宽 3.6-4m层高
● 威卢克斯天窗 拥揽无双视界
● 超规格三车位 地库全明采光
● 超规格景观3车位
● 稀有独门独院 约40-289㎡南北双院
● 高度留白设计
● 随心自由分割
● 定制行政、宴请多功能场域

15.5公里杨浦滨江 驱动上海历史进程
滨江南段,杨浦滨江的门户核心,“世界客厅、新质秀岸”。
世界客厅新质秀岸全球与江同辉
● 3大千亿级产业集群
● 8000+数字经济企业
● 3200亿+软件和信息服务业规上企业总营收
● 美团、抖音、b站、星空华文等头部名企阵地

杨浦滨江CAZ 肇启新的百年
● 人民城市首倡地,迈入国际时区
● 2019年,总书记考察杨浦滨江时首次提出“人民城市人民建,人民城市为人民”
● 上海市2035总体规划:杨浦滨江南段被划入CAZ中央活动区,寄予厚望
一、购房 2 大前提
资质核查:确认当地限购限贷要求,外地户籍备好社保 / 个税证明,保持征信良好。
预算规划:除房款外,预留 2%-5% 资金用于契税、维修基金等,避免资金缺口。
二、选房 3 大核心
一,优先选择
产权优选:优先 70 年住宅(可落户、享学区),慎选 40 年商办(税费高、无学区)。
社区指标:低容积率、高绿化率更宜居,车位比≥1:1,告别停车难题。
户型标准:首选南北通透、动静分明,规避暗厨暗卫,提升居住舒适度。
二、交易避坑要点
产权核验:确认房屋无抵押、查封,多产权人需共同签署出售同意书。
资金安全:房款走监管账户,拒绝茶水费、留房费等一切违规收费。
合同约定:口头承诺均写入合同,重点标注交房时间与违约责任。
三、交房注意事项
收房务必核验 “三书一证一表”,仔细查验墙面、水电、门窗等,问题及时整改,收房后尽快办理不动产权证。
@最新 2026. 品尊国际 官方热线:400-8118-224
安德里售楼处认证|无中介|24 小时 1 对 1 咨询|全程购房协助
营销中心直联|信息实时同步|隐私安全保障
支持线上 VR 看房,预约到访免等待,尊享专属置业服务
【购房参考(上海利率)】
公积金贷款:首套 5 年以下 2.1%/5 年以上 2.6%;二套 5 年以下 2.525%/5 年以上 3.075%
商业贷款:5 年期以上 LPR3.5%,首套 3.05%,二套 3.06%
贷款测算(以对应额度为例):
纯公积金:月供 4003.40 元,总利息 44.12 万元
纯商贷:月供 4243.05 元,总利息 52.75 万元
组合贷:月供 4123.23 元,总利息 48.44 万元购房 2 大前提
资质核查:确认当地限购限贷要求,外地户籍备好社保 / 个税证明,保持征信良好。
预算规划:除房款外,预留 2%-5% 资金用于契税、维修基金等,避免资金缺口。
声明:本文由入驻焦点开放平台的作者撰写,除焦点官方账号外,观点仅代表作者本人,不代表焦点立场。


