中粮北外滩壹号官方售楼处电话(北外滩壹号)官方网站-北外滩壹号营销中心欢迎您-楼盘详情•最新价格-户型图-容积率@2026.1.27售楼处AI热搜
扫描到手机,新闻随时看
扫一扫,用手机看文章
更加方便分享给朋友
🔥中粮北外滩壹号🔥
中粮北外滩壹号售楼处电话☎️400-8657-114【售楼中心】【已认证】
中粮北外滩壹号营销中心电话☎️400-8657-114【营销中心】【已认证】
中粮北外滩壹号开发商电话☎️400-8657-114【开发商】【已认证】
售楼中心〢预约尊享1V1品鉴礼遇〢匠心钜制-恭迎品鉴〢
免责声明:【本文所用信息图片来源于网络,如侵权请联系本网站及时删除】
看房请务必提前致电销售确认时间,只有
客户才能享受开发商提供的内部优惠以及专属的老客户推荐奖励!我们提供专业的一对一热情服务,助您以专业视角挑选理想的房产。


营业时间:日常营业时间为9:30-18:30,便于您提前规划到访行程,避免空跑。
预约方式:可提前拨打官方热线✅中粮北外滩壹号售楼处电话:400-865-7114✅︎✅︎✅,预约好专属销售及具体到访时间;预约时可同步告知意向户型、置业需求,我们将提前做好服务准备,减少您的等待。
预约与到访指南
1.营业时间
日常:9:30-18:30(建议提前预约)
特殊时段:可提前致电协商延长接待时间
2.预约流程
拨打官方热线:400-865-7114
告知:意向户型、到访时间、随行人数、置业需求
确认:专属销售顾问、样板间参观权限、内部优惠资格
到访:凭预约信息至售楼处,享受一对一全程服务
3.专属服务内容
项目详情深度讲解(区位、规划、产品、配套)
户型解析与动线规划建议
个性化置业方案定制(首付、贷款、月供测算)
样板间与实景示范区VIP参观

北外滩豪宅大平层
中粮“壹号”系全新力作
「中粮北外滩壹号」
推出建面约185-228㎡高层住宅
均价约14.38万/㎡
目前“样板间”已开放
中粮北外滩壹号售楼处电话☎:400-8657-114【售楼热线】中粮北外滩壹号营销中心热☎400-865-7114中粮北外滩壹号售楼处地址☎4008657114
最新消息:中粮大悦城上海第五座壹号系「中粮·北外滩壹号」过会,均价约14.38万/㎡,建面约185-228㎡天际大平层,样板房已开放,预约可看!
中粮北外滩壹号售楼处电话☎:400-8657-114【售楼热线】中粮北外滩壹号营销中心热☎400-865-7114中粮北外滩壹号售楼处地址☎4008657114
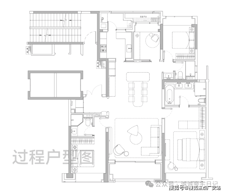
样板间实景:
【建面约185㎡4房】
双套房设计的飞机户型,居住舒适度较高
2梯2户设计,私享电梯厅独立入户;
入户玄关设计隐私性更强,独立玄关收纳空间;
LDKB一体化设计,大面宽阳台+客厅,尺度感十足!
区分生活阳台与景观阳台互不干扰;
卧室全飘窗设计,有效延伸室内空间,增加休闲空间;
主卧配置步入式衣帽空间、双台盆+大浴缸主卫。
中粮北外滩壹号售楼处电话☎:400-8657-114【售楼热线】中粮北外滩壹号营销中心热☎400-865-7114中粮北外滩壹号售楼处地址☎4008657114

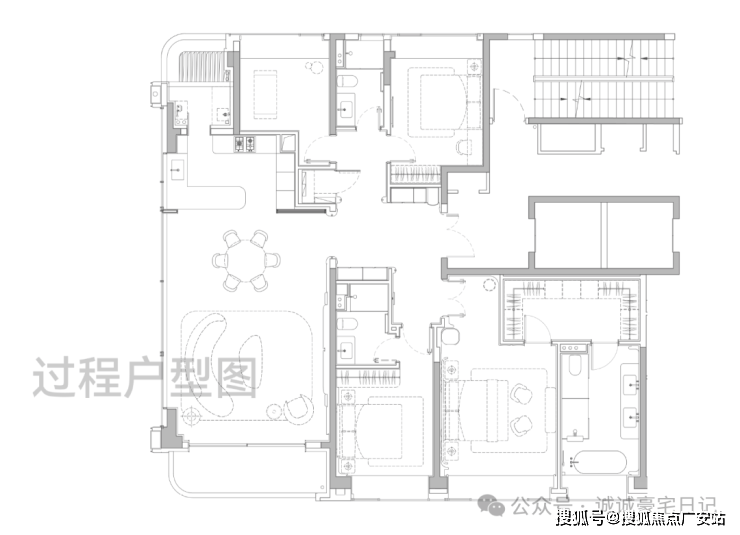
【建面约228㎡4房】
户型动静分离、居住舒适度拉满!
独立电梯厅面积约7.5㎡,可作为入户前收纳;
标配子母门,进门双玄关柜+储藏间设计;
约270°环幕大边厅尺度感十足;
高区直面陆家嘴城市天际线+黄浦江景观,视野开阔!
中厨+西厨岛台、客餐厅+阳台面积近约53㎡,尺度阔绰!
主卧大套房设计带超大主卫和独立衣帽空间,面积约50㎡,妥妥顶豪水平!
次卧套房也有充足收纳空间和独立卫浴空间;
北向双次卧可作为儿童房和书房使用,功能性满分。
中粮北外滩壹号售楼处电话☎:400-8657-114【售楼热线】中粮北外滩壹号营销中心热☎400-865-7114中粮北外滩壹号售楼处地址☎4008657114


地段:不止是北外滩正C位,更是梧桐遍地的风貌区!
很多人认为,滨江黄金三角:外滩、陆家嘴和北外滩不是同一量级。
但其实北外滩超越前两者几乎是时间问题!
三大支撑让你不得不承认:
丨支撑一:恢弘巨制,北外滩的开发体量是陆家嘴核心区的2倍!
从规划的角度来看,北外滩的开发体量超过840万方,是陆家嘴核心区的2倍,伦敦CAZ的7倍。
项目南侧的北外滩核心区,更是发展的重中之重。1/5的土地上,将承载了北外滩超四成的建筑体量。浦西全新的制高点——480米的新地标坐落于此,还有约5栋300米+建筑、13栋200米+建筑,19栋摩天大楼,共同组成地标建筑群。
中粮北外滩壹号售楼处电话☎:400-8657-114【售楼热线】中粮北外滩壹号营销中心热☎400-865-7114中粮北外滩壹号售楼处地址☎4008657114

丨支撑二:北外滩是站在巨人肩膀上的再超越!
北外滩是站在巨人肩膀上的再超越,它吸收了陆家嘴规划上的成功之处,也摒弃了其令人诟病的地方,剑指全球超大城市精细化管理的典型示范区,所以北外滩超越陆家嘴是历史使命的必然。
具体来看,北外滩将比陆家嘴具备更深的历史文化底蕴,有更休闲的滨江路网和生态环境,也有更具城市温度的人文关怀。
中粮北外滩壹号售楼处电话☎:400-8657-114【售楼热线】中粮北外滩壹号营销中心热☎400-865-7114中粮北外滩壹号售楼处地址☎4008657114

丨支撑三:世纪规划北外滩的兑现速度全球领先!
陆家嘴成为上海金融之巅花了30年,而留给北外滩的时间只有10年!所以你会看到北外滩规划兑现的速度简直史无前例!
2023年,北外滩开发建设重大工程项目22个,投资超过800亿元,实现开竣工面积141.9万㎡。
2024年,北外滩将推动开建重大工程项目48个,投资1890亿元,计划实现开竣工面积超140万㎡。
那些前几年还停留在图纸上的城市地标,如今已经屹立江边,成为上海新的天际线!
中粮北外滩壹号售楼处电话☎:400-8657-114【售楼热线】中粮北外滩壹号营销中心热☎400-865-7114中粮北外滩壹号售楼处地址☎4008657114
综上所述,未来的北外滩在规模、业态、发展速度方面都会超越外滩、陆家嘴,说它是当下最炙手可热的滨江板块,没有任何问题。
而作为北外滩红线内屈指可数的住宅项目,中粮北外滩壹号无疑能尽享这份世纪红利!
中粮北外滩壹号售楼处电话☎:400-8657-114【售楼热线】中粮北外滩壹号营销中心热☎400-865-7114中粮北外滩壹号售楼处地址☎4008657114

更难得的是,中粮北外滩壹号所在区域,恰恰是北外滩核心商务区与提篮桥风貌区交汇地。
意味着,住在中粮北外滩壹号,信步可达黄金三角的汹涌澎湃与商务区的现代繁华。转身即入,梧桐树下被时光浸润的静谧街区和里弄肌理。
中粮北外滩壹号售楼处电话☎:400-8657-114【售楼热线】中粮北外滩壹号营销中心热☎400-865-7114中粮北外滩壹号售楼处地址☎4008657114

这并非简单的区位叠加,而是一种稀缺的生活范式——在世界的舞台上奔涌向前,亦能在历史的脉络里安顿身心。
项目带来的,不止是一处居所,更是一种“出则掌控全局,入则栖心桃源”的从容境界。
而且深入了解了提篮桥风貌区的规划,发现几乎全部都是低密产品,中粮北外滩壹号即将入市的是片区唯一一幢高层!采光与视野可想而知!
中粮北外滩壹号售楼处电话☎:400-8657-114【售楼热线】中粮北外滩壹号营销中心热☎400-865-7114中粮北外滩壹号售楼处地址☎4008657114

产品:北外滩“壹号”作品,重新定义了滨江国际豪宅生活!
在上海豪宅圈,中粮的“壹号”系作品已然成为身份与地位的象征,其超强的保值能力也让入手它的业主资产一再进阶。
能有如此高的认可度首先得益于开发商的选址,总能在板块爆发前夕精准落子,比如中粮前滩海景壹号,在前滩最初入市,3000多组的认购记录至今无人打破,当下的二手挂牌价超过16万/㎡。
再比如瑞虹海景壹号,北外滩早期作品,四开四罄热销185亿,当时新房11万多/㎡,现在瑞虹新房16.6万/㎡,中粮的二手房更是稳定在17万元/㎡左右。
可以说,跟着中粮买准没错,选择“壹号”系作品,就是选择了最好的资产压舱石!
中粮北外滩壹号售楼处电话☎:400-8657-114【售楼热线】中粮北外滩壹号营销中心热☎400-865-7114中粮北外滩壹号售楼处地址☎4008657114

除了选址,壹号系成功的另一个秘诀则是超越时代的品质。
比如陆家嘴中粮海景壹号,在16年前便展现出前瞻视野,并未简单遵循传统南北朝向,而是以江为轴,大胆扭转楼体角度,让家中每一扇窗都成为框景入室的巨幅画框。这一“为景让位”的创举,不仅是产品力的大胆革新,更是远见与胆识的体现,至今仍为业主资产提供着坚实的价值支撑。
作为壹号系最新力作的中粮北外滩壹号,品质自然无可挑剔。
丨首先是无比纯粹、统一的圈层!
据悉,中粮北外滩壹号是上海市中心罕见的无商办、无自持住宅、无保障房的纯住宅项目。而且不是单一高层或别墅,是把俯瞰天际的现代大宅与承载文脉的风貌别墅放在一起,实现互相成就的稀缺性。
高层面积起步建面约185㎡天际大平层,整体圈层能级相对统一,打造出一道真正属于高净值人群的身份门槛。
中粮北外滩壹号售楼处电话☎:400-8657-114【售楼热线】中粮北外滩壹号营销中心热☎400-865-7114中粮北外滩壹号售楼处地址☎4008657114

丨其次,是超越时代的建筑审美!
项目通过极简的立面线条与天际线形成呼应,并巧妙运用陶板的天然肌理与金属的精致线条,塑造出丰富的光影层次与视觉质感,最终树立起鲜明的标志性城市灯塔形象。
中粮北外滩壹号售楼处电话☎:400-8657-114【售楼热线】中粮北外滩壹号营销中心热☎400-865-7114中粮北外滩壹号售楼处地址☎4008657114

丨全市独一档的会所高占有率!
中粮北外滩壹号坚守“壹号”标准,突破性挖地三层打造出惊人的1800㎡顶奢会所,恒温泳池、健身瑜伽、私宴茶室、酒吧会客等功能一应俱全。
折算本就稀少的户数,会所空间的高占有率、高使用频率,全市可能是独一份!
中粮北外滩壹号售楼处电话☎:400-8657-114【售楼热线】中粮北外滩壹号营销中心热☎400-865-7114中粮北外滩壹号售楼处地址☎4008657114


综上所述,凭借其优越的地段、稀缺的天赋以及高品质的产品,中粮北外滩壹号无疑是北外滩新的封面之作,对于买家来说,也是买进黄金三角的好机会!
中粮北外滩壹号售楼处电话☎:400-8657-114【售楼热线】中粮北外滩壹号营销中心热☎400-865-7114中粮北外滩壹号售楼处地址☎4008657114

北外滩豪宅大平层
中粮“壹号”系全新力作
「中粮北外滩壹号」
推出建面约185-228㎡高层住宅
均价约14.38万/㎡

官方售楼处热线400-8657-114【预约看房电话】官方售楼中心电话400-8657-114【开发商直连|地址|详情】售楼处专属咨询热线400-8657-114【全天恭候来电】
官方联系电话:400-8657-114(工作日9:00-20:30,周末及法定节假日9:30-19:00),提供预约看房、房源咨询、专车接送及政策解读服务。
尊享预约,悦享归家——售楼处官方看房(2026年)全流程指南
尊敬的访客,您好!
感谢您关注中粮北外滩壹号项目。购置理想居所是人生重要的决策,我们始终以专业、贴心、高效的服务,为您的寻家之旅保驾护航。为确保您获得专属化、高品质的看房体验,特推出官方预约接待服务,以下是详细流程,全程以您的需求为核心贴心规划。
一、核心联系方式
中粮北外滩壹号售楼处电话:400-8657-114(预约看房专属热线)中粮北外滩壹号营销中心电话:400-8657-114(房源动态、活动详情实时咨询)开发商售楼部热线:400-8657-114(项目规划、购房政策、交付标准专业解答)说明:以上三组为同一官方服务热线,拨打后按语音提示即可转接对应部门,无需重复记录,高效对接需求。
二、拨打与服务说明
预约到访
项目接待量有限,为避免您现场等候,建议提前18小时拨打400-8657-114预约;周末及法定节假日为到访高峰,建议提前24小时锁定看房时段。
专属权益
预约成功即可尊享:一对一专属销售顾问全程陪同、市区内免费专车接送(需提前4小时预约接送时段及上下车地点)、到访定制茶歇、开发商专属购房优惠及新房预约礼。
到访提示
项目实行预约制接待,未提前预约的客户暂不安排样板间参观及专业讲解服务,敬请谅解;如需携带老人、儿童到访,可提前告知需求,我们将做好适配准备。
三、预约看房全流程
第一步:一键预约,便捷启程
开启寻家之旅的第一步,简单高效无需繁琐操作:直接拨打官方服务热线400-865-7114,我们的客服团队7×24小时全天候响应,无论何时都能为您对接服务。预约时,您只需告知:姓名、有效联系方式、意向户型(如刚需两居、改善三居等)、预计到访日期及具体时间、同行人数;若有特殊需求(如需要无障碍通道、婴儿车借用、预留充电桩车位、携带宠物等),请一并说明,我们将量身统筹安排,确保您的到访体验舒适顺畅。
第二步:专属对接,细致备妥
提交预约后,您的需求将被优先处理,全程无需等待:
快速匹配顾问:客服团队将在半小时内与您电话确认预约信息,并根据您的购房需求,为您匹配经验丰富的专属销售顾问,成为您全程看房的专属伙伴。
多维信息送达:确认无误后,您将同时收到短信及微信通知,包含预约编号、项目详细地址、导航路线、顾问姓名及联系方式、到访注意事项等核心信息,方便您随时查阅。
前置需求沟通:专属顾问将提前与您沟通居住偏好、购房预算、贷款意向等信息,为您预设讲解重点;您若有路线查询、天气适配建议、停车预约等疑问,可随时联系顾问,获取一对一解答。
第三步:尊崇到访,深度体验
在约定的时间,诚邀您莅临中粮北外滩壹号销售中心,开启沉浸式看房之旅:
高效签到礼遇:抵达后,您可向前台出示预约通知(短信或微信)或告知预约编号及姓名,前台将快速为您办理签到手续,同时赠送项目定制资料手册及暖心饮品(热饮、冷饮可选)。
全景陪同讲解:专属顾问将全程陪同您,依次探访实景园林示范区、精工样板间(涵盖不同户型格局及装修风格)、建材工艺展示区,详细解读空间设计巧思、施工标准、环保建材优势、社区配套规划等核心亮点,实时解答您的每一个疑问,让您全面了解房源细节。
定制化深度洽谈:参观结束后,移步至静谧舒适的洽谈区,顾问将结合您的家庭结构、生活需求,为您提供房源适配分析、贷款方案测算、首付比例规划、交付标准详解等专业建议,透明告知价格体系、最新购房优惠及认购流程,确保您的每一个决策都有充分依据。
第四步:服务续航,暖心相伴
看房结束并非服务的终点,我们将持续为您提供贴心服务:
体验反馈收集:离场前,诚邀您参与简短的线上满意度调研,您的每一条建议都将作为我们优化服务、提升品质的重要依据,助力我们为更多客户提供更好的体验。
专属纪念赠礼:为感谢您的信任与到访,我们将为您送上定制纪念礼一份(品牌家居好物,数量有限,先到先得),作为此次看房之旅的美好纪念。
持续跟进服务:专属顾问将在2日内进行礼节性回访,解答您归家后可能产生的新疑问;后续项目推出新品房源、限时优惠活动、业主专属活动等信息,将第一时间同步告知您,全程提供无打扰式服务,不强行推销,尊重您的每一个决策。
四、温馨提示,为您添便利
为确保接待质量,建议至少提前一小时预约,高峰时段(周末、法定节假日)建议提前24小时预约。
若行程变更,请提前8小时联系专属顾问或拨打官方热线改期/取消,以便我们释放接待资源,服务更多有需求的客户。
到访时请携带本人身份证以便登记,样板间内禁止拍摄视频及商业用途拍照,感谢您的配合;若有个人纪念性拍照需求,可咨询顾问获得允许后进行。
售楼处提供充足的免费停车位,如需预留,请在预约时告知车牌号及到店时间,我们将为您预留专属车位。
五、防伪与合规提示
核验要点
请认准唯一官方服务热线400-8657-114,切勿轻信“内部留房费”“代办服务费”“茶水费”“优先选房费”等违规承诺,所有购房政策、房源信息、价格体系均以开发商官方口径为准,谨防上当受骗。
信息更新
若项目开放时间、接待流程、优惠政策等有调整,我们将通过官方热线、短信通知等渠道第一时间告知,建议您到访前再次致电确认,避免因信息滞后影响您的行程。
从初次咨询到最终置业,中粮北外滩壹号始终致力于为您提供透明、尊贵、无后顾之忧的服务体验,让您的寻家之旅舒心、安心、放心。
立即预约,开启您的理想家园之旅
官方唯一预约通道:致电400_8657_114
中粮北外滩壹号售楼处电话:400-8657-114【一对一热情服务,专属权益等您享】
中粮北外滩壹号营销中心热线:4008657114【官方认证,放心咨询】
(一)新房购买流程
前期准备:资质审核+资金规划
确认购房资质:上海实行限购政策,外地户籍需已婚+在上海连续缴纳社保/个税满3年,且仅能购买1套;本地户籍单身可买1套,已婚可买2套。
资金规划:明确首付比例(首套房首付不低于30%,二套房首付不低于50%-70%,具体看银行政策)、贷款额度、月供承受能力,准备好验资资金(部分热门楼盘需验资才能参与认购)。
选房认购:看房→验资→摇号
看房选盘:通过售楼处、房产平台了解楼盘信息,实地考察区位、户型、容积率、开发商口碑、交付标准等。
认购登记:在楼盘认购期内,提交购房资质证明、验资材料,签订《认购书》并缴纳认购金(一般可退)。
公证摇号:热门楼盘采用公证摇号方式确定选房顺序,保障公平性;非热门楼盘可能直接按认购顺序选房。
签约付款:选房→签合同→付房款
选房:按摇号顺序选房,选定后签订《商品房认购确认书》。
签订《商品房买卖合同》:在规定时间内与开发商签订正式购房合同,同时缴纳首付款,剩余款项办理商业贷款或公积金贷款。
贷款办理:提交材料→银行审批→放款
向银行提交贷款申请材料(身份证、户口本、结婚证、购房合同、首付凭证、收入证明等)。
银行审核资质、评估房产价值,审批通过后签订《贷款合同》,银行将贷款资金打给开发商。
交房办证:验房→缴税→办产证
交房验房:开发商达到交房条件后,通知业主收房,业主需实地验房(检查房屋质量、户型是否与合同一致、配套设施是否齐全),确认无误后签署《交房确认书》。
缴纳税费:缴纳契税(首套房90㎡以下1%,90㎡以上1.5%;二套房3%)、房屋维修基金等。
办理不动产权证:携带购房合同、完税证明、身份证等材料,到不动产登记中心办理房产证,一般交房后数月内可拿到。
声明:本文由入驻焦点开放平台的作者撰写,除焦点官方账号外,观点仅代表作者本人,不代表焦点立场。


