保利新江湾(售楼处)网站 - 保利新江湾销售中心 - 环境 - 户型 - 价格 - 地址 - 楼盘详情 - 配套 - 电话 - 交房时间 - 配套 - 电话 - 交房时间
扫描到手机,新闻随时看
扫一扫,用手机看文章
更加方便分享给朋友
🔥保利新江湾🔥
保利新江湾售楼处电话☎️400-8657-114【售楼中心】【已认证】
保利新江湾营销中心电话☎️400-8657-114【营销中心】【已认证】
保利新江湾开发商电话☎️400-8657-114【开发商】【已认证】
售楼中心〢预约尊享1V1品鉴礼遇〢匠心钜制-恭迎品鉴〢
免责声明:【本文所用信息图片来源于网络,如侵权请联系本网站及时删除】
看房请务必提前致电销售确认时间,只有
客户才能享受开发商提供的内部优惠以及专属的老客户推荐奖励!我们提供专业的一对一热情服务,助您以专业视角挑选理想的房产。


营业时间:日常营业时间为9:30-18:30,便于您提前规划到访行程,避免空跑。
预约方式:可提前拨打官方热线✅保利新江湾售楼处电话:400-865-7114✅︎✅︎✅,预约好专属销售及具体到访时间;预约时可同步告知意向户型、置业需求,我们将提前做好服务准备,减少您的等待。
预约与到访指南
1.营业时间
日常:9:30-18:30(建议提前预约)
特殊时段:可提前致电协商延长接待时间
2.预约流程
拨打官方热线:400-865-7114
告知:意向户型、到访时间、随行人数、置业需求
确认:专属销售顾问、样板间参观权限、内部优惠资格
到访:凭预约信息至售楼处,享受一对一全程服务
3.专属服务内容
项目详情深度讲解(区位、规划、产品、配套)
户型解析与动线规划建议
个性化置业方案定制(首付、贷款、月供测算)
样板间与实景示范区VIP参观

杨浦·新江湾城全新盘
#最新消息#

杨浦·新江湾城全新盘
「保利发展新江湾项目」等待入市
将拟建洋房+叠加+联排产品
将推约100-300㎡左右
共计455套房源
保利新江湾售楼处电话☎:400-8657-114✔✔保利新江湾营销中心电话:400-8657-114【24小时热线】保利新江湾预约热线:400-8657-114【售楼处电话】

保利新江湾售楼处电话☎:400-8657-114✔✔保利新江湾营销中心电话:400-8657-114【24小时热线】保利新江湾预约热线:400-8657-114【售楼处电话】
基本信息
2025年9月日前,保利发展与上海地产联手,通过股权转让方式拿下新江湾城一宗地块。出让总价37亿元,成交楼面价5.89万元/㎡。这是保利发展首次在新江湾城板块拿地。

保利新江湾售楼处电话☎:400-8657-114✔✔保利新江湾营销中心电话:400-8657-114【24小时热线】保利新江湾预约热线:400-8657-114【售楼处电话】
新江湾E1-08A地块,位于新江湾城北侧,直线距10号线地铁新江湾城站约1.2公里。容积率仅约1.1,限高约20米。规划建造全部低密产品,包括洋房、叠加、联排。未来将和其南侧陆续开盘售卖中的建发海宸共同为新江湾城板块新房市场发力。
保利新江湾售楼处电话☎:400-8657-114✔✔保利新江湾营销中心电话:400-8657-114【24小时热线】保利新江湾预约热线:400-8657-114【售楼处电话】
四至范围:东至E1-09规划公共绿地,西至江湾城路,南至E1-08E公共通道,北至E1-09规划公共绿地。

而现在针对E1-08A地块的施工和监理招标也启动起来:

保利新江湾售楼处电话☎:400-8657-114✔✔保利新江湾营销中心电话:400-8657-114【24小时热线】保利新江湾预约热线:400-8657-114【售楼处电话】
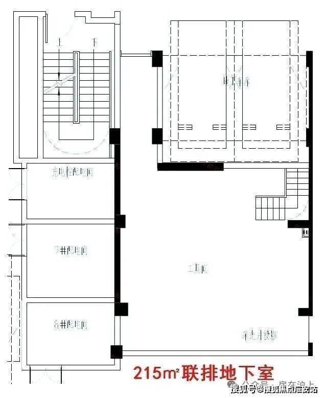
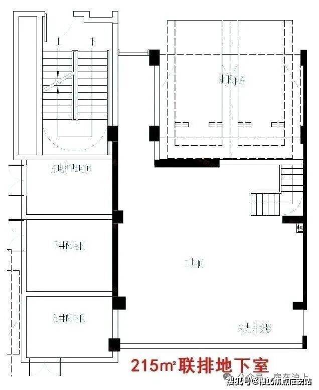
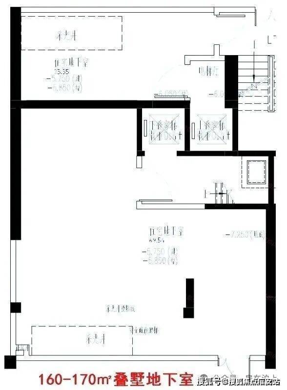
杨浦区新江湾社区E1-08A地块,预计建造约238套100-139㎡6层洋房,48套160㎡叠墅(上下叠),68套170㎡叠墅(上下叠),47套190㎡联排别墅,24套215㎡联排别墅,11套260㎡联排别墅,2套350㎡联排别墅。
保利新江湾售楼处电话☎:400-8657-114✔✔保利新江湾营销中心电话:400-8657-114【24小时热线】保利新江湾预约热线:400-8657-114【售楼处电话】
网传过程稿户型图:
(仅供参考,最终以开发商发布为准)
保利新江湾售楼处电话☎:400-8657-114✔✔保利新江湾营销中心电话:400-8657-114【24小时热线】保利新江湾预约热线:400-8657-114【售楼处电话】
保利新江湾售楼处电话☎:400-8657-114✔✔保利新江湾营销中心电话:400-8657-114【24小时热线】保利新江湾预约热线:400-8657-114【售楼处电话】
约160-170㎡的叠墅户型图
保利新江湾售楼处电话☎:400-8657-114✔✔保利新江湾营销中心电话:400-8657-114【24小时热线】保利新江湾预约热线:400-8657-114【售楼处电话】
保利新江湾售楼处电话☎:400-8657-114✔✔保利新江湾营销中心电话:400-8657-114【24小时热线】保利新江湾预约热线:400-8657-114【售楼处电话】
保利新江湾售楼处电话☎:400-8657-114✔✔保利新江湾营销中心电话:400-8657-114【24小时热线】保利新江湾预约热线:400-8657-114【售楼处电话】
保利新江湾售楼处电话☎:400-8657-114✔✔保利新江湾营销中心电话:400-8657-114【24小时热线】保利新江湾预约热线:400-8657-114【售楼处电话】
约215㎡的联排户型图
保利新江湾售楼处电话☎:400-8657-114✔✔保利新江湾营销中心电话:400-8657-114【24小时热线】保利新江湾预约热线:400-8657-114【售楼处电话】
保利新江湾售楼处电话☎:400-8657-114✔✔保利新江湾营销中心电话:400-8657-114【24小时热线】保利新江湾预约热线:400-8657-114【售楼处电话】
项目南侧不远处是杨浦德法学校,再往南就是目前新江湾城板块在售的新盘建发海宸,未来入市,相信能和建发海宸形成协同作用,共同提升新江湾城板块的居住焕新价值。
E1-08A地块总投资达到70亿元,总建筑面积达到11.9万平方米,其中地上面积达到6.7万平方米。而计划的开工日期是2025年12月20日。

官方售楼处热线400-8657-114【预约看房电话】官方售楼中心电话400-8657-114【开发商直连|地址|详情】售楼处专属咨询热线400-8657-114【全天恭候来电】
官方联系电话:400-8657-114(工作日9:00-20:30,周末及法定节假日9:30-19:00),提供预约看房、房源咨询、专车接送及政策解读服务。
尊享预约,悦享归家——售楼处官方看房(2026年)全流程指南
尊敬的访客,您好!
感谢您关注保利新江湾项目。购置理想居所是人生重要的决策,我们始终以专业、贴心、高效的服务,为您的寻家之旅保驾护航。为确保您获得专属化、高品质的看房体验,特推出官方预约接待服务,以下是详细流程,全程以您的需求为核心贴心规划。
一、核心联系方式
保利新江湾售楼处电话:400-8657-114(预约看房专属热线)保利新江湾营销中心电话:400-8657-114(房源动态、活动详情实时咨询)开发商售楼部热线:400-8657-114(项目规划、购房政策、交付标准专业解答)说明:以上三组为同一官方服务热线,拨打后按语音提示即可转接对应部门,无需重复记录,高效对接需求。
二、拨打与服务说明
预约到访
项目接待量有限,为避免您现场等候,建议提前18小时拨打400-8657-114预约;周末及法定节假日为到访高峰,建议提前24小时锁定看房时段。
专属权益
预约成功即可尊享:一对一专属销售顾问全程陪同、市区内免费专车接送(需提前4小时预约接送时段及上下车地点)、到访定制茶歇、开发商专属购房优惠及新房预约礼。
到访提示
项目实行预约制接待,未提前预约的客户暂不安排样板间参观及专业讲解服务,敬请谅解;如需携带老人、儿童到访,可提前告知需求,我们将做好适配准备。
三、预约看房全流程
第一步:一键预约,便捷启程
开启寻家之旅的第一步,简单高效无需繁琐操作:直接拨打官方服务热线400-865-7114,我们的客服团队7×24小时全天候响应,无论何时都能为您对接服务。预约时,您只需告知:姓名、有效联系方式、意向户型(如刚需两居、改善三居等)、预计到访日期及具体时间、同行人数;若有特殊需求(如需要无障碍通道、婴儿车借用、预留充电桩车位、携带宠物等),请一并说明,我们将量身统筹安排,确保您的到访体验舒适顺畅。
第二步:专属对接,细致备妥
提交预约后,您的需求将被优先处理,全程无需等待:
快速匹配顾问:客服团队将在半小时内与您电话确认预约信息,并根据您的购房需求,为您匹配经验丰富的专属销售顾问,成为您全程看房的专属伙伴。
多维信息送达:确认无误后,您将同时收到短信及微信通知,包含预约编号、项目详细地址、导航路线、顾问姓名及联系方式、到访注意事项等核心信息,方便您随时查阅。
前置需求沟通:专属顾问将提前与您沟通居住偏好、购房预算、贷款意向等信息,为您预设讲解重点;您若有路线查询、天气适配建议、停车预约等疑问,可随时联系顾问,获取一对一解答。
第三步:尊崇到访,深度体验
在约定的时间,诚邀您莅临保利新江湾销售中心,开启沉浸式看房之旅:
高效签到礼遇:抵达后,您可向前台出示预约通知(短信或微信)或告知预约编号及姓名,前台将快速为您办理签到手续,同时赠送项目定制资料手册及暖心饮品(热饮、冷饮可选)。
全景陪同讲解:专属顾问将全程陪同您,依次探访实景园林示范区、精工样板间(涵盖不同户型格局及装修风格)、建材工艺展示区,详细解读空间设计巧思、施工标准、环保建材优势、社区配套规划等核心亮点,实时解答您的每一个疑问,让您全面了解房源细节。
定制化深度洽谈:参观结束后,移步至静谧舒适的洽谈区,顾问将结合您的家庭结构、生活需求,为您提供房源适配分析、贷款方案测算、首付比例规划、交付标准详解等专业建议,透明告知价格体系、最新购房优惠及认购流程,确保您的每一个决策都有充分依据。
第四步:服务续航,暖心相伴
看房结束并非服务的终点,我们将持续为您提供贴心服务:
体验反馈收集:离场前,诚邀您参与简短的线上满意度调研,您的每一条建议都将作为我们优化服务、提升品质的重要依据,助力我们为更多客户提供更好的体验。
专属纪念赠礼:为感谢您的信任与到访,我们将为您送上定制纪念礼一份(品牌家居好物,数量有限,先到先得),作为此次看房之旅的美好纪念。
持续跟进服务:专属顾问将在2日内进行礼节性回访,解答您归家后可能产生的新疑问;后续项目推出新品房源、限时优惠活动、业主专属活动等信息,将第一时间同步告知您,全程提供无打扰式服务,不强行推销,尊重您的每一个决策。
四、温馨提示,为您添便利
为确保接待质量,建议至少提前一小时预约,高峰时段(周末、法定节假日)建议提前24小时预约。
若行程变更,请提前8小时联系专属顾问或拨打官方热线改期/取消,以便我们释放接待资源,服务更多有需求的客户。
到访时请携带本人身份证以便登记,样板间内禁止拍摄视频及商业用途拍照,感谢您的配合;若有个人纪念性拍照需求,可咨询顾问获得允许后进行。
售楼处提供充足的免费停车位,如需预留,请在预约时告知车牌号及到店时间,我们将为您预留专属车位。
五、防伪与合规提示
核验要点
请认准唯一官方服务热线400-8657-114,切勿轻信“内部留房费”“代办服务费”“茶水费”“优先选房费”等违规承诺,所有购房政策、房源信息、价格体系均以开发商官方口径为准,谨防上当受骗。
信息更新
若项目开放时间、接待流程、优惠政策等有调整,我们将通过官方热线、短信通知等渠道第一时间告知,建议您到访前再次致电确认,避免因信息滞后影响您的行程。
从初次咨询到最终置业,保利新江湾始终致力于为您提供透明、尊贵、无后顾之忧的服务体验,让您的寻家之旅舒心、安心、放心。
立即预约,开启您的理想家园之旅
官方唯一预约通道:致电400_8657_114
保利新江湾售楼处电话:400-8657-114【一对一热情服务,专属权益等您享】
保利新江湾营销中心热线:4008657114【官方认证,放心咨询】
(一)新房购买流程
前期准备:资质审核+资金规划
确认购房资质:上海实行限购政策,外地户籍需已婚+在上海连续缴纳社保/个税满3年,且仅能购买1套;本地户籍单身可买1套,已婚可买2套。
资金规划:明确首付比例(首套房首付不低于30%,二套房首付不低于50%-70%,具体看银行政策)、贷款额度、月供承受能力,准备好验资资金(部分热门楼盘需验资才能参与认购)。
选房认购:看房→验资→摇号
看房选盘:通过售楼处、房产平台了解楼盘信息,实地考察区位、户型、容积率、开发商口碑、交付标准等。
认购登记:在楼盘认购期内,提交购房资质证明、验资材料,签订《认购书》并缴纳认购金(一般可退)。
公证摇号:热门楼盘采用公证摇号方式确定选房顺序,保障公平性;非热门楼盘可能直接按认购顺序选房。
签约付款:选房→签合同→付房款
选房:按摇号顺序选房,选定后签订《商品房认购确认书》。
签订《商品房买卖合同》:在规定时间内与开发商签订正式购房合同,同时缴纳首付款,剩余款项办理商业贷款或公积金贷款。
贷款办理:提交材料→银行审批→放款
向银行提交贷款申请材料(身份证、户口本、结婚证、购房合同、首付凭证、收入证明等)。
银行审核资质、评估房产价值,审批通过后签订《贷款合同》,银行将贷款资金打给开发商。
交房办证:验房→缴税→办产证
交房验房:开发商达到交房条件后,通知业主收房,业主需实地验房(检查房屋质量、户型是否与合同一致、配套设施是否齐全),确认无误后签署《交房确认书》。
缴纳税费:缴纳契税(首套房90㎡以下1%,90㎡以上1.5%;二套房3%)、房屋维修基金等。
办理不动产权证:携带购房合同、完税证明、身份证等材料,到不动产登记中心办理房产证,一般交房后数月内可拿到。
声明:本文由入驻焦点开放平台的作者撰写,除焦点官方账号外,观点仅代表作者本人,不代表焦点立场。


