嘉利108公馆(嘉利108公馆售楼处)首页网站-嘉利108公馆售楼中心|嘉利108公馆最新评测-房价|嘉利108公馆户型|嘉利108公馆商圈配套
扫描到手机,新闻随时看
扫一扫,用手机看文章
更加方便分享给朋友
嘉利108公馆售楼处电话☎:400-9988-414
上海静安嘉利108公馆售楼处电话☎:400-9988-414
静安内环核心地段
建面约54~95㎡精装公寓
8号线西藏北路地铁站400米
嘉利108公馆售楼处电话☎:400-9988-414✔✔欢迎来电咨询! (预约看房热线)可预约销售人员,专业一对一热情服务,让您用专业眼光去买房。
总价约:350万-723万
5.6米层高复式 得房率130%
50年商办产权 不限购 稀缺Loft公寓
嘉利108公馆售楼处电话☎:400-9988-414
上海静安嘉利108公馆售楼处电话☎:400-9988-414
项目基础信息
【名称】嘉利108公馆
【板块】静安大宁中心
【地址】嘉利商业广场
【类型】商业办公
【竣工】2010年
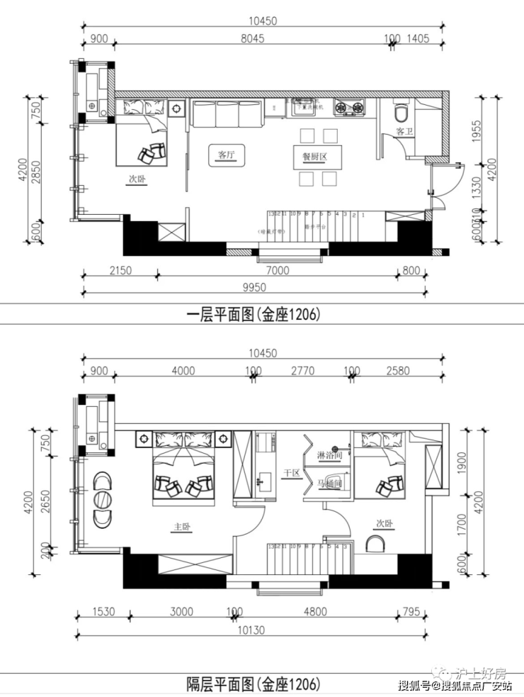
【建面】复式63—95㎡
【总价】¥450-620万
【年限】50年(2006年-2056年)
【总高】21层
【得房率】130%
【开发商】上海北亚华欣置业有限公司
【物业】上海中建物业管理有限公司
【物业费】5元/平/月
【停车费】地上5/小时 地下7/小时 每天上限8小时 建议客户临时租赁比包月划算。
【水/电费】水:6元/吨
电:0.95/度(平) 0.45/度(谷)
【梯户比】:6梯22户 两个消防步梯
【首付比例】:7.5成左右
【交房标准】:精装全配送软装
户型图及样板间照
嘉利108公馆售楼处电话☎:400-9988-414
上海静安嘉利108公馆售楼处电话☎:400-9988-414
【项目户型图】▼


嘉利108公馆售楼处电话☎:400-9988-414
上海静安嘉利108公馆售楼处电话☎:400-9988-414

嘉利108公馆售楼处电话☎:400-9988-414
上海静安嘉利108公馆售楼处电话☎:400-9988-414

【项目样板间实景图】▼
嘉利108公馆售楼处电话☎:400-9988-414
上海静安嘉利108公馆售楼处电话☎:400-9988-414
嘉利108公馆售楼处电话☎:400-9988-414
上海静安嘉利108公馆售楼处电话☎:400-9988-414
嘉利108公馆售楼处电话☎:400-9988-414
上海静安嘉利108公馆售楼处电话☎:400-9988-414
项目区位配套
项目地址位于上海静安区平型关路108号。隶属整个静安最完善的市级商圈大宁板块,毗邻人民广场及虹口足球场商圈,地理位置优越、配套成熟、生活便利、公共交通四通八达。项目本身自带底商,瑞幸咖啡,全家,各类重轻餐饮(火锅、快餐、日料、酒吧)等一应俱全,生活非常便捷。地下一层就是超大型综合卖场大润发,完全可以满足您日常生活所需。

嘉利108公馆售楼处电话☎:400-9988-414
上海静安嘉利108公馆售楼处电话☎:400-9988-414嘉利108公馆售楼处电话☎:400-9988-414
上海静安嘉利108公馆售楼处电话☎:400-9988-414
【交通配套方面】步行350米到达8号线西藏北路地铁站,3站到达人民广场,乘坐1站到达虹口足球场站便可换乘3号线;1.3公里到达1号线中山北路地铁站;自驾5分钟内到达内环高架路及南北高架,10分钟可上中环。人民广场、陆家嘴、静安寺、徐家汇、五角场等上海核心商圈,30分钟内均可达到。
【底商与附近大型商圈】驱车10分钟以内便可到达上海著名的大宁商圈以及虹口足球场商圈:大宁国际购房广场,伍绿折扣店,红双喜专卖店,联华超市,大润发超市
嘉利108公馆售楼处电话☎:400-9988-414
上海静安嘉利108公馆售楼处电话☎:400-9988-414
嘉利108公馆售楼处电话☎:400-9988-414
上海静安嘉利108公馆售楼处电话☎:400-9988-414

【医疗资源方面】三甲医院有第十人民医院和同济附属口腔医院等坐镇。
嘉利108公馆售楼处电话☎:400-9988-414
上海静安嘉利108公馆售楼处电话☎:400-9988-414
【教育资源方面】上海外国语大学、上海大学等著名高等院校;市北中学、风华初级中学、大宁国际小学、闸北实验小学等市重点高中及一梯队小学均相聚在此。
【人文配套】上海马戏城、鲁迅公园、虹口足球场等娱乐文化体育场所。
嘉利108公馆售楼处电话☎:400-9988-414✔✔欢迎来电咨询! (预约看房热线)可预约销售人员,专业一对一热情服务,让您用专业眼光去买房。
房产知识一百条
1、什么是房产:房屋产权的简称。
2、什么是地产:是指土地财产。
3、什么是房地产:是房产和地产的总称。
4、什么是房地产业:从事房地产开发、建设、经营、管理以及维修、装饰和服务的综合性产业。
5、什么是房地产开发:是指在依法取得土地使用权的土地上按照使用性质的要求进行基础设施、房屋建筑的活动。
6、什么是土地开发:是将“生地”开发成可供使用的土地。
7、集体土地是指:农村集体所有的土地。
8、征用土地是指:国家为了公共利益的需要,可依照法律规定对集体所有的土地实行征用。
9、什么是土地所有权:是指国家或集体经济组织对国家土地和集体土地依法享有的占有、使用、收益和处分的权能。
10、什么是土地使用权的出让:指国家以协议、招标、拍卖的方式将土地所有权在一定年限内出让给土地使用者,由使用者向国家支付土地使用权出让金的行为。
11、什么是土地使用权转让:是指土地使用者通过出售、交换、赠与和继承的方式将土地使用权再转移的行为。
12、什么是地籍、产籍:是对在房地产调查登记过程产生的各种图表、证件等登记资料,经过整理、加工、分类而形成的图、档、卡、册等资料的总称。
13、生地是指:不具备开发条件的土地。
14、熟地是指:已完成三通一平(水、电、道路,土地平整)或七通一平,具备开发条件的土地。
15、什么是宗地:是地籍的最小单元,是指以权属界线组成的封闭地块。
16、什么是宗地图:是土地使用合同书附图及房地产登记卡附图。它反映一宗地的基本情况。包括:宗地权属界线、界址点位置、宗地内建筑位置与性质、与相邻宗地的关系等。
17、证书附图是指:房地产后面的附图,主要反映房地产情况及房地产所在宗地情况。
18、什么是物业管理:泛指一切有关房地产开发、经营、商品房销售、租赁及售后服务。
19、什么是业主委员会:是在物业管理区域内代表全体业主实施自治管理的组织。是代表
物业全体业主合法权益的社会团体,其合法权益受国家法律保护。
20、业主委员会是如何产生的:由业主大会从全体业主中选举产生。
21、住房补贴是指:国家为职工解决住房问题而给予的补贴资助。
22、房屋的所有权是指:对房屋全面支配的权利。
23、房地产交易的两种主要形式是:地产交易形式与房产交易形式。
24、建筑物是指:人工建造而成的房屋和构筑物。
25、构筑物是指:建筑物中除房屋以外的东西。
26、什么是期房:是指消费者在购买时不具备即买即可入住的商品房。
27、期房是如何介定的:房地产开发商拿到商品房预售许可证开始至取得房地产权证大产证或竣工验收合格可以直接入住使用)为止。
28、什么是预售合同:消费者在购买期房时签定的销售合同。
29、什么是现房:是指消费者在购买时具备即买即可入住的商品房,即开发商已办妥所售的商品房的大产证(或已经竣工验收合格并交付使用)的商品房。
30、什么是毛坯房:房地产商交付屋内只有门框没有门,墙面地面仅做基础处理而未做表面处理的房叫毛坯房。
31、什么是成品房:是指对墙面、天花、门套、地板实行装修。
32、什么是商品房:是指以完全的市场价格向购房者出售的房子。
33、商品房预售是指:在房地产尚未建成以前,房地产的经销商在取得受买人一定数量的定金后,将期房出售给受买人。
34、商品房现售是指:指房地产开发企业将竣工验收合格的商品房出售给买受人。
35、二手房通常指的是:再次进行买卖交易的住房。
36、经济适用房指的是:面向中低收入家庭的普通住宅。
37、例出3种以上的安居房的种类:准成本房、全成本房、全成本微利房和社会微利房。
38、低层住宅的介定:1-3层的住宅。
39、多层住宅的介定:4-6层的住宅。
40、小高层住宅的介定:7-11层的住宅。
41、中高层住宅的介定:12-16层的住宅。
42、高层住宅的介定:16层以上为高层住宅。
43、超高层建筑的介定:总高度超过100米的建筑。
44、商品房的结构是指:房屋主体所使用的施工工艺和用材。
45、钢结构的意思是:承重的主要结构是用钢材料建造的,包括悬索结构。
46、钢混结构的意思是:承重的主要结构是用钢和混凝上建造的。
47、砖木结构的意思是:承重的主要结构是用砖、木材建造的。
48、砖混结构的意思是:主要是砖墙承重,部分是钢盘混凝土承重的结构。
49、框架结构的意思是:以钢筋混凝土浇捣成承重梁柱,再用预制的隔墙分户的结构。
50、开间指的是:一间房屋内一面墙的定位轴线到另一面墙的定位轴线之间的实际距离。
51、进深指的是:一间独立的房屋或一幢居住建筑内从前墙的定位轴线到后墙的定位轴线之间的实际长度。
52、层高指的是:下层地板面或楼板面到上层楼层面之间的距离。
53、净高指的是:下层楼板上表面到上层楼板下表面之间的距离。
54、占地面积指的是:地块的总面积。
55、1亩约等于多少平方米:666.66㎡
56、居住小区总用地指的是什么用地的总和:住宅总用地,公共建筑设施总用地,道路、广场用地、庭院、绿化用地的总和。
57、住宅总用地是指:住宅用地面积的总和。
58、公建总用地是指:小区内部公共建筑占地面积的总和。
59、建筑用地面积的介定:建设用地位置和界线所围合的用地之水平投影面积。
60、建筑基底面积是指:建筑物首层的建筑面积。
61、建筑高度是指:建筑物室外地平面至外墙面顶部的总高度。
62、房屋的基底面积是指:房屋的基底面积是指建筑物底层勒脚以上外围水平投影面积。
63、道路面积是指:小区内宽度大于1.5米道路的面积总和。
64、广场面积是指:停车、回车广场和有铺砌地面的场地面积之和。
65、庭院、绿化面积是指:小区内集中绿化带、小公园,以及公共活动场所等为小区所有居住人员共同使用权的绿化面积的总和。
66、假山、小池算不算庭院、绿化面积:算。
67、人均总占地面积(㎡/人)的计算公式:人均总占地面积=建筑红线内总用地÷本小区规划居住总人数。
68、人均住宅用地面积(㎡/人)的计算公式:人均住宅用地面积=小区内总住宅用地÷本小区规划居住总人数。
69、总建筑面积是指:小区内住宅、公共建筑、人防地下室面积总和。
70、人防地下室算不算在总建筑面积之内:算
71、住宅建筑面积是指:住宅建筑外墙外围线测定的各层平面面积之和。
72、套建筑面积是指:一套房屋的整体面积。
73、套建筑面积的构成是:套内建筑面积和套分摊的公用建筑面积
74、幢(栋)是指:一座独立的,包括不同结构和不同层次的房屋。
75、架空房屋是指:一般为底层架空,以柱子作为承重支撑物的房屋。
76、夹层是指:位于两自然层之间的楼层,指房屋内部空间的局部层次。
77、技术层的意思是:用作水、电、暖、卫生等设备安装的局部层次。
78、技术层层高在多少以上计算层数:2.20米以上的计算层数。
79、结构转换层是指:建筑物某楼层的上部与下部因平面使用功能不同,该楼层上部与下部采用不同结构类型,并通过该楼层进行结构转换,则该楼层称为结构转换层。
80、跃层式住宅是指:一套住宅占两个楼层,由户内楼梯联系上下层,上下两层完全分隔。
81、阁楼是指:利用房屋内的上部空间加建的楼层。
82、阁楼层高在多高以上计算面积:2.20米以上。
83、地上层数是指:即房屋的自然层数,指室内地坪±0.00以上的按楼板结构分层的层高在2.20米以上的楼层数。
84、地上层数用什么数表示:自然数。
85、地下层数是指:采光窗在室外地坪以下的,其室内层高在2.20米以上的地下室的层数。
86、地下层数用什么数表示:负数。
87、房屋总层数是指:房屋的地上层数与地下层数之和。
88、地下层数算不算在房屋总层数之内:算。
89、例出3个以上不算在房屋总层数内的建筑层:假层、夹层、阁楼、装饰性塔楼、楼梯间、水箱间。
90、柱廊是指:有顶盖和支柱,供人通行的建筑物,称为有柱走廊,简称柱廊。
91、骑楼是指:底层为有柱廊房,廊道上方建为楼房的一部分。
92、挑廊是指:指二层以上挑出房屋墙体外,有围护结构,无支柱有顶盖的外走廊。
93、门廊是指:建筑物门前有顶盖,有支柱或围护结构的进出通道。
94、门斗是指:支撑建筑物门前顶盖的是实体墙称为门斗。
95、檐廊是指:房屋檐下方两端有支撑墙体无柱的通道。
96、天棚是指:即天篷,有透明顶篷履盖的屋面。
97、晒台又称什么:露台。
98、露台是指:供人室外活动的上人屋面或底层地面伸出室外的有维护无顶盖的台面。
99、阳台是指:有永久性上盖、有围护结构、有台面、与房屋相连、可以供人活动或利用的房屋附属设施。
100、阳台的分类有:封闭式阳台和半封闭式阳台。
嘉利108公馆售楼处电话☎:400-9988-414✔✔欢迎来电咨询! (预约看房热线)可预约销售人员,专业一对一热情服务,让您用专业眼光去买房。
声明:本文由入驻焦点开放平台的作者撰写,除焦点官方账号外,观点仅代表作者本人,不代表焦点立场。


