联仲都悦汇(售楼处)-联仲都悦汇售楼处电话-2025联仲都悦汇楼盘详情-交房时间-地址-最新房价户型图-小区环境-楼盘详情-周边配套-售楼处电话-营销中心
扫描到手机,新闻随时看
扫一扫,用手机看文章
更加方便分享给朋友
联仲都悦汇售楼处电话:400-887-5663✔✔【预约热线】联仲都悦汇售楼处营销中心:400-887-5663联仲都悦汇售楼处电话/地址☎:400-887-5663(开发商热线)如有问题欢迎来电咨询,专业一对一热情服务,让您用专业眼光去买房。
在售户型:建面约310-410平米,地上三层地下一层
(地上:一层层高3.6米/二层层高3.4米/三层层高3.4米/地下层高5.4米)
总价:约1400-1800万️
单价:约5万/平米
小区整体商业:10万方(在建)南北双花园90-300平
水电:商水&商电,电1.3元/度,水6元/吨
产权车位:约30万左右

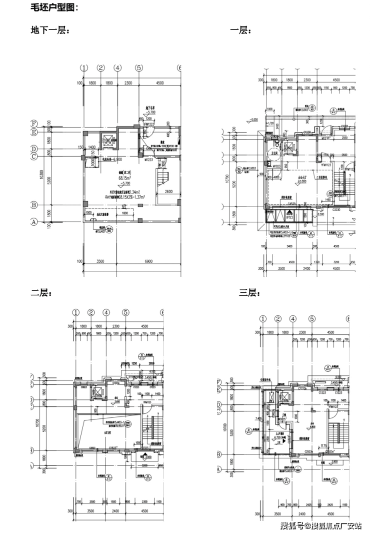
02.户型图及样板间照户
(特殊说明:户型朝向-上南下北)
约10.4米大面宽,面积达到55平
送电梯,北进门,南花园,超大地下室
客厅7米落地窗,采光明亮,尽显大气
联仲都悦汇售楼处电话:400-887-5663✔✔【预约热线】联仲都悦汇售楼处营销中心:400-887-5663联仲都悦汇售楼处电话/地址☎:400-887-5663(开发商热线)如有问题欢迎来电咨询,专业一对一热情服务,让您用专业眼光去买房。
约310平户型图▼

约378~420平户型图▼
联仲都悦汇售楼处电话:400-887-5663✔✔【预约热线】联仲都悦汇售楼处营销中心:400-887-5663联仲都悦汇售楼处电话/地址☎:400-887-5663(开发商热线)如有问题欢迎来电咨询,专业一对一热情服务,让您用专业眼光去买房。
约407~441平户型图▼

样板间效果图如下:
【联仲·都悦汇】位于闵行马桥旗忠别墅区,旗忠别墅区是上海老牌的富人区,与松江佘山、浦东东郊齐称为沪上三大国际别墅区。上海仅存少量的容积率0.18以下超低密度居住用地中,大多数在马桥旗忠别墅区。
联仲都悦汇售楼处电话:400-887-5663✔✔【预约热线】联仲都悦汇售楼处营销中心:400-887-5663联仲都悦汇售楼处电话/地址☎:400-887-5663(开发商热线)如有问题欢迎来电咨询,专业一对一热情服务,让您用专业眼光去买房。
板块以低容积率、生态自然环境和高端国际品牌配置,2010年被列为上海第二批大型居住社区之一。总建面约33万方城市综合体联仲都悦汇位于旗忠板块正核心,紧临网球中心,超10万方市政绿化所环绕。
【联仲都悦汇】同样是低密度别墅区里的一员,背靠绿城玫瑰园,容积率低至1.0。项目贯穿了3条自然水系,分为ABCD四个地块,其中ABC为商住办综合地块,自带商业办公。
联仲都悦汇售楼处电话:400-887-5663✔✔【预约热线】联仲都悦汇售楼处营销中心:400-887-5663联仲都悦汇售楼处电话/地址☎:400-887-5663(开发商热线)如有问题欢迎来电咨询,专业一对一热情服务,让您用专业眼光去买房。
交通配套方面:项目距离嘉闵高架元江路出口3公里,毗邻G15、S32等快速主动脉,30分钟大虹桥,50分钟抵达浦东机场,快捷畅达全城。
地铁:5号线华宁路站,剑川路站
公交:马莘专线:联工路站,闵行19路:银春路华宁路站
高速:嘉闵高架、沪金高速、虹梅南路高架 沪昆高速、申嘉湖高速、沪闵高架
高铁:距离上海虹桥枢纽站(高铁、机场)约20km
未来规划:嘉闵线延伸段
联仲都悦汇售楼处电话:400-887-5663✔✔【预约热线】联仲都悦汇售楼处营销中心:400-887-5663联仲都悦汇售楼处电话/地址☎:400-887-5663(开发商热线)如有问题欢迎来电咨询,专业一对一热情服务,让您用专业眼光去买房。
(以上数据来源于高德地图)

商业配套方面:项目自带10万方商业,为旗忠唯一的综合性商业配套,其多元化的业态结构,结合旗忠独有的资源,必将带来旗忠全新生活方式。
生态资源方面:项目周边有马桥森林公园、旗忠高尔夫球场、旗忠网球中心、韩湘水博园、养云安缦酒店等。
联仲都悦汇售楼处电话:400-887-5663✔✔【预约热线】联仲都悦汇售楼处营销中心:400-887-5663联仲都悦汇售楼处电话/地址☎:400-887-5663(开发商热线)如有问题欢迎来电咨询,专业一对一热情服务,让您用专业眼光去买房。
教育资源方面:周边有复旦万科实验学校,德威英国国际学校、斯代文森国际高中、上海美高学校。幼儿园:元祥幼儿园、富杰幼儿园启英幼儿园,大学:上海交通大学、华东师范大学
联仲都悦汇售楼处电话:400-887-5663✔✔【预约热线】联仲都悦汇售楼处营销中心:400-887-5663联仲都悦汇售楼处电话/地址☎:400-887-5663(开发商热线)如有问题欢迎来电咨询,专业一对一热情服务,让您用专业眼光去买房。




联仲都悦汇售楼处电话:400-887-5663✔✔【预约热线】联仲都悦汇售楼处营销中心:400-887-5663联仲都悦汇售楼处电话/地址☎:400-887-5663(开发商热线)如有问题欢迎来电咨询,专业一对一热情服务,让您用专业眼光去买房。
一、名称与定位
楼盘的名称往往反映了其市场定位,通常包含一定的地域特色或者设计理念。比如,“某某广场”可能意味着该楼盘是一个集住宅、商业、办公等多功能于一体的综合体;“某某苑”则可能是一个以住宅为主的优雅小区。此外,楼盘名称也可能反映其特色或优势,如“湖景楼盘”、“学区房”等。
二、地理位置与环境
地理位置是楼盘价值的重要因素之一。基本信息中会包含楼盘的具体地址、周边交通情况、周边配套设施。同时,环境信息也非常重要,包括自然景观、社区环境等。这些因素对于购房者来说,都是决定购买意向的重要因素。
三、建筑信息
建筑信息是楼盘的基础信息之一,包括建筑物的类型、建筑结构、建筑风格、总户数、容积率等。此外,还包括楼层的分布,每一层的户型和面积等详细信息。
四、配套设施与物业服务
配套设施是反映楼盘生活便利程度的重要因素,包括小区内的运动场所、停车场、公共设施等。物业服务则直接关系到居住者的生活品质,包括安保服务、保洁服务、设备维护等。具体到街道、区域名称,临近交通线路、自驾路线。商业、教育、医疗等配套设施分布,总占地面积、总建筑面积数据,容积率,绿化率,得房率,梯户比,物业费,小高层、洋房、高层、独栋别墅、叠加别墅、联排别墅,总户数、楼层分布,面积范围,均价/总价。首付比例、贷款政策,精装交付,含中央空调、地暖等系统,70年住宅产权,物业公司及资质,预计交付时间或施工进度,当前购房优惠政策。
声明:本文由入驻焦点开放平台的作者撰写,除焦点官方账号外,观点仅代表作者本人,不代表焦点立场。


