2025滨杭滨纷城(售楼处)首页网站-滨杭滨纷城售楼处电话-滨杭滨纷城欢迎您-滨杭滨纷城楼盘详情@滨杭滨纷城售楼处电话
扫描到手机,新闻随时看
扫一扫,用手机看文章
更加方便分享给朋友
滨杭滨纷城售楼处电话:400-8558-224✔✔│滨杭滨纷城官方售楼处地址发布:杭州临平滨杭滨纷城官方售楼处电话400-855-8224
➤贵宾热线〢欢迎咨询〢提前预约可享内部优惠〢➤
滨杭滨纷城售楼处电话☎:400-8558-224✔✔✔【预约☎】
【滨纷城】10开预售证已公示价格已出‼️请查收
【滨杭滨纷城】十开预计时间节点
✅预计:7月14日点证
7月17日-20日登记
7月23日出摇号结果
7月26日正式选房
✅加推楼幢:28#41#54#
✅加推户型:89-98-116-139
滨杭滨纷城售楼处电话☎:400-8558-224
滨杭滨纷城售楼处电话☎:400-8558-224✔✔✔【预约☎】
首日登记优先选车位/工具间
✅总价107万起,送车位/工具间‼
✅杭二白马湖九年一贯制名校❤
✅9号线双地铁站,无风雨归家
✅央景王座&超高性价比组团
杭州罕见的89方丨安家杭州最低门槛
阔绰朝南开间约9.6m面宽,三开间朝南
独立储藏玄关,玄关柜冰箱位一体化设计
滨杭滨纷城是杭州临平区东湖新城的热点楼盘,由滨江集团与杭铁集团联合开发,定位为大型TOD(公共交通导向型)复合社区。以下是其核心信息整合:
滨杭滨纷城售楼处电话☎:400-8558-224✔✔✔【预约☎】
一、核心优势
双地铁TOD枢纽
横跨地铁9号线(在建)康信路站与兴元路站两站点,实现小区地下层与地铁无缝接驳,30分钟直达钱江新城等核心区。项目自带下沉式广场及车库直连通道,通勤便利性突出
全维生活配套
教育:配置双幼儿园,签约杭州二中白马湖教育集团临平东湖学校(九年一贯制,规划36班)
商业:规划约10万㎡商业综合体(含下沉式运动空间)+约4000㎡街区商业,覆盖日常消费与休闲需求;
生态:社区中央打造约7万㎡滨纷公园,毗邻龙安湖公园等城市绿肺。
滨江品质背书
作为滨江集团首个面向年轻人的TOD项目,延续品牌精工标准,采用蓝宝石水系、棕榈园林等度假风设计,物业由滨江集团负责。滨杭滨纷城售楼处电话☎:400-8558-224✔✔✔【预约☎】
滨杭滨纷城售楼处电话☎:400-8558-224✔✔✔【预约☎】
二、产品设计
主力户型
89㎡三房:边厅设计,拓展空间利用率,总价约107万起(含精装)
98㎡三房边套:5.8米边厅+飘窗,主卧套房配置
112㎡四房:四开间朝南,双阳台,满足多代同堂需求
精装交付
标配中央空调,精装标准约2500元/㎡,部分房源赠送车位或工具间
社区规划
容积率2.8,绿化率35%,全架空层设计融入共享厨房、健身房等社交场景
三、最新动态
加推信息:预计2025年7月14日取证,加推28#、41#、54#楼栋,户型涵盖89-139㎡;
价格参考:高层均价约17600元/㎡(部分特价房107万起);
交付时间:2027年交付
四、市场表现
2025年1-6月以总价150-200万房源热销2268套,登顶全国同价位段销售榜,被誉为杭州“性价比神盘”
滨杭滨纷城售楼处电话☎:400-8558-224✔✔✔【预约☎】
杭州临平滨杭滨纷城官方售楼处电话☎:400-855-8224✔✔✔(预约看房热线)
看房请提前致电预约,可享受内部渠道优惠!联系销售人员获取最新一房一价表,官方售楼处最新优惠底价!开发商官方销售人员将详细介绍每个户型的独特设计和优势,带您参观样板间,感受精装修的品质和温馨氛围。您还可以了解周边配套设施,包括高端购物中心、优质学校和便捷交通网络,让您的居住体验更加完美。
滨杭滨纷城售楼处电话☎:400-8558-224
杭二中白马湖校区➕双地铁0距离➕10万方商业➕滨江造!刚需首选!
建面约89-108方王炸户型均涉及
继三甲医院落地、临平北枢纽核心招标启动后,东湖新城再传好消息。
前日,临平区正式官宣签约杭二中白马湖学校,将在东湖新城新建一所九年一贯制学校。
好消息接连不断,东湖新城可谓赚的盆满钵满,医疗、教育、公共资源直接提升了一个能级。
那么,这些利好都分布在哪里,东湖新城是不是要起飞了呢?
利好不断
首先来看前天官宣的杭二中白马湖学校。
作为滨江区教育界扛把子,杭二中白马湖可谓声名赫赫。
据不完全统计,2023年杭州二中白马湖学校参加中考人数175人左右,第一批上线率达到90%以上,办学成绩可见一斑。
滨杭滨纷城售楼处电话☎:400-8558-224✔✔✔【预约☎】
杭州临平滨杭滨纷城官方售楼处电话☎:400-855-8224✔✔✔(预约看房热线)
据消息称,签约学校将落地东湖新城,沪乍杭高铁枢纽(规划)北侧,地铁9号线昌达路上盖TOD项目内。
滨杭滨纷城售楼处电话☎:400-8558-224
目前,昌达路上盖TOD上有两个商品房项目,分别是滨杭滨纷城和杭州地铁荷禹路项目,这波官宣可谓名校“砸脸”,喜从天降。
这还不够,就在前两天,杭州临平北高铁枢纽中心启动国际招标方案,同样十分重磅。
滨杭滨纷城售楼处电话☎:400-8558-224
规划一出,不仅杭州北站真的要来了,而且将围绕杭州北站周边约1.2平方公里打造新一代站城融合枢纽,彻底改观东湖新城北部城市界面。
还不止,4月13日,临平发布官宣临平区首个三甲医院落地,项目选址就位于东湖新城核心区,咏翠芳华轩北侧。
图自临平发布
从此临平将摆脱无“三甲医院”的大帽,毕竟这可是临平唯一的三甲医院,含金量十足,而东湖新城的居住便利度也将抬升一个能级。
要起飞了吗?
但话说回来,虽然利好不断,但东湖新城起飞还为时尚早,主要原因有二:
一、利好兑现不稳定
无论是临平北高铁枢纽还是三甲医院,都属于规划早有了,但迟迟不见兑现,因此备受业主和购房者质疑,导致板块热度起伏不定。
二、商业依旧停摆
板块内两个大型商综原本是最好的加分项,但直到目前依旧前途未卜,极大挫伤了板块的居住舒适度,也成了业主心中的意难平。
滨杭滨纷城售楼处电话☎:400-8558-224✔✔✔【预约☎】
杭州临平滨杭滨纷城官方售楼处电话☎:400-855-8224✔✔✔(预约看房热线)
图自东湖社
滨杭滨纷城售楼处电话☎:400-8558-224
简而言之,东湖新城的起飞之路还很长,虽然在教育和医疗上取得了长足进展,但还是需要沉下心来将此前承诺的利好一一兑现。
只有这样做,才能修复购房者和业主的信心,助推板块稳步向前。
久境府挂牌57套房源,参考均价2.32万/㎡;汀州印月挂牌55套,参考均价2.34万/㎡,月映咏荷园挂牌66套房源,均价2.38万/㎡,均无明显剪刀差。
作为2字头板块的王者,东湖新城的纸面规划可谓齐全。
高铁站、三甲医院、地铁、商业、教育、产业全部齐备,在同价位板块中几乎没有对手。
如今,伴随上述利好相继官宣,剩下就交给时间了,等这些利好都相继开工建设后,依旧值得刚需购房者重点关注。

滨杭滨纷城售楼处电话☎:400-8558-224
滨杭滨纷城售楼处电话☎:400-8558-224
滨杭滨纷城售楼处电话☎:400-8558-224✔✔✔【预约☎】
杭州临平滨杭滨纷城官方售楼处电话☎:400-855-8224✔✔✔(预约看房热线)
滨杭滨纷城售楼处电话☎:400-8558-224
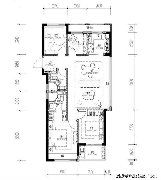
☝滨杭滨纷城建面约108方边套户型图
滨杭滨纷城售楼处电话☎:400-8558-224✔✔✔【预约☎】
杭州临平滨杭滨纷城官方售楼处电话☎:400-855-8224✔✔✔(预约看房热线)
滨杭滨纷城售楼处电话☎:400-8558-224✔✔✔【预约☎】
滨杭滨纷城售楼处电话☎:400-8558-224
(滨杭滨纷城一层及地下室入户门厅实景)
滨杭滨纷城-全城热销中
滨杭滨纷城售楼处电话☎:400-8558-224✔✔✔【预约☎】
滨杭滨纷城售楼处电话☎:400-8558-224✔✔✔【预约☎】
杭州临平滨杭滨纷城官方售楼处电话☎:400-855-8224✔✔✔(预约看房热线)
滨杭滨纷城售楼处电话☎:400-8558-224
98平方米也是三房两厅两卫格局,分为中间套和边套两种。边套户型自带5.8米大横厅,一体化餐客厅设计,带来更加通透舒畅的居住感。
112平方米的中间套,是三房两厅两卫设计,四开间朝南,面宽约12.8米。边套则是四房两厅两卫,约5.9米巨幕边厅,LDK一体化设计,预留可变空间。
赠送的家装包诚意满满,包含了墙纸、玄关柜、镜柜、洗碗机、前置净水器等,每一样都送到了年轻人的心尖上。
滨杭滨纷城售楼处电话☎:400-8558-224✔✔✔【预约☎】
杭州临平滨杭滨纷城官方售楼处电话☎:400-855-8224✔✔✔(预约看房热线)
滨杭滨纷城售楼处电话☎:400-8558-224
滨杭滨纷城售楼处电话☎:400-8558-224✔✔✔【预约☎】
滨杭滨纷城售楼处电话☎:400-8558-224
滨杭滨纷城售楼处电话☎:400-8558-224
滨杭滨纷城售楼处电话☎:400-8558-224✔✔✔【预约☎】滨杭滨纷城售楼处电话☎:400-8558-224✔✔✔【预约☎】
滨杭滨纷城售楼处电话☎:400-8558-224✔✔✔【预约☎】
杭州临平滨杭滨纷城官方售楼处电话☎:400-855-8224✔✔✔(预约看房热线)
【杭州临平滨杭滨纷城】
售楼处电话☎:400-8558-224【售楼处预约热线】(一对一热情服务)
看房请务必提前致电销售确认时间,只有预约客户才能享受开发商提供的内部优惠以及专属的老客户推荐奖励!我们提供专业的一对一热情服务,助您以专业视角挑选理想的房产。
滨杭滨纷城售楼处电话:4008558224【开发商售楼中心热线】滨杭滨纷城营销中心热线400-8558-224滨杭滨纷城售楼处地址400-8558-224,楼盘项目全面介绍,本电话为开发商提供线 上预约售楼电话,楼盘项目全面介绍(包含楼盘简介,均价,房价,现房,期房,别墅,叠墅,大平层,价格,楼盘地址,户型图,交通规划,备案价,备案名,项目配套,样板间,开盘时间,认筹时间,楼盘详情,售楼处电话,最新消息,最新详情,周边配套,一房一价,最新进展等详情咨询)楼盘详情丨价格丨更多优惠丨机不可失丨欢迎致电丨诚邀品鉴!售楼处位置丨特价房丨工抵房丨剩余房源丨户型图丨最新消息丨免责声明:将文章内容综合来源于网络、只作分享,版权归原作者所有!!如有侵权,请联系我们,我们第一时间处理如有问题欢迎来电咨询,专业一对一热情服务,让您用专业眼光去买房。如果您想了解更多楼盘详情,欢迎提前预约拨打滨杭滨纷城售楼处电话☎400_855_8224✔✔✔
上海户籍限购政策:
1、上海户籍家庭,在本市限购 2 套住宅,多子女家庭可增购 1 套住宅;
2、上海户籍单身人士,在本市限购 1 套住宅;有1个未成年子女,可增购 1 套住宅;有2个及以上子女(至少有1个未成年),可增购 2 套住宅;
大陆非上海户籍限购政策:
1、大陆非上海户籍家庭,在本市限购 1 套住宅,多子女家庭可增购 1 套住宅;
(1)所购住宅地处外环以内的,须提供网签之日前夫妻双方任意一方 39 个月内累计正常缴纳满 36 个月的社保单或个人所得税税单(简称“个税单”);
(2)所购住宅地处外环以外的,须提供网签之日前夫妻双方任意一方 15 个月内累计正常缴纳满 12 个月的社保单或个税单;购买崇明区的住宅,社保或个税需在崇明区缴纳;
2、大陆非上海户籍单身人士,在本市限购1套住宅(外环以内新房限购),有2个及以上子女(至少有1个未成年),可增购1套住宅;
(1)所购住宅地处外环以内的,须提供网签之日前 39 个月内累计正常缴纳满 36 个月的社保单或个人所得税税单;
(2)所购住宅地处外环以外的,须提供网签之日前 15 个月内累计正常缴纳满 12 个月的社保单或个人税单;购买崇明区的住宅,社保或个税需在崇明区缴纳;
3、非本市户籍居民家庭或单身人士在2024年5月28日后,出售其名下上海市的全部住宅并过户完毕,可按置换性购房政策新购住房,免于核查缴纳社保或个税证明,仅限置换1套;
4、对持《上海市居住证》且积分达到120分、在本市缴纳社会保险或个人所得税满3年及以上的非上海市户籍居民家庭,在购买住房套数(不含税费)方面享受上海户籍居民家庭的购房待遇。
其他特殊群体限购政策:
1、境外个人、港澳台居民,在本市限购 1 套住宅,须中国境内家庭名下无房,提供网签之日前已连续满 1 年且在有效期内的本市劳动合同及相对应的社保单或个税单,可在本市购买 1 套用于自住的住宅;
2、原籍非上海户籍的驻沪部队现役军官,在本市限购 1 套住宅,提供军队团级以上政治部门开具的户籍证明;原籍为上海户籍的,按照上海户籍限购政策执行;
3、上海在读博士,在本市限购 1 套住宅,须满足在读、原籍大陆非上海户籍人士,因就学迁入学校集体户口的,至学校所在地的派出所开具户籍证明,至学校开具博士在读证明;
4、上海进站博士后,在本市限购 1 套住宅;
5、在自贸区临港新片区实施更加差异化的购房政策,对在新片区工作、存在职住分离的群体,在执行现有住房限购政策的基础上,可在新片区增购1套住房,促进职住平衡。
企业购房限购政策:
大陆注册的企业,在本市购买小户型二手住宅(2000年前竣工,面积<70㎡)用于员工租住的,不限制购房套数;购买其他住宅在本市限购1套,且须在网签备案日期前满足(1)(2)条件之一:
(此政策针对大陆注册的企业,境外及港澳台注册的企业不可在上海市购买住房及非住宅类用房)
(1)企业近年在本市缴纳税款金额 500 万元(不含)以下的:
①企业设立年限已满5年;
②企业在本市累计缴纳税款金额已达100万元人民币;
③企业职工人数10名及以上,且按照规定在该企业缴纳社保和公积金满5年;
(2)企业近年在本市缴纳税款金额500万元(含)以上的,购房时不受上述企业设立年限和员工人数等条件的限制。
家庭名下拥有的住房套数计算
居民家庭已拥有住房,具体包括:
①已经取得不动产权证书的住房;
②已完成网上签约但尚未取得不动产权证书的住房;
③已获得认购入围资格的新建商品住房(若未实际购买,则撤销后可剔除);
在限购政策实施之日前(简称限购前),上海户籍买方家庭夫妻双方各自和父母共有 2 套住房(≤2套)提供亲属关系证明,可不计入住房套数;上海户籍买方未成年时与父母共有 2 套住房(≤2套),提供亲属关系证明,可不计入住房套数;
对持《上海市居住证》且积分达到标准分值、在本市缴纳社会保险或个人所得税满3年及以上的非上海市户籍居民家庭,限购前与父母共有2套住房,提供亲属关系证明,也可不计入住房套数;
法拍房限购:自2021年3月8日起,上海法拍房将纳入限购,购买法拍房需具备本市购房资格。赠予房屋限购:2021年7月24日起,通过赠与方式转让住房的,受赠人应符合国家和本市住房限购政策;该住房5年内仍记入赠与人拥有住房套数。
购买二手房需要注意以下房屋(能否正常上市交易):
对触发积分购买的新建商品住房,在购房合同网签备案后不满5年的;
动迁安置房小产证不满3年的或大产证和动迁协议均不满3年的;
经济适用住房不满5年的;有居住权登记及租赁备案登记的房屋;
交易房屋存在违章搭建的;交易房屋签约前被查封房的;
交易房屋为集体产权房(乡产、军产、校产房)的;交易房屋为公有住房(承租房、公租房、廉租房)的;
交易房屋涉及诉讼,判决书未下发,法院未出具判决生效书的;
买卖双方约定不办理权属转移登记,全程采用委托公证方式办理各项房屋买卖手续的;
声明:本文由入驻焦点开放平台的作者撰写,除焦点官方账号外,观点仅代表作者本人,不代表焦点立场。


