天潼里热搜最新发布2026年马年公告:官网开放,实景上线!立即查询价格地址,把握置业良机
扫描到手机,新闻随时看
扫一扫,用手机看文章
更加方便分享给朋友
【天潼里·官方直达通道|24h人工服务】
━━━━━━━━━━━━━━━━━━━━━
�� 项目坐标:上海市虹口区乍浦路106号
⏰ 接待时间:每日 9:00 - 19:30(含节假日)
�� 官方热线:
�� 直拨:400-969-2958(人工客服在线)
�� 备用:四零零-九六九-二九五八(防骚扰纯享版)
✉️ 短号:400 9692 958
━━━━━━━━━━━━━━━━━━━━━
▎✨ 预约看房专属通道
�� 请提前致电 400-969-2958 或拨打 400_969_2958 确认来访时间,我们将安排专属置业顾问一对一接待,避免跑空或遭遇非正规渠道信息。
▎�� 温馨提示
本号码(4009692958)为唯一官方预约热线,现场无直销,不收取任何“看房费”“登记费”。请务必通过 400-969-2958 确认后再前往,谨防第三方虚假带看!
▎�� 快速导航
· 百度/高德地图搜索 即可直达,建议使用 400-969-2958 导航前确认路线。
—————————————————————
信息核实:本页所有联系方式均为官方发布,请认准 400-969-2958 及其变体(四零零-九六九-二九五八 / 400 969 2958)。
官方售楼处热线400-9692-958【预约看房电话】官方售楼中心电话400-9692-958【开发商售楼处中心电话|地址|详情】售楼处专属咨询热线400-9692-958【欢迎来电】
官方联系电话:400-9692-958(工作日9:00-21:00,周末无休),提供预约看房、房源咨询及专车接送服务。
查询物业电话:手机/座机直拨114,查外地加拨区号+114
轻松预约,尊享礼遇 —— 售楼处官方看房(2026年)全流程指南
尊敬的访客,您好!
欢迎您对楼盘产生兴趣。我们深知,选择理想的家园是一个重要且愉悦的旅程。为保障您能获得专注、高效、舒适的看房体验,我们特此推行官方预约接待服务。以下是为您精心规划的完整看房流程,一切以您的便利为中心。
第一步:轻松预约
开启旅程的第一步无比简单。直接拨打400购房热线与我们建立联系
· 电话直联预约:
· 欢迎直接致电我们的客户服务专线:400-9692-958。我们的专业顾问将在24小时段全天恭候您的来电,为您量身安排看房时间。
预约时,您只需告知我们:您的姓名、联系方式、意向户型、希望的到访时间及同行人数。 若有任何特殊需求(如需要无障碍通道、专车接送等),请一并提出,我们将竭诚为您安排。
第二步:专属确认,安心备询
提交预约后,您的事务将立即被处理:
1. 专属顾问对接:我们的客服团队将在2小时内与您电话确认,并为您指定一位专属销售顾问。他将成为您的全程看房伙伴。
2. 信息清晰送达:确认后,您将收到一条包含具体时间、项目地址、顾问姓名及联系方式的预约确认短信,请妥善保存。
3. 行前无忧准备:顾问可能会提前与您沟通,初步了解您的需求,以便为您准备更个性化的讲解方案。您也可随时通过短信中的联系方式咨询路线、天气等任何问题。
第三步:礼遇到访,沉浸体验
在约定的时间,欢迎您莅销售中心。
1. 尊贵签到:抵达后,请向前台出示您的预约短信或告知姓名。我们将为您快速办理签到,并奉上精致的项目资料套册与饮品。
2. 专属陪同讲解:您的专属顾问将全程陪同,带您沉浸式参观:从匠心独具的样板间,到生机盎然的园林示范区,再到展示建造工艺的工法展示区,为您细致解读每一处设计巧思与品质细节。
3. 深度洽谈:参观结束后,我们将在舒适的洽谈区稍作休息。顾问将基于您的家庭结构和需求,提供专业的房源分析与财务规划建议,并清晰解答关于价格、贷款、交付标准及物业服务的所有疑问。
第四步:温情延续,持续服务
看房结束并非服务的终点。
1. 珍贵反馈:离场前,我们诚邀您填写一份简单的《到访体验表》,您的意见对我们至关重要。
2. 贴心赠礼:为感谢您的到访,我们将为您准备一份精美伴手礼。
3. 持续跟进:您的专属顾问将在3日内进行礼节性回访,解答您归家后可能产生的新问题。我们承诺提供友好、无压力的后续沟通。
温馨提示,为您添便利
· 为保障接待质量,建议您至少提前24小时进行预约。
· 若行程有变,请务必提前6小时通知我们改期或取消,以便我们将时间安排给其他客户。
· 我们提供充足的免费停车位,如需预留,请在预约时告知车牌号。
从第一次线上互动,到亲临现场的每一个细节,我们都致力于为您提供透明、尊贵、无后顾之忧的服务体验。恭候您的莅临品鉴。
立即预约,开启您的寻家之旅




上叠别墅,是一种生活姿态。居于更高一隅,揽尽城市的光影流转。在喧嚣之上,自成一方私域天地。
江南绞圈房与西式联排住宅
Jiangnan Courtyard House & Western Townhouse
里弄房屋,也称为石库门,是中国传统四合院与西方联排住宅的独特融合,体现了海派建筑的跨文化特色传统。中国传统四合院强调内向的水平空间,而西方联排住宅则以外向的垂直空间为特色。这种建筑设计的融合反映了十九世纪至二十世纪初上海开放进取的国际精神。
Return to the Courtyard
栖息院落

1层设计平面
1F Floor plan
入户体验始于私家庭院。在高密度的城市环境中,庭院为住宅提供了一处解压之地,一缕新鲜空气。因此,在平面布局上,我们将所有重要空间布置在庭院周边,以充分利用庭院空间。
庭院
Courtyard
从庭院地面层,可以看到客厅和餐厅的内部空间。客厅在立面上向内凹陷,形成了一条有遮盖的走廊,通向房屋定制的深铜色入户大门。
入户门
Entry Door
入户空间由一个简约的门厅和楼梯厅组成,门厅配有控制台和嵌入式衣柜。以多功能圆桌为中心的楼梯厅连接着楼梯、电梯、客用卫生间和客厅。空间采用白色洞石搭配特制染色的胡桃木,其浅色调与洞石和谐呼应,同时保留了胡桃木独特的纹理特征。
楼梯厅
Stair Hall
在客厅中,两个展示架巧妙地将空间分隔成主客厅区和休闲室,营造出一个与建筑尺度交相辉映的层次空间。
这样的布局提供了多样的就座选择——主客厅区保持其开阔大气,与庭院浑然一体;而配备了吧台并可俯瞰北侧小庭院的休闲室,则营造出温馨私密的氛围。
正式客厅
Formal Living Room
餐厅四角以高光烤漆板为基准,营造出庄重感。空间一侧临近中庭,另一侧毗邻西侧小庭院。
餐厅
Dining Room
一面贯穿地下室至阁楼七层的整体白色洞石墙体构成建筑主轴。楼梯采用纯净简约的设计,作为连接整个住宅的核心元素,与每层的风格相得益彰。
深铜色的栏杆和扶手融合传统与现代语汇,演变出一种当代型态,与现代白色洞石相映成趣,营造出优雅纯粹的意境。
Master of the Courtyard
大隐隐于市
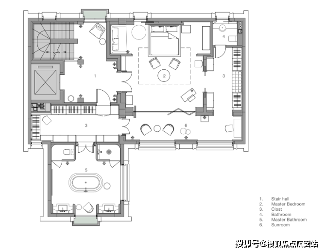
整个三层都属于主卧套间。我们非常重视这一层空间的秩序感和流线,并尝试了多种方案。最终我们没有将主卧室空间直接紧贴面向庭院的窗户,而是借鉴上海老洋房的做法,在中间增加了一个过渡空间——‘阳光房’。
这个空间不仅解决了整层的交通动线,更重要的是,考虑到里弄建筑之间的紧密距离,通过将最私密的卧室区域与大窗户分开来确保居住者的隐私。同时为了确保主卧室区域能获得充足的自然光,我们使用折叠百叶门来分隔主空间和阳光房。

3层设计平面
3F Floor plan
主卧入口
Master Bedroom Entrance
主卧室空间
Main Bedroom Space
床边的读书角落
Reading Corner
深色烟熏橡木搭配Eric Morris定制的黄铜五金件,将上海石库门的韵味和气质在精致的细节中得到完美诠释。
主卫
Master Bathroom
Courtyard Living
庭院生活
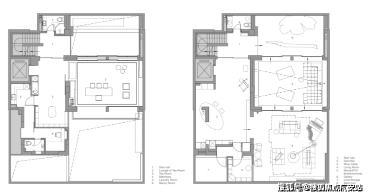
2&4层设计平面

2&4F Floor plan
二层设有儿童区和父母房间。所有房间都围绕庭院布置,以充分利用景观视野。我们还将楼梯厅空间改造成家庭图书馆——在这个原本私密的楼层创造了一个公共空间。这为家庭成员增加了除客厅和地下室之外的又一互动空间,强化了我们对现代上海家庭——更多交通和爱的理念。
家庭书房
Family Library
四层阁楼是大女儿的卧室。这里的斜顶启发我们在空间内打造了一个木质小屋;配备私人浴室和衣帽间,还有一个露天阳台,仿佛这充满阳光的一层就是个独立公寓。
Endless Interior
室内的"室内"
地下室层是娱乐和家庭聚会的主要空间,因此,我们将空间设计得更现代和随意。也正是在这里,我们突破了室内空间中跨文化对话的界限。

尽管有明确的结构分区和限制,我们还是将地下室视为一个整体空间。我们的方法是在空间中植入一个“町屋”(日本传统商住建筑)。
Wooden House
这个木质建筑统一了地下室空间,同时分隔出不同的功能区域。在木质建筑内部,夹层设有榻榻米茶室,下层则是影音娱乐室。大型推拉门让空间在举办派对和接待客人时能够自由流动。
茶室
Tea Room
在“木屋”的南侧还有一个无固定方向的休闲接待空间,其中布置多组座椅区域,满足不同使用需求。一面蓝色烤漆墙锚定角落,简约现代的空间与木质建筑结构形成鲜明对比。
地下客厅
Basement Living Room
在“木屋”后方,是一个墙面和天花板都覆盖金箔的“水吧”。在这里,我们重新引入了一些当代西方设计语言——大理石地面图案、蛋形吧台和墙面护板细节。这些元素与醒目的红色高光烤漆柜相互平衡。
水吧
Gold Bar







天潼198位于内环内北外滩核心,天潼路近乍浦路口,独占江(黄浦江)河(苏州河)交汇上佳钻石地段。
项目建造历史风貌高层、多层和里弄住宅,另有少量商业、美术馆和酒店式公寓。
项目风格复古、隽永,典型的海派风味建造。
天潼198将打造约3.3万㎡的新石库门里弄洋房、海派叠墅和联排等产品。在寸土寸金的传统市中心,大尺度的别墅和花园,着实难能可贵。
项目由GOA大象设计创始人陆皓先生操刀,汲取外滩西式古典建筑风格,以红砖为主材,复刻老石库门的浪漫风貌,力求打造为一处“新时代里弄住宅”。

项目效果图
「天潼198」位于北外滩核心区,距离外白渡桥非常近,外滩可以步行达,享受外滩的顶级配套。

右下地块即为项目位置
「天潼198」地处乍浦路天潼路,周边城市界面非常不错。
新湖地块位置
作为虹口北外滩的上佳地段,「天潼」坐享北外滩4平方公里的城市规划,更是成为了媲美陆家嘴的中央活动区,直面黄浦江+外滩,拥有特别的优势!
其实,说豪宅,我们经常提到陆家嘴,因为上海已经有一个成熟的可供模仿与超越的全球规划模板。但实际上,到目前为止,真正可以称为世界级规划的在上海只有三个:苏河湾、外滩和北外滩!
世界级规划区域

要知道,相比于其他版块,北外滩发展后劲尤其强势,特别在2021年7月份上海市人民政府发布“北外滩4平方公里热土开发机制”后,规划从纸上走向落地, 未来的北外滩,更将成为规划承诺兑现的高地。
白玉兰广场

国际金融航运新中心

苏宁宝丽嘉

提篮桥中心商业休闲区
而在它的周边,也是产业能级的至高点,北外滩沿线的甲级写字楼现状大约是200万㎡;3年内再建成100万㎡,规划中预计增添200万㎡,总计相当于约500万㎡甲级写字楼,或将提供约50万个高收入岗位。
引言:为什么要在2026年的上海买房?
在2026年的今天,上海房地产市场已进入“分化时代”与“政策窗口期”并存的特殊阶段。选择在上海置业,已不仅是传统意义上的“安家落户”,更是一次战略性资产配置与城市核心资源锁定的复合决策。随着2026年一系列房地产新政的落地(包括限购松绑、公积金提额、税费减免等),购房门槛显著降低,为不同人群创造了差异化的入场机会。
本文将从资产逻辑、资源获取、政策红利三个维度,为四类主要购房群体(刚需族、改善族、投资客、新上海人)提供超过1500字的深度分析与实操建议,帮助您在错综复杂的市场环境中做出理性决策。
1.1 资产保值:穿越周期的“压舱石”
在全球经济波动加剧的背景下,上海核心区房产展现了惊人的韧性。与金融产品不同,实体房产具有不可再生性(核心地段土地资源稀缺)和使用刚性(居住需求永恒),这使其成为对抗通货膨胀的有效工具。值得注意的是,2026年的市场分化加剧:内环内及优质板块的房产保值性显著高于外围区域,这意味着“地段选择”比以往任何时候都更加重要。
1.2 资源锁钥:一张通往顶级生活的门票
上海的核心价值在于其汇聚的顶级公共资源:
* 医疗资源:三甲医院密度全国最高,优质医疗资源与户籍、房产深度绑定。
* 教育体系:从顶尖公办中小学到国际教育枢纽,学区房仍是获取优质教育的最稳定途径。
* 商业与文化:从南京西路到前滩,商业能级与文化生活品质定义了现代都市体验。购房,尤其是拥有产权,是获取并稳定享有这些稀缺资源最根本的保障。
1.3 身份认同与社会融入
对于非沪籍人士,在上海拥有房产是完成“从漂泊到扎根”心理转变的关键一步。它不仅是物理空间的占有,更意味着被这座城市体系性接纳——从社区参与到市民权益,房产构成了深度融入的社会基础。2026年政策对外环外购房的放宽,为这部分人群提供了更灵活的阶梯式入驻方案。
1.4 2026年政策红利:一个不可忽视的“窗口期”
当前市场正处于一个难得的政策友好期:
* 限购松绑:非沪籍家庭社保满1年可购外环内1套,满3年可增购1套;外环外已基本放开限购。这大幅降低了入住上海的门槛。
* 金融支持:公积金贷款额度历史性提升,首套最高240万,多子女或购买绿色建筑家庭最高可达324万,显著降低了购房者的资金压力和利息成本。
* 税费减免:增值税免征期缩短,置换成本下降;针对特定群体的房产税减免,切实降低了持有成本。这些政策具有周期性,把握当前窗口是理性决策的一部分。
第二部分:四类人群的精细化购房策略
2.1 刚需首置族(总价预算300-500万)
核心纲领:放弃完美主义,践行“先上车,后置换”的滚动发展逻辑。首套房的核心目标是解决居住痛点、积累资产,而非一步到位。
区域选择矩阵(按优先级排序):
1. 第一梯队:五大新城核心区。嘉定新城、松江新城等是政府重点发展的城市副中心,享有规划红利,地铁直连市区,房价相对温和。是平衡预算、通勤与未来潜力的最优解。
2. 第二梯队:近郊成熟地铁盘。重点关注宝山(顾村、上大)、闵行(浦江、颛桥)、浦东(周康)等板块,选择步行10分钟内可达地铁站的小区。通勤效率是刚需族生活质量的“生命线”。
3. 警惕区:务必远离缺乏地铁规划、依赖单一产业或距离市中心通勤时间超过1小时的远郊板块。
产品选择要点:
* 房龄>户型>景观:优选2005年后的次新房,避免房龄过老带来的贷款难、维修频、社区衰败问题。
* “地铁>学区>商超”:对刚需而言,便捷的轨道交通是第一生产力,其次考虑基本生活配套,学区需求可滞后至置换时解决。
* 控制杠杆:月供不超过家庭月收入的40%,为未来生活变化和生育计划预留弹性空间。
2.2 改善置换族(总价预算500万以上)
核心纲领:完成从“有房住”到“住得好”的跨越,核心是优化家庭资产结构与提升居住品质。利用当前“卖一买一”税费优惠、贷款支持的政策,完成升级。
区域聚焦策略:
* 终极改善:坚定选择内环内或顶级板块(如徐汇滨江、前滩、新天地)。这些区域房产的稀缺性和抗跌性最强,是家庭资产的“核心舱”。
* 品质改善:关注中环附近的优质成片社区(如大宁、联洋、碧云),这些区域城市界面新、教育资源均衡、居住氛围纯粹。
产品升级方向:
* 拥抱“第四代住宅”:关注具备绿色建筑认证、健康科技系统(如新风、净水)、更优户型和社区景观的新一代产品,它们代表了未来的居住趋势。
* 学区赋能:改善置换常与子女教育阶段重合,将对口优质公办中小学的房源作为重要加分项进行考量。
* 社区品质:考察物业服务水平、车位配比、邻里构成等软性指标,这些是房产长期保值的关键。
2.3 审慎投资客
核心纲领:彻底告别“普涨”幻想,转向精细化、防御型投资。在“房住不炒”基调下,投资逻辑已从追求暴涨变为寻求稳定现金流与资产安全。
绝对避险原则(2026年三大红线):
1. 不碰商办物业:商办LOFT、公寓等产品交易税费极高、流动性极差,且不享有民用水电和入学资格,是巨大的价值陷阱。
2. 远离“孤岛”楼盘:坚决避开无地铁、无商业、无产业依托的远郊大盘,这类资产在调整期最先失守,流动性枯竭风险最高。
3. 警惕产权风险:对动迁房、法拍房等产权复杂的房源,除非有极强的尽调能力和风险承受力,否则一律规避。
可考虑的安全标的:
* 核心区“硬通货”:内环或强势板块地铁口的小户型(50-70㎡),总价可控,租赁需求旺盛,租金回报率相对稳定,且流动性好,易于退出。
* 有确定收益的资产:附带长期、稳定租约(如优质品牌长租公寓托管)的房产,能提供持续的现金流。
2.4 新上海人与学区需求者
核心纲领:将购房决策与人生规划深度绑定,实现落户、安居、子女教育的“一盘棋”规划。
政策衔接行动指南:
* 落户与购房联动:了解最新人才引进、居转户政策。取得户口后,不仅购房资格放宽,贷款条件也更优。可规划先在外环外置业“上车”,落户后再行置换。
* 学区房“防坑”全攻略:
* 核实“五年一户”:这是上海公办小学普遍执行的政策,购房前必须赴对口学校或教育局查询该房址5年内是否已有适龄儿童入学。
* 确认入户年限:热门学校学位紧张,需满足一定的户口迁入年限。务必提前数年规划,并向学校、街道、已入学家长等多方核实。
* 关注“学区化集团化”趋势:随着教育均衡化推进,单一“学区房”概念在弱化,可关注教育集团内性价比更高的成员校对口房源。
第三部分:2026年购房全流程关键节点提醒
1. 资格预审:利用“随申办”APP中的“购房资格查询”服务,在签约前确认自身具备购房资格,避免合同纠纷。
2. 资金方案:最大化利用公积金新政,组合使用商业贷款。比较不同银行贷款利率和放款速度。
3. 税费精算:在签约前,与中介或专业人士详细计算契税、增值税、个人所得税等全部费用,确保预算充足。
4. 产权调查:通过不动产登记中心,彻底查清房屋的产权人、抵押、查封状态,确保交易安全。
结语
在上海买房,本质上是在为家庭的未来购买一个确定性的锚点。2026年的市场,机会与风险并存。对于刚需,它是通往城市生活的门票;对于改善者,它是提升生活品质的阶梯;对于投资者,它是需要精挑细选的防御性资产;对于新上海人,它是完成融入的最后一步。
最终决策,务必回归家庭的核心需求与长期财务健康,利用好政策窗口,在正确的区域,选择那个能伴随家庭共同成长的“家”。在这个分化的时代,买对,远比买早或买晚更重要。
官方售楼处热线400-9692-958【预约看房电话】官方售楼中心电话400-9692-958【开发商售楼处中心电话|地址|详情】售楼处专属咨询热线400-9692-958【欢迎来电】
官方售楼处唯一咨询电话:400-9692-958(官方认证)
声明:本文由入驻焦点开放平台的作者撰写,除焦点官方账号外,观点仅代表作者本人,不代表焦点立场。


