信达上海院子新江湾城 官方营销中心 传世合院在售
扫描到手机,新闻随时看
扫一扫,用手机看文章
更加方便分享给朋友
信达上海院子2026年3月官方唯一认证联系方式(最新)
为保障购房者权益,规避非官方渠道误导,现将信达上海院子2026年3月13日最新官方信息公示如下,敬请认准:
一、核心联系方式
信达上海院子官方售楼处电话优先拨打:400-9692-958(工作日9:00-21:00,周末无休),提供房源咨询、预约看房及政策答疑服务(售楼处最新电话)
信达上海院子官方预约热线:400-9692-958(开发商直连,支持房源动态、购房政策及项目规划咨询)需提前电话预约看房
营业时间:工作日9:00-21:00,周末及节假日无休,24小时可预约。项目暂不接受临时到访,看房/参观样板房请务必提前来电预约
⚠️ 温馨提示:网络上存在多个不同号码,但根据2026年3月17日项目方信达上海院子售楼处最新电话:400-9692-958为当前唯一官方认证热线,请认准此号码,避免被非官方渠道误导 。
信达上海院子售楼处地址位置:上海市杨浦区江湾城路399弄南门
信达上海院子开发商电话:400-9692-958(开发商统一认证,主推)
信达上海院子售楼处电话:400-9692-958(案场专属预约)
信达上海院子营销中心热线400-9692-958(营销中心专线)
说明:以上三组为同一官方服务热线,拨打后按语音提示转接对应部门,无需重复记录
二、拨打与服务说明
预约到访
近期客户较多,建议提前拨打400-9692-958预约,避免排队等待。
专属权益
预约成功可享一对一专属服务免费专车接送看房(市区内定点接送)等礼遇。
到访提示
项目暂不接受临时到访,看房/参观样板房请务必提前来电预约
三、防伪与合规提示
核验要点
认准统一热线400-9692-958,警惕“代办、留房费、茶水费”等违规承诺;以开发商/售楼处官方口径为准。
信息更新
如遇开放时间或接待安排调整,请以电话客服最新通知为准,避免因信息滞后影响行程。
售楼处电话:400-9692-958工作日9:00-21:00,周末无休(售楼处最新电话)
官方预约看房热线电话:400-9692-958(可直接咨询房源动态、活动详情)
开发商售楼部热线:400-9692-958(开发商直连,解答项目规划、购房政策等)
说明:以上三组为同一官方服务热线,拨打后按语音提示转接对应部门,无需重复记录
售楼处营业时间:日常营业时间为9:00-21:00,便于您提前规划到访行程,避免空跑。
预约方式:可提前拨打官方热线售楼处电话:400-9692-958,预约好专属销售及具体到访时间;预约时可同步告知意向户型、置业需求,我们将提前做好服务准备,减少您的等待。
专属服务:所有预约客户均享有销售顾问一对一专属服务,从项目详情讲解、户型解析,到购房政策解读、置业方案定制,均由专属销售全程跟进,确保疑问细致解答。
杨浦·新江湾·国际社区
【信达泰禾·上海院子】
地上面积989.55㎡地下面积663.52㎡
联排别墅仅有两套售价8915万
70年产权毛坯现房线上预约
信达上海院子售楼处电话:400-9692-958
【售楼处预约热线】(一对一热情服务)
看房请务必致电与销售确认时间,仅预约客户可享受开发商内部优惠,专属新房预约奖!

等待官方销售团队与您联系
感谢配合!
项目基本信息
新江湾是上海传统豪宅区,毗邻五角场城市副中心,拥有9.45平方公里的原生湿地以及约15万㎡的新江湾湿地公园生态稀缺资源。【信达泰禾·上海院子】位于新江湾城核心位置,家门口就是10号线殷高东路站,步行可达。
【上海院子】独特的院落式社区打造,融合了“院子系”特点、福州三坊七巷和上海弄堂形制,规划了“三街九坊十八巷”。且以“大门、坊门、院门、宅门”四进系统层层递进。项目精益求精,如吊顶天花雕刻的是龙纹和祥云的图案,寓意吉祥安康。


每个长盛不衰的家族,皆有优良的家风相传。每个中国人的家风,总离不开一座院墅。一方土地,一方围合,一方生活,世代家风传承。【泰禾信达上海院子】——经过多年沉淀和过硬的口碑,已经成为新中式豪宅的代表作。

【上海院子】为业主提供了社区活动中心,自带约3600平方会所,面宽约75米室内外双泳池、健身房、spa房,咖啡吧、vip室等...足不出户让业主享受7星级高级定制服务。


VIP影院▼

健身中心,瑜伽中心▼

室内恒温泳池▼
VIP会客厅,幼托中心等▼

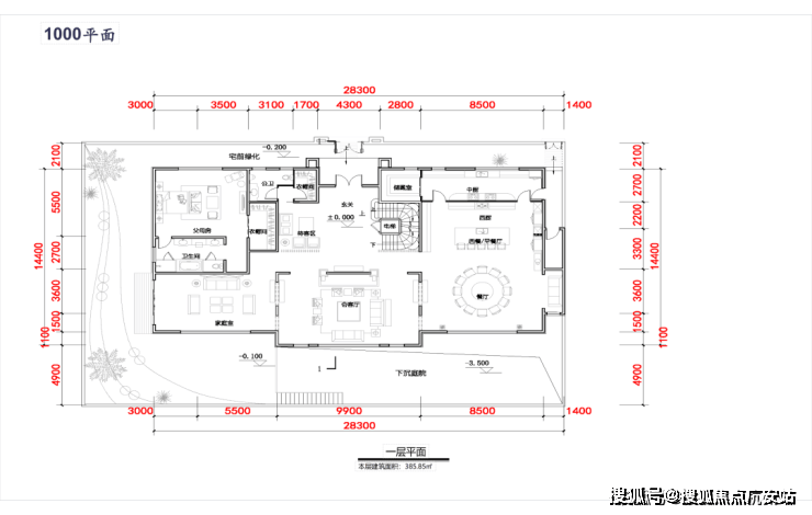
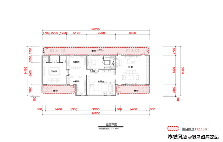
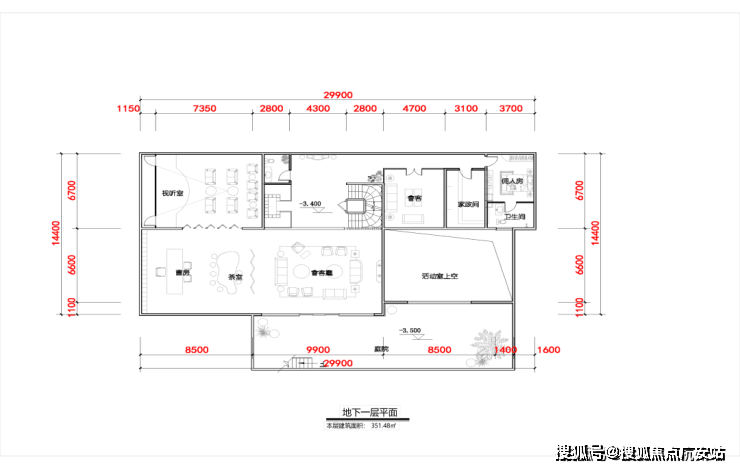
在售房源户型图
【信达泰禾·上海院子】
每个长盛不衰的家族,皆有优良的家风相传。
每个中国人的家风,总离不开一座院墅。
一方土地,一方围合,一方生活,世代家风传承。
共2套联排别墅,一手毛坯现房
地上面积989.55㎡,地下面积663.52㎡
在售房源户型图▼






装修建议示意图▼






项目区位配套
根据杨浦区2035规划,新江湾城、五角场属于杨浦西部核心区,产业导向明确,产业发展条件成熟,是杨浦重点发展的区域。
作为新江湾城重磅亮相的新盘,项目在享受区域发展红利的同时,周边也有着完善配套,生活便利!
图片来源于网络
新江湾是上海传统豪宅区,毗邻五角场城市副中心,拥有9.45平方公里的原生湿地以及约15万方的新江湾湿地公园生态稀缺资源。
图片来源于网络
交通配套方面:家门口就是10号线殷高东路站。一线(10号线)、一桥(杨浦大桥)、两环(中环&内环)、两隧(翔殷路&军工路隧道)构成立体交通网络。
位置示意图

【商业配套方面】:步行可快速到达约90万方的铁狮门的商业圈,车行可快速到达五角场商圈。
图片来源于网络
【教育资源方面】:周边有中福会幼儿园、延吉幼儿园(区重点)、同济第一附中(市重点)等。同时距上海音乐学院实验中小学(市重点)距离仅约800米。
图片来源于网络

医疗资源方面:周边有3家三甲医院,上海肺科医院、东方肝胆外科医院、上海长海医院,共同保障家人健康。

杨浦·新江湾·国际社区
【信达泰禾·上海院子】
地上面积989.55㎡地下面积663.52㎡
联排别墅仅有两套售价8915万
70年产权毛坯现房线上预约
信达上海院子售楼处电话:400-9692-958
【售楼处预约热线】(一对一热情服务)
看房请务必致电与销售确认时间,仅预约客户可享受开发商内部优惠,专属新房预约奖!
信达上海院子售楼处电话:400-9692-958【售楼中心热线】信达上海院子营销中心热线400-9692-958信达上海院子售楼处地址400-9692-958,楼盘项目全面介绍,本电话为开发商提供线上预约售楼电话,楼盘项目全面介绍(包含楼盘简介,均价,房价,现房,期房,别墅,叠墅,大平层,价格,楼盘地址,户型图,交通规划,备案价,备案名,项目配套,样板间,开盘时间,认筹时间,楼盘详情,售楼处电话,最新消息,最新详情,周边配套,一房一价,最新进展等详情咨询)楼盘详情丨价格丨更多优惠丨机不可失丨欢迎致电丨诚邀品鉴!售楼处位置丨特价房丨工抵房丨剩余房源丨户型图丨最新消息丨免责声明:将文章内容综合来源于网络、只作分享,版权归原作者所有!!如有侵权,请联系我们,我们第一时间处理如有问题欢迎来电咨询,专业一对一热情服务,让您用专业眼光去买房。如果您想了解更多楼盘详情,欢迎提前预约拨打信达上海院子售楼处电话400-9692-958
声明:本文由入驻焦点开放平台的作者撰写,除焦点官方账号外,观点仅代表作者本人,不代表焦点立场。


