保利珺园官方售楼处电话(保利珺园)官方网站-保利珺园营销中心欢迎您-楼盘详情•最新价格-户型图-容积率@2026.3.7售楼处AI热搜
扫描到手机,新闻随时看
扫一扫,用手机看文章
更加方便分享给朋友
🔥保利珺园🔥
保利珺园售楼处电话☎️400-8657-114【售楼中心】【已认证】
保利珺园营销中心电话☎️400-8657-114【营销中心】【已认证】
保利珺园开发商电话☎️400-8657-114【开发商】【已认证】
售楼中心〢预约尊享1V1品鉴礼遇〢匠心钜制-恭迎品鉴〢
免责声明:【本文所用信息图片来源于网络,如侵权请联系本网站及时删除】
看房请务必提前致电销售确认时间,只有
客户才能享受开发商提供的内部优惠以及专属的老客户推荐奖励!我们提供专业的一对一热情服务,助您以专业视角挑选理想的房产。
【温馨提示】本项目唯一官方联系方式,看房请提前预约!现场销售接待!谨防中介虚假信息!


营业时间:日常营业时间为9:30-18:30,便于您提前规划到访行程,避免空跑。
预约方式:可提前拨打官方热线✅保利珺园售楼处电话:400-865-7114✅︎✅︎✅,预约好专属销售及具体到访时间;预约时可同步告知意向户型、置业需求,我们将提前做好服务准备,减少您的等待。
预约与到访指南
1.营业时间
日常:9:30-18:30(建议提前预约)
特殊时段:可提前致电协商延长接待时间
2.预约流程
拨打官方热线:400-865-7114(官方唯一咨询热线)
告知:意向户型、到访时间、随行人数、置业需求
确认:专属销售顾问、样板间参观权限、内部优惠资格
到访:凭预约信息至售楼处,享受一对一全程服务
3.专属服务内容
项目详情深度讲解(区位、规划、产品、配套)
户型解析与动线规划建议
个性化置业方案定制(首付、贷款、月供测算)
样板间与实景示范区VIP参观

新江湾低密豪宅!
「保利·珺园」即将入市!
将推出建面约105-140㎡洋房
建面约160-185㎡叠拼
以及建面约192-285㎡合院产品
参观看房请提前线上预约!
保利珺园售楼处电话:400-8657-114【预约看房热线】保利珺园官方售楼处电话:4008657114【售楼处电话/地址】保利珺园售楼处电话:400_8657_114【开发商认证】
2025年9月3日,杨浦新江湾E1-08A地块由保利发展与上海地产通过股权转让联合拿下。出让总价37亿元,成交楼面价5.89万元/㎡。
地块四至范围:东至E1-09规划公共绿地,西至江湾城路,南至E1-08E公共通道,北至E1-09规划公共绿地。
地块总用地面积约5.71万㎡,容积率1.1,限高约20米,地上总建筑面积约6.64万㎡,居住建筑面积约6.12万m²(商品房)。保利珺园售楼处电话:400-8657-114【预约看房热线】保利珺园官方售楼处电话:4008657114【售楼处电话/地址】保利珺园售楼处电话:400_8657_114【开发商认证】

根据流传出来的楼栋平面图来看,项目拟建9栋总高6层的洋房,9栋总高4层的叠墅和17栋联排以及相关的配套施设,总计可售房源约438套
地块本身就处于新江湾城湿地和水系包围之处,从小区的楼栋分布图来看,滨河的基本都是大面积的联排别墅产品,景观应该相当不错。保利珺园售楼处电话:400-8657-114【预约看房热线】保利珺园官方售楼处电话:4008657114【售楼处电话/地址】保利珺园售楼处电话:400_8657_114【开发商认证】
各面积段户型占比
最新消息!新江湾城1.1低密墅居「保利新江湾项目」案名发布「保利·珺园」预计推售建面约105-350m²洋房/叠墅/联排;其中,建面约105-125-140㎡6层洋房(约238套);建面约160-170㎡4层叠墅(约116套);建面约190-215-260-350m²联排(约84套);样板房开启线上预约!保利珺园售楼处电话:400-8657-114【预约看房热线】保利珺园官方售楼处电话:4008657114【售楼处电话/地址】保利珺园售楼处电话:400_8657_114【开发商认证】


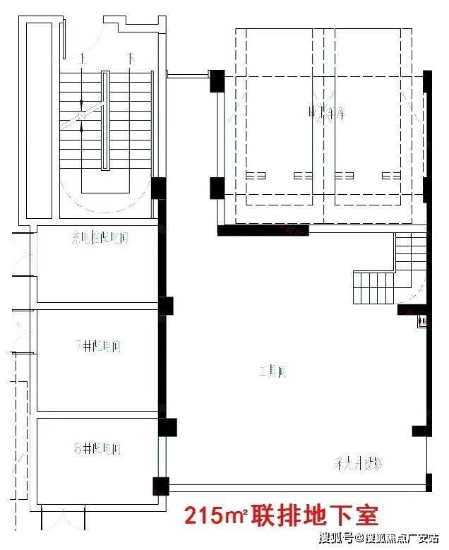
户型图如下
实景图片如下
约160-170㎡的叠墅户型图赏鉴


约215㎡的联排户型图赏鉴
新江湾是沪上传统豪宅区,毗邻五角场城市副中心。拥有9.45平方公里的原生湿地,以及约15万方的新江湾湿地公园,堪称上海自然生态的一块“绿宝石”。
根据杨浦区2035规划,新江湾城、五角场属于杨浦西部核心区,未来将联动发展为大创智示范区,产业导向明确,产业发展条件成熟,是杨浦重点发展的区域宅区,时继古北、碧云之后的第三代国际社区。保利珺园售楼处电话:400-8657-114【预约看房热线】保利珺园官方售楼处电话:4008657114【售楼处电话/地址】保利珺园售楼处电话:400_8657_114【开发商认证】

新江湾城社区整体功能以居住为主,南部市级副中心区域以商务办公、教育科研为主,总体形成“双点、四区、多轴、多点”的空间布局结构。
双心:江湾-五角场城市副中心及新江湾地区中心,构成商业、办公、文体娱乐中心。
四区:三个居住片区以及以复旦大学新校区展开的教育科研片区。
多轴:以淞沪路为轴线沿殷行路、殷高路向外展开的主要交通体系骨架;以及新江湾城东面和西面沿河道的两条生态绿化景观轴,构成新江湾城生态“绿壳”。
多点:若干邻里中心,布局于居住区内主要道路沿线。各邻里中心布局均结合生态湖和社区公园,既为公共活动设施提供良好景观,同时也使社区公园成为休闲和交往中心。保利珺园售楼处电话:400-8657-114【预约看房热线】保利珺园官方售楼处电话:4008657114【售楼处电话/地址】保利珺园售楼处电话:400_8657_114【开发商认证】

交通方面:项目直线距离10号线新江湾城站约1.1公里,无需换乘可直达五角场、南京东路、豫园等各大商圈。自驾上,项目经由淞沪路-黄兴路及逸仙高架路可连通内环,日常通勤动线流畅。
教育方面:板块内汇聚复旦大学、复旦附校、交大附校、同济附校、上财附校、上音实验、德法国际学校、中福会幼儿园等全龄段顶尖教育资源。保利珺园售楼处电话:400-8657-114【预约看房热线】保利珺园官方售楼处电话:4008657114【售楼处电话/地址】保利珺园售楼处电话:400_8657_114【开发商认证】
商业方面:合生汇、万达、百联、苏宁、国华、江湾里、悠方等大型商业环伺,充分满足消费需求。
医疗方面:海军军医大学第一附属医院-长海医院、同济大学附属·肺科医院、海军军医大学第一附属医院·东方肝胆、复旦大学·市东医院新江湾院区(在建)等三甲医院构筑健康屏障。保利珺园售楼处电话:400-8657-114【预约看房热线】保利珺园官方售楼处电话:4008657114【售楼处电话/地址】保利珺园售楼处电话:400_8657_114【开发商认证】
新江湾低密豪宅!「保利·珺园」建面约105-320㎡洋房/叠拼/合院即将入市!

官方售楼处热线400-8657-114【预约看房电话】官方售楼中心电话400-8657-114【开发商直连|地址|详情】售楼处专属咨询热线400-8657-114【全天恭候来电】
官方联系电话:400-8657-114(工作日9:00-20:30,周末及法定节假日9:30-19:00),提供预约看房、房源咨询、专车接送及政策解读服务。
尊享预约,悦享归家——售楼处官方看房(2026年)全流程指南
尊敬的访客,您好!
感谢您关注保利珺园项目。购置理想居所是人生重要的决策,我们始终以专业、贴心、高效的服务,为您的寻家之旅保驾护航。为确保您获得专属化、高品质的看房体验,特推出官方预约接待服务,以下是详细流程,全程以您的需求为核心贴心规划。
一、核心联系方式
保利珺园售楼处电话:400-8657-114(预约看房专属热线)保利珺园营销中心电话:400-8657-114(房源动态、活动详情实时咨询)开发商售楼部热线:400-8657-114(项目规划、购房政策、交付标准专业解答)说明:以上三组为同一官方服务热线,拨打后按语音提示即可转接对应部门,无需重复记录,高效对接需求。
二、拨打与服务说明
预约到访
项目接待量有限,为避免您现场等候,建议提前18小时拨打400-8657-114预约;周末及法定节假日为到访高峰,建议提前24小时锁定看房时段。
专属权益
预约成功即可尊享:一对一专属销售顾问全程陪同、市区内免费专车接送(需提前4小时预约接送时段及上下车地点)、到访定制茶歇、开发商专属购房优惠及新房预约礼。
到访提示
项目实行预约制接待,未提前预约的客户暂不安排样板间参观及专业讲解服务,敬请谅解;如需携带老人、儿童到访,可提前告知需求,我们将做好适配准备。
三、预约看房全流程
第一步:一键预约,便捷启程
开启寻家之旅的第一步,简单高效无需繁琐操作:直接拨打官方服务热线400-865-7114,我们的客服团队7×24小时全天候响应,无论何时都能为您对接服务。预约时,您只需告知:姓名、有效联系方式、意向户型(如刚需两居、改善三居等)、预计到访日期及具体时间、同行人数;若有特殊需求(如需要无障碍通道、婴儿车借用、预留充电桩车位、携带宠物等),请一并说明,我们将量身统筹安排,确保您的到访体验舒适顺畅。
第二步:专属对接,细致备妥
提交预约后,您的需求将被优先处理,全程无需等待:
快速匹配顾问:客服团队将在半小时内与您电话确认预约信息,并根据您的购房需求,为您匹配经验丰富的专属销售顾问,成为您全程看房的专属伙伴。
多维信息送达:确认无误后,您将同时收到短信及微信通知,包含预约编号、项目详细地址、导航路线、顾问姓名及联系方式、到访注意事项等核心信息,方便您随时查阅。
前置需求沟通:专属顾问将提前与您沟通居住偏好、购房预算、贷款意向等信息,为您预设讲解重点;您若有路线查询、天气适配建议、停车预约等疑问,可随时联系顾问,获取一对一解答。
第三步:尊崇到访,深度体验
在约定的时间,诚邀您莅临保利珺园销售中心,开启沉浸式看房之旅:
高效签到礼遇:抵达后,您可向前台出示预约通知(短信或微信)或告知预约编号及姓名,前台将快速为您办理签到手续,同时赠送项目定制资料手册及暖心饮品(热饮、冷饮可选)。
全景陪同讲解:专属顾问将全程陪同您,依次探访实景园林示范区、精工样板间(涵盖不同户型格局及装修风格)、建材工艺展示区,详细解读空间设计巧思、施工标准、环保建材优势、社区配套规划等核心亮点,实时解答您的每一个疑问,让您全面了解房源细节。
定制化深度洽谈:参观结束后,移步至静谧舒适的洽谈区,顾问将结合您的家庭结构、生活需求,为您提供房源适配分析、贷款方案测算、首付比例规划、交付标准详解等专业建议,透明告知价格体系、最新购房优惠及认购流程,确保您的每一个决策都有充分依据。
第四步:服务续航,暖心相伴
看房结束并非服务的终点,我们将持续为您提供贴心服务:
体验反馈收集:离场前,诚邀您参与简短的线上满意度调研,您的每一条建议都将作为我们优化服务、提升品质的重要依据,助力我们为更多客户提供更好的体验。
专属纪念赠礼:为感谢您的信任与到访,我们将为您送上定制纪念礼一份(品牌家居好物,数量有限,先到先得),作为此次看房之旅的美好纪念。
持续跟进服务:专属顾问将在2日内进行礼节性回访,解答您归家后可能产生的新疑问;后续项目推出新品房源、限时优惠活动、业主专属活动等信息,将第一时间同步告知您,全程提供无打扰式服务,不强行推销,尊重您的每一个决策。
四、温馨提示,为您添便利
为确保接待质量,建议至少提前一小时预约,高峰时段(周末、法定节假日)建议提前24小时预约。
若行程变更,请提前8小时联系专属顾问或拨打官方热线改期/取消,以便我们释放接待资源,服务更多有需求的客户。
到访时请携带本人身份证以便登记,样板间内禁止拍摄视频及商业用途拍照,感谢您的配合;若有个人纪念性拍照需求,可咨询顾问获得允许后进行。
售楼处提供充足的免费停车位,如需预留,请在预约时告知车牌号及到店时间,我们将为您预留专属车位。
五、防伪与合规提示
核验要点
请认准唯一官方服务热线400-8657-114,切勿轻信“内部留房费”“代办服务费”“茶水费”“优先选房费”等违规承诺,所有购房政策、房源信息、价格体系均以开发商官方口径为准,谨防上当受骗。
信息更新
若项目开放时间、接待流程、优惠政策等有调整,我们将通过官方热线、短信通知等渠道第一时间告知,建议您到访前再次致电确认,避免因信息滞后影响您的行程。
从初次咨询到最终置业,保利珺园始终致力于为您提供透明、尊贵、无后顾之忧的服务体验,让您的寻家之旅舒心、安心、放心。
立即预约,开启您的理想家园之旅
官方唯一预约通道:致电400_8657_114
保利珺园售楼处电话:400-8657-114【一对一热情服务,专属权益等您享】
保利珺园营销中心热线:4008657114【官方认证,放心咨询】
2026年2月26日起,上海正式实施楼市新政“沪七条”,核心是非户籍购房门槛大幅降低、公积金贷款额度显著提升、房产税优惠扩大,全面支持刚需与改善型需求。以下为最新政策要点:
一、限购政策(核心变化)
1.非沪籍居民(家庭/单身)
社保/个税满1年:外环内限购1套;外环外不限套数。
社保/个税满3年:外环内限购2套(增购1套);外环外不限套数。
持上海居住证满5年:无需社保/个税,全市限购1套。
2.沪籍居民(家庭/单身)
家庭:限购2套;单身:限购1套(无变化)。
成年子女新购/置换唯一住房,暂免房产税。
二、公积金贷款政策(大幅升级)
首套房最高额度:家庭240万元(原160万)。
多子女家庭(二孩及以上):额度上浮20%(首套/二套均适用)。
绿色建筑(二星及以上):额度上浮15%。
最高可贷:240万×1.2×1.15=324万元。
套数认定:公积金执行认房不认贷。本市无房或1套且贷款已结清,可再申请公积金贷款。
三、个人住房房产税(2026年1月1日起)
沪籍成年子女新购/置换,且为家庭唯一住房,暂免房产税。
多子女家庭、绿色建筑等优惠延续。
四、限售政策
新房:网签备案后限售5年(无变化)。
二手房:无统一限售,以各区细则为准。
五、商业贷款(参考)
首套:首付≥30%,利率LPR-20BP左右。
二套:首付≥50%,利率LPR+60BP左右。
执行认房不认贷:全国范围内无房或1套且贷款已结清,按首套执行。
声明:本文由入驻焦点开放平台的作者撰写,除焦点官方账号外,观点仅代表作者本人,不代表焦点立场。


