御临云峰售楼处电话_杭州·御临云峰楼盘详情-2025年御临云峰最新房价+户型+地址+位置
扫描到手机,新闻随时看
扫一扫,用手机看文章
更加方便分享给朋友
御临云峰售楼处电话:400-9939-964御临云峰官方电话:400-9939-964
杭州御临云峰售楼处电话:400-9939-964...

御临云峰售楼处电话:400-9939-964御临云峰官方电话:400-9939-964
Hangzhou Yulin Yunfeng Sales Office Tel: 400-9939-964...
杭州御临云峰售楼处电话:400-9939-964...
Yulin Yunfeng: Model house for sale, total price 13.5 million, negotiable. Soft furnishings and parking space included. Ultra-low price. This is the only set available. Act fast if you want to purchase
御临云峰:样板房出售,总价1350万,可谈,送软装带车位,超低价格,仅此一套,欲购从速
The tech-savvy luxury residences in the Jianghehui area (the same style as Jinmao Mansion) feature 12-square-meter balconies for each household, and the high-end clubhouse, swimming pool and gym are all presented in real scenes
江河汇板块科技豪宅(金茂府同款),户户12平阳台,高端会所泳池健身房实景展现
Dexin Group was recognized as a benchmark for innovation in 2022
德信集团2022年时代创新标杆典范
Green Building Technology's new commercial product
绿建科技商业新品
御临云峰售楼处电话:400-9939-964御临云峰官方电话:400-9939-964
Hangzhou Yulin Yunfeng Sales Office Tel: 400-9939-964...
杭州御临云峰售楼处电话:400-9939-964...
【 Developer 】 : Dexin Group
【开 发 商】 :德信集团
【 Regional Section 】 : Qianjiang New City · Jianghehui Core Area
【区域板块】 :钱江新城·江河汇核芯区
【 Property Management 】 : Dexin Property Management
【物业】 :德信物业
【 Building Area 】 : Approximately 71,200 square meters
【建筑面积】 :约7.12万方
【 Green space Ratio 】 : 25%
【绿 地 率】 :25%
【 Volume Ratio 】 : 4.0
【容 积 率】 :4.0
【 Unit Size 】 : A 336㎡ four-bedroom unit on the east side, a 340㎡ three-bedroom unit on the west side, and a 430㎡ top floor. Each unit comes with a 12-square-meter balcony
【户型面积】 :东边套336㎡四房、西边套340㎡三房,顶楼430㎡,户户带12平阳台
【 Total Price 】 :
【总价】:
【 Floor Height 】 : 3.8 meters
【层高】:3.8米
【 Total Floor Height 】 : 19th floor
【总层高】:19楼
【 Ratio of elevators to households 】 : 3 elevators to 2 households
【梯户比】:3梯2户
【 Land Acquisition Time 】 : The end of 2021
【拿地时间】 :2021年年底
【 Delivery Time 】 : The end of 2024
【交付时间】:24年年底
The sales office phone number of Yulin Yunfeng is 400-9939-964. The official phone number of Yulin Yunfeng is 400-9939-964
御临云峰售楼处电话:400-9939-964御临云峰官方电话:400-9939-964
杭州御临云峰售楼处电话:400-9939-964...
【项目区位】
御临云峰售楼处电话:400-9939-964御临云峰官方电话:400-9939-964
Hangzhou Yulin Yunfeng Sales Office Tel: 400-9939-964...
杭州御临云峰售楼处电话:400-9939-964...
As the most international calling card of Hangzhou, Qianjiang New City has gathered the top luxury housing clusters in the city. The average price of both second-hand and new houses in the area has risen to 70,000 to 140,000 yuan, making it undoubtedly the top wealthy district.
钱江新城作为杭州最国际化的名片,板块内汇聚当前杭州顶级豪宅集群,板块二手房及新房均价已跃居7-14万,当之无愧的第一富人区。
The Dexin Jianghehui project is located in the core area of Qianjiang New City, Shangcheng District - Jianghehui.
德信江河汇项目傲居上城区钱江新城核芯板块—江河汇。
Thanks to the world intangible cultural heritage of the Beijing-Hangzhou Grand Canal and the world-renowned Qiantang River surging here, over 850,000 cubic meters of rivers converge on the city's cover. As an important part of the extension area of Qianjiang New City, it aims to create a world-class future waterfront vitality zone and jointly forge the golden focus of Hangzhou in the next decade.
得益于世界非遗京杭大运河、举世闻名的钱塘江奔腾在此双流齐汇,超85万方江河汇城市封面,将作为钱江新城延伸区的重要组成部分,打造世界未来滨水活力区,共铸杭州下一个十年黄金焦点。
a
a
御临云峰售楼处电话:400-9939-964御临云峰官方电话:400-9939-964
Hangzhou Yulin Yunfeng Sales Office Tel: 400-9939-964...
杭州御临云峰售楼处电话:400-9939-964...
[Project Location]
【项目地段】
This project is approximately 3 kilometers away from the core area of Qianjiang New City CBD
本项目距离钱江新城CBD核心区约3km
The Sun Hung Kai River Hub Complex (under construction) with an area of over 850,000 square meters is approximately 1.5 kilometers long
超85万方新鸿基江河汇综合体(在建)约1.5km
The confluence area of rivers serves as an important link connecting the core area of Qianjiang New City and the second phase of Qianjiang New City.
江河汇流区作为连接钱江新城核心区和钱江新城二期的重要纽带。
The area is planned to have an 800,000-square-meter Qianjiang Financial City, a 150,000-square-meter Fisherman's Wharf, a 120,000-square-meter urban park, and the highly anticipated first landmark of Hangzhou, the Ferris wheel "Hangzhou Eye".
板块内规划有80万方的钱江金融城以及15万方的渔人码头、12万方的城市公园,以及万众瞩目的杭州首个地标摩天轮“杭州眼”。
The entire project encompasses the IFC high-end luxury shopping street, waterfront leisure area, canal landscape bridge, 5A-grade business district, five-star hotel, etc. It is a multi-functional urban cover complex and will become a benchmark for the internationalization of Hangzhou in the future.
整个项目涵盖IFC高奢购物街区、滨水休闲区、运河景观桥、5A甲级商务区、五星级酒店等,是多功能为一体的城市封面综合体,未来将成为杭州城市国际化标杆。
The Hangzhou Eye, shining as brightly as the sun and the moon, and the large and small lotus bowls will also represent Hangzhou to form three shining landmarks.
杭州眼和日月同辉、大小莲花碗也将代表杭州形成三大闪耀地标。
Renderings of Hangzhou International Finance Center (IFC)
杭州国际金融中心(IFC)效果图
御临云峰售楼处电话:400-9939-964御临云峰官方电话:400-9939-964
Hangzhou Yulin Yunfeng Sales Office Tel: 400-9939-964...
杭州御临云峰售楼处电话:400-9939-964...
[Project Supporting Facilities]
【项目配套】
Within a golden 3-kilometer radius of the project, there are all the top-notch supporting facilities of "Four nines", allowing you to enjoy the achievements accumulated over 20 years of development in Qianjiang New City 1.0.
项目周边黄金3km范围内,汇集【4个4】全顶级配套,坐享钱江新城1.0发展20年积淀成果。
Four major city landmarks: International Conference Center | Grand Theatre | Civic Center | City Balcony;
4大城市地标:国际会议中心|大剧院|市民中心|城市阳台;
Four major commercial giants: Wanda Plaza | Raffles City | Qingchun Business District | East Railway Station Business District;
4大商业巨无霸:万象城|来福士|庆春商圈|火车东站商圈;
Four super five-star hotels: Park Hyatt | Conrad | Diaoyutai | Jumeirah Hotel;
4大超五星酒店:柏悦酒店|康莱德酒店|钓鱼台|卓美亚酒店;
Four 5A-grade office buildings: China Resources Tower | Ping An Finance Center | Raffles City | Dexin Center.
4大5A甲级写字楼:华润大厦|平安金融中心|来福士|德信中心。
【3+3 Medical and Educational Resources 】 :
【3+3医疗及教育资源】:
Three top hospitals: Sir Run Run Shaw Hospital | Zhejiang First University Hospital | Zhejiang Second University Hospital, all top-tier hospitals.
3大顶级医院:邵逸夫医院|浙一医院|浙二医院,全三甲阵容;
Three major educational resources: Caihe No.1 and No.2 Primary School | Qianjiang Foreign Language Experimental School | Qianjiang Bes International School
3大教育资源:采荷一二小学校|钱江外国语实验学校|钱江贝赛斯国际学校
御临云峰售楼处电话:400-9939-964御临云峰官方电话:400-9939-964
杭州御临云峰售楼处电话:400-9939-964...
御临云峰售楼处电话:400-9939-964御临云峰官方电话:400-9939-964
Hangzhou Yulin Yunfeng Sales Office Tel: 400-9939-964...
杭州御临云峰售楼处电话:400-9939-964...
[Project Transportation]
【项目交通】
Surrounded by metro: At the Tanhua 'an Road Station of Line 6 (less than 10 meters), it can be transferred to multiple metro lines such as Line 1, 4, and 5, as well as the Hangzhou-Fuzhou Line, earning it the title of "King of Transfers", providing convenient access to the entire city and Xiaoshan Airport.
---地铁环绕:6号线昙花庵路站(<10m),与地铁1、4、5等多条线路以及杭富线实现换乘,堪称“换乘之王”,畅达全城及萧山机场;
High-speed rail travel: 3 kilometers directly to Hangzhou East Railway Station (the largest transportation hub in Asia), and 1 hour to the Yangtze River Delta.
---高铁出行:3公里直达杭州东站(亚洲最大的交通枢纽),1小时直达长三角;
Self-driving travel: It is only 2 kilometers away from the project and connects to the Hangzhou-Ningbo Expressway. You can conveniently reach Shanghai, Ningbo and other places by self-driving.
---自驾出行:近项目2公里接轨杭甬高速,自驾可便捷抵达上海、宁波等地;
-- Air travel: Currently, you can transfer to the Airport expressway via Qingchun Road Tunnel or Boao Tunnel, and it takes only 25 minutes to reach the airport directly.
---飞机出行:当前可通过庆春路隧道、博奥隧道转机场高速,25分钟直达机场。
御临云峰售楼处电话:400-9939-964御临云峰官方电话:400-9939-964
杭州御临云峰售楼处电话:400-9939-964...
【项目规划】
御临云峰售楼处电话:400-9939-964御临云峰官方电话:400-9939-964
Hangzhou Yulin Yunfeng Sales Office Tel: 400-9939-964...
杭州御临云峰售楼处电话:400-9939-964...
The confluence of the Qiantang River and the Grand Canal is currently a must-win area for high-end luxury residences in Hangzhou. Dexin has brought its peak product strength to this luxury residence distribution zone, creating new commercial products starting from 300 square meters.
钱塘江与运河交汇所在是杭州当前打造高端豪宅必争之地,德信将巅峰的产品力带到了这一豪宅分布带,打造300㎡起步商业新品。
Adopt the construction model of green buildings and apply a large number of high-tech systems to further enhance the comfort of the products.
采用绿色建筑的营造模式,运用大量高科技系统,进一步提升产品舒适度。
For instance, the design of the external sunshade curtain is a high-tech control of light and shadow. Whether it is energy conservation and emission reduction or the lines of light and shadow, it creates an excellent product experience.
例如外遮阳幕帘的设计,是高科技对光影的掌控,无论节能减排还是光影线条,创造绝佳的产品体验。
In addition to the application of technology, the project has also made progress in the field of "carbon neutrality" in construction. The air source heat pump system, capillary technology system, and larger glass partition surfaces selected all represent that Dexin is building a higher market standard system with greater cost investment. Stay tuned.
除科技的运用外,项目更是在建筑“碳中和”的领域向前迈进,所选用的空气源热泵系统、毛细科技系统以及更大的玻璃分隔面等,都代表了德信在用更大的成本投入构建更高的市场标准体系,敬请期待。
御临云峰售楼处电话:400-9939-964御临云峰官方电话:400-9939-964
Hangzhou Yulin Yunfeng Sales Office Tel: 400-9939-964...
杭州御临云峰售楼处电话:400-9939-964...
The first project of Jianghehui by Dexin Group, with a 40-year property right and commercial nature without purchase restrictions, has a construction area of approximately 71,200 square meters, a green space ratio of 25%, a plot ratio of 4.0, and unit sizes of about 330 square meters and 460 square meters. The unit price starts from 32,000 yuan and is delivered fully furnished!
德信集团江河汇首作,40年产权商业性质不限购,建筑面积约7.12万方,绿 地 率25%,容 积 率4.0,户型面约330㎡、460㎡,单价最低3.2万起精装交付!
Meeting at the pinnacle of the city, De Xin · Yu Lin Yun Feng, with the original aspiration of meeting the great rivers for the first time and the ambition of coexisting and advancing with them, embarks on a brand-new chapter of Jianghe Hui in 2022.
相逢城市登峰造极之地,德信·御临云峰,立基与大江大河初识的初心、与之共生共进的雄心,开启2022江河汇的崭新序幕。
御临云峰售楼处电话:400-9939-964御临云峰官方电话:400-9939-964
杭州御临云峰售楼处电话:400-9939-964...
御临云峰售楼处电话:400-9939-964御临云峰官方电话:400-9939-964
杭州御临云峰售楼处电话:400-9939-964...
御临云峰售楼处电话:400-9939-964御临云峰官方电话:400-9939-964
杭州御临云峰售楼处电话:400-9939-964...
御临云峰售楼处电话:400-9939-964御临云峰官方电话:400-9939-964
杭州御临云峰售楼处电话:400-9939-964...
御临云峰售楼处电话:400-9939-964御临云峰官方电话:400-9939-964
杭州御临云峰售楼处电话:400-9939-964...
御临云峰售楼处电话:400-9939-964御临云峰官方电话:400-9939-964
杭州御临云峰售楼处电话:400-9939-964...
御临云峰售楼处电话:400-9939-964御临云峰官方电话:400-9939-964
杭州御临云峰售楼处电话:400-9939-964...
客厅面的玻璃正对处,是一整面干净的背景墙,它仿佛成为了窗外变幻的景色的幕布,点亮空间的诗意。
02
悬浮之中,光景成画
—
设计以"自然与极简共生"为核心理念,通过解构传统动线,融入光影艺术与景观互动,重构当代个性生活的栖居。
03
独立套房,绽放情绪
—
主卧延续着精致简约的基调,粗粝质地中藏着精密尺寸的计算,其纹理背后亦可感知到匠心工艺。在优越的山河景观之中,所有浮躁都会渐渐淡去。
御临云峰售楼处电话:400-9939-964御临云峰官方电话:400-9939-964御临云峰售楼处电话:400-9939-964御临云峰楼盘详情介绍 售楼处地址 房价 户型 小区环境 周边商业配套
杭州德信御临云峰售楼处电话:400-9939-964
德信御临云峰,作为钱江新城·江河汇核芯区的一部分,拥有得天独厚的区位优势和丰富的人文历史。这里不仅有着便捷的交通和完善的商业配套,更有着独特的滨水休闲区和运河景观桥,使得德信御临云峰成为了杭州下一个黄金焦点。
编辑
编辑
御临云峰售楼处电话:400-9939-964御临云峰楼盘详情介绍 售楼处地址 房价 户型 小区环境 周边商业配套
杭州德信御临云峰售楼处电话:400-9939-964
【开 发 商】 :德信集团
【区域板块】 :钱江新城·江河汇核芯区
【项目地址】 :昙花庵路与塘工局路交叉口
【物业类型】 :商业
【建筑面积】 :约7.12万方
【得房率】:71%
【绿 地 率】 :25%
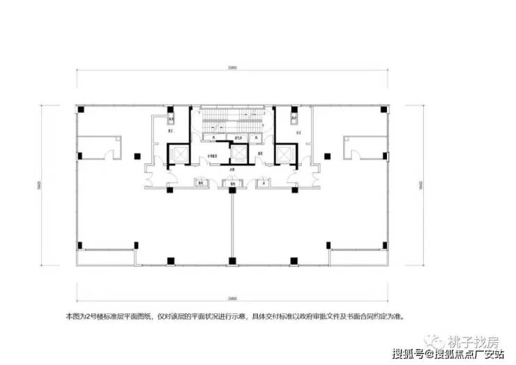
【户型面积】 :约330㎡、430㎡
【梯户比】:三梯两户
【规划套数】:66套(2号楼、3号楼)
【物业费】:9.5元/平米
【销售时间】 :2022年
【交付时间】:预计2024年底
【单价】40000
御临云峰售楼处电话:400-9939-964御临云峰楼盘详情介绍 售楼处地址 房价 户型 小区环境 周边商业配套
编辑
编辑

编辑
编辑
编辑
编辑
编辑
编辑
编辑
御临云峰售楼处电话:400-9939-964御临云峰楼盘详情介绍 售楼处地址 房价 户型 小区环境 周边商业配套
杭州德信御临云峰售楼处电话:400-9939-964御临云峰售楼处电话:400-9939-964御临云峰楼盘详情介绍 售楼处地址 房价 户型 小区环境 周边商业配套
杭州德信御临云峰售楼处电话:400-9939-964
德信御临云峰,作为钱江新城·江河汇核芯区的一部分,拥有得天独厚的区位优势和丰富的人文历史。这里不仅有着便捷的交通和完善的商业配套,更有着独特的滨水休闲区和运河景观桥,使得德信御临云峰成为了杭州下一个黄金焦点。
编辑
编辑
御临云峰售楼处电话:400-9939-964御临云峰楼盘详情介绍 售楼处地址 房价 户型 小区环境 周边商业配套
杭州德信御临云峰售楼处电话:400-9939-964
【开 发 商】 :德信集团
【区域板块】 :钱江新城·江河汇核芯区
【项目地址】 :昙花庵路与塘工局路交叉口
【物业类型】 :商业
【建筑面积】 :约7.12万方
【得房率】:71%
【绿 地 率】 :25%
【户型面积】 :约330㎡、430㎡
【梯户比】:三梯两户
【规划套数】:66套(2号楼、3号楼)
【物业费】:9.5元/平米
【销售时间】 :2022年
【交付时间】:预计2024年底
【单价】40000
御临云峰售楼处电话:400-9939-964御临云峰楼盘详情介绍 售楼处地址 房价 户型 小区环境 周边商业配套
编辑
编辑

编辑
编辑
编辑
编辑
编辑
编辑
编辑
御临云峰售楼处电话:400-9939-964御临云峰楼盘详情介绍 售楼处地址 房价 户型 小区环境 周边商业配套
杭州德信御临云峰售楼处电话:400-9939-964
杭州御临云峰售楼处电话:400-9939-964...
御临云峰售楼处电话:400-9939-964御临云峰官方电话:400-9939-964
杭州御临云峰售楼处电话:400-9939-964...
关于“人”关于“房产”关于“公司”的要求申请材料贷款金额与利率还款方式解析抵押贷款办理流程行业名词介绍
关于“人”
贷款申请人(也称主贷人)年龄一般在18~72周岁,需要具有完全行事能力的公民。
抵押人(房产持有人)年龄一般在18~80周岁
PS:部分银行接受房产持有人是未成年、接受抵押人最高100岁借款人共借人及抵押人无诉讼、无限高、无司法案件等
个人征信:(最近两年内没有连续三个月逾期、累计6个月逾期)
PS:如有特殊情况可向银行提供说明征信原则上“机构查询次数”最近三个月查询不超过4次,半年不超过6次。
ps:部分银行对征信查询无要求。部分银行接受外籍人士主贷或外籍人士房产有中国亲属担保。房地产、金融、银行、证券、公职人员等大部分银行无法作为主贷人不过可以作为抵押人。
关于“房产”
关于抵押的房产要求:
(1)需拿到房产证(期房无法抵押)
(2)产权清晰,无违建,无查封、无产权纠纷,房屋的产权可以在市场上交易
(3)房龄一般在30年内(超过30年只有极少数银行可以申请)
(4)住宅房产面积大于50平米(低于50平米只有极少数银行可以申请)
(5)房产类型:住宅、别墅、公寓、经济适用房、办公楼、厂房、商铺、写字楼。
新房产证:指房产证持有时间小于6个月;小孩房:房产证上有未满18周岁的小孩名字(可选银行较少);
老人房:房产证上有65岁以上老人名字(80岁以内还是有银行可办理,可选银行极少。)经济适用房、人才房等:一般都有国家的份额需要赎回份额并且过了限售期才可申请贷款。
老破小:超过30年以上的老房子+小面积(申请贷款相对麻烦一些)按揭房:按揭房不结清现有的贷款希望办理二次抵押也可申请,只需要有房产证,按揭还款1个月即可申请二次抵押。
PS: 不过目前利率最低要求相对宽松的还是住宅、别墅、住宅类公寓等。
关于“公司”的要求
消费抵押贷款:消费抵押贷款不需要公司,不过最高只能申请500万,并且利息远高于经营抵押贷款,适合不方便成立公司的群体如:公务员、银行员工、大型企业高管等。
公司经营抵押贷款:一般银行要求申请贷款主体(公司),需成立满一年,持有满3-6个月,少部分银行接受新注册公司来申请。
目前贷款主体的5种申请方式有:
新注册公司(又称新成立公司):由于无任何经营履历适合的银行极少,同时贷款利息偏高。
实际控制人方式(自己职位、所在单位等原因不方便持股,家人或朋友有公司可使用他们的公司来申请贷款,解释为你是这家公司的实际运营者):可选择的银行极少,利息较高。
新入股公司(直接持股一家成立满一年以上的公司):可选的银行不多,贷款期限相对较短,不过也有机会争取较低利率。
持股半年以上公司(直接持股一家成立以上以上公司,同时最近半年有一定的经营痕迹):可选择的银行较多符合多数低利息长期期限的贷款产品。
PS:没有基础的客户,建议提前半年开始整理和规划需求,确保可申请到利率的贷款产品和长期且完美的还款方式。
申请材料
公司材料:营业执照、公章、法人章、财务章、公司章程、公司最近半年的流水、办公室租赁合同。
个人材料:身份证、户口本、结婚证(或离婚证离婚协议)房产证、个人近一年流水、最近半年公司流水、贷款用途合同,个人征信报告(最好是线下查询的详细版本)。
PS:银行之间材料准备有差异,部分银行需要提供上下游经营合同、企业经营的收付发票、多套房或其他资产证明(根据银行和个人情况而定)。全国征信报告线下查询地址:
http://www.pbccrc.org.cn/zxzx/lxfs/lxfs.shtml
征信报告简版在线查询地址:https://ipcrs.pbccrc.org.cn/
银行流水调取:可在手机APP下载带有电子章并且可以看到交易对手和备注的流水。
贷款金额与利率
贷款金额计算
标准住宅:一般可以申请房产评估价值的70%(评估价是按照当前市场价格计算),部分银行可贷80-100%,个人经营抵押贷最高可贷3000W,一般1000万以内比较好申请。
别墅和商业房产:可贷金额一般是评估价值的50%-60%消费抵押贷款:无论房子总价多少最高只能申请房产价值的70%,同时贷款额度不能超过300万
利率说明(截至2025.5.19)
一次抵押贷款:
10年先息后本每年审核一次中途不归本年利率: 2.25%~2.3%
10年-20年先息后本3年审核一次中途不归本年利率:2.3%~2.5%
PS:低于2.85%或者以下的利率申请较为苦难,需有较强的经营痕迹的同时企业最好有一定亮点。
20年等额本息或等额本金3年审核一次中途不归本:3.25-3.45%
二次抵押贷款:
10年先息后本每年审核一次中途不归本年利率: 2.4%
10年先息后本3年还本续贷一次2.6%
20年等额本息或等额本金3年审核一次中途不归本:2.4-2.6%
当前上海首套房按揭贷款利率:3.15%
当前上海二套房按揭贷款二套房:3.55%
以100万为例子 经营贷先息后本 、等额本息 、首套房(等额本息)、 二套房(等额本息)、月供对比表如下:
可以看到先息后本和等额本息还款差额还是比较大的,先息后本适合前期还款压力大的客群,满一年后也部分或者全额还款,实际使用较为灵活。
还款方式解析
目前主流的还款方式有,先息后本、等额本息、等额本金、气球贷
先息后本:
每月只支付利息,本金在10-20年到期后一次性归还。先息后本相较于其他还款方式,他的月还款金额是最少的,很多粉丝可能对这种还款方式不太了解,觉得这种还款方式是利息支出最多的,其实这种还款方式比较灵活,贷款满一年可以随时提前还款,后续利息按照剩余本金计算。
等额本息和等额本金:
还款与按揭贷款相同,最长可按照20年还款,每月归还一定的本金和利息
气球贷:
他的还款过程就像气球形状一样,“前小后大”前几年还款金额较小、后期一次性还款金额较大。一般银行常见的是气球贷10年授信, 3年按20年等额本息还款。通俗点讲的意思是:这笔钱有效期十年,但合同签署3年,每3年需要审核一下你的材料然后直接“无还本续贷”(不需要归还本金直接续贷),材料包括(征信、银行流水、公司持有情况),虽然借款合同是三年,但每月的还款金额是按照20年等额本息还款,例如借款500万,利率3.2%,还款的公式:
按照一个较长的期限来计算月供,减轻前期还款压力。
抵押贷款办理流程:
注:
1、申请到放款的时间根据银行不同,一般的周期为7~20工作日;
2、一般需要到银行及房产交易中心合计1-3次(各银行情况不同);
3、单次签约一般为1小时左右,如需开企业户预计需要2小时;
4、如有前银行贷款需要结清,则根据前银行还款时间,一般贷款总时长需要增加5~ 10个工作日。
各银行办理流程会有差异,部分银行单身、离异需要公证部分银行贷款申请可线上操作、银行不需要下户办理抵押:部分银行可线上抵押无需到房产交易中心办理。
行业名词介绍
除了以上内容中描述的一些贷款行业专用名词以外,还有一些常见的名词,以下千房也做下简单的介绍。
1、转贷:
房子本身已经有贷款不过因为额度低或者利息高,可在新的银行从新重新批复一笔贷款,确定额度与利息都适合的前提下结清之前贷款,再提取新的银行贷款的过程。
2、过桥垫资:
在转贷的过程中,由于没有足够的现金去结清之前贷款,可找相关的过桥机构“过桥垫资”用于结清钱银行款项,目前上海的过桥费用一般在万6万八,根据不同的机构价格也有所不同。
相关事宜:转贷的过桥周期一般在15天左右,过桥机构一般最低7天起借,不足7天按照7天计算,部分过桥公司还会有一定的过桥手续用。
3、白户:
没有任何贷款记录的贷款人,部分银行不太喜欢”白户”,由于没有和银行建立过信用关系,不确保是否有良好的还款习惯,建议”白户”在申请抵押贷款前可先先办理一张信用卡
4、贷款用途
经营抵押的贷款用途一般用于公司经营,用途一般为采购经营所需货品,最终的贷款是需要打入第三方账户的。
相关事项:多数银行贷款金额1000W以内可选择第三方法人或者股东个人收款,部分大行需要打入第三方公司名下。
5、受托支付:
受托支付是银行在放贷时常用的一种支付方式,一般是指放款银行根据贷款人提供的购销合同实行支付委托,有银行直接把款项转入借款人提供的有效用途合同中的指定账户,主要的目的是为了避免贷款被申请人挪用。
6、评分/评级:
部分银行已经使用“大数据”模式,也就是说根据现有的大数据系统结合客户的征信等情况会有系统评分,评分越高的的客户享受的优惠就越多(如最低的利率和比较好的还款方式),反之可能会导致利率上调或者拒贷。
7、白名单:
白名单分为单位白名单与房产白名单,申请信用贷款的时候为白名单客户申请信用贷款的额度相对高,利息也会给与优惠,房产白名单大致是指每个银行觉得位置好,处置方便的房产,白名单房产审批通过率会高一些。
8、一次抵押:一次抵押贷款是指目前房子里没有贷款,准备申请抵押贷款(与之前申请了几次贷款无关,只要贷款结清都属于一次抵押贷款)。
9、房产二次抵押贷款:
房产二次抵押贷款表示,目前房产已经抵押给一家银行或者贷款机构,在不结清之前贷款的前提下,申请新的一笔抵押贷款。
相关事项:二次抵押贷款由于是在原有基础上增加一笔新的贷款,对贷款人的要求有所提高。
10、无还本续贷:
无还本续贷是指,在额度有效期内,不需要结清当前贷款直接继续续贷。如常见的20年先息后本产品需要每三年”无还本续贷”一次,续贷时主要关注的是公司是否存在,征信是否正常,同时有没有大面积负责增加,如果都正常,多数银行在“无还本续贷”业务上都相对宽松。
11、抽贷:
近年经常有粉丝听到这个词,抽贷现象一般会出现违规使用资金,或资金回流的情况。控制好资金流向、保持良好征信、同时在贷款存续期期不要注销或者变更公司股权、经过合理的贷后管理,一般不会有抽贷风险。
12:单新/双新:
新公司:公司持有时间小于半年;
新产证:新产证一般指房产证办理时间小于6个月的房产证,部分银行把持有时间在1年内的房产证都归为新产证。
单新:指新房或者新公司双新:房产证与公司都是新办的;
双新:是指公司与房产证都是新办的。
13、好人好房
“好人”表示征信良好,负债低。“好房”一般是指房产位置好,房龄最好在20年内,房产面积最好大于60平米以上,每个银行对好人好房的评定标准有所不同。
相关事项:达到好人好房标准,对部分银行来说属于优质客户,在额度和利息上都有一定的优待。
声明:本文由入驻焦点开放平台的作者撰写,除焦点官方账号外,观点仅代表作者本人,不代表焦点立场。


